126
¿ÀÇǽºÅÚ
¼­¿ïÁß¾ÓÁö¹æ¹ý¿ø
 °¨Á¤°¡110,000,000 ¿ø
 ÃÖÀú°¡(64%) 70,400,000 ¿ø
 º¸Áõ±Ý(10%) 7,040,000 ¿ø
 Ã»±¸¾×131,000,000 ¿ø
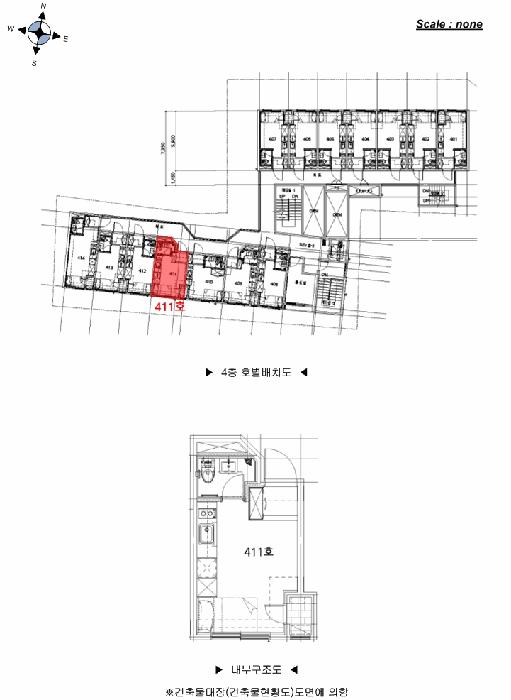
¼­¿ïƯº°½Ã °ü¾Ç±¸ ½Å¸²µ¿ 1421-1 ½Å¸²Å¥ºê 4Ãþ411È£
»ç°Ç¹øÈ£ 2025Ÿ°æ102794
°æ¸ÅÁ¾·ùºÎµ¿»ê°­Á¦°æ¸Å
¸Å°¢´ë»óÅäÁö ¹× °Ç¹°Àϰý ¸Å°¢
¸Å°¢±âÀÏ    2026.01.21(¼ö) 10:00 ÀÔÂû 26ÀÏÀü    
ÅäÁö¸éÀû5.00§³(1.51 Æò)
°Ç¹°¸éÀû16.32§³(4.94 Æò)
乫/¼ÒÀ¯ÀÚ±èOO / ±èOO
ä±ÇÀÚÁÖOOOOOOO
±è¼ºÈÆ ´ëÇ¥ÀÌ»ç
°øÀÎÁß°³»ç, ºÎµ¿»ê°ø°æ¸Å»ç, ÇѾç´ëÇб³ Á¹¾÷
Àü) ÅÂÀÎÄÁ¼³ÆÃ(ÁÖ) ´ëÇ¥ÀÌ»ç
Àü) ¿©ÀÇÁֺε¿»êÁß°³¹ýÀÎ(ÁÖ) ´ëÇ¥ÀÌ»ç
Çö) ¿©ÀÇÁÖ°æ¸Å¹ýÀÎ ´ëÇ¥ÀÌ»ç
010-2371-3237
ÆäÀ̽ººÏ Æ®À§ÅÍ ±¸±Û+
īī¿À½ºÅ丮
īī¿ÀÅå sms¹®ÀÚº¸³»±â
 

±âÀϳ»¿ª

°æ°ú ³¯Â¥ Àú°¨ ÃÖÀú°¡ °á°ú
Á¢¼öÀÏ 2025-04-25 °æ¸ÅÁ¢¼ö
~6ÀÏ 
2025-05-01 °æ¸Å°³½Ã°áÁ¤
~82ÀÏ 
2025-07-16 ¹è´ç¿ä±¸Á¾±âÀÏ
~194ÀÏ 
2025-11-05 100%
110,000,000
À¯Âû
~229ÀÏ 
2025-12-10 80%
88,000,000
À¯Âû
~271ÀÏ 
2026-01-21 64%
70,400,000
ÁøÇà
¹°°Ç¸í¼¼¼­ ÇöȲÁ¶»ç¼­ ¹®°ÇÁ¢¼ö ¼Û´Þ³»¿ª

°¨Á¤Æò°¡ÇöȲ

¸ñ·Ï ÁÖ¼Ò ±¸Á¶/¿ëµµ/´ëÁö±Ç ¸éÀû ºñ°í
´ëÁö±Ç
½Å¸²µ¿ 1421-1 685.7ºÐÀÇ 5.001 5.001 §³
(1.51Æò)
°Ç¹°
½Å¸²µ¿ 1421-1 4Ãþ411È£ ö±ÙÄÜÅ©¸®Æ®±¸Á¶ 16.315 §³
(4.94Æò)

°ÇÃ๰ÇöȲ

¼ÒÀçÁö ¼­¿ïƯº°½Ã °ü¾Ç±¸ ½Å¸²µ¿ 1421-1¹øÁö
´ëÁö¸éÀû 685.7§³
(207.79Æò)
¿¬¸éÀû 3935.4552§³
(1192.56Æò)
°ÇÃà¸éÀû 405.9593§³
(123.02Æò)
¿ëÀû·ü»êÁ¤
¿¬¸éÀû
3287.0557§³
(996.08Æò)
°ÇÆóÀ² 59.2% ¿ëÀû·ü 479.37%
Áö»óÃþ¼ö 10Ãþ ÁöÇÏÃþ¼ö 2Ãþ
ÁÖ¿ëµµ °øµ¿ÁÖÅà ±¸Á¶ ö±ÙÄÜÅ©¸®Æ®±¸Á¶
Âø°øÀÏÀÚ 2013.12.23 »ç¿ë½ÂÀÎÀÏÀÚ 2015.04.22
°ÇÃ๰Ãþº°ÇöȲ [º¸±â]


±¹ÅäºÎ½Ç°Å·¡°¡ ¼­¿ïƯº°½Ã °ü¾Ç±¸ ½Å¸²µ¿

¡Ü ¸Å¸Å

¸éÀû(§³), ±Ý¾×(¸¸¿ø)

¡Ü Àü¼¼

¸éÀû(§³), ±Ý¾×(¸¸¿ø)

°è¾àÀϰǹ°¸íĪÃþÀü¿ëº¸Áõ±Ý¿ù¼¼°ÇÃà
25.12.20½Å¸²Å¥ºê217.2910,00002015
25.10.30½Å¸²Å¥ºê317.059,2002015
25.10.30½Å¸²Å¥ºê317.059,1002015
25.09.26½Å¸²Å¥ºê416.468,9252015
25.06.21½Å¸²Å¥ºê216.461,000502015
¢Ñ ´õº¸±â

µî±âºÎµîº» ¿ä¾à(°Ç¹°)

  Á¢¼öÀÏÀÚ µî±â¸ñÀû/±Ç¸®ÀÚ ±Ç¸®±Ý¾× ±âÁØ
1 2021³â3¿ù29ÀÏ
¼ÒÀ¯±Ç
±èOO
¼Ò¸ê
2 2023³â4¿ù28ÀÏ
ÀÓÂ÷±Ç¼³Á¤
±èOO
131,000,000 Àμö
3 2023³â12¿ù15ÀÏ
¾Ð·ù
°üOO
¼Ò¸ê±âÁØ
4 2025³â5¿ù1ÀÏ
°­Á¦°æ¸Å
ÁÖOOOO
¼Ò¸ê
5 2025³â5¿ù15ÀÏ
¾Ð·ù
±¹OOOO
¼Ò¸ê

ÀÓÂ÷ÀÎÇöȲ (¹è´ç¿ä±¸Á¾±âÀÏ: 2025-07-16)

ÀÓÂ÷ÀÎ ¿ëµµ/Á¡À¯ º¸Áõ±Ý/¿ù¼¼ ´ëÇ×·Â
ÀüÀÔÀÏ/È®Á¤ÀÏ ¹è´ç¿ä±¸ ºñ°í
±èOO ÀüÀ¯ºÎºÐÀüºÎ 131,000,000
O
2021.02.26.
2021.02.19.
2021.02.28.
ÁÖOOOOOOOOOOOO ÀüÀ¯ºÎºÐÀüºÎ 131,000,000
O
2021.02.26.
2021.02.19.
2025.6.27. 2021.02.28.
ºñ°í
(¸Å°¢¹°°Ç
¸í¼¼¼­)
ÀÌ »ç°Ç °æ¸Å½Åûä±ÇÀÚ ÁÖÅõµ½Ãº¸Áõ°ø»ç°¡ ÀÓÂ÷ÀÎ ±è¿äÇÑÀÇ ÀÓÂ÷º¸Áõ±Ý¹Ýȯä±ÇÀ» ½Â°èÇÔ(ÁÖÅÃÀÓ´ëÂ÷º¸È£¹ý Á¦3Á¶ÀÇ2 Á¦7Ç×).

¿©ÀÇÁÖ°æ¸Å Á¶¾ð ÇÑ ¸¶µð

¸Å°¢¹°°Ç¸í¼¼ ºñ°í³­¿¡ ±âÀçµÈ ³»¿ëÀÔ´Ï´Ù.
ÀÌ »ç°Ç °æ¸Å½Åûä±ÇÀÚ ÁÖÅõµ½Ãº¸Áõ°ø»ç°¡ ÀÓÂ÷ÀÎ ±è¿äÇÑÀÇ ÀÓÂ÷º¸Áõ±Ý¹Ýȯä±ÇÀ» ½Â°èÇÔ(ÁÖÅÃÀÓ´ëÂ÷º¸È£¹ý Á¦3Á¶ÀÇ2 Á¦7Ç×).
³«Âû ÈÄ¿¡ µî±âºÎ»ó ¼Ò¸êµÇÁö ¾Ê´Â ±Ç¸®ÀÔ´Ï´Ù.
À»±¸ ¼øÀ§ 3¹ø ÁÖÅÃÀÓÂ÷±Çµî±â(ÀÓ´ëÂ÷º¸Áõ±Ý 131,000,000¿ø, ÀüÀÔÀÏ 2021. 2. 26., È®Á¤ÀÏÀÚ 2021. 2. 19.)´Â ¹è´ç¿¡¼­ º¸Áõ±Ý ÀÌ Àü¾× º¯Á¦µÇÁö ¾Æ´ÏÇϸé Àܾ×À» ¸Å¼öÀÎÀÌ ÀμöÇÔ.
¼±¼øÀ§ ÀÓÂ÷±Çµî±â°¡ µÇ¾î ÀÖ½À´Ï´Ù.
Àüü ÄÁ¼³ÆÃÀÌ ºÎ´ã½º·¯¿ì½Å°¡¿ä? ±Ç¸®ºÐ¼®¸¸ ÀÇ·ÚÇϼŵµ ±¦Âú½À´Ï´Ù!
½Ç¼Ó ÀÖ°Ô Çٽɸ¸ ´ãÀº ±Ç¸®ºÐ¼® ¼­ºñ½º!! (±Ç¸®ºÐ¼® + ½Ã¼¼Á¶»ç + ³«Âû°¡ »êÁ¤ + ÀÔÂûÇ¥ ÀÛ¼º¹æ¹ý ±îÁö)
ÃÖ´ë Àüü ÄÁ¼³ÆÃ ºñ¿ëÀÇ 10% ¼öÁØ !!

ÁÖÀÇ»çÇ× (ÃÖ¼±¼øÀ§ ¼³Á¤ÀÏ: 2023.12.15. ¾Ð·ù ¼³Á¤)

¸Å°¢À¸·Î ¼Ò¸êµÇÁö ¾Ê´Â µî±âºÎ±Ç¸®: À»±¸ ¼øÀ§ 3¹ø ÁÖÅÃÀÓÂ÷±Çµî±â(ÀÓ´ëÂ÷º¸Áõ±Ý 131,000,000¿ø, ÀüÀÔÀÏ 2021. 2. 26., È®Á¤ÀÏÀÚ 2021. 2. 19.)´Â ¹è´ç¿¡¼­ º¸Áõ±Ý ÀÌ Àü¾× º¯Á¦µÇÁö ¾Æ´ÏÇϸé Àܾ×À» ¸Å¼öÀÎÀÌ ÀμöÇÔ.
¸Å°¢À¸·Î ¼³Á¤µÈ °ÍÀ¸·Î º¸´Â Áö»ó±Ç:
¡Ø¹Ì³³°ü¸®ºñ(°ø¿ë) Àμö¿©ºÎ¸¦ ÀÔÂû Àü¿¡ È®ÀÎÇϽñ⠹ٶø´Ï´Ù

 

Áö¿ªºÐ¼®

ÁöÇÏö¸í Á÷¼±°Å¸®

Çб³¸í ÀüÈ­¹øÈ£ ÁÖ¼Ò Á÷¼±°Å¸®

¹ý¿ø

¼­¿ïÁß¾ÓÁö¹æ¹ý¿ø (065-94)¼­¿ïƯº°½Ã ¼­Ãʱ¸ ¼­ÃÊÁß¾Ó·Î 157 (¼­Ãʵ¿)
´ëÇ¥ : 02)530-1114, ¾ß°£ : 02)530-1280/536-8003
°üÇÒÁö¿ª : Á¾·Î±¸, Áß±¸, °­³²±¸, ¼­Ãʱ¸, °ü¾Ç±¸, µ¿ÀÛ±¸

µî±â¼Ò ¼­¿ïÁß¾ÓÁö¹æ¹ý¿ø º»¿ø µî±â±¹ (´ëÇ¥:1544-0773, ÆÑ½º:(02)590-1881, ¼­¿ïƯº°½Ã ¼­Ãʱ¸ ¹ý¿ø·Î3±æ 14 (¼­Ãʵ¿ 1707-4))
¼¼¹«¼­ °ü¾Ç¼¼¹«¼­ (´ëÇ¥:02-2173-42, ÆÑ½º:02-2173-4269, ¼­¿ïƯº°½Ã °ü¾Ç±¸ ¹®¼º·Î 187(½Å¸²µ¿))

Àαٳ«ÂûÅë°è

±â°£ ¸Å°¢°Ç¼ö Æò±Õ°¨Á¤°¡
Æò±Õ¸Å°¢°¡
¸Å°¢°¡À²
Æò±ÕÀ¯Âû¼ö
3°³¿ù 15°Ç 240,133,333¿ø
198,151,301¿ø
83%
4.9ȸ
6°³¿ù 26°Ç 229,461,538¿ø
189,088,501¿ø
82%
4.5ȸ
12°³¿ù 42°Ç 283,882,817¿ø
237,244,994¿ø
85%
4ȸ


º» °æ¸ÅÁ¤º¸´Â ¹ý¿øÀÚ·á¿Í ÀÏÄ¡Çϵµ·Ï ÇÏ¿´À¸³ª ±Ç¸®»çÇ׺¯µ¿, ÀÔ·ÂÂø¿À µîÀÇ ¿øÀÎÀ¸·Î »ç½Ç°ú ´Ù¸¦ ¼ö ÀÖ½À´Ï´Ù. ÀÌ¿ë¾à°ü¿¡ ÀǰЏéÃ¥Á¶°ÇÀ¸·Î Á¦°øµÊÀ» ¾Ë¸®¸ç, °æ¸ÅÀÔÂû½Ã ¹Ýµå½Ã °ü·Ã °øºÎ¸¦ ÀçÈ®ÀÎÇϽñ⠹ٶø´Ï´Ù. º¸´Ù Æí¸®ÇÑ °æ¸ÅÁ¤º¸ Á¦°øÀ» À§ÇØ Áö¼ÓÀûÀ¸·Î °³¼±ÇϰڽÀ´Ï´Ù. ÀÌ¿ëÇØ Áּż­ °¨»çÇÕ´Ï´Ù.
°ü½É¹°°ÇÀ¸·Î µî·ÏÇÕ´Ï´Ù