89
´ä
´ë±¸Áö¹æ¹ý¿ø ¾Èµ¿Áö¿ø
 °¨Á¤°¡68,382,000 ¿ø
 ÃÖÀú°¡(49%) 33,507,000 ¿ø
 º¸Áõ±Ý(10%) 3,350,700 ¿ø
 Ã»±¸¾×41,771,898 ¿ø
°æ»óºÏµµ ¾Èµ¿½Ã ÀÏÁ÷¸é ±Í¹Ì¸® 1065-7
»ç°Ç¹øÈ£ 2024Ÿ°æ103666
°æ¸ÅÁ¾·ùºÎµ¿»êÀÓÀǰæ¸Å
¸Å°¢´ë»óÅäÁö¸Å°¢
¸Å°¢±âÀÏ    2026.01.05(¿ù) 10:00 ÀÔÂû 16ÀÏÀü    
ÅäÁö¸éÀû2,079.00§³(628.90 Æò)
°Ç¹°¸éÀû
乫/¼ÒÀ¯ÀÚÀ±OO / À±OO
ä±ÇÀÚ³²OOOOOOOO
±è¼ºÈÆ ´ëÇ¥ÀÌ»ç
°øÀÎÁß°³»ç, ºÎµ¿»ê°ø°æ¸Å»ç, ÇѾç´ëÇб³ Á¹¾÷
Àü) ÅÂÀÎÄÁ¼³ÆÃ(ÁÖ) ´ëÇ¥ÀÌ»ç
Àü) ¿©ÀÇÁֺε¿»êÁß°³¹ýÀÎ(ÁÖ) ´ëÇ¥ÀÌ»ç
Çö) ¿©ÀÇÁÖ°æ¸Å¹ýÀÎ ´ëÇ¥ÀÌ»ç
010-2371-3237
ÆäÀ̽ººÏ Æ®À§ÅÍ ±¸±Û+
īī¿À½ºÅ丮
īī¿ÀÅå sms¹®ÀÚº¸³»±â
 

±âÀϳ»¿ª

°æ°ú ³¯Â¥ Àú°¨ ÃÖÀú°¡ °á°ú
Á¢¼öÀÏ 2024-10-08 °æ¸ÅÁ¢¼ö
~2ÀÏ 
2024-10-10 °æ¸Å°³½Ã°áÁ¤
~83ÀÏ 
2024-12-30 ¹è´ç¿ä±¸Á¾±âÀÏ
~391ÀÏ 
2025-11-03 100%
68,382,000
À¯Âû
~426ÀÏ 
2025-12-08 70%
47,867,000
À¯Âû
~454ÀÏ 
2026-01-05 49%
33,507,000
ÁøÇà
¹°°Ç¸í¼¼¼­ ÇöȲÁ¶»ç¼­ ¹®°ÇÁ¢¼ö ¼Û´Þ³»¿ª

°¨Á¤Æò°¡ÇöȲ

¸ñ·Ï ÁÖ¼Ò ±¸Á¶/¿ëµµ/´ëÁö±Ç ¸éÀû ºñ°í
ÅäÁö
±Í¹Ì¸® 1065-7 ´ä 2010 §³
(608.03Æò)
±Í¹Ì¸® 1065-8 ´ä 69 §³
(20.87Æò)
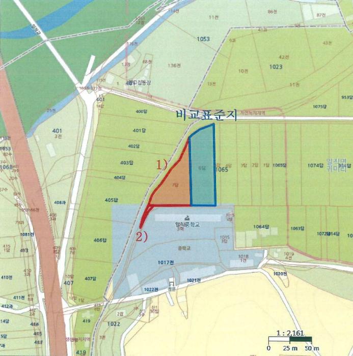
1) À§Ä¡/Á¦1Á¾ÀϹÝÁÖ°ÅÁö¿ª/»ý»ê³ìÁöÁö¿ª ´õº¸±â
°¨Á¤Æò°¡ ¿äÇ×Ç¥
1)À§Ä¡ ¹× ÁÖÀ§È¯°æ
º»°ÇÀº °æ»óºÏµµ ¾Èµ¿½Ã ÀÏÁ÷¸é ±Í¹Ì¸® "¼ÒÀç "ÀÏÁ÷ÁßÇб³" ºÏÃø Àαٿ¡ À§Ä¡Çϸç ÁÖÀ§
´Â ³ó°æÁö, ³ó°¡ÁÖÅÃ, ÀÓ¾ß µîÀ¸·Î ÀÌ·ç¾îÁ® ÀÖÀ½.
2)±³Åë»óȲ
º»°Ç ÀαٱîÁö Â÷·®Á¢±Ù °¡´ÉÇÏ¸ç ³ó°æÁö·Î¼­ÀÇ ±³Åë»çÁ¤Àº º¸ÅëÀÓ.
3)ÇüÅ ¹× ÀÌ¿ë»óÅÂ
°øÈ÷ ÀÚüÁö¹Ý ÆòźÇÑ ºÎÁ¤ÇüÀÇ ÅäÁö·Î¼­ ´äÀ¸·Î ÀÌ¿ëÁßÀÓ.
4)ÀÎÁ¢ µµ·Î»óÅÂ
±âÈ£1) ¸ÍÁöÀÓ.
±âÈ£2) ¼­Ãø ±¸°Å¸¦ °æÀ¯ÇÏ¿© Æø ¾à 2MÀÇ ³ó·Î¿Í ¿¬°áµÊ.
5)ÅäÁöÀÌ¿ë°èȹ ¹× Á¦ÇÑ»óÅÂ
±âÈ£1) »ý»ê³ìÁöÁö¿ª, °¡Ãà»çÀ°Á¦Çѱ¸¿ª, »ó´ëº¸È£±¸¿ª, ³ó¾÷ÁøÈﱸ¿ª
±âÈ£2) Á¦1Á¾ÀϹÝÁÖ°ÅÁö¿ª, °¡Ãà»çÀ°Á¦Çѱ¸¿ª, »ó´ëº¸È£±¸¿ª, Àý´ëº¸È£±¸¿ªÀÓ.
6)Á¦½Ã¸ñ·Ï ¿ÜÀÇ ¹°°Ç
-
7)°øºÎ¿ÍÀÇ Â÷ÀÌ
-
8)±âŸÂü°í»çÇ×(ÀÓ´ë°ü·Ê ¹× ±âŸ)
ÀÓ´ë°ü°è µîÀº ¹Ì»óÀÓ.
Âü°í
»çÇ×
Àϰý¸Å°¢. ¸ñ·Ï 1Àº ³óÁöÃëµæÀÚ°ÝÁõ¸í ¿äÇÔ(¹ÌÁ¦Ãâ½Ã ¸Å¼ö½Åûº¸Áõ±Ý ¹Ì¹Ýȯ).


±¹ÅäºÎ½Ç°Å·¡°¡ °æ»óºÏµµ ¾Èµ¿½Ã ÀÏÁ÷¸é

°è¾àÀÏÁö¸ñ¿ëµµÁö¿ªµµ·Î°è¾à¸éÀû±Ý¾×±¸ºÐ
25.11.26ÀӾ߻ý»ê°ü¸®-559346,181
25.11.25´ä³ó¸²8m¹Ì¸¸16534,000
25.11.25´ä³ó¸²8m¹Ì¸¸5201,570
25.11.25´ä¿ëµµ¹ÌÁöÁ¤8m¹Ì¸¸2580
25.11.18Àüº¸Àü°ü¸®8m¹Ì¸¸12976,200
¢Ñ ´õº¸±â

µî±âºÎµîº» ¿ä¾à(ÅäÁö)

  Á¢¼öÀÏÀÚ µî±â¸ñÀû/±Ç¸®ÀÚ ±Ç¸®±Ý¾× ±âÁØ
1 2022³â7¿ù26ÀÏ
¼ÒÀ¯±Ç
˱OO
¼Ò¸ê
2 2022³â10¿ù14ÀÏ
±ÙÀú´ç±Ç
³²OOOO
48,000,000 ¼Ò¸ê±âÁØ
3 2024³â10¿ù10ÀÏ
ÀÓÀǰæ¸Å
³²OOOO
¼Ò¸ê

ÀÓÂ÷ÀÎÇöȲ (¹è´ç¿ä±¸Á¾±âÀÏ: 2024-12-30)


Á¶»çµÈ ÀÓÂ÷³»¿ªÀÌ ¾ø½À´Ï´Ù


¿©ÀÇÁÖ°æ¸Å Á¶¾ð ÇÑ ¸¶µð

³«Âû ÈÄ¿¡ µî±âºÎ»ó ¼Ò¸êµÇÁö ¾Ê´Â ±Ç¸®´Â ¾ø½À´Ï´Ù.
´ë·«ÀûÀÎ °ËÅäÀǰßÀ̹ǷΠÀÔÂûÀü¿¡ Àü¹®°¡ÀÇ Á¶¾ðÀ» Âü°íÇØ º¸½Ã±æ ±ÇÇØµå¸³´Ï´Ù.
³óÁöÃëµæÀÚ°ÝÁõ¸í¿ø Á¦ÃâÀ» Á¶°ÇÀ¸·Î ÇÏ´Â ¹°°ÇÀÔ´Ï´Ù.
°¨Á¤ ½ÃÁ¡ÀÌ ¿À·¡µÇ¾î °¡°Ýº¯µ¿ÀÌ ÀÖÀ» ¼ö ÀÖ½À´Ï´Ù.
ÀÌ ¹°°ÇÀº 2024³â 10¿ù 10ÀÏ¿¡ °æ¸Å°¡ °³½ÃµÇ¾ú´Âµ¥ Áö±Ý ½ÃÁ¡À¸·Î ¾à 436ÀÏÀÌ ÀÌ °æ°úµÇ¾ú½À´Ï´Ù. °¨Á¤°¡°ÝÀº 436ÀÏ Àü ½ÃÁ¡¿¡¼­ Æò°¡ÇÑ °¡°ÝÀ̹ǷΠ±× »çÀÌ °¡°Ýº¯µ¿ÀÌ ÀÖÀ» ¼ö ÀÖ½À´Ï´Ù. ƯÈ÷ °¡°Ý º¯µ¿ÀÌ ½ÉÇÑ ¾ÆÆÄÆ®´Â À¯ÀÇÇÏ¼Å¾ß ÇÕ´Ï´Ù. °¨Á¤°¡°ÝÀ» ³Ê¹« ¹ÏÁö ¸¶½Ã°í ÇöÀç ½Ç¸Å¹° °¡°Ý°ú ½Ç°Å·¡°¡¸¦ È®ÀÎÇϽñ⠹ٶø´Ï´Ù.
°£È¤ °¨Á¤°¡°Ýº¸´Ù ³ô°Ô ³«ÂûµÇ´Â °æ¿ì°¡ Àִµ¥ ´ëºÎºÐ ÀÌ·± ÀÌÀ¯ÀÔ´Ï´Ù.
¡Ø ¹°°Ç Ű¿öµå : ÁÖ°ÅÁö¿ª/³ìÁöÁö¿ª/Á¦1Á¾ÀϹÝÁÖ°ÅÁö¿ª/»ý»ê³ìÁöÁö¿ª
Àüü ÄÁ¼³ÆÃÀÌ ºÎ´ã½º·¯¿ì½Å°¡¿ä? ±Ç¸®ºÐ¼®¸¸ ÀÇ·ÚÇϼŵµ ±¦Âú½À´Ï´Ù!
½Ç¼Ó ÀÖ°Ô Çٽɸ¸ ´ãÀº ±Ç¸®ºÐ¼® ¼­ºñ½º!! (±Ç¸®ºÐ¼® + ½Ã¼¼Á¶»ç + ³«Âû°¡ »êÁ¤ + ÀÔÂûÇ¥ ÀÛ¼º¹æ¹ý ±îÁö)
ÃÖ´ë Àüü ÄÁ¼³ÆÃ ºñ¿ëÀÇ 10% ¼öÁØ !!

ÁÖÀÇ»çÇ× (ÃÖ¼±¼øÀ§ ¼³Á¤ÀÏ: 2022. 10. 14. ±ÙÀú´ç±Ç ¼³Á¤)

¸Å°¢À¸·Î ¼Ò¸êµÇÁö ¾Ê´Â µî±âºÎ±Ç¸®:
¸Å°¢À¸·Î ¼³Á¤µÈ °ÍÀ¸·Î º¸´Â Áö»ó±Ç:
Àϰý¸Å°¢. ¸ñ·Ï 1Àº ³óÁöÃëµæÀÚ°ÝÁõ¸í ¿äÇÔ(¹ÌÁ¦Ãâ½Ã ¸Å¼ö½Åûº¸Áõ±Ý ¹Ì¹Ýȯ).
¡Ø¹Ì³³°ü¸®ºñ(°ø¿ë) Àμö¿©ºÎ¸¦ ÀÔÂû Àü¿¡ È®ÀÎÇϽñ⠹ٶø´Ï´Ù

 

Áö¿ªºÐ¼®

ÁöÇÏö¸í Á÷¼±°Å¸®

Çб³¸í ÀüÈ­¹øÈ£ ÁÖ¼Ò Á÷¼±°Å¸®

¹ý¿ø

´ë±¸Áö¹æ¹ý¿ø ¾Èµ¿Áö¿ø (367-52)°æ»óºÏµµ ¾Èµ¿½Ã °­³²·Î 304 (Á¤Çϵ¿ 235-1)
´ëÇ¥ : 054)850-5090
°üÇÒÁö¿ª : ¾Èµ¿½Ã, ¿µÁÖ½Ã, ºÀÈ­±º

µî±â¼Ò ´ë±¸Áö¹æ¹ý¿ø ¾Èµ¿Áö¿ø µî±â°è (´ëÇ¥:1544-0773, ÆÑ½º:(054)859-8619, 8620, °æºÏ ¾Èµ¿½Ã °­³²·Î 304 (Á¤Çϵ¿ 235-1))
¼¼¹«¼­ ¾Èµ¿¼¼¹«¼­ (´ëÇ¥:054-851-02, ÆÑ½º:054-859-6177, °æ»óºÏµµ ¾Èµ¿½Ã ¼­µ¿¹®·Î 208)

Àαٳ«ÂûÅë°è

±â°£ ¸Å°¢°Ç¼ö Æò±Õ°¨Á¤°¡
Æò±Õ¸Å°¢°¡
¸Å°¢°¡À²
Æò±ÕÀ¯Âû¼ö
3°³¿ù 31°Ç 103,822,835¿ø
45,462,430¿ø
52%
3.2ȸ
6°³¿ù 38°Ç 127,055,046¿ø
50,983,003¿ø
49%
3.3ȸ
12°³¿ù 72°Ç 113,236,198¿ø
48,078,003¿ø
50%
2.9ȸ


º» °æ¸ÅÁ¤º¸´Â ¹ý¿øÀÚ·á¿Í ÀÏÄ¡Çϵµ·Ï ÇÏ¿´À¸³ª ±Ç¸®»çÇ׺¯µ¿, ÀÔ·ÂÂø¿À µîÀÇ ¿øÀÎÀ¸·Î »ç½Ç°ú ´Ù¸¦ ¼ö ÀÖ½À´Ï´Ù. ÀÌ¿ë¾à°ü¿¡ ÀǰЏéÃ¥Á¶°ÇÀ¸·Î Á¦°øµÊÀ» ¾Ë¸®¸ç, °æ¸ÅÀÔÂû½Ã ¹Ýµå½Ã °ü·Ã °øºÎ¸¦ ÀçÈ®ÀÎÇϽñ⠹ٶø´Ï´Ù. º¸´Ù Æí¸®ÇÑ °æ¸ÅÁ¤º¸ Á¦°øÀ» À§ÇØ Áö¼ÓÀûÀ¸·Î °³¼±ÇϰڽÀ´Ï´Ù. ÀÌ¿ëÇØ Áּż­ °¨»çÇÕ´Ï´Ù.
°ü½É¹°°ÇÀ¸·Î µî·ÏÇÕ´Ï´Ù