72
¿ÀÇǽºÅÚ
ÀÇÁ¤ºÎÁö¹æ¹ý¿ø °í¾çÁö¿ø
 °¨Á¤°¡107,000,000 ¿ø
 ÃÖÀú°¡(49%) 52,430,000 ¿ø
 º¸Áõ±Ý(10%) 5,243,000 ¿ø
 Ã»±¸¾×98,498,459 ¿ø
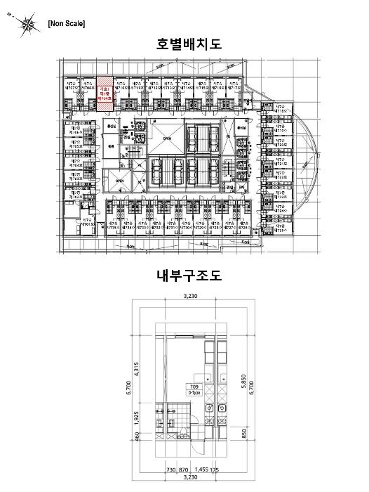
°æ±âµµ ÆÄÁֽà ±ÝÁ¤28±æ 30, 7Ãþ709È£ (±ÝÃ̵¿,±ÝÃ̾Ƹ£Á¨)
°æ±âµµ ÆÄÁֽà ±ÝÃ̵¿ 59-19
»ç°Ç¹øÈ£ 2024Ÿ°æ86184
°æ¸ÅÁ¾·ùºÎµ¿»ê°­Á¦°æ¸Å
¸Å°¢´ë»óÅäÁö ¹× °Ç¹°Àϰý ¸Å°¢
¸Å°¢±âÀÏ    2026.01.14(¼ö) 10:00 ÀÔÂû 37ÀÏÀü    
ÅäÁö¸éÀû5.09§³(1.54 Æò)
°Ç¹°¸éÀû19.05§³(5.76 Æò)
乫/¼ÒÀ¯ÀÚÀ¯OO / À¯OO
ä±ÇÀÚÁÖOOOOOOO
±è¼ºÈÆ ´ëÇ¥ÀÌ»ç
°øÀÎÁß°³»ç, ºÎµ¿»ê°ø°æ¸Å»ç, ÇѾç´ëÇб³ Á¹¾÷
Àü) ÅÂÀÎÄÁ¼³ÆÃ(ÁÖ) ´ëÇ¥ÀÌ»ç
Àü) ¿©ÀÇÁֺε¿»êÁß°³¹ýÀÎ(ÁÖ) ´ëÇ¥ÀÌ»ç
Çö) ¿©ÀÇÁÖ°æ¸Å¹ýÀÎ ´ëÇ¥ÀÌ»ç
010-2371-3237
ÆäÀ̽ººÏ Æ®À§ÅÍ ±¸±Û+
īī¿À½ºÅ丮
īī¿ÀÅå sms¹®ÀÚº¸³»±â
 

±âÀϳ»¿ª

°æ°ú ³¯Â¥ Àú°¨ ÃÖÀú°¡ °á°ú
Á¢¼öÀÏ 2024-11-27 °æ¸ÅÁ¢¼ö
~1ÀÏ 
2024-11-28 °æ¸Å°³½Ã°áÁ¤
~89ÀÏ 
2025-02-24 ¹è´ç¿ä±¸Á¾±âÀÏ
~336ÀÏ 
2025-10-29 100%
107,000,000
À¯Âû
~371ÀÏ 
2025-12-03 70%
74,900,000
À¯Âû
~413ÀÏ 
2026-01-14 49%
52,430,000
ÁøÇà
¹°°Ç¸í¼¼¼­ ÇöȲÁ¶»ç¼­ ¹®°ÇÁ¢¼ö ¼Û´Þ³»¿ª

°¨Á¤Æò°¡ÇöȲ

¸ñ·Ï ÁÖ¼Ò ±¸Á¶/¿ëµµ/´ëÁö±Ç ¸éÀû ºñ°í
´ëÁö±Ç
±ÝÃ̵¿ 59-19 2508ºÐÀÇ 5.087 5.087 §³
(1.54Æò)
°Ç¹°
±ÝÃ̵¿ 59-19 7Ãþ709È£ ö±ÙÄÜÅ©¸®Æ®±¸Á¶ 19.05 §³
(5.76Æò)
1) À§Ä¡/µµ½ÃÁö¿ª/ÀϹݻó¾÷Áö¿ª/¹ö½ºÁ¤·ùÀå/ö±ÙÄÜÅ©¸®Æ®±¸Á¶ ´õº¸±â
°¨Á¤Æò°¡ ¿äÇ×Ç¥
1)À§Ä¡ ¹× ÁÖÀ§È¯°æ
´ë»ó¹°°ÇÀº °æ±âµµ ÆÄÁֽà ±ÝÃ̵¿ ¼ÒÀ硸±ÝÃÌ¿ª(°æÀÇÁß¾Ó)¡¹³²¼­Ãø Àαٿ¡ À§Ä¡Çϸç, ÀαÙÀº ¾ÆÆÄÆ® ´ÜÁö, ±Ù¸°»ýȰ½Ã¼³ ¹× ¿ÀÇǽºÅÚ µîÀÌ ¼ÒÀçÇÏ´Â Áö¿ªÀ¸·Î ÁÖÀ§ ȯ°æÀº º¸ÅëÀÓ
2)±³Åë»óȲ
´ë»ó¹°°Ç±îÁö Â÷·® ÁøÃâÀÔÀÌ °¡´ÉÇϸç, Àαٿ¡ ¹ö½ºÁ¤·ùÀå ¹× ±ÝÃÌ¿ª(°æÀÇÁß¾Ó)ÀÌ ¼ÒÀç ÇÏ´Â µî ±³Åë»óȲÀº º¸ÅëÀÓ
3)°Ç¹°ÀÇ ±¸Á¶
ö±ÙÄÜÅ©¸®Æ®±¸Á¶ (ö±Ù)ÄÜÅ©¸®Æ®ÁöºØ Áö»ó 18Ãþ °Ç¹°·Î¼­ Á¦7Ãþ Á¦709È£ ÀÓ
(»ç¿ë½ÂÀÎÀÏ : 2020.07.17)
¿Üº® : ¸ôÅ»À§ ÆäÀÎÆÃ ¸¶°¨ µî
âȣ : »õ½Ã âȣ µî
4)ÀÌ¿ë»óÅÂ
ÁýÇÕ°ÇÃ๰´ëÀå»ó ¿ëµµ´Â ¡¸¾÷¹«½Ã¼³(¿ÀÇǽºÅÚ)¡¹ ÀÓ
5)¼³ºñ³»¿ª
À§»ý ¹× ±Þ¹è¼ö ¼³ºñ, E/V¼³ºñ, ¼Ò¹æ¼³ºñ µî µÇ¾î ÀÖÀ½



6)ÅäÁöÀÇ Çü»ó ¹× ÀÌ¿ë»óÅÂ
ÀÎÁ¢µµ·Î ¹× ÀÎÁ¢ÅäÁö¿Í µî°í ÆòźÇÑ ºÎÁ¤Çü ÅäÁöÀ̸ç, Á¦1Á¾,2Á¾±Ù¸°»ýȰ½Ã¼³, ¾÷¹«½Ã¼³, °øµ¿ÁÖÅà °ÇºÎÁö·Î ÀÌ¿ëÁßÀÓ
7)ÀÎÁ¢ µµ·Î»óŵî
´ë»ó¹°°ÇÀÌ ¼ÓÇÑ ÅäÁö ºÏ¼­ÃøÀ¸·Î ³ëÆø ¾à 8m ³»¿ÜÀÇ Æ÷Àåµµ·Î¿Í Á¢ÇÔ
8)ÅäÁöÀÌ¿ë°èȹ ¹× Á¦ÇÑ»óÅÂ
µµ½ÃÁö¿ª, ÀϹݻó¾÷Áö¿ª, ¼Ò·Î2·ù(Æø 8m-10m)(Á¢ÇÕ)

°¡Ãà»çÀ°Á¦Çѱ¸¿ª(ÀüºÎÁ¦ÇÑ)<°¡ÃàºÐ´¢ÀÇ °ü¸® ¹× À̿뿡 °üÇÑ ¹ý·ü>
9)°øºÎ¿ÍÀÇ Â÷ÀÌ
¾øÀ½
10)±âŸÂü°í»çÇ×(ÀÓ´ë°ü·Ê ¹× ±âŸ)
ÀÓ´ë°ü°è µî ¹Ì»óÀÓ
Âü°í
»çÇ×
1.ÁýÇÕ°ÇÃ๰´ëÀå»ó ¿ëµµ´Â ¾÷¹«½Ã¼³(¿ÀÇǽºÅÚ)ÀÓ. 2.ÁÖÅõµ½Ãº¸Áõ°ø»ç(Àü:ÀÓÂ÷ÀÎÀÓÇü¼·)°¡ ¡®ÀÓÂ÷º¸Áõ±Ý¿¡ ´ëÇÏ¿© ¿ì¼±º¯Á¦±Ç¸¸ ÁÖÀåÇÏ°í ´ëÇ×·ÂÀº Æ÷±âÇϸç, Àü¾×À» º¯Á¦¹ÞÁö ¸øÇÏ´õ¶óµµ ÀÓÂ÷±Çµî±â¸¦ ¸»¼ÒÇØ ÁÖ°Ú´Ù.¡¯´Â ³»¿ëÀÇ È®¾à¼­(2025.08.01.ÀÚ)¸¦ Á¦Ãâ.
- ö±ÙÄÜÅ©¸®Æ®±¸Á¶ (ö±Ù)ÄÜÅ©¸®Æ®ÁöºØ 18Ãþ Á¦1Á¾2Á¾±Ù¸°»ýȰ½Ã¼³ ¾÷¹«½Ã¼³ °øµ¿ÁÖÅÃ

°ÇÃ๰ÇöȲ

¼ÒÀçÁö °æ±âµµ ÆÄÁֽà ±ÝÃ̵¿ 59-19¹øÁö
´ëÁö¸éÀû 2508§³
(760Æò)
¿¬¸éÀû 22448.579§³
(6802.6Æò)
°ÇÃà¸éÀû 1748.57§³
(529.87Æò)
¿ëÀû·ü»êÁ¤
¿¬¸éÀû
14447.286§³
(4377.97Æò)
°ÇÆóÀ² 69.72% ¿ëÀû·ü 576.05%
Áö»óÃþ¼ö 18Ãþ ÁöÇÏÃþ¼ö 1Ãþ
ÁÖ¿ëµµ ¾÷¹«½Ã¼³ ±¸Á¶ ö±ÙÄÜÅ©¸®Æ®±¸Á¶
Âø°øÀÏÀÚ 2018.09.17 »ç¿ë½ÂÀÎÀÏÀÚ 2020.07.17
°ÇÃ๰Ãþº°ÇöȲ [º¸±â]


±¹ÅäºÎ½Ç°Å·¡°¡ °æ±âµµ ÆÄÁֽà ±ÝÃ̵¿

¡Ü ¸Å¸Å

¸éÀû(§³), ±Ý¾×(¸¸¿ø)

¡Ü Àü¼¼

¸éÀû(§³), ±Ý¾×(¸¸¿ø)

°è¾àÀϰǹ°¸íĪÃþÀü¿ëº¸Áõ±Ý¿ù¼¼°ÇÃà
25.11.26±ÝÃÌ ¾Æ¸£Á¨919.058,2002020
25.11.25±ÝÃÌ ¾Æ¸£Á¨1018.048,1002020
25.11.24±ÝÃÌ ¾Æ¸£Á¨1519.057,70002020
25.11.17±ÝÃÌ ¾Æ¸£Á¨718.56500502020
25.11.14±ÝÃÌ ¾Æ¸£Á¨1518.041,000422020
¢Ñ ´õº¸±â

µî±âºÎµîº» ¿ä¾à(°Ç¹°)

  Á¢¼öÀÏÀÚ µî±â¸ñÀû/±Ç¸®ÀÚ ±Ç¸®±Ý¾× ±âÁØ
1 2020³â9¿ù1ÀÏ
¼ÒÀ¯±Ç
À¯OO
¼Ò¸ê
2 2022³â12¿ù8ÀÏ
¾àÁ¤/±ÝÁö»çÇ×/ȯ¸ÅƯ¾à
Àμö
3 2024³â2¿ù16ÀÏ
ÀÓÂ÷±Ç¼³Á¤
ÀÓOO
95,000,000 Àμö
4 2024³â6¿ù13ÀÏ
°¡¾Ð·ù
¼­OOOO
11,804,966 ¼Ò¸ê±âÁØ
5 2024³â11¿ù28ÀÏ
°­Á¦°æ¸Å
ÁÖOOOO
¼Ò¸ê

ÀÓÂ÷ÀÎÇöȲ (¹è´ç¿ä±¸Á¾±âÀÏ: 2025-02-24)

ÀÓÂ÷ÀÎ ¿ëµµ/Á¡À¯ º¸Áõ±Ý/¿ù¼¼ ´ëÇ×·Â
ÀüÀÔÀÏ/È®Á¤ÀÏ ¹è´ç¿ä±¸ ºñ°í
ÀÓOO ÀüºÎ 95,000,000
O
2022.02.09.
2022.02.08.
2022.02.07.~
ºñ°í
(¸Å°¢¹°°Ç
¸í¼¼¼­)
ÀÓÇü¼·:ÁÖÅÃÀÓÂ÷±Çµî±â±ÇÀڷμ­ ÁÖÅÃÀÓÂ÷±Çµî±âÀÏÀº 2024.02.16.ÀÓ. ÁÖÅõµ½Ãº¸Áõ°ø»ç(ÀÓÂ÷ÀÎ ÀÓÇü¼·): °æ¸Å½Åûä±ÇÀÚ·Î ÀÓÂ÷ÀÎÀÇ ÀÓÂ÷º¸Áõ±Ý¹Ýȯä±Ç ¾ç¼öÀÎÀÓ(´ëÇ׷¹׿켱º¯Á¦±Ç ½Â°è).

¿©ÀÇÁÖ°æ¸Å Á¶¾ð ÇÑ ¸¶µð

¸Å°¢¹°°Ç¸í¼¼ ºñ°í³­¿¡ ±âÀçµÈ ³»¿ëÀÔ´Ï´Ù.
ÀÓÇü¼·:ÁÖÅÃÀÓÂ÷±Çµî±â±ÇÀڷμ­ ÁÖÅÃÀÓÂ÷±Çµî±âÀÏÀº 2024.02.16.ÀÓ. ÁÖÅõµ½Ãº¸Áõ°ø»ç(ÀÓÂ÷ÀÎ ÀÓÇü¼·): °æ¸Å½Åûä±ÇÀÚ·Î ÀÓÂ÷ÀÎÀÇ ÀÓÂ÷º¸Áõ±Ý¹Ýȯä±Ç ¾ç¼öÀÎÀÓ(´ëÇ׷¹׿켱º¯Á¦±Ç ½Â°è).
³«Âû ÈÄ¿¡ µî±âºÎ»ó ¼Ò¸êµÇÁö ¾Ê´Â ±Ç¸®´Â ¾ø½À´Ï´Ù.
´ë·«ÀûÀÎ °ËÅäÀǰßÀ̹ǷΠÀÔÂûÀü¿¡ Àü¹®°¡ÀÇ Á¶¾ðÀ» Âü°íÇØ º¸½Ã±æ ±ÇÇØµå¸³´Ï´Ù.
¼±¼øÀ§ ÀÓÂ÷±Çµî±â°¡ µÇ¾î ÀÖ½À´Ï´Ù.
°¨Á¤ ½ÃÁ¡ÀÌ ¿À·¡µÇ¾î °¡°Ýº¯µ¿ÀÌ ÀÖÀ» ¼ö ÀÖ½À´Ï´Ù.
ÀÌ ¹°°ÇÀº 2024³â 11¿ù 28ÀÏ¿¡ °æ¸Å°¡ °³½ÃµÇ¾ú´Âµ¥ Áö±Ý ½ÃÁ¡À¸·Î ¾à 375ÀÏÀÌ ÀÌ °æ°úµÇ¾ú½À´Ï´Ù. °¨Á¤°¡°ÝÀº 375ÀÏ Àü ½ÃÁ¡¿¡¼­ Æò°¡ÇÑ °¡°ÝÀ̹ǷΠ±× »çÀÌ °¡°Ýº¯µ¿ÀÌ ÀÖÀ» ¼ö ÀÖ½À´Ï´Ù. ƯÈ÷ °¡°Ý º¯µ¿ÀÌ ½ÉÇÑ ¾ÆÆÄÆ®´Â À¯ÀÇÇÏ¼Å¾ß ÇÕ´Ï´Ù. °¨Á¤°¡°ÝÀ» ³Ê¹« ¹ÏÁö ¸¶½Ã°í ÇöÀç ½Ç¸Å¹° °¡°Ý°ú ½Ç°Å·¡°¡¸¦ È®ÀÎÇϽñ⠹ٶø´Ï´Ù.
°£È¤ °¨Á¤°¡°Ýº¸´Ù ³ô°Ô ³«ÂûµÇ´Â °æ¿ì°¡ Àִµ¥ ´ëºÎºÐ ÀÌ·± ÀÌÀ¯ÀÔ´Ï´Ù.
¡Ø ¹°°Ç Ű¿öµå : µµ½ÃÁö¿ª/»ó¾÷Áö¿ª/ÀϹݻó¾÷Áö¿ª/¹ö½ºÁ¤·ùÀå/ö±ÙÄÜÅ©¸®Æ®±¸Á¶
Àüü ÄÁ¼³ÆÃÀÌ ºÎ´ã½º·¯¿ì½Å°¡¿ä? ±Ç¸®ºÐ¼®¸¸ ÀÇ·ÚÇϼŵµ ±¦Âú½À´Ï´Ù!
½Ç¼Ó ÀÖ°Ô Çٽɸ¸ ´ãÀº ±Ç¸®ºÐ¼® ¼­ºñ½º!! (±Ç¸®ºÐ¼® + ½Ã¼¼Á¶»ç + ³«Âû°¡ »êÁ¤ + ÀÔÂûÇ¥ ÀÛ¼º¹æ¹ý ±îÁö)
ÃÖ´ë Àüü ÄÁ¼³ÆÃ ºñ¿ëÀÇ 10% ¼öÁØ !!

ÁÖÀÇ»çÇ× (ÃÖ¼±¼øÀ§ ¼³Á¤ÀÏ: 2024.06.13. °¡¾Ð·ù ¼³Á¤)

¸Å°¢À¸·Î ¼Ò¸êµÇÁö ¾Ê´Â µî±âºÎ±Ç¸®:
¸Å°¢À¸·Î ¼³Á¤µÈ °ÍÀ¸·Î º¸´Â Áö»ó±Ç:
1.ÁýÇÕ°ÇÃ๰´ëÀå»ó ¿ëµµ´Â ¾÷¹«½Ã¼³(¿ÀÇǽºÅÚ)ÀÓ. 2.ÁÖÅõµ½Ãº¸Áõ°ø»ç(Àü:ÀÓÂ÷ÀÎÀÓÇü¼·)°¡ ¡®ÀÓÂ÷º¸Áõ±Ý¿¡ ´ëÇÏ¿© ¿ì¼±º¯Á¦±Ç¸¸ ÁÖÀåÇÏ°í ´ëÇ×·ÂÀº Æ÷±âÇϸç, Àü¾×À» º¯Á¦¹ÞÁö ¸ø ÇÏ´õ¶óµµ ÀÓÂ÷±Çµî±â¸¦ ¸»¼ÒÇØ ÁÖ°Ú´Ù.¡¯´Â ³»¿ëÀÇ È®¾à¼­(2025.08.01.ÀÚ)¸¦ Á¦Ãâ.
¡Ø¹Ì³³°ü¸®ºñ(°ø¿ë) Àμö¿©ºÎ¸¦ ÀÔÂû Àü¿¡ È®ÀÎÇϽñ⠹ٶø´Ï´Ù

 

Áö¿ªºÐ¼®

ÁöÇÏö¸í Á÷¼±°Å¸®

Çб³¸í ÀüÈ­¹øÈ£ ÁÖ¼Ò Á÷¼±°Å¸®

¹ý¿ø

ÀÇÁ¤ºÎÁö¹æ¹ý¿ø °í¾çÁö¿ø (104-13)°æ±âµµ °í¾ç½Ã Àϻ굿±¸ Àå¹é·Î 209
´ëÇ¥ : 031)920-6114, ¾ß°£ : 031)920-6550, ÆÑ½º : 031)920-6119
°üÇÒÁö¿ª : °í¾ç½Ã, ÆÄÁÖ½Ã

µî±â¼Ò ÀÇÁ¤ºÎÁö¹æ¹ý¿ø °í¾çÁö¿ø ÆÄÁÖµî±â¼Ò (´ëÇ¥:1544-0773, ÆÑ½º:(031)945-4764, 3628, °æ±âµµ ÆÄÁֽà ±ÝÁ¤·Î 45 (±ÝÃ̵¿ 947-28))
¼¼¹«¼­ ÆÄÁÖ¼¼¹«¼­ (´ëÇ¥:031-956-02, ÆÑ½º:031-957-0315, °æ±âµµ ÆÄÁֽà ±Ý¸ª¿ª·Î 62 (±ÝÃ̵¿))

Àαٳ«ÂûÅë°è

±â°£ ¸Å°¢°Ç¼ö Æò±Õ°¨Á¤°¡
Æò±Õ¸Å°¢°¡
¸Å°¢°¡À²
Æò±ÕÀ¯Âû¼ö
3°³¿ù 8°Ç 173,375,000¿ø
78,447,588¿ø
43%
4.4ȸ
6°³¿ù 16°Ç 168,562,500¿ø
83,140,718¿ø
48%
3.3ȸ
12°³¿ù 23°Ç 161,782,609¿ø
79,070,982¿ø
49%
3ȸ


º» °æ¸ÅÁ¤º¸´Â ¹ý¿øÀÚ·á¿Í ÀÏÄ¡Çϵµ·Ï ÇÏ¿´À¸³ª ±Ç¸®»çÇ׺¯µ¿, ÀÔ·ÂÂø¿À µîÀÇ ¿øÀÎÀ¸·Î »ç½Ç°ú ´Ù¸¦ ¼ö ÀÖ½À´Ï´Ù. ÀÌ¿ë¾à°ü¿¡ ÀǰЏéÃ¥Á¶°ÇÀ¸·Î Á¦°øµÊÀ» ¾Ë¸®¸ç, °æ¸ÅÀÔÂû½Ã ¹Ýµå½Ã °ü·Ã °øºÎ¸¦ ÀçÈ®ÀÎÇϽñ⠹ٶø´Ï´Ù. º¸´Ù Æí¸®ÇÑ °æ¸ÅÁ¤º¸ Á¦°øÀ» À§ÇØ Áö¼ÓÀûÀ¸·Î °³¼±ÇϰڽÀ´Ï´Ù. ÀÌ¿ëÇØ Áּż­ °¨»çÇÕ´Ï´Ù.
°ü½É¹°°ÇÀ¸·Î µî·ÏÇÕ´Ï´Ù