1224
´Ù¼¼´ë(ºô¶ó)
ÀÇÁ¤ºÎÁö¹æ¹ý¿ø °í¾çÁö¿ø
 °¨Á¤°¡236,000,000 ¿ø
 ÃÖÀú°¡(34%) 80,948,000 ¿ø
 º¸Áõ±Ý(10%) 8,094,800 ¿ø
 Ã»±¸¾×245,000,000 ¿ø
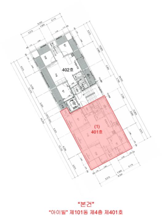
°æ±âµµ °í¾ç½Ã ´ö¾ç±¸ ³»À¯±æ 51, 101µ¿ 4Ãþ401È£ (³»À¯µ¿,¾ÆÀ̺ô)
°æ±âµµ °í¾ç½Ã ´ö¾ç±¸ ³»À¯µ¿ 272-16
»ç°Ç¹øÈ£ 2024Ÿ°æ80841
°æ¸ÅÁ¾·ùºÎµ¿»ê°­Á¦°æ¸Å
¸Å°¢´ë»óÅäÁö ¹× °Ç¹°Àϰý ¸Å°¢
¸Å°¢±âÀÏ    2026.02.25(¼ö) 10:00    
ÅäÁö¸éÀû70.31§³(21.27 Æò)
°Ç¹°¸éÀû61.69§³(18.66 Æò)
乫/¼ÒÀ¯ÀÚ±èOO / ±èOO
ä±ÇÀÚ±èOO
±è¼ºÈÆ ´ëÇ¥ÀÌ»ç
°øÀÎÁß°³»ç, ºÎµ¿»ê°ø°æ¸Å»ç, ÇѾç´ëÇб³ Á¹¾÷
Àü) ÅÂÀÎÄÁ¼³ÆÃ(ÁÖ) ´ëÇ¥ÀÌ»ç
Àü) ¿©ÀÇÁֺε¿»êÁß°³¹ýÀÎ(ÁÖ) ´ëÇ¥ÀÌ»ç
Çö) ¿©ÀÇÁÖ°æ¸Å¹ýÀÎ ´ëÇ¥ÀÌ»ç
010-2371-3237
ÆäÀ̽ººÏ Æ®À§ÅÍ ±¸±Û+
īī¿À½ºÅ丮
īī¿ÀÅå sms¹®ÀÚº¸³»±â
 

±âÀϳ»¿ª

°æ°ú ³¯Â¥ Àú°¨ ÃÖÀú°¡ °á°ú
Á¢¼öÀÏ 2024-09-19 °æ¸ÅÁ¢¼ö
~1ÀÏ 
2024-09-20 °æ¸Å°³½Ã°áÁ¤
~88ÀÏ 
2024-12-16 ¹è´ç¿ä±¸Á¾±âÀÏ
~405ÀÏ 
2025-10-29 100%
236,000,000
À¯Âû
~440ÀÏ 
2025-12-03 70%
165,200,000
À¯Âû
~482ÀÏ 
2026-01-14 49%
115,640,000
À¯Âû
~524ÀÏ 
2026-02-25 34%
80,948,000
À¯Âû
¹°°Ç¸í¼¼¼­ ÇöȲÁ¶»ç¼­ ¹®°ÇÁ¢¼ö ¼Û´Þ³»¿ª

°¨Á¤Æò°¡ÇöȲ

¸ñ·Ï ÁÖ¼Ò ±¸Á¶/¿ëµµ/´ëÁö±Ç ¸éÀû ºñ°í
´ëÁö±Ç
³»À¯µ¿ 272-16 1125ºÐÀÇ 70.3125 70.3125 §³
(21.27Æò)
°Ç¹°
³»À¯µ¿ 272-16 101µ¿ 4Ãþ401È£ ö±ÙÄÜÅ©¸®Æ®±¸Á¶ 61.692 §³
(18.66Æò)
 
1) À§Ä¡/µµ½ÃÁö¿ª/°èȹ°ü¸®Áö¿ª/¹ö½ºÁ¤·ùÀå/ö±ÙÄÜÅ©¸®Æ®±¸Á¶/°æ»çÁöºØ ´õº¸±â
°¨Á¤Æò°¡ ¿äÇ×Ç¥
1)À§Ä¡ ¹× ÁÖÀ§È¯°æ
º»°ÇÀº °æ±âµµ °í¾ç½Ã ´ö¾ç±¸ ³»À¯µ¿ ¼ÒÀç "³»À¯1µ¿ ¸¶À»È¸°ü" ³²¼­Ãø Àαٿ¡ À§Ä¡Çϸç, ÀαÙÁö¿ªÀº ´Ù¼¼´ëÁÖÅÃ, ±Ù¸°»ýȰ½Ã¼³, Çб³ µîÀÌ ¼ÒÀçÇϸç Á¦¹Ý ÁÖÀ§È¯°æÀº º¸ÅëÀÓ.

2)±³Åë»óȲ
º»°ÇÀÌ ¼ÒÀçÇÏ´Â °Ç¹°±îÁö Â÷·® ÁøÃâÀÔÀÌ °¡´ÉÇϸç, Àαٿ¡ ¹ö½ºÁ¤·ùÀå µîÀÌ ¼ÒÀçÇÏ´Â µî ´ëÁß±³Åë »çÁ¤Àº º¸ÅëÀÓ.

3)°Ç¹°ÀÇ ±¸Á¶
ö±ÙÄÜÅ©¸®Æ®±¸Á¶ ö±ÙÄÜÅ©¸®Æ®(°æ»çÁöºØ) Áö»ó4Ãþ ÁöÇÏ1Ãþ °Ç¹° ³» Á¦101µ¿ Á¦4Ãþ Á¦401È£·Î¼­,
(»ç¿ë½ÂÀÎÀÏ : 2016.08.09)
¿Ü º® : Ä¡À庮µ¹ ºÙÀÓ ¸¶°¨ µî,
â È£ : ÇáÀ̼¦½Ãâȣ ¸¶°¨ µîÀÓ.

4)ÀÌ¿ë»óÅÂ
°øµ¿ÁÖÅÃ(´Ù¼¼´ëÁÖÅÃ)À¸·Î ÀÌ¿ë ÁßÀÓ.

5)¼³ºñ³»¿ª
º»°ÇÀº À§»ý¼³ºñ, ±Þ¹è¼ö½Ã¼³, ³­¹æ½Ã¼³, ½Â°­±â¼³ºñ µîÀ» °®Ãß¾úÀ½.
6)ÅäÁöÀÇ Çü»ó ¹× ÀÌ¿ë»óÅÂ
º»°ÇÀº ÀÎÁ¢µµ·Î ´ëºñ µî°íÆòźÇÑ ¼¼ÀåÇüÀÇ ÅäÁö·Î¼­, °ÇºÎÁö[°øµ¿ÁÖÅÃ(´Ù¼¼´ëÁÖÅÃ)]·Î ÀÌ¿ë ÁßÀÓ.

7)ÀÎÁ¢ µµ·Î»óŵî
º»°ÇÀº ³²µ¿ÃøÀ¸·Î ³ëÆø ¾à 8¹ÌÅÍ ³»¿ÜÀÇ Æ÷Àåµµ·Î¿¡ Á¢ÇÔ.

8)ÅäÁöÀÌ¿ë°èȹ ¹× Á¦ÇÑ»óÅÂ
°èȹ°ü¸®Áö¿ª(2015-08-04), ¼ºÀå°ü¸®°èȹ±¸¿ª(»ê¾÷zone), °¡Ãà»çÀ°Á¦Çѱ¸¿ª(2019-11-29)(µµ½ÃÁö¿ª[ÁÖ°Å,»ó¾÷,°ø¾÷,³ìÁö(ÀÚ¿¬Ãë¶ôÁö±¸)]¹×ÁְŹÐÁýÁö¿ª50m³»)<°¡ÃàºÐ´¢ÀÇ °ü¸® ¹× À̿뿡 °üÇÑ ¹ý·ü>, °ú¹Ð¾ïÁ¦±Ç¿ª<¼öµµ±ÇÁ¤ºñ°èȹ¹ý>ÀÓ.

9)°øºÎ¿ÍÀÇ Â÷ÀÌ
¾ø À½.

10)±âŸÂü°í»çÇ×(ÀÓ´ë°ü·Ê ¹× ±âŸ)
¹Ì »ó ÀÓ.
Âü°í
»çÇ×

1. °Ç¹°Àº ö±ÙÄÜÅ©¸®Æ®±¸Á¶ ö±ÙÄÜÅ©¸®Æ®(°æ»çÁöºØ) ÁöÇÏ1Ãþ Áö»ó4Ãþ °øµ¿ÁÖÅÃ(´Ù¼¼´ëÁÖÅÃ)ÀÓ. 2. ½Â°­±â¸¦ ÅëÇØ ÀüÀ¯ºÎºÐÀ» ÃâÀÔÇÒ ¼ö ÀÖÀ½.

°ÇÃ๰ÇöȲ

¼ÒÀçÁö °æ±âµµ °í¾ç½Ã ´ö¾ç±¸ ³»À¯µ¿ 272-16¹øÁö
´ëÁö¸éÀû 1125§³
(340.91Æò)
¿¬¸éÀû 636.676§³
(192.93Æò)
°ÇÃà¸éÀû 203.323§³
(61.61Æò)
¿ëÀû·ü»êÁ¤
¿¬¸éÀû
560.688§³
(169.91Æò)
°ÇÆóÀ² 18.07% ¿ëÀû·ü 49.84%
Áö»óÃþ¼ö 4Ãþ ÁöÇÏÃþ¼ö 1Ãþ
ÁÖ¿ëµµ °øµ¿ÁÖÅà ±¸Á¶ ö±ÙÄÜÅ©¸®Æ®±¸Á¶
Âø°øÀÏÀÚ 2016.01.14 »ç¿ë½ÂÀÎÀÏÀÚ 2016.08.09
°ÇÃ๰Ãþº°ÇöȲ [º¸±â]


µî±âºÎµîº» ¿ä¾à(°Ç¹°)

  Á¢¼öÀÏÀÚ µî±â¸ñÀû/±Ç¸®ÀÚ ±Ç¸®±Ý¾× ±âÁØ
1 2021³â6¿ù8ÀÏ
¼ÒÀ¯±Ç
±èOO
¼Ò¸ê
2 2024³â9¿ù20ÀÏ
°­Á¦°æ¸Å
±èOO
¼Ò¸ê±âÁØ

ÀÓÂ÷ÀÎÇöȲ (¹è´ç¿ä±¸Á¾±âÀÏ: 2024-12-16)

ÀÓÂ÷ÀÎ ¿ëµµ/Á¡À¯ º¸Áõ±Ý/¿ù¼¼ ´ëÇ×·Â
ÀüÀÔÀÏ/È®Á¤ÀÏ ¹è´ç¿ä±¸ ºñ°í
ÀÌOO
O
2021.05.13.
 
ºñ°í
(¸Å°¢¹°°Ç
¸í¼¼¼­)

¿©ÀÇÁÖ°æ¸Å Á¶¾ð ÇÑ ¸¶µð

¸Å°¢¹°°Ç¸í¼¼ ºñ°í³­¿¡ ±âÀçµÈ ³»¿ëÀÔ´Ï´Ù.
1. ½Åûä±ÇÀÚ ±è°Ç¿µÀº ÀÓÂ÷ÀÎ ÀÌâ¼·ÀÇ ÀÚ³à·Î µ¿ÀÏ ¼¼´ë³» °ÅÁÖÇÔ 2. ½Åûä±ÇÀÚ ±è°Ç¿µÀº ¹è´ç¿ä±¸ÇÏÁö ¾Ê¾ÒÀ¸³ª, º»°Ç °æ¸Å½ÅûÀ¸·Î º°µµÀÇ ¹è´ç¿ä±¸ ¾øÀ̵µ ÈļøÀ§Ã¤±ÇÀÚº¸´Ù ¿ì¼± ¹è´ç¹ÞÀ½. 3. ÀÓÂ÷º¸Áõ±Ý Àü¾×(±Ý245,000,000¿ø)À» ¹è´ç¹ÞÁö ¸øÇÒ °æ¿ì, ³ª¸ÓÁö Àܾ׿¡ ´ëÇÏ¿© ¸Å¼öÀÎÀÌ ÀμöÇÔ.
³«Âû ÈÄ¿¡ µî±âºÎ»ó ¼Ò¸êµÇÁö ¾Ê´Â ±Ç¸®´Â ¾ø½À´Ï´Ù.
´ë·«ÀûÀÎ °ËÅäÀǰßÀ̹ǷΠÀÔÂûÀü¿¡ Àü¹®°¡ÀÇ Á¶¾ðÀ» Âü°íÇØ º¸½Ã±æ ±ÇÇØµå¸³´Ï´Ù.
°¨Á¤ ½ÃÁ¡ÀÌ ¿À·¡µÇ¾î °¡°Ýº¯µ¿ÀÌ ÀÖÀ» ¼ö ÀÖ½À´Ï´Ù.
ÀÌ ¹°°ÇÀº 2024³â 9¿ù 20ÀÏ¿¡ °æ¸Å°¡ °³½ÃµÇ¾ú´Âµ¥ Áö±Ý ½ÃÁ¡À¸·Î ¾à 543ÀÏÀÌ ÀÌ °æ°úµÇ¾ú½À´Ï´Ù. °¨Á¤°¡°ÝÀº 543ÀÏ Àü ½ÃÁ¡¿¡¼­ Æò°¡ÇÑ °¡°ÝÀ̹ǷΠ±× »çÀÌ °¡°Ýº¯µ¿ÀÌ ÀÖÀ» ¼ö ÀÖ½À´Ï´Ù. ƯÈ÷ °¡°Ý º¯µ¿ÀÌ ½ÉÇÑ ¾ÆÆÄÆ®´Â À¯ÀÇÇÏ¼Å¾ß ÇÕ´Ï´Ù. °¨Á¤°¡°ÝÀ» ³Ê¹« ¹ÏÁö ¸¶½Ã°í ÇöÀç ½Ç¸Å¹° °¡°Ý°ú ½Ç°Å·¡°¡¸¦ È®ÀÎÇϽñ⠹ٶø´Ï´Ù.
°£È¤ °¨Á¤°¡°Ýº¸´Ù ³ô°Ô ³«ÂûµÇ´Â °æ¿ì°¡ Àִµ¥ ´ëºÎºÐ ÀÌ·± ÀÌÀ¯ÀÔ´Ï´Ù.
¡Ø ¹°°Ç Ű¿öµå : µµ½ÃÁö¿ª/°ü¸®Áö¿ª/°èȹ°ü¸®Áö¿ª/¹ö½ºÁ¤·ùÀå/ö±ÙÄÜÅ©¸®Æ®±¸Á¶/°æ»çÁöºØ
Àüü ÄÁ¼³ÆÃÀÌ ºÎ´ã½º·¯¿ì½Å°¡¿ä? ±Ç¸®ºÐ¼®¸¸ ÀÇ·ÚÇϼŵµ ±¦Âú½À´Ï´Ù!
½Ç¼Ó ÀÖ°Ô Çٽɸ¸ ´ãÀº ±Ç¸®ºÐ¼® ¼­ºñ½º!! (±Ç¸®ºÐ¼® + ½Ã¼¼Á¶»ç + ³«Âû°¡ »êÁ¤ + ÀÔÂûÇ¥ ÀÛ¼º¹æ¹ý ±îÁö)
ÃÖ´ë Àüü ÄÁ¼³ÆÃ ºñ¿ëÀÇ 10% ¼öÁØ !!

ÁÖÀÇ»çÇ× (ÃÖ¼±¼øÀ§ ¼³Á¤ÀÏ: 2024.09.20. °æ¸Å°³½Ã°áÁ¤ ¼³Á¤)

¸Å°¢À¸·Î ¼Ò¸êµÇÁö ¾Ê´Â µî±âºÎ±Ç¸®:
¸Å°¢À¸·Î ¼³Á¤µÈ °ÍÀ¸·Î º¸´Â Áö»ó±Ç:
¡Ø¹Ì³³°ü¸®ºñ(°ø¿ë) Àμö¿©ºÎ¸¦ ÀÔÂû Àü¿¡ È®ÀÎÇϽñ⠹ٶø´Ï´Ù

 

Áö¿ªºÐ¼®

ÁöÇÏö¸í Á÷¼±°Å¸®

Çб³¸í ÀüÈ­¹øÈ£ ÁÖ¼Ò Á÷¼±°Å¸®

¹ý¿ø

ÀÇÁ¤ºÎÁö¹æ¹ý¿ø °í¾çÁö¿ø (104-13)°æ±âµµ °í¾ç½Ã Àϻ굿±¸ Àå¹é·Î 209
´ëÇ¥ : 031)920-6114, ¾ß°£ : 031)920-6550, ÆÑ½º : 031)920-6119
°üÇÒÁö¿ª : °í¾ç½Ã, ÆÄÁÖ½Ã

µî±â¼Ò ÀÇÁ¤ºÎÁö¹æ¹ý¿ø °í¾çÁö¿ø °í¾çµî±â¼Ò (´ëÇ¥:1544-0773, ÆÑ½º:(031)920-5959, °æ±âµµ °í¾ç½Ã Àϻ굿±¸ Áß¾Ó·Î1275¹ø±æ 38-30 (ÀåÇ×µ¿ 773))
¼¼¹«¼­ µ¿°í¾ç¼¼¹«¼­ (´ëÇ¥:031-900-62, ÆÑ½º:031-963-2979, °æ±âµµ °í¾ç½Ã ´ö¾ç±¸ È­Áß·Î 104¹ø±æ 16(È­Á¤µ¿))

Àαٳ«ÂûÅë°è

±â°£ ¸Å°¢°Ç¼ö Æò±Õ°¨Á¤°¡
Æò±Õ¸Å°¢°¡
¸Å°¢°¡À²
Æò±ÕÀ¯Âû¼ö


º» °æ¸ÅÁ¤º¸´Â ¹ý¿øÀÚ·á¿Í ÀÏÄ¡Çϵµ·Ï ÇÏ¿´À¸³ª ±Ç¸®»çÇ׺¯µ¿, ÀÔ·ÂÂø¿À µîÀÇ ¿øÀÎÀ¸·Î »ç½Ç°ú ´Ù¸¦ ¼ö ÀÖ½À´Ï´Ù. ÀÌ¿ë¾à°ü¿¡ ÀǰЏéÃ¥Á¶°ÇÀ¸·Î Á¦°øµÊÀ» ¾Ë¸®¸ç, °æ¸ÅÀÔÂû½Ã ¹Ýµå½Ã °ü·Ã °øºÎ¸¦ ÀçÈ®ÀÎÇϽñ⠹ٶø´Ï´Ù. º¸´Ù Æí¸®ÇÑ °æ¸ÅÁ¤º¸ Á¦°øÀ» À§ÇØ Áö¼ÓÀûÀ¸·Î °³¼±ÇϰڽÀ´Ï´Ù. ÀÌ¿ëÇØ Áּż­ °¨»çÇÕ´Ï´Ù.
°ü½É¹°°ÇÀ¸·Î µî·ÏÇÕ´Ï´Ù