64
¿ÀÇǽºÅÚ
¼­¿ï³²ºÎÁö¹æ¹ý¿ø
 °¨Á¤°¡251,000,000 ¿ø
 ÃÖÀú°¡(64%) 160,640,000 ¿ø
 º¸Áõ±Ý(10%) 16,064,000 ¿ø
 Ã»±¸¾×231,250,000 ¿ø
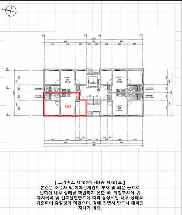
¼­¿ïƯº°½Ã ¾çõ±¸ ½Å¿ùµ¿ 131-2 ±×¶óºñ½º Á¦102µ¿ Á¦4Ãþ Á¦401È£
»ç°Ç¹øÈ£ 2025Ÿ°æ9808
°æ¸ÅÁ¾·ùºÎµ¿»ê°­Á¦°æ¸Å
¸Å°¢´ë»óÅäÁö ¹× °Ç¹°Àϰý ¸Å°¢
¸Å°¢±âÀÏ    2026.01.20(È­) 10:00 ÀÔÂû 42ÀÏÀü    
ÅäÁö¸éÀû14.41§³(4.36 Æò)
°Ç¹°¸éÀû29.65§³(8.97 Æò)
乫/¼ÒÀ¯ÀÚÀÌOO / ÀÌOO
ä±ÇÀÚ±èOO
±è¼ºÈÆ ´ëÇ¥ÀÌ»ç
°øÀÎÁß°³»ç, ºÎµ¿»ê°ø°æ¸Å»ç, ÇѾç´ëÇб³ Á¹¾÷
Àü) ÅÂÀÎÄÁ¼³ÆÃ(ÁÖ) ´ëÇ¥ÀÌ»ç
Àü) ¿©ÀÇÁֺε¿»êÁß°³¹ýÀÎ(ÁÖ) ´ëÇ¥ÀÌ»ç
Çö) ¿©ÀÇÁÖ°æ¸Å¹ýÀÎ ´ëÇ¥ÀÌ»ç
010-2371-3237
ÆäÀ̽ººÏ Æ®À§ÅÍ ±¸±Û+
īī¿À½ºÅ丮
īī¿ÀÅå sms¹®ÀÚº¸³»±â
 

±âÀϳ»¿ª

°æ°ú ³¯Â¥ Àú°¨ ÃÖÀú°¡ °á°ú
Á¢¼öÀÏ 2025-04-24 °æ¸ÅÁ¢¼ö
~1ÀÏ 
2025-04-25 °æ¸Å°³½Ã°áÁ¤
~95ÀÏ 
2025-07-28 ¹è´ç¿ä±¸Á¾±âÀÏ
~181ÀÏ 
2025-10-22 100%
251,000,000
À¯Âû
~215ÀÏ 
2025-11-25 80%
200,800,000
À¯Âû
~271ÀÏ 
2026-01-20 64%
160,640,000
ÁøÇà
¹°°Ç¸í¼¼¼­ ÇöȲÁ¶»ç¼­ ¹®°ÇÁ¢¼ö ¼Û´Þ³»¿ª

°¨Á¤Æò°¡ÇöȲ

¸ñ·Ï ÁÖ¼Ò ±¸Á¶/¿ëµµ/´ëÁö±Ç ¸éÀû ºñ°í
´ëÁö±Ç
½Å¿ùµ¿ 131-2 1055.6ºÐÀÇ 14.41 14.41 §³
(4.36Æò)
°Ç¹°
½Å¿ùµ¿ 131-2 Á¦102µ¿ Á¦4Ãþ Á¦401È£ ö±ÙÄÜÅ©¸®Æ®±¸Á¶ 29.65 §³
(8.97Æò)

°ÇÃ๰ÇöȲ

¼ÒÀçÁö ¼­¿ïƯº°½Ã ¾çõ±¸ ½Å¿ùµ¿ 131-2¹øÁö
´ëÁö¸éÀû 1055.6§³
(319.88Æò)
¿¬¸éÀû 1353.29§³
(410.09Æò)
°ÇÃà¸éÀû 151.42§³
(45.88Æò)
¿ëÀû·ü»êÁ¤
¿¬¸éÀû
1272.07§³
(385.48Æò)
°ÇÆóÀ² 14.34% ¿ëÀû·ü 120.51%
Áö»óÃþ¼ö 11Ãþ ÁöÇÏÃþ¼ö 1Ãþ
ÁÖ¿ëµµ ¾÷¹«½Ã¼³ ±¸Á¶ ö±ÙÄÜÅ©¸®Æ®±¸Á¶
Âø°øÀÏÀÚ 2017.12.19 »ç¿ë½ÂÀÎÀÏÀÚ 2018.12.17
°ÇÃ๰Ãþº°ÇöȲ [º¸±â]


±¹ÅäºÎ½Ç°Å·¡°¡ ¼­¿ïƯº°½Ã ¾çõ±¸ ½Å¿ùµ¿

¡Ü ¸Å¸Å

¸éÀû(§³), ±Ý¾×(¸¸¿ø)

¡Ü Àü¼¼

¸éÀû(§³), ±Ý¾×(¸¸¿ø)

°è¾àÀϰǹ°¸íĪÃþÀü¿ëº¸Áõ±Ý¿ù¼¼°ÇÃà
25.08.04±×¶óºñ½º429.6517,19002018
25.07.04±×¶óºñ½º429.6517,19002018
25.06.04±×¶óºñ½º829.65420602018
25.05.21±×¶óºñ½º829.65720602018
24.01.22±×¶óºñ½º329.6519,00002018

µî±âºÎµîº» ¿ä¾à(°Ç¹°)

  Á¢¼öÀÏÀÚ µî±â¸ñÀû/±Ç¸®ÀÚ ±Ç¸®±Ý¾× ±âÁØ
1 2019³â10¿ù24ÀÏ
¼ÒÀ¯±Ç
ÀÌOO
¼Ò¸ê
2 2022³â12¿ù6ÀÏ
¾àÁ¤/±ÝÁö»çÇ×/ȯ¸ÅƯ¾à
Àμö
3 2023³â2¿ù1ÀÏ
¾Ð·ù
±¹
¼Ò¸ê±âÁØ
4 2024³â4¿ù30ÀÏ
ÀÓÂ÷±Ç¼³Á¤
±èOO
208,000,000 ¼Ò¸ê
5 2025³â4¿ù28ÀÏ
°­Á¦°æ¸Å
±èOO
¼Ò¸ê

ÀÓÂ÷ÀÎÇöȲ (¹è´ç¿ä±¸Á¾±âÀÏ: 2025-07-28)

ÀÓÂ÷ÀÎ ¿ëµµ/Á¡À¯ º¸Áõ±Ý/¿ù¼¼ ´ëÇ×·Â
ÀüÀÔÀÏ/È®Á¤ÀÏ ¹è´ç¿ä±¸ ºñ°í
±èOO ÀüºÎ 208,000,000
O
2022.04.29.
2022.03.22.
2025.5.14. 2022.04.29.~
ºñ°í
(¸Å°¢¹°°Ç
¸í¼¼¼­)
±èµµÇö:°æ¸Å½Åûä±ÇÀÚÀÓ

¿©ÀÇÁÖ°æ¸Å Á¶¾ð ÇÑ ¸¶µð

¸Å°¢¹°°Ç¸í¼¼ ºñ°í³­¿¡ ±âÀçµÈ ³»¿ëÀÔ´Ï´Ù.
±èµµÇö:°æ¸Å½Åûä±ÇÀÚÀÓ
³«Âû ÈÄ¿¡ µî±âºÎ»ó ¼Ò¸êµÇÁö ¾Ê´Â ±Ç¸®ÀÔ´Ï´Ù.
¸Å¼öÀο¡°Ô ´ëÇ×ÇÒ ¼ö ÀÖ´Â ÁÖÅÃÀÓÂ÷±Çµî±â(2024.04.30. Á¢¼ö ÀÓÂ÷ÀÎ ±èµµÇö)´Â ÀÓÂ÷º¸Áõ±ÝÀÌ Àü¾× º¯Á¦µÇÁö ¾Æ´ÏÇÏ¸é ¸»¼ÒµÇ Áö ¾Æ´ÏÇÔ
¼±¼øÀ§ ÀÓÂ÷±Çµî±â°¡ µÇ¾î ÀÖ½À´Ï´Ù.
Àüü ÄÁ¼³ÆÃÀÌ ºÎ´ã½º·¯¿ì½Å°¡¿ä? ±Ç¸®ºÐ¼®¸¸ ÀÇ·ÚÇϼŵµ ±¦Âú½À´Ï´Ù!
½Ç¼Ó ÀÖ°Ô Çٽɸ¸ ´ãÀº ±Ç¸®ºÐ¼® ¼­ºñ½º!! (±Ç¸®ºÐ¼® + ½Ã¼¼Á¶»ç + ³«Âû°¡ »êÁ¤ + ÀÔÂûÇ¥ ÀÛ¼º¹æ¹ý ±îÁö)
ÃÖ´ë Àüü ÄÁ¼³ÆÃ ºñ¿ëÀÇ 10% ¼öÁØ !!

ÁÖÀÇ»çÇ× (ÃÖ¼±¼øÀ§ ¼³Á¤ÀÏ: 2023.02.01. ¾Ð·ù ¼³Á¤)

¸Å°¢À¸·Î ¼Ò¸êµÇÁö ¾Ê´Â µî±âºÎ±Ç¸®: ¸Å¼öÀο¡°Ô ´ëÇ×ÇÒ ¼ö ÀÖ´Â ÁÖÅÃÀÓÂ÷±Çµî±â(2024.04.30. Á¢¼ö ÀÓÂ÷ÀÎ ±èµµÇö)´Â ÀÓÂ÷º¸Áõ±ÝÀÌ Àü¾× º¯Á¦µÇÁö ¾Æ´ÏÇÏ¸é ¸»¼ÒµÇ Áö ¾Æ´ÏÇÔ
¸Å°¢À¸·Î ¼³Á¤µÈ °ÍÀ¸·Î º¸´Â Áö»ó±Ç:
¡Ø¹Ì³³°ü¸®ºñ(°ø¿ë) Àμö¿©ºÎ¸¦ ÀÔÂû Àü¿¡ È®ÀÎÇϽñ⠹ٶø´Ï´Ù

 

Áö¿ªºÐ¼®

ÁöÇÏö¸í Á÷¼±°Å¸®

Çб³¸í ÀüÈ­¹øÈ£ ÁÖ¼Ò Á÷¼±°Å¸®

¹ý¿ø

¼­¿ï³²ºÎÁö¹æ¹ý¿ø (080-88)¼­¿ïƯº°½Ã ¾çõ±¸ ½Å¿ù·Î 386(½ÅÁ¤µ¿)
´ëÇ¥ : 02)2192-1114
°üÇÒÁö¿ª : ¿µµîÆ÷±¸, °­¼­±¸, ¾çõ±¸, ±¸·Î±¸, ±Ýõ±¸

µî±â¼Ò ¼­¿ï³²ºÎÁö¹æ¹ý¿ø º»¿ø µî±â±¹ (´ëÇ¥:1544-0773, ÆÑ½º:(02)2629-7307, ¼­¿ïƯº°½Ã ¿µµîÆ÷±¸ °æÀηΠ772 (¹®·¡µ¿ 1°¡))
¼¼¹«¼­ ¾çõ¼¼¹«¼­ (´ëÇ¥:02-2650-92, ÆÑ½º:02-2652-0058, ¼­¿ïƯº°½Ã ¾çõ±¸ ¸ñµ¿µ¿·Î 165 (½ÅÁ¤µ¿))

Àαٳ«ÂûÅë°è

±â°£ ¸Å°¢°Ç¼ö Æò±Õ°¨Á¤°¡
Æò±Õ¸Å°¢°¡
¸Å°¢°¡À²
Æò±ÕÀ¯Âû¼ö
3°³¿ù 2°Ç 326,500,000¿ø
245,872,560¿ø
73%
2ȸ
6°³¿ù 4°Ç 283,500,000¿ø
224,686,280¿ø
79%
1.5ȸ
12°³¿ù 4°Ç 283,500,000¿ø
224,686,280¿ø
79%
1.5ȸ


º» °æ¸ÅÁ¤º¸´Â ¹ý¿øÀÚ·á¿Í ÀÏÄ¡Çϵµ·Ï ÇÏ¿´À¸³ª ±Ç¸®»çÇ׺¯µ¿, ÀÔ·ÂÂø¿À µîÀÇ ¿øÀÎÀ¸·Î »ç½Ç°ú ´Ù¸¦ ¼ö ÀÖ½À´Ï´Ù. ÀÌ¿ë¾à°ü¿¡ ÀǰЏéÃ¥Á¶°ÇÀ¸·Î Á¦°øµÊÀ» ¾Ë¸®¸ç, °æ¸ÅÀÔÂû½Ã ¹Ýµå½Ã °ü·Ã °øºÎ¸¦ ÀçÈ®ÀÎÇϽñ⠹ٶø´Ï´Ù. º¸´Ù Æí¸®ÇÑ °æ¸ÅÁ¤º¸ Á¦°øÀ» À§ÇØ Áö¼ÓÀûÀ¸·Î °³¼±ÇϰڽÀ´Ï´Ù. ÀÌ¿ëÇØ Áּż­ °¨»çÇÕ´Ï´Ù.
°ü½É¹°°ÇÀ¸·Î µî·ÏÇÕ´Ï´Ù