84
´Ù¼¼´ë(ºô¶ó)
´ëÀüÁö¹æ¹ý¿ø ¼­»êÁö¿ø
 °¨Á¤°¡87,500,000 ¿ø
 ÃÖÀú°¡(49%) 42,875,000 ¿ø
 º¸Áõ±Ý(10%) 4,287,500 ¿ø
 Ã»±¸¾×40,771,043 ¿ø
ÃæÃ»³²µµ ¼­»ê½Ã ÀÎÁö¸é ¹«ÇзΠ1688-42, 1µ¿ 2Ãþ201È£
ÃæÃ»³²µµ ¼­»ê½Ã ÀÎÁö¸é ¾ß´ç¸® 553-144
»ç°Ç¹øÈ£ 2024Ÿ°æ59204
°æ¸ÅÁ¾·ùºÎµ¿»êÀÓÀǰæ¸Å
¸Å°¢´ë»óÅäÁö ¹× °Ç¹°Àϰý ¸Å°¢
¸Å°¢±âÀÏ    2025.12.23(È­) 10:00 ÀÔÂû 2ÀÏÀü    
ÅäÁö¸éÀû68.92§³(20.85 Æò)
°Ç¹°¸éÀû59.70§³(18.06 Æò)
乫/¼ÒÀ¯ÀÚÈ«OO / È«OO
ä±ÇÀÚÇÑOOOOOOO(OOOOOOOO OOOOOOOO)
±è¼ºÈÆ ´ëÇ¥ÀÌ»ç
°øÀÎÁß°³»ç, ºÎµ¿»ê°ø°æ¸Å»ç, ÇѾç´ëÇб³ Á¹¾÷
Àü) ÅÂÀÎÄÁ¼³ÆÃ(ÁÖ) ´ëÇ¥ÀÌ»ç
Àü) ¿©ÀÇÁֺε¿»êÁß°³¹ýÀÎ(ÁÖ) ´ëÇ¥ÀÌ»ç
Çö) ¿©ÀÇÁÖ°æ¸Å¹ýÀÎ ´ëÇ¥ÀÌ»ç
010-2371-3237
ÆäÀ̽ººÏ Æ®À§ÅÍ ±¸±Û+
īī¿À½ºÅ丮
īī¿ÀÅå sms¹®ÀÚº¸³»±â
 

±âÀϳ»¿ª

°æ°ú ³¯Â¥ Àú°¨ ÃÖÀú°¡ °á°ú
Á¢¼öÀÏ 2024-09-30 °æ¸ÅÁ¢¼ö
~2ÀÏ 
2024-10-02 °æ¸Å°³½Ã°áÁ¤
~95ÀÏ 
2025-01-03 ¹è´ç¿ä±¸Á¾±âÀÏ
~379ÀÏ 
2025-10-14 100%
87,500,000
À¯Âû
~414ÀÏ 
2025-11-18 70%
61,250,000
À¯Âû
~449ÀÏ 
2025-12-23 49%
42,875,000
ÁøÇà
¹°°Ç¸í¼¼¼­ ÇöȲÁ¶»ç¼­ ¹®°ÇÁ¢¼ö ¼Û´Þ³»¿ª

°¨Á¤Æò°¡ÇöȲ

¸ñ·Ï ÁÖ¼Ò ±¸Á¶/¿ëµµ/´ëÁö±Ç ¸éÀû ºñ°í
´ëÁö±Ç
¾ß´ç¸® 553-144 827ºÐÀÇ 68.9167 68.9167 §³
(20.85Æò)
°Ç¹°
¾ß´ç¸® 553-144 1µ¿ 2Ãþ201È£ ö±ÙÄÜÅ©¸®Æ®±¸Á¶ 59.7 §³
(18.06Æò)
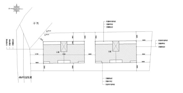
1) À§Ä¡/°èȹ°ü¸®Áö¿ª/¹ö½ºÁ¤·ùÀå/ö±ÙÄÜÅ©¸®Æ®±¸Á¶/½½·¡ºêÁöºØ/¹æ3 ´õº¸±â
°¨Á¤Æò°¡ ¿äÇ×Ç¥
1)À§Ä¡ ¹× ÁÖÀ§È¯°æ
º» °ÇÀº ¼­»ê½Ã ÀÎÁö¸é ¾ß´ç¸® ¼ÒÀç "ÀÎÁöÁßÇб³" ºÏµ¿Ãø Àαٿ¡ À§Ä¡Çϸç, ÁÖÀ§´Â º»°Ç°ú
À¯»çÇÑ ¼öÁØ ¹× ±Ô¸ðÀÇ ´Ù¼¼´ëÁÖÅÃ, ¾ÆÆÄÆ® ´ÜÁö, ±Ù¸°»ýȰ½Ã¼³, ´Üµ¶ÁÖÅà µîÀÌ È¥ÀçÇÏ´Â
Áö¿ªÀ¸·Î Á¦¹Ý ÁÖÀ§È¯°æÀº º¸Åë½ÃµÊ.
2)±³Åë»óȲ
º» °Ç ´ÜÁö±îÁö Â÷·® ÃâÀÔ °¡´ÉÇϸç, Àαٿ¡ ¹ö½ºÁ¤·ùÀåÀÌ ¼ÒÀçÇÏ´Â µî Á¦¹Ý ±³Åë»çÁ¤Àº
º¸Åë½ÃµÊ.
3)°Ç¹°ÀÇ ±¸Á¶
ö±ÙÄÜÅ©¸®Æ®±¸Á¶ ½½·¡ºêÁöºØ 4Ãþ °Ç¹°Áß 2Ãþ 201È£·Î¼­,
¿Üº®: ¼®ÀçºÙÀÓ ¸¶°¨ µî
³»º®: º®Áö¸¶°¨ µî
âȣ: »õ½Ãâȣ ¸¶°¨ µîÀÓ.
4)ÀÌ¿ë»óÅÂ
´Ù¼¼´ëÁÖÅÃ(°ÇÃ๰ÇöȲµµ¸é»ó ¹æ3, °Å½Ç°âÁÖ¹æ, È­Àå½Ç µîÀÇ ±¸Á¶ÀÓ)À¸·Î ÀÌ¿ëÁßÀÓ.
5)¼³ºñ³»¿ª
º¸Åë¼öÁØÀÇ À§»ý¼³ºñ ¹× ³­¹æ¼³ºñ µîÀÌ µÇ¾îÀÖÀ½.
6)ÅäÁöÀÇ Çü»ó ¹× ÀÌ¿ë»óÅÂ
º»°ÇÀÇ ´ëÁö±ÇÀÇ ¸ñÀûÀÌ µÇ´Â ÅäÁö´À ´ëü·Î ¼¼ÀåÇüÀÇ ÅäÁö·Î¼­, ´Ù¼¼´ëÁÖÅÃÀÇ ºÎÁö·Î ÀÌ¿ë
ÁßÀÓ.
7)ÀÎÁ¢ µµ·Î»óŵî
º» °Ç ºÏÃøÀ¸·Î Æø ¾à 6¹ÌÅÍ ³»¿ÜÀÇ Æ÷Àåµµ·Î¸¦ ÅëÇÏ¿© º» °Ç ´ÜÁö±îÁö ÃâÀÔ °¡´ÉÇÔ.
8)ÅäÁöÀÌ¿ë°èȹ ¹× Á¦ÇÑ»óÅÂ
º» °ÇÀÇ ´ëÁö±ÇÀÇ ¸ñÀûÀÌ µÇ´Â ÅäÁö´Â °èȹ°ü¸®Áö¿ª °¡Ãà»çÀ°Á¦Çѱ¸¿ª(200mÀϺÎÁ¦ÇÑ:¸ðµç
ÃàÁ¾ ºÒ°¡)<°¡ÃàºÐ´¢ÀÇ °ü¸® ¹× À̿뿡 °üÇÑ ¹ý·ü>, »ó´ëº¸È£±¸¿ª<±³À°È¯°æ º¸È£¿¡ °üÇÑ ¹ý
·ü>ÀÓ.
9)°øºÎ¿ÍÀÇ Â÷ÀÌ
º» °ÇÀº Á¦½Ã¸ñ·Ï ¹× µî±â»çÇ×ÀüºÎÁõ¸í¼­»ó Á¦1µ¿À¸·Î µîÀçµÇ¾î ÀÖÀ¸³ª, °Ç¹°¿Üº®¿¡´Â
"»ê¼öºô 3µ¿"À¸·Î Ç¥±âµÇ¾î ÀÖÀ½.
10)±âŸÂü°í»çÇ×(ÀÓ´ë°ü·Ê ¹× ±âŸ)
ÀÓ´ë°ü°è´Â ¹Ì»óÀÓ.
Âü°í
»çÇ×

¡Û ÀÎÁö¸é ÇàÁ¤º¹Áö¼¾ÅÍ µ¿ÂÊ¿¡ À§Ä¡ÇØ ÀÖ°í ¹«Çзθ¦ ÅëÇÏ¿© Â÷·® Á¢±ÙÀÌ ¾çÈ£Çϸç, ÀÎÁ¢ÇÑ ¾ß´ç¸® 553-27 Áö»ó¿¡ ¼ÒÀçÇÑ °øµ¿ÁÖÅà 2µ¿°ú º»°Ç(¾ß´ç¸® 553-144) Áö»ó¿¡ ¼ÒÀçÇÑ °øµ¿ÁÖÅà 2µ¿ÀÌ ÀÏ´ÜÀÇ ¡®»ê¼öºô¡¯ ´ÜÁö¸¦ ±¸¼ºÇϰí ÀÖÀ¸¸ç, º»°ÇÀÇ °øµ¿ÁÖÅà ¿Üº®¿¡´Â 1µ¿ÀÌ ¾Æ´Ñ ¡®»ê¼öºô 3¡¯À¸·Î Ç¥½ÃµÇ¾î ÀÖÀ¸³ª µ¡ºÙÀÎ °ÇÃ๰ÇöȲµµ¿Í °°ÀÌ Aµ¿À¸·Î Ç¥½ÃµÈ À§Ä¡¿¡ 3µ¿ÀÌ ¼ÒÀçÇϰí ÀÖ°í °øµ¿ ÃâÀÔ±¸¿¡µµ º»°Ç ÁÖ¼Ò ¹× µµ·Î¸í ÁÖ¼Ò¿Í ÀÏÄ¡ÇÏ´Â °øµ¿ÁÖÅÃÀ̶ó´Â ¾È³»¹®ÀÌ ºÎÂøµÇ¾î ÀÖ¾î À̸¦ ±âÁØÀ¸·Î ÇöȲÁ¶»ç¸¦ ÇÏ¿´À¸¹Ç·Î Âü°íÇϽñ⠹ٶ÷ ¡Û ÇöÁö¿¡ ¹æ¹®ÇÏ¿´À¸³ª ¾Æ¹«µµ ¸¸³ªÁö ¸øÇÏ¿´°í(Æó¹®ºÎÀç, ¾È³»¹® ºÎÂø), µ¡ºÙÀÎ ÀüÀÔ¼¼´ëÈ®Àμ­ µî°ú °°ÀÌ ¼¼´ëÁÖ·Î ¹ÚÁö¿µÀÌ ÀüÀԵǾî ÀÖ¾î ÀÏÀÀ ÀÓÂ÷ÀÎÀ¸·Î µî·ÏÇÏ¿´À¸¹Ç·Î ±× Á¡À¯°ü°è µîÀº º°µµÀÇ È®ÀÎÀÌ ÇÊ¿äÇÔ


±¹ÅäºÎ½Ç°Å·¡°¡ ÃæÃ»³²µµ ¼­»ê½Ã ÀÎÁö¸é

¡Ü ¸Å¸Å

¸éÀû(§³), ±Ý¾×(¸¸¿ø)

¡Ü Àü¼¼

¸éÀû(§³), ±Ý¾×(¸¸¿ø)

°è¾àÀϰǹ°¸íĪÃþ¿¬¸éÀû´ëÁö±Ý¾×°ÇÃà
24.03.29»ê¼öºô459.768.91664,9902014
24.01.16½Å¿øºô¶ó478.6362.15043,2001994

µî±âºÎµîº» ¿ä¾à(°Ç¹°)

  Á¢¼öÀÏÀÚ µî±â¸ñÀû/±Ç¸®ÀÚ ±Ç¸®±Ý¾× ±âÁØ
1 2014³â6¿ù26ÀÏ
¼ÒÀ¯±Ç
ȫOO
¼Ò¸ê
2 2016³â9¿ù9ÀÏ
±ÙÀú´ç±Ç
ÇÑOOOO
91,000,000 ¼Ò¸ê±âÁØ
3 2018³â1¿ù29ÀÏ
°¡¾Ð·ù
¼­OOOO
80,000,000 ¼Ò¸ê
4 2024³â10¿ù2ÀÏ
ÀÓÀǰæ¸Å
ȕOOOO
¼Ò¸ê

ÀÓÂ÷ÀÎÇöȲ (¹è´ç¿ä±¸Á¾±âÀÏ: 2025-01-03)

ÀÓÂ÷ÀÎ ¿ëµµ/Á¡À¯ º¸Áõ±Ý/¿ù¼¼ ´ëÇ×·Â
ÀüÀÔÀÏ/È®Á¤ÀÏ ¹è´ç¿ä±¸ ºñ°í
¹ÚOO º»°ÇÀüü ¹Ì»ó
[¿ù]¹Ì»ó
X
2023.11.10
¹Ì»ó
2023.11.10.~

¿©ÀÇÁÖ°æ¸Å Á¶¾ð ÇÑ ¸¶µð

³«Âû ÈÄ¿¡ µî±âºÎ»ó ¼Ò¸êµÇÁö ¾Ê´Â ±Ç¸®´Â ¾ø½À´Ï´Ù.
´ë·«ÀûÀÎ °ËÅäÀǰßÀ̹ǷΠÀÔÂûÀü¿¡ Àü¹®°¡ÀÇ Á¶¾ðÀ» Âü°íÇØ º¸½Ã±æ ±ÇÇØµå¸³´Ï´Ù.
°¨Á¤ ½ÃÁ¡ÀÌ ¿À·¡µÇ¾î °¡°Ýº¯µ¿ÀÌ ÀÖÀ» ¼ö ÀÖ½À´Ï´Ù.
ÀÌ ¹°°ÇÀº 2024³â 10¿ù 2ÀÏ¿¡ °æ¸Å°¡ °³½ÃµÇ¾ú´Âµ¥ Áö±Ý ½ÃÁ¡À¸·Î ¾à 445ÀÏÀÌ ÀÌ °æ°úµÇ¾ú½À´Ï´Ù. °¨Á¤°¡°ÝÀº 445ÀÏ Àü ½ÃÁ¡¿¡¼­ Æò°¡ÇÑ °¡°ÝÀ̹ǷΠ±× »çÀÌ °¡°Ýº¯µ¿ÀÌ ÀÖÀ» ¼ö ÀÖ½À´Ï´Ù. ƯÈ÷ °¡°Ý º¯µ¿ÀÌ ½ÉÇÑ ¾ÆÆÄÆ®´Â À¯ÀÇÇÏ¼Å¾ß ÇÕ´Ï´Ù. °¨Á¤°¡°ÝÀ» ³Ê¹« ¹ÏÁö ¸¶½Ã°í ÇöÀç ½Ç¸Å¹° °¡°Ý°ú ½Ç°Å·¡°¡¸¦ È®ÀÎÇϽñ⠹ٶø´Ï´Ù.
°£È¤ °¨Á¤°¡°Ýº¸´Ù ³ô°Ô ³«ÂûµÇ´Â °æ¿ì°¡ Àִµ¥ ´ëºÎºÐ ÀÌ·± ÀÌÀ¯ÀÔ´Ï´Ù.
¡Ø ¹°°Ç Ű¿öµå : °ü¸®Áö¿ª/°èȹ°ü¸®Áö¿ª/¹ö½ºÁ¤·ùÀå/ö±ÙÄÜÅ©¸®Æ®±¸Á¶/½½·¡ºêÁöºØ/¹æ3
Àüü ÄÁ¼³ÆÃÀÌ ºÎ´ã½º·¯¿ì½Å°¡¿ä? ±Ç¸®ºÐ¼®¸¸ ÀÇ·ÚÇϼŵµ ±¦Âú½À´Ï´Ù!
½Ç¼Ó ÀÖ°Ô Çٽɸ¸ ´ãÀº ±Ç¸®ºÐ¼® ¼­ºñ½º!! (±Ç¸®ºÐ¼® + ½Ã¼¼Á¶»ç + ³«Âû°¡ »êÁ¤ + ÀÔÂûÇ¥ ÀÛ¼º¹æ¹ý ±îÁö)
ÃÖ´ë Àüü ÄÁ¼³ÆÃ ºñ¿ëÀÇ 10% ¼öÁØ !!

ÁÖÀÇ»çÇ× (ÃÖ¼±¼øÀ§ ¼³Á¤ÀÏ: 2016.9.9.±ÙÀú´ç±Ç ¼³Á¤)

¸Å°¢À¸·Î ¼Ò¸êµÇÁö ¾Ê´Â µî±âºÎ±Ç¸®:
¸Å°¢À¸·Î ¼³Á¤µÈ °ÍÀ¸·Î º¸´Â Áö»ó±Ç:
¡Ø¹Ì³³°ü¸®ºñ(°ø¿ë) Àμö¿©ºÎ¸¦ ÀÔÂû Àü¿¡ È®ÀÎÇϽñ⠹ٶø´Ï´Ù

 

Áö¿ªºÐ¼®

ÁöÇÏö¸í Á÷¼±°Å¸®

Çб³¸í ÀüÈ­¹øÈ£ ÁÖ¼Ò Á÷¼±°Å¸®

¹ý¿ø

´ëÀüÁö¹æ¹ý¿ø ¼­»êÁö¿ø (319-88)ÃæÃ»³²µµ ¼­»ê½Ã °ø¸²4·Î 24 (¿¹Ãµµ¿ 600)
´ëÇ¥ : 041)660-0600, ¾ß°£ : 041)660-0725~6
°üÇÒÁö¿ª : ¼­»ê½Ã, ´çÁø½Ã, žȱº

µî±â¼Ò ´ëÀüÁö¹æ¹ý¿ø ¼­»êÁö¿ø µî±â°ú (´ëÇ¥:1544-0773, ÆÑ½º:(041)660-0719, Ãæ³² ¼­»ê½Ã °ø¸²4·Î 24 (¿¹Ãµµ¿ 600))
¼¼¹«¼­ ¼­»ê¼¼¹«¼­ (´ëÇ¥:041-660-92, ÆÑ½º:041-660-9259, ÃæÃ»³²µµ ¼­»ê½Ã ´öÁöõ·Î 145-6 (¼®¸²µ¿))

Àαٳ«ÂûÅë°è

±â°£ ¸Å°¢°Ç¼ö Æò±Õ°¨Á¤°¡
Æò±Õ¸Å°¢°¡
¸Å°¢°¡À²
Æò±ÕÀ¯Âû¼ö
3°³¿ù 21°Ç 144,094,048¿ø
119,240,498¿ø
76%
1.5ȸ
6°³¿ù 40°Ç 168,884,375¿ø
131,286,871¿ø
74%
1.8ȸ
12°³¿ù 78°Ç 198,217,628¿ø
141,321,324¿ø
74%
1.8ȸ


º» °æ¸ÅÁ¤º¸´Â ¹ý¿øÀÚ·á¿Í ÀÏÄ¡Çϵµ·Ï ÇÏ¿´À¸³ª ±Ç¸®»çÇ׺¯µ¿, ÀÔ·ÂÂø¿À µîÀÇ ¿øÀÎÀ¸·Î »ç½Ç°ú ´Ù¸¦ ¼ö ÀÖ½À´Ï´Ù. ÀÌ¿ë¾à°ü¿¡ ÀǰЏéÃ¥Á¶°ÇÀ¸·Î Á¦°øµÊÀ» ¾Ë¸®¸ç, °æ¸ÅÀÔÂû½Ã ¹Ýµå½Ã °ü·Ã °øºÎ¸¦ ÀçÈ®ÀÎÇϽñ⠹ٶø´Ï´Ù. º¸´Ù Æí¸®ÇÑ °æ¸ÅÁ¤º¸ Á¦°øÀ» À§ÇØ Áö¼ÓÀûÀ¸·Î °³¼±ÇϰڽÀ´Ï´Ù. ÀÌ¿ëÇØ Áּż­ °¨»çÇÕ´Ï´Ù.
°ü½É¹°°ÇÀ¸·Î µî·ÏÇÕ´Ï´Ù