62
´Ù¼¼´ë(ºô¶ó)
ÀÎõÁö¹æ¹ý¿ø
 °¨Á¤°¡53,000,000 ¿ø
 ÃÖÀú°¡(49%) 25,970,000 ¿ø
 º¸Áõ±Ý(10%) 2,597,000 ¿ø
 Ã»±¸¾×52,000,000 ¿ø
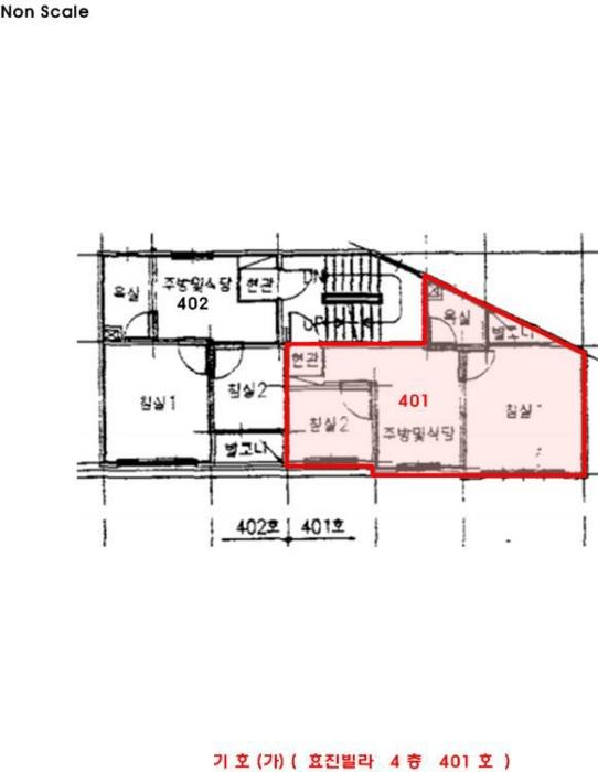
ÀÎõ±¤¿ª½Ã ³²µ¿±¸ ¿ëõ·Î 194-20, 4Ãþ401È£ (°£¼®µ¿,È¿Áøºô¶ó)
ÀÎõ±¤¿ª½Ã ³²µ¿±¸ °£¼®µ¿ 37-589
»ç°Ç¹øÈ£ 2024Ÿ°æ554836
°æ¸ÅÁ¾·ùºÎµ¿»ê°­Á¦°æ¸Å
¸Å°¢´ë»óÅäÁö ¹× °Ç¹°Àϰý ¸Å°¢
¸Å°¢±âÀÏ    2025.12.22(¿ù) 10:00 ÀÔÂû 11ÀÏÀü    
ÅäÁö¸éÀû9.80§³(2.96 Æò)
°Ç¹°¸éÀû32.98§³(9.98 Æò)
乫/¼ÒÀ¯ÀÚ¹ÚOO / ¹ÚOO
ä±ÇÀÚÁÖOOOOOOO
±è¼ºÈÆ ´ëÇ¥ÀÌ»ç
°øÀÎÁß°³»ç, ºÎµ¿»ê°ø°æ¸Å»ç, ÇѾç´ëÇб³ Á¹¾÷
Àü) ÅÂÀÎÄÁ¼³ÆÃ(ÁÖ) ´ëÇ¥ÀÌ»ç
Àü) ¿©ÀÇÁֺε¿»êÁß°³¹ýÀÎ(ÁÖ) ´ëÇ¥ÀÌ»ç
Çö) ¿©ÀÇÁÖ°æ¸Å¹ýÀÎ ´ëÇ¥ÀÌ»ç
010-2371-3237
ÆäÀ̽ººÏ Æ®À§ÅÍ ±¸±Û+
īī¿À½ºÅ丮
īī¿ÀÅå sms¹®ÀÚº¸³»±â
 

±âÀϳ»¿ª

°æ°ú ³¯Â¥ Àú°¨ ÃÖÀú°¡ °á°ú
Á¢¼öÀÏ 2024-08-21 °æ¸ÅÁ¢¼ö
~1ÀÏ 
2024-08-22 °æ¸Å°³½Ã°áÁ¤
~85ÀÏ 
2024-11-14 ¹è´ç¿ä±¸Á¾±âÀÏ
~418ÀÏ 
2025-10-13 100%
53,000,000
À¯Âû
~456ÀÏ 
2025-11-20 70%
37,100,000
À¯Âû
~488ÀÏ 
2025-12-22 49%
25,970,000
ÁøÇà
¹°°Ç¸í¼¼¼­ ÇöȲÁ¶»ç¼­ ¹®°ÇÁ¢¼ö ¼Û´Þ³»¿ª

°¨Á¤Æò°¡ÇöȲ

¸ñ·Ï ÁÖ¼Ò ±¸Á¶/¿ëµµ/´ëÁö±Ç ¸éÀû ºñ°í
´ëÁö±Ç
°£¼®µ¿ 37-589 10ºÐÀÇ 1 9.8 §³
(2.96Æò)
°Ç¹°
°£¼®µ¿ 37-589 4Ãþ401È£ ö±ÙÄÜÅ©¸®Æ®Á¶ 32.98 §³
(9.98Æò)
1) À§Ä¡/Á¦2Á¾ÀϹÝÁÖ°ÅÁö¿ª/¹ö½ºÁ¤·ùÀå/ö±ÙÄÜÅ©¸®Æ®Á¶/½½·¡ºêÁöºØ ´õº¸±â
°¨Á¤Æò°¡ ¿äÇ×Ç¥
1)À§Ä¡ ¹× ÁÖÀ§È¯°æ
º»°ÇÀº ÀÎõ±¤¿ª½Ã ³²µ¿±¸ °£¼®µ¿ ¼ÒÀç "°£¼®3µ¿ ÇàÁ¤º¹Áö¼¾ÅÍ" ºÏµ¿Ãø Àαٿ¡ À§Ä¡ÇÑ È¿Áø

ºô¶ó Á¦4Ãþ Á¦401È£·Î¼­, ºÎ±ÙÀº °øµ¿ÁÖÅà ¹× ±Ù¸°»ýȰ½Ã¼³ µîÀ¸·Î Çü¼ºµÇ¾î ÀÖÀ½.
2)±³Åë»óȲ
º»°Ç±îÁö Â÷·®ÀÇ Á¢±ÙÀÌ ºÒ°¡´ÉÇϸç, ºÎ±Ù¿¡ ¹ö½ºÁ¤·ùÀåÀÌ ¼ÒÀçÇÏ¿© ´ëÁß±³Åë»óȲÀº º¸Åë½Ã

µÊ.
3)°Ç¹°ÀÇ ±¸Á¶
ö±ÙÄÜÅ©¸®Æ®Á¶ ½½·¡ºêÁöºØ 4Ãþ °Ç ³» 4Ãþ 401È£·Î¼­,

(ÁýÇÕ°ÇÃ๰´ëÀå»ó »ç¿ë½ÂÀÎÀÏ : 1997.04.26)

¿Ü º® : ¼®Àç ¹× µå¶óÀ̺ñÆ®¸¶°¨

â È£ : »õ½ÃâÀÓ.
4)ÀÌ¿ë»óÅÂ
´Ù¼¼´ëÁÖÅÃÀÓ.
5)¼³ºñ³»¿ª
À§»ý¼³ºñ, ±Þ¹è¼ö¼³ºñ, ³­¹æ¼³ºñ µîÀÌ µÇ¾î ÀÖÀ½.
6)ÅäÁöÀÇ Çü»ó ¹× ÀÌ¿ë»óÅÂ
ºÎÁ¤ÇüÀÇ ÅäÁö·Î ÁÖ°Å¿ë °ÇºÎÁöÀÓ.
7)ÀÎÁ¢ µµ·Î»óŵî
º»°Ç ÇÊÁö ºÏÃø ¾à 3 m µµ·Î¿Í Á¢ÇÔ.
8)ÅäÁöÀÌ¿ë°èȹ ¹× Á¦ÇÑ»óÅÂ
Á¦2Á¾ÀϹÝÁÖ°ÅÁö¿ª, °¡Ãà»çÀ°Á¦Çѱ¸¿ª(2013-03-08)((¹®ÀÇ:³²µ¿±¸È¯°æº¸Àü°ú 032-453-2343))<

°¡ÃàºÐ´¢ÀÇ °ü¸® ¹× À̿뿡 °üÇÑ ¹ý·ü>, °ú¹Ð¾ïÁ¦±Ç¿ª<¼öµµ±ÇÁ¤ºñ°èȹ¹ý>ÀÓ.
9)°øºÎ¿ÍÀÇ Â÷ÀÌ
-
10)±âŸÂü°í»çÇ×(ÀÓ´ë°ü·Ê ¹× ±âŸ)
ÀÌÇØ°ü°èÀÎÀÇ ºÎÀç ¹× Æó¹® µîÀ¸·Î ÇöÀåÁ¶»ç ¹× °øºÎ¸¦ ±Ù°Å·Î ÀÛ¼ºÇÏ¿´À¸¸ç, ÀÚ¼¼ÇÑ ÀÓ´ë°ü

°è´Â ¹Ì»óÀÓ.


±¹ÅäºÎ½Ç°Å·¡°¡ ÀÎõ±¤¿ª½Ã ³²µ¿±¸ °£¼®µ¿

¡Ü ¸Å¸Å

¸éÀû(§³), ±Ý¾×(¸¸¿ø)

¡Ü Àü¼¼

¸éÀû(§³), ±Ý¾×(¸¸¿ø)

°è¾àÀϰǹ°¸íĪÃþ¿¬¸éÀû´ëÁö±Ý¾×°ÇÃà
24.03.31À¶Ã¢ÀÌÁöȨ(103,104µ¿)539.7320.77967,8002002
24.03.30°£¼®ºô¶ó(617-66)-138.2521.3794,1001993
24.03.29±×·£µåij½½336.426.512,4502011
24.03.29ÇöÁø±×¸°ºô153.0726.32814,0002009
24.03.28»ïµµºô¶ó(3µ¿)131.5925.196,7001987
¢Ñ ´õº¸±â

µî±âºÎµîº» ¿ä¾à(°Ç¹°)

  Á¢¼öÀÏÀÚ µî±â¸ñÀû/±Ç¸®ÀÚ ±Ç¸®±Ý¾× ±âÁØ
1 2021³â7¿ù14ÀÏ
¼ÒÀ¯±Ç
¹ÚOO
¼Ò¸ê
2 2022³â11¿ù24ÀÏ
°¡¾Ð·ù
ÁÖOOOO
1,070,000,000 ¼Ò¸ê±âÁØ
3 2023³â1¿ù20ÀÏ
¾Ð·ù
±¹
¼Ò¸ê
4 2023³â4¿ù14ÀÏ
¾Ð·ù
³²OO
¼Ò¸ê
5 2023³â8¿ù2ÀÏ
ÀÓÂ÷±Ç¼³Á¤
°­OO
52,000,000 ¼Ò¸ê
6 2024³â8¿ù22ÀÏ
°­Á¦°æ¸Å
ÁÖOOOO
¼Ò¸ê

ÀÓÂ÷ÀÎÇöȲ (¹è´ç¿ä±¸Á¾±âÀÏ: 2024-11-14)

ÀÓÂ÷ÀÎ ¿ëµµ/Á¡À¯ º¸Áõ±Ý/¿ù¼¼ ´ëÇ×·Â
ÀüÀÔÀÏ/È®Á¤ÀÏ ¹è´ç¿ä±¸ ºñ°í
°­OO ÀüºÎ 52,000,000
O
2021.06.30.
2021.06.15.
2021.06.30.
ÁÖOOOOOOOOOOOOOOOO ÀüºÎ 52,000,000
O
2021.06.30.
2021.06.15.
2024.10.30. 2021.06.30.~2023.06.30.
ºñ°í
(¸Å°¢¹°°Ç
¸í¼¼¼­)
°­¿¬Á¤ : ÁÖÅÃÀÓÂ÷±Çµî±â±Ç¸®Àڷμ­ ÁÖÅÃÀÓÂ÷±Çµî±âÀÏÀº 2023.8.2.ÀÓ ÁÖÅõµ½Ãº¸Áõ°ø»ç(ÀÓÂ÷ÀÎ:°­¿¬Á¤) : ÀÓÂ÷ÀÎ °­¿¬Á¤ÀÇ ÀÓÂ÷º¸Áõ±Ý¹Ýȯä±Ç ¾ç¼öÀÎÀ¸·Î¼­, º¸Áõ±Ý Àü¾×À» ¹è´ç¹ÞÁö ¸øÇÏ´õ¶óµµ

¿©ÀÇÁÖ°æ¸Å Á¶¾ð ÇÑ ¸¶µð

¸Å°¢¹°°Ç¸í¼¼ ºñ°í³­¿¡ ±âÀçµÈ ³»¿ëÀÔ´Ï´Ù.
°­¿¬Á¤ : ÁÖÅÃÀÓÂ÷±Çµî±â±Ç¸®Àڷμ­ ÁÖÅÃÀÓÂ÷±Çµî±âÀÏÀº 2023.8.2.ÀÓ ÁÖÅõµ½Ãº¸Áõ°ø»ç(ÀÓÂ÷ÀÎ:°­¿¬Á¤) : ÀÓÂ÷ÀÎ °­¿¬Á¤ÀÇ ÀÓÂ÷º¸Áõ±Ý¹Ýȯä±Ç ¾ç¼öÀÎÀ¸·Î¼­, º¸Áõ±Ý Àü¾×À» ¹è´ç¹ÞÁö ¸øÇÏ´õ¶óµµ
³«Âû ÈÄ¿¡ µî±âºÎ»ó ¼Ò¸êµÇÁö ¾Ê´Â ±Ç¸®ÀÔ´Ï´Ù.
À»±¸ ¼øÀ§ 14¹ø ÁÖÅÃÀÓÂ÷±Çµî±â(´Ù¸¸, ÁÖÅõµ½Ãº¸Áõ°ø»çÀÇ ¸»¼Òµ¿ÀÇ È®¾à¼­°¡ Á¦Ãâ µÊ)
¼±¼øÀ§ ÀÓÂ÷±Çµî±â°¡ µÇ¾î ÀÖ½À´Ï´Ù.
°¨Á¤ ½ÃÁ¡ÀÌ ¿À·¡µÇ¾î °¡°Ýº¯µ¿ÀÌ ÀÖÀ» ¼ö ÀÖ½À´Ï´Ù.
ÀÌ ¹°°ÇÀº 2024³â 8¿ù 22ÀÏ¿¡ °æ¸Å°¡ °³½ÃµÇ¾ú´Âµ¥ Áö±Ý ½ÃÁ¡À¸·Î ¾à 476ÀÏÀÌ ÀÌ °æ°úµÇ¾ú½À´Ï´Ù. °¨Á¤°¡°ÝÀº 476ÀÏ Àü ½ÃÁ¡¿¡¼­ Æò°¡ÇÑ °¡°ÝÀ̹ǷΠ±× »çÀÌ °¡°Ýº¯µ¿ÀÌ ÀÖÀ» ¼ö ÀÖ½À´Ï´Ù. ƯÈ÷ °¡°Ý º¯µ¿ÀÌ ½ÉÇÑ ¾ÆÆÄÆ®´Â À¯ÀÇÇÏ¼Å¾ß ÇÕ´Ï´Ù. °¨Á¤°¡°ÝÀ» ³Ê¹« ¹ÏÁö ¸¶½Ã°í ÇöÀç ½Ç¸Å¹° °¡°Ý°ú ½Ç°Å·¡°¡¸¦ È®ÀÎÇϽñ⠹ٶø´Ï´Ù.
°£È¤ °¨Á¤°¡°Ýº¸´Ù ³ô°Ô ³«ÂûµÇ´Â °æ¿ì°¡ Àִµ¥ ´ëºÎºÐ ÀÌ·± ÀÌÀ¯ÀÔ´Ï´Ù.
¡Ø ¹°°Ç Ű¿öµå : ÁÖ°ÅÁö¿ª/Á¦2Á¾ÀϹÝÁÖ°ÅÁö¿ª/¹ö½ºÁ¤·ùÀå/ö±ÙÄÜÅ©¸®Æ®Á¶/½½·¡ºêÁöºØ
Àüü ÄÁ¼³ÆÃÀÌ ºÎ´ã½º·¯¿ì½Å°¡¿ä? ±Ç¸®ºÐ¼®¸¸ ÀÇ·ÚÇϼŵµ ±¦Âú½À´Ï´Ù!
½Ç¼Ó ÀÖ°Ô Çٽɸ¸ ´ãÀº ±Ç¸®ºÐ¼® ¼­ºñ½º!! (±Ç¸®ºÐ¼® + ½Ã¼¼Á¶»ç + ³«Âû°¡ »êÁ¤ + ÀÔÂûÇ¥ ÀÛ¼º¹æ¹ý ±îÁö)
ÃÖ´ë Àüü ÄÁ¼³ÆÃ ºñ¿ëÀÇ 10% ¼öÁØ !!

ÁÖÀÇ»çÇ× (ÃÖ¼±¼øÀ§ ¼³Á¤ÀÏ: 2022.11.24. °¡¾Ð·ù ¼³Á¤)

¸Å°¢À¸·Î ¼Ò¸êµÇÁö ¾Ê´Â µî±âºÎ±Ç¸®: À»±¸ ¼øÀ§ 14¹ø ÁÖÅÃÀÓÂ÷±Çµî±â(´Ù¸¸, ÁÖÅõµ½Ãº¸Áõ°ø»çÀÇ ¸»¼Òµ¿ÀÇ È®¾à¼­°¡ Á¦Ãâ µÊ)
¸Å°¢À¸·Î ¼³Á¤µÈ °ÍÀ¸·Î º¸´Â Áö»ó±Ç:
2024.09.11 ä±ÇÀÚ ¼Ò¼Û´ë¸®ÀÎ ¹ýOOO OOOOOO ¼Û´ÞÀå¼Ò º¯°æ½Åû¼­(乫ÀÚ) Á¦Ãâ
¡Ø¹Ì³³°ü¸®ºñ(°ø¿ë) Àμö¿©ºÎ¸¦ ÀÔÂû Àü¿¡ È®ÀÎÇϽñ⠹ٶø´Ï´Ù

 

Áö¿ªºÐ¼®

ÁöÇÏö¸í Á÷¼±°Å¸®

Çб³¸í ÀüÈ­¹øÈ£ ÁÖ¼Ò Á÷¼±°Å¸®

¹ý¿ø

ÀÎõÁö¹æ¹ý¿ø (222-20)ÀÎõ±¤¿ª½Ã ¹ÌÃßȦ±¸ ¼Ò¼º·Î 163¹ø±æ 17(ÇÐÀ͵¿)
´ëÇ¥ : 032)860-1113~4
°üÇÒÁö¿ª : Áß±¸, µ¿±¸, ³²±¸, ¿¬¼ö±¸, ³²µ¿±¸, ºÎÆò±¸, °è¾ç±¸, ¼­±¸, ¿ËÁø±º, °­È­±º

µî±â¼Ò ÀÎõÁö¹æ¹ý¿ø º»¿ø µî±â±¹ (´ëÇ¥:1544-0773, ÆÑ½º:(032)620-9099, ÀÎõ±¤¿ª½Ã ¹ÌÃßȦ±¸ °æ¿ø´ë·Î 881(Á־ȵ¿ 983))
¼¼¹«¼­ ³²ÀÎõ¼¼¹«¼­ (´ëÇ¥:032-460-52, ÆÑ½º:032-463-5778, ÀÎõ±¤¿ª½Ã ³²µ¿±¸ ÀÎÇÏ·Î 548 (±¸¿ùµ¿))

Àαٳ«ÂûÅë°è

±â°£ ¸Å°¢°Ç¼ö Æò±Õ°¨Á¤°¡
Æò±Õ¸Å°¢°¡
¸Å°¢°¡À²
Æò±ÕÀ¯Âû¼ö
3°³¿ù 66°Ç 118,753,030¿ø
70,730,066¿ø
57%
2.5ȸ
6°³¿ù 142°Ç 129,646,620¿ø
80,251,352¿ø
60%
2.4ȸ
12°³¿ù 276°Ç 128,970,122¿ø
81,662,437¿ø
61%
2.2ȸ


º» °æ¸ÅÁ¤º¸´Â ¹ý¿øÀÚ·á¿Í ÀÏÄ¡Çϵµ·Ï ÇÏ¿´À¸³ª ±Ç¸®»çÇ׺¯µ¿, ÀÔ·ÂÂø¿À µîÀÇ ¿øÀÎÀ¸·Î »ç½Ç°ú ´Ù¸¦ ¼ö ÀÖ½À´Ï´Ù. ÀÌ¿ë¾à°ü¿¡ ÀǰЏéÃ¥Á¶°ÇÀ¸·Î Á¦°øµÊÀ» ¾Ë¸®¸ç, °æ¸ÅÀÔÂû½Ã ¹Ýµå½Ã °ü·Ã °øºÎ¸¦ ÀçÈ®ÀÎÇϽñ⠹ٶø´Ï´Ù. º¸´Ù Æí¸®ÇÑ °æ¸ÅÁ¤º¸ Á¦°øÀ» À§ÇØ Áö¼ÓÀûÀ¸·Î °³¼±ÇϰڽÀ´Ï´Ù. ÀÌ¿ëÇØ Áּż­ °¨»çÇÕ´Ï´Ù.
°ü½É¹°°ÇÀ¸·Î µî·ÏÇÕ´Ï´Ù