123
¾ÆÆÄÆ®
ÀÎõÁö¹æ¹ý¿ø
 °¨Á¤°¡81,300,000 ¿ø
 ÃÖÀú°¡(34%) 27,886,000 ¿ø
 º¸Áõ±Ý(10%) 2,788,600 ¿ø
 Ã»±¸¾×81,262,426 ¿ø
ÀÎõ±¤¿ª½Ã ¹ÌÃßȦ±¸ °æÀηΠ99, 8Ãþ811È£ (¼þÀǵ¿,¼þÀǵ¿¾Æ¸£¶¼³ëºí)
ÀÎõ±¤¿ª½Ã ¹ÌÃßȦ±¸ ¼þÀǵ¿ 78-9
»ç°Ç¹øÈ£ 2024Ÿ°æ585014
°æ¸ÅÁ¾·ùºÎµ¿»ê°­Á¦°æ¸Å
¸Å°¢´ë»óÅäÁö ¹× °Ç¹°Àϰý ¸Å°¢
¸Å°¢±âÀÏ    2026.01.30(±Ý) 10:00 ÀÔÂû 10ÀÏÀü    
ÅäÁö¸éÀû5.25§³(1.59 Æò)
°Ç¹°¸éÀû20.94§³(6.34 Æò)
乫/¼ÒÀ¯ÀÚÇÑOO / ÇÑOO
ä±ÇÀÚÁÖOOOOOOO
±è¼ºÈÆ ´ëÇ¥ÀÌ»ç
°øÀÎÁß°³»ç, ºÎµ¿»ê°ø°æ¸Å»ç, ÇѾç´ëÇб³ Á¹¾÷
Àü) ÅÂÀÎÄÁ¼³ÆÃ(ÁÖ) ´ëÇ¥ÀÌ»ç
Àü) ¿©ÀÇÁֺε¿»êÁß°³¹ýÀÎ(ÁÖ) ´ëÇ¥ÀÌ»ç
Çö) ¿©ÀÇÁÖ°æ¸Å¹ýÀÎ ´ëÇ¥ÀÌ»ç
010-2371-3237
ÆäÀ̽ººÏ Æ®À§ÅÍ ±¸±Û+
īī¿À½ºÅ丮
īī¿ÀÅå sms¹®ÀÚº¸³»±â
 

±âÀϳ»¿ª

°æ°ú ³¯Â¥ Àú°¨ ÃÖÀú°¡ °á°ú
Á¢¼öÀÏ 2024-12-27 °æ¸ÅÁ¢¼ö
~4ÀÏ 
2024-12-31 °æ¸Å°³½Ã°áÁ¤
~97ÀÏ 
2025-04-03 ¹è´ç¿ä±¸Á¾±âÀÏ
~277ÀÏ 
2025-09-30 100%
81,300,000
À¯Âû
~325ÀÏ 
2025-11-17 70%
56,910,000
À¯Âû
~355ÀÏ 
2025-12-17 49%
39,837,000
À¯Âû
~399ÀÏ 
2026-01-30 34%
27,886,000
ÁøÇà
¹°°Ç¸í¼¼¼­ ÇöȲÁ¶»ç¼­ ¹®°ÇÁ¢¼ö ¼Û´Þ³»¿ª

°¨Á¤Æò°¡ÇöȲ

¸ñ·Ï ÁÖ¼Ò ±¸Á¶/¿ëµµ/´ëÁö±Ç ¸éÀû ºñ°í
´ëÁö±Ç
¼þÀǵ¿ 78-9 865ºÐÀÇ 5.250 5.25 §³
(1.59Æò)
°Ç¹°
¼þÀǵ¿ 78-9 8Ãþ811È£ ö±ÙÄÜÅ©¸®Æ®±¸Á¶ 20.943 §³
(6.34Æò)
1) À§Ä¡/ÀϹݻó¾÷Áö¿ª/¹ö½ºÁ¤·ùÀå/Â÷·® Á¢±ÙÀÌ °¡´É/ö±ÙÄÜÅ©¸®Æ®±¸Á¶/½º¶óºêÁöºØ/µµ½Ã°¡½º ´õº¸±â
°¨Á¤Æò°¡ ¿äÇ×Ç¥
1)À§Ä¡ ¹× ÁÖÀ§È¯°æ
º» °ÇÀº ÀÎõ±¤¿ª½Ã ¹ÌÃßȦ±¸ ¼þÀǵ¿ ¼ÒÀç "Á¦¹°Æ÷¿ª" ¼­Ãø Àαٿ¡ À§Ä¡Çϸç, ÁÖÀ§´Â ¾ÆÆÄÆ®
µî °øµ¿ÁÖÅÃ, ¿ÀÇǽºÅÚ, ´Üµ¶ÁÖÅÃ, ±Ù¸°»ýȰ½Ã¼³ µîÀÌ È¥ÀçÇÏ´Â Áö¿ªÀ¸·Î¼­ Á¦¹Ý ÁÖÀ§È¯°æÀº
º¸ÅëÀÓ.
2)±³Åë»óȲ
º» °Ç±îÁö Â÷·® Á¢±ÙÀÌ °¡´ÉÇϸç Àαٿ¡ ¹ö½ºÁ¤·ùÀå ¹× Àüö¿ªÀÌ À§Ä¡ÇÏ´Â µî Á¦¹Ý
±³Åë¿©°ÇÀº ¾çÈ£ÇÔ.
3)°Ç¹°ÀÇ ±¸Á¶
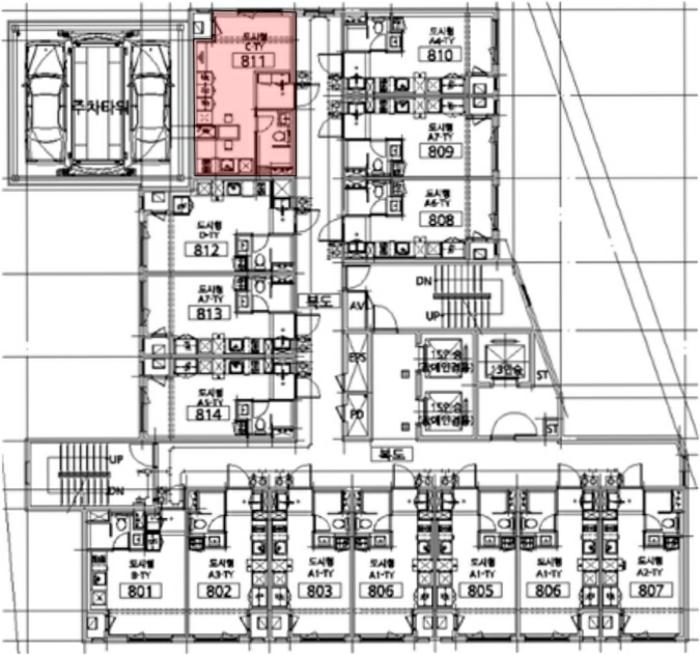
ö±ÙÄÜÅ©¸®Æ®±¸Á¶ (ö±ÙÄÜÅ©¸®Æ®)½º¶óºêÁöºØ 15Ãþ °Ç¹° ³» Á¦8Ãþ Á¦811È£·Î¼­,

¿Üº®: ¸ôÅ»À§ ÆäÀÎÆÃ µî ¸¶°¨.
âȣ: ÇÏÀ̼¨½Ã âȣÀÓ.
4)ÀÌ¿ë»óÅÂ
¾ÆÆÄÆ®·Î ÀÌ¿ë ÁßÀÓ.
5)¼³ºñ³»¿ª
À§»ý ¹× ±Þ¡¤¹è¼ö¼³ºñ, µµ½Ã°¡½º¼³ºñ, ³­¹æ¼³ºñ, ½Â°­±â¼³ºñ µîÀÌ µÇ¾îÀÖÀ½.
6)ÅäÁöÀÇ Çü»ó ¹× ÀÌ¿ë»óÅÂ
ÀÎÁ¢Áö ´ëºñ ´ëü·Î µî°í ÆòźÇÑ 2ÇÊ ÀÏ´ÜÀÇ »ç´Ù¸®Çü ÅäÁö·Î¼­, 1°³ µ¿(¼Ò¸ÅÁ¡ 6°³ È£, ¿ÀÇǽºÅÚ 37°³ È£, ¾ÆÆÄÆ® 140°³ È£, ÁÖÂ÷ 103´ë, ¿ëÀû·ü 688.92%) °ÇºÎÁöÀÓ.
7)ÀÎÁ¢ µµ·Î»óŵî
º» °Ç ³²ÃøÀ¸·Î ±¤´ë·ÎÀÎ °æÀηο¡ Á¢ÇÔ.
8)ÅäÁöÀÌ¿ë°èȹ ¹× Á¦ÇÑ»óÅÂ
1) ±âÈ£ 1, 2 ¸ðµÎ :
ÀϹݻó¾÷Áö¿ª(2022-06-13), ¹æÈ­Áö±¸, ½Ã°¡Áö°æ°üÁö±¸(2023-12-18),
°¡Ãà»çÀ°Á¦Çѱ¸¿ª(ÀÎõ±¤¿ª½Ã ¹ÌÃßȦ±¸ °¡Ãà»çÀ°Á¦ÇÑ¿¡ °üÇÑ Á¶·Ê[2018. 7. 1.])<°¡ÃàºÐ´¢ÀÇ
°ü¸® ¹× À̿뿡 °üÇÑ ¹ý·ü>, »ó´ëº¸È£±¸¿ª<±³À°È¯°æ º¸È£¿¡ °üÇÑ ¹ý·ü>, °ú¹Ð¾ïÁ¦±Ç¿ª<¼öµµ±ÇÁ¤ºñ°èȹ¹ý>, ÁßÁ¡°æ°ü°ü¸®±¸¿ª(2023-09-20)ÀÓ.

2) ±âÈ£ 1 Ãß°¡ »çÇ× : öµµº¸È£Áö±¸(2021-04-06)<öµµ¾ÈÀü¹ý>.
9)°øºÎ¿ÍÀÇ Â÷ÀÌ
ÇØ´ç »çÇ× ¾øÀ½.
10)±âŸÂü°í»çÇ×(ÀÓ´ë°ü·Ê ¹× ±âŸ)
ÀÓ´ë°ü°è µî ¹Ì»óÀÓ.
Âü°í
»çÇ×

º»°ÇÀº ÁöÇÏö1È£¼± Á¦¹°Æ÷¿ª

°ÇÃ๰ÇöȲ

¼ÒÀçÁö ÀÎõ±¤¿ª½Ã ¹ÌÃßȦ±¸ ¼þÀǵ¿ 78-9¹øÁö
´ëÁö¸éÀû 865§³
(262.12Æò)
¿¬¸éÀû 7815.4§³
(2368.3Æò)
°ÇÃà¸éÀû 583.64§³
(176.86Æò)
¿ëÀû·ü»êÁ¤
¿¬¸éÀû
5959.16§³
(1805.81Æò)
°ÇÆóÀ² 67.47% ¿ëÀû·ü 688.92%
Áö»óÃþ¼ö 15Ãþ ÁöÇÏÃþ¼ö 3Ãþ
ÁÖ¿ëµµ °øµ¿ÁÖÅà ±¸Á¶ ö±ÙÄÜÅ©¸®Æ®±¸Á¶
Âø°øÀÏÀÚ 2012.04.05 »ç¿ë½ÂÀÎÀÏÀÚ 2014.02.14
°ÇÃ๰Ãþº°ÇöȲ [º¸±â]


±¹ÅäºÎ½Ç°Å·¡°¡ ÀÎõ±¤¿ª½Ã ¹ÌÃßȦ±¸ ¼þÀǵ¿

¡Ü ¸Å¸Å

¸éÀû(§³), ±Ý¾×(¸¸¿ø)

¡Ü Àü¼¼

¸éÀû(§³), ±Ý¾×(¸¸¿ø)

°è¾àÀÏARTÃþÀü¿ëº¸Áõ±Ý¿ù¼¼°ÇÃà
25.12.24¼þÀǵ¿¾Æ¸£¶¼³ëºí715.718100402014
25.11.25¼þÀǵ¿¾Æ¸£¶¼³ëºí915.391300302014
25.11.25¼þÀǵ¿¾Æ¸£¶¼³ëºí1115.718300302014
25.11.18¼þÀǵ¿¾Æ¸£¶¼³ëºí915.3915,2002014
25.11.18¼þÀǵ¿¾Æ¸£¶¼³ëºí1115.7185,2002014
¢Ñ ´õº¸±â

µî±âºÎµîº» ¿ä¾à(°Ç¹°)

  Á¢¼öÀÏÀÚ µî±â¸ñÀû/±Ç¸®ÀÚ ±Ç¸®±Ý¾× ±âÁØ
1 2021³â7¿ù28ÀÏ
¼ÒÀ¯±Ç
ÇÑOO
¼Ò¸ê
2 2022³â8¿ù17ÀÏ
°¡¾Ð·ù
ÁÖOOOO
305,000,000 ¼Ò¸ê±âÁØ
3 2023³â8¿ù24ÀÏ
ÀÓÂ÷±Ç¼³Á¤
Á¤O
78,000,000 ¼Ò¸ê
4 2024³â2¿ù5ÀÏ
¾Ð·ù
±¹
¼Ò¸ê
5 2024³â12¿ù31ÀÏ
°­Á¦°æ¸Å
ÁÖOOOO
¼Ò¸ê
6 2025³â1¿ù24ÀÏ
¾Ð·ù
õOOOO
¼Ò¸ê

ÀÓÂ÷ÀÎÇöȲ (¹è´ç¿ä±¸Á¾±âÀÏ: 2025-04-03)

ÀÓÂ÷ÀÎ ¿ëµµ/Á¡À¯ º¸Áõ±Ý/¿ù¼¼ ´ëÇ×·Â
ÀüÀÔÀÏ/È®Á¤ÀÏ ¹è´ç¿ä±¸ ºñ°í
Á¤O ÀüºÎ 78,000,000
O
2021.7.16.
2021.6.28.
2021.7.15.~
ÁÖOOOOOOOOOOOOOO ÀüºÎ 78,000,000
O
2021.7.16.
2021.6.28.
2024.12.27. 2021.7.15.~2023.7.14.
ºñ°í
(¸Å°¢¹°°Ç
¸í¼¼¼­)
ÁÖÅõµ½Ãº¸Áõ°ø»ç(ÀÓÂ÷ÀÎ Á¤»ê):ÁÖÅÃÀÓÂ÷±ÇÀÚÀÎ Á¤»êÀÇ ÀÓÂ÷º¸Áõ±Ý¹Ýȯä±ÇÀ» ¾ç¼öÇÑ ½Â°èÀÎÀ¸·Î¼­ ½Åûä±ÇÀÚÀÌ¸ç ±Ç¸®½Å°í ¹× ¹è´ç¿ä±¸ÀÏÀÚ´Â ÀÌ »ç°Ç ½ÅûÀÏÀÓ. ÀÌ »ç°Ç¿¡¼­ ÀÓÂ÷º¸Áõ±Ý Àü¾×À» ¹è´ç¹ÞÁö ¸øÇÏ´õ¶óµµ ¸Å¼öÀο¡ ´ëÇÑ ÀÜÁ¸ ÀÓÂ÷º¸Áõ±Ý¹Ý ȯä±ÇÀ» Æ÷±âÇϰí ÁÖÅÃÀÓÂ÷±Ç µî±âÀÇ ¸»¼Ò¿¡ µ¿ÀÇÇÑ´Ù´Â ÃëÁöÀÇ È®¾à¼­¸¦ Á¦ÃâÇÔ.

¿©ÀÇÁÖ°æ¸Å Á¶¾ð ÇÑ ¸¶µð

¸Å°¢¹°°Ç¸í¼¼ ºñ°í³­¿¡ ±âÀçµÈ ³»¿ëÀÔ´Ï´Ù.
ÁÖÅõµ½Ãº¸Áõ°ø»ç(ÀÓÂ÷ÀÎ Á¤»ê):ÁÖÅÃÀÓÂ÷±ÇÀÚÀÎ Á¤»êÀÇ ÀÓÂ÷º¸Áõ±Ý¹Ýȯä±ÇÀ» ¾ç¼öÇÑ ½Â°èÀÎÀ¸·Î¼­ ½Åûä±ÇÀÚÀÌ¸ç ±Ç¸®½Å°í ¹× ¹è´ç¿ä±¸ÀÏÀÚ´Â ÀÌ »ç°Ç ½ÅûÀÏÀÓ. ÀÌ »ç°Ç¿¡¼­ ÀÓÂ÷º¸Áõ±Ý Àü¾×À» ¹è´ç¹ÞÁö ¸øÇÏ´õ¶óµµ ¸Å¼öÀο¡ ´ëÇÑ ÀÜÁ¸ ÀÓÂ÷º¸Áõ±Ý¹Ý ȯä±ÇÀ» Æ÷±âÇϰí ÁÖÅÃÀÓÂ÷±Ç µî±âÀÇ ¸»¼Ò¿¡ µ¿ÀÇÇÑ´Ù´Â ÃëÁöÀÇ È®¾à¼­¸¦ Á¦ÃâÇÔ.
³«Âû ÈÄ¿¡ µî±âºÎ»ó ¼Ò¸êµÇÁö ¾Ê´Â ±Ç¸®ÀÔ´Ï´Ù.
À»±¸ ¼øÀ§ 6¹ø ÁÖÅÃÀÓÂ÷±Çµî±â(´Ù¸¸ ÁÖÅõµ½Ãº¸Áõ°ø»çÀÇ ¸»¼Òµ¿ÀÇ È®¾à¼­°¡ Á¦ÃâµÊ)
¼±¼øÀ§ ÀÓÂ÷±Çµî±â°¡ µÇ¾î ÀÖ½À´Ï´Ù.
ü³³°ü¸®ºñ¸¦ ºÎ´ãÇÒ ¼ö ÀÖ½À´Ï´Ù.
°¨Á¤ ½ÃÁ¡ÀÌ ¿À·¡µÇ¾î °¡°Ýº¯µ¿ÀÌ ÀÖÀ» ¼ö ÀÖ½À´Ï´Ù.
ÀÌ ¹°°ÇÀº 2024³â 12¿ù 31ÀÏ¿¡ °æ¸Å°¡ °³½ÃµÇ¾ú´Âµ¥ Áö±Ý ½ÃÁ¡À¸·Î ¾à 385ÀÏÀÌ ÀÌ °æ°úµÇ¾ú½À´Ï´Ù. °¨Á¤°¡°ÝÀº 385ÀÏ Àü ½ÃÁ¡¿¡¼­ Æò°¡ÇÑ °¡°ÝÀ̹ǷΠ±× »çÀÌ °¡°Ýº¯µ¿ÀÌ ÀÖÀ» ¼ö ÀÖ½À´Ï´Ù. ƯÈ÷ °¡°Ý º¯µ¿ÀÌ ½ÉÇÑ ¾ÆÆÄÆ®´Â À¯ÀÇÇÏ¼Å¾ß ÇÕ´Ï´Ù. °¨Á¤°¡°ÝÀ» ³Ê¹« ¹ÏÁö ¸¶½Ã°í ÇöÀç ½Ç¸Å¹° °¡°Ý°ú ½Ç°Å·¡°¡¸¦ È®ÀÎÇϽñ⠹ٶø´Ï´Ù.
°£È¤ °¨Á¤°¡°Ýº¸´Ù ³ô°Ô ³«ÂûµÇ´Â °æ¿ì°¡ Àִµ¥ ´ëºÎºÐ ÀÌ·± ÀÌÀ¯ÀÔ´Ï´Ù.
¡Ø ¹°°Ç Ű¿öµå : »ó¾÷Áö¿ª/ÀϹݻó¾÷Áö¿ª/¹ö½ºÁ¤·ùÀå/Â÷·® Á¢±ÙÀÌ °¡´É/ö±ÙÄÜÅ©¸®Æ®±¸Á¶/½º¶óºêÁöºØ/µµ½Ã°¡½º
Àüü ÄÁ¼³ÆÃÀÌ ºÎ´ã½º·¯¿ì½Å°¡¿ä? ±Ç¸®ºÐ¼®¸¸ ÀÇ·ÚÇϼŵµ ±¦Âú½À´Ï´Ù!
½Ç¼Ó ÀÖ°Ô Çٽɸ¸ ´ãÀº ±Ç¸®ºÐ¼® ¼­ºñ½º!! (±Ç¸®ºÐ¼® + ½Ã¼¼Á¶»ç + ³«Âû°¡ »êÁ¤ + ÀÔÂûÇ¥ ÀÛ¼º¹æ¹ý ±îÁö)
ÃÖ´ë Àüü ÄÁ¼³ÆÃ ºñ¿ëÀÇ 10% ¼öÁØ !!

ÁÖÀÇ»çÇ× (ÃÖ¼±¼øÀ§ ¼³Á¤ÀÏ: 2022.8.17. °¡¾Ð·ù ¼³Á¤)

¸Å°¢À¸·Î ¼Ò¸êµÇÁö ¾Ê´Â µî±âºÎ±Ç¸®: À»±¸ ¼øÀ§ 6¹ø ÁÖÅÃÀÓÂ÷±Çµî±â(´Ù¸¸ ÁÖÅõµ½Ãº¸Áõ°ø»çÀÇ ¸»¼Òµ¿ÀÇ È®¾à¼­°¡ Á¦ÃâµÊ)
¸Å°¢À¸·Î ¼³Á¤µÈ °ÍÀ¸·Î º¸´Â Áö»ó±Ç:
¡Ø¹Ì³³°ü¸®ºñ(°ø¿ë) Àμö¿©ºÎ¸¦ ÀÔÂû Àü¿¡ È®ÀÎÇϽñ⠹ٶø´Ï´Ù

 

Áö¿ªºÐ¼®

ÁöÇÏö¸í Á÷¼±°Å¸®

Çб³¸í ÀüÈ­¹øÈ£ ÁÖ¼Ò Á÷¼±°Å¸®

¹ý¿ø

ÀÎõÁö¹æ¹ý¿ø (222-20)ÀÎõ±¤¿ª½Ã ¹ÌÃßȦ±¸ ¼Ò¼º·Î 163¹ø±æ 17(ÇÐÀ͵¿)
´ëÇ¥ : 032)860-1113~4
°üÇÒÁö¿ª : Áß±¸, µ¿±¸, ³²±¸, ¿¬¼ö±¸, ³²µ¿±¸, ºÎÆò±¸, °è¾ç±¸, ¼­±¸, ¿ËÁø±º, °­È­±º

µî±â¼Ò ÀÎõÁö¹æ¹ý¿ø º»¿ø µî±â±¹ (´ëÇ¥:1544-0773, ÆÑ½º:(032)620-9099, ÀÎõ±¤¿ª½Ã ¹ÌÃßȦ±¸ °æ¿ø´ë·Î 881(Á־ȵ¿ 983))
¼¼¹«¼­ ÀÎõ¼¼¹«¼­ (´ëÇ¥:032-770-02, ÆÑ½º:032-777-8104, ÀÎõ±¤¿ª½Ã µ¿±¸ ¿ì°¢·Î 75 (⿵µ¿))

Àαٳ«ÂûÅë°è

±â°£ ¸Å°¢°Ç¼ö Æò±Õ°¨Á¤°¡
Æò±Õ¸Å°¢°¡
¸Å°¢°¡À²
Æò±ÕÀ¯Âû¼ö
3°³¿ù 140°Ç 235,157,143¿ø
147,352,380¿ø
61%
2.4ȸ
6°³¿ù 300°Ç 237,663,333¿ø
151,133,523¿ø
62%
2.3ȸ
12°³¿ù 569°Ç 235,903,339¿ø
147,205,214¿ø
62%
2.2ȸ


º» °æ¸ÅÁ¤º¸´Â ¹ý¿øÀÚ·á¿Í ÀÏÄ¡Çϵµ·Ï ÇÏ¿´À¸³ª ±Ç¸®»çÇ׺¯µ¿, ÀÔ·ÂÂø¿À µîÀÇ ¿øÀÎÀ¸·Î »ç½Ç°ú ´Ù¸¦ ¼ö ÀÖ½À´Ï´Ù. ÀÌ¿ë¾à°ü¿¡ ÀǰЏéÃ¥Á¶°ÇÀ¸·Î Á¦°øµÊÀ» ¾Ë¸®¸ç, °æ¸ÅÀÔÂû½Ã ¹Ýµå½Ã °ü·Ã °øºÎ¸¦ ÀçÈ®ÀÎÇϽñ⠹ٶø´Ï´Ù. º¸´Ù Æí¸®ÇÑ °æ¸ÅÁ¤º¸ Á¦°øÀ» À§ÇØ Áö¼ÓÀûÀ¸·Î °³¼±ÇϰڽÀ´Ï´Ù. ÀÌ¿ëÇØ Áּż­ °¨»çÇÕ´Ï´Ù.
°ü½É¹°°ÇÀ¸·Î µî·ÏÇÕ´Ï´Ù