72
¾ÆÆÄÆ®
ÀÎõÁö¹æ¹ý¿ø
 °¨Á¤°¡116,000,000 ¿ø
 ÃÖÀú°¡(49%) 56,840,000 ¿ø
 º¸Áõ±Ý(10%) 5,684,000 ¿ø
 Ã»±¸¾×105,619,769 ¿ø
ÀÎõ±¤¿ª½Ã ¹ÌÃßȦ±¸ Á־ȷΠ145-10, ¿¡À̵¿ 5Ãþ503È£ (Á־ȵ¿,Á־Ƚ¦¸£ºô¾ÆÆÄÆ®)
ÀÎõ±¤¿ª½Ã ¹ÌÃßȦ±¸ Á־ȵ¿ 48-9
»ç°Ç¹øÈ£ 2024Ÿ°æ574755
°æ¸ÅÁ¾·ùºÎµ¿»ê°­Á¦°æ¸Å
¸Å°¢´ë»óÅäÁö ¹× °Ç¹°Àϰý ¸Å°¢
¸Å°¢±âÀÏ    2026.01.29(¸ñ) 10:00 ÀÔÂû 40ÀÏÀü    
ÅäÁö¸éÀû17.08§³(5.17 Æò)
°Ç¹°¸éÀû43.33§³(13.11 Æò)
乫/¼ÒÀ¯ÀÚ¸Á OOOO OOOOOOO OOO OOO / ¸Á OOOO OOOOOOO OOO OOO
ä±ÇÀÚÁÖOOOOOOO
±è¼ºÈÆ ´ëÇ¥ÀÌ»ç
°øÀÎÁß°³»ç, ºÎµ¿»ê°ø°æ¸Å»ç, ÇѾç´ëÇб³ Á¹¾÷
Àü) ÅÂÀÎÄÁ¼³ÆÃ(ÁÖ) ´ëÇ¥ÀÌ»ç
Àü) ¿©ÀÇÁֺε¿»êÁß°³¹ýÀÎ(ÁÖ) ´ëÇ¥ÀÌ»ç
Çö) ¿©ÀÇÁÖ°æ¸Å¹ýÀÎ ´ëÇ¥ÀÌ»ç
010-2371-3237
ÆäÀ̽ººÏ Æ®À§ÅÍ ±¸±Û+
īī¿À½ºÅ丮
īī¿ÀÅå sms¹®ÀÚº¸³»±â
 

±âÀϳ»¿ª

°æ°ú ³¯Â¥ Àú°¨ ÃÖÀú°¡ °á°ú
Á¢¼öÀÏ 2024-11-20 °æ¸ÅÁ¢¼ö
~1ÀÏ 
2024-11-21 °æ¸Å°³½Ã°áÁ¤
~92ÀÏ 
2025-02-20 ¹è´ç¿ä±¸Á¾±âÀÏ
~313ÀÏ 
2025-09-29 100%
116,000,000
À¯Âû
~359ÀÏ 
2025-11-14 70%
81,200,000
º¯°æ
~359ÀÏ 
2025-11-14 100%
116,000,000
À¯Âû
~391ÀÏ 
2025-12-16 70%
81,200,000
À¯Âû
~435ÀÏ 
2026-01-29 49%
56,840,000
ÁøÇà
¹°°Ç¸í¼¼¼­ ÇöȲÁ¶»ç¼­ ¹®°ÇÁ¢¼ö ¼Û´Þ³»¿ª

°¨Á¤Æò°¡ÇöȲ

¸ñ·Ï ÁÖ¼Ò ±¸Á¶/¿ëµµ/´ëÁö±Ç ¸éÀû ºñ°í
´ëÁö±Ç
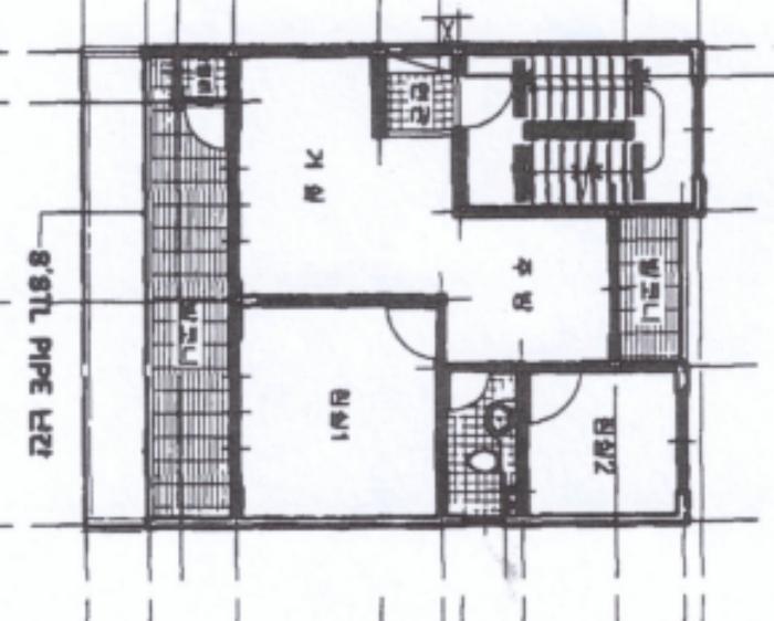
Á־ȵ¿ 48-9 203.3ºÐÀÇ 17.078 17.078 §³
(5.17Æò)
°Ç¹°
Á־ȵ¿ 48-9 ¿¡À̵¿ 5Ãþ503È£ ö±ÙÄÜÅ©¸®Æ®Á¶ 43.33 §³
(13.11Æò)
1) À§Ä¡/ÀϹݻó¾÷Áö¿ª/½Ã³»¹ö½ºÁ¤·ùÀå/ö±ÙÄÜÅ©¸®Æ®Á¶ ´õº¸±â
°¨Á¤Æò°¡ ¿äÇ×Ç¥
1)À§Ä¡ ¹× ÁÖÀ§È¯°æ
¹ÌÃßȦ±¸ Á־ȵ¿ ¼ÒÀç "¼®¾ÏÃʵîÇб³" ºÏÃø Àαٿ¡ À§Ä¡ÇÏ´Â ¾ÆÆÄÆ® "Á־Ƚ¦¸£ºô¾ÆÆÄÆ® Á¦¿¡À̵¿" Á¦5Ãþ Á¦503È£·Î¼­ ÀαÙÀº °æÀÎÀüö º¯ ¾ÆÆÄÆ®, ´Ù¼¼´ëÁÖÅà ¹× ¿ÀÇǽºÅÚ µîÀÌ È¥ÀçµÈ ÁÖ»óÁö´ëÀÓ.
2)±³Åë»óȲ
°æÀÎÀüö "Á־ȿª" ¹× "°£¼®¿ª" ÀÌ ¼­Ãø ¹× µ¿Ãø Àαٿ¡ °¢°¢ À§Ä¡ÇÏ°í ½Ã³»¹ö½ºÁ¤·ùÀåÀÌ ÀÎÁ¢ÇÏ´Â µî ´ëÁß±³Åë»óȲ Æí¸®ÇÑ Áö¿ªÀÓ.
3)°Ç¹°ÀÇ ±¸Á¶
ö±ÙÄÜÅ©¸®Æ®Á¶ 5Ãþ ¾÷¹«½Ã¼³(¿ÀÇǽºÅÚ) ¹× °øµ¿ÁÖÅÃ(¾ÆÆÄÆ®) °Ç¹° ³» Á¦5Ãþ Á¦503È£·Î¼­

¿Üº® : ÄÜÅ©¸®Æ® À§ ´Ü¿­Àç ¸¶°¨
âȣ : ¾Ë¹Ì´½ ¹× ÇÁ¶ó½ºÆ½ âȣ
4)ÀÌ¿ë»óÅÂ
¾ÆÆÄÆ®·Î ÀÌ¿ëÁßÀÓ.
5)¼³ºñ³»¿ª
ÀϹÝÀûÀÎ »óÇϼöµµ¼³ºñ ¹× À§»ý¼³ºñ °®Ãß°í ÀÖÀ½.
6)ÅäÁöÀÇ Çü»ó ¹× ÀÌ¿ë»óÅÂ
°¡ÀåÇü ÅäÁö·Î¼­ ÀÎÁ¢ÅäÁö¿Í µî°íÆòźÇÏ¸ç ¾÷¹«½Ã¼³ ¹× °øµ¿ÁÖÅà º¹ÇÕ¿ëµµ °Ç¹°ÀÇ ºÎÁö·Î ÀÌ¿ëÁßÀÓ.
7)ÀÎÁ¢ µµ·Î»óŵî
¼­ÃøÀ¸·Î ¼¼·Î¿¡ Á¢ÇÔ.
8)ÅäÁöÀÌ¿ë°èȹ ¹× Á¦ÇÑ»óÅÂ
ÀϹݻó¾÷Áö¿ª, ¹æÈ­Áö±¸, °¡Ãà»çÀ°Á¦Çѱ¸¿ª(°¡ÃàºÐ´¢ÀÇ °ü¸® ¹× À̿뿡 °üÇÑ ¹ý·ü), »ó´ëº¸È£±¸¿ª(±³À°È¯°æ º¸È£¿¡ °üÇÑ ¹ý·ü), °ú¹Ð¾ïÁ¦±Ç¿ª(¼öµµ±ÇÁ¤ºñ°èȹ¹ý), öµµº¸È£Áö±¸(öµµ¾ÈÀü¹ý) ³» ÅäÁöÀÓ.
9)°øºÎ¿ÍÀÇ Â÷ÀÌ
¾øÀ½.
10)±âŸÂü°í»çÇ×(ÀÓ´ë°ü·Ê ¹× ±âŸ)
ÀÓ´ëÂ÷°ü°è ¹Ì»óÀÓ.
Âü°í
»çÇ×

ö±ÙÄÜÅ©¸®Æ® Æò½½

°ÇÃ๰ÇöȲ

¼ÒÀçÁö ÀÎõ±¤¿ª½Ã ¹ÌÃßȦ±¸ Á־ȵ¿ 48-9¹øÁö
´ëÁö¸éÀû 203.3§³
(61.61Æò)
¿¬¸éÀû 617.23§³
(187.04Æò)
°ÇÃà¸éÀû 160.5§³
(48.64Æò)
¿ëÀû·ü»êÁ¤
¿¬¸éÀû
617.23§³
(187.04Æò)
°ÇÆóÀ² 78.95% ¿ëÀû·ü 303.61%
Áö»óÃþ¼ö 5Ãþ ÁöÇÏÃþ¼ö  
ÁÖ¿ëµµ °øµ¿ÁÖÅà ±¸Á¶ ö±ÙÄÜÅ©¸®Æ®±¸Á¶
Âø°øÀÏÀÚ 2001.09.12 »ç¿ë½ÂÀÎÀÏÀÚ 2002.03.05


µî±âºÎµîº» ¿ä¾à(°Ç¹°)

  Á¢¼öÀÏÀÚ µî±â¸ñÀû/±Ç¸®ÀÚ ±Ç¸®±Ý¾× ±âÁØ
1 2021³â10¿ù5ÀÏ
¼ÒÀ¯±Ç
±èOO
¼Ò¸ê
2 2022³â12¿ù8ÀÏ
¾Ð·ù
±¹
¼Ò¸ê±âÁØ
3 2024³â1¿ù16ÀÏ
ÀÓÂ÷±Ç¼³Á¤
µµOO
102,000,000 ¼Ò¸ê
4 2024³â11¿ù21ÀÏ
°­Á¦°æ¸Å
ÁÖOOOO
¼Ò¸ê

ÀÓÂ÷ÀÎÇöȲ (¹è´ç¿ä±¸Á¾±âÀÏ: 2025-02-20)

ÀÓÂ÷ÀÎ ¿ëµµ/Á¡À¯ º¸Áõ±Ý/¿ù¼¼ ´ëÇ×·Â
ÀüÀÔÀÏ/È®Á¤ÀÏ ¹è´ç¿ä±¸ ºñ°í
µµOO ÀüºÎ 102,000,000
O
2021. 12. 1.
2021. 11. 12.
2021. 11. 30.~
ÀåOO
O
2020. 12. 14
ÁÖOOOOOOOOOOOOOOO ÀüºÎ 102,000,000
O
2021. 12. 1.
2021. 11. 12.
2024. 11. 20. 2021. 11. 30.~2023. 11. 30.
ºñ°í
(¸Å°¢¹°°Ç
¸í¼¼¼­)
- µµ³«¿ø : ÁÖÅÃÀÓÂ÷±Çµî±â±ÇÀڷμ­ ÁÖÅÃÀÓÂ÷±Çµî±âÀÏÀº 2024. 1. 16.ÀÓ - ÁÖÅõµ½Ãº¸Áõ°ø»ç(ÀÓÂ÷ÀÎ µµ³«¿ø) : °æ¸Å½Åûä±ÇÀÚ·Î ¹è´ç¿ä±¸ÀÏÀÚ´Â °æ¸Å½ÅûÀÏÀ̸ç, ÁÖÅÃÀÓ´ëÂ÷º¸È£¹ý Á¦3Á¶ÀÇ 2 Á¦7Ç× Á¦9È£ÀÇ ±â°üÀ¸·Î ÀÓÂ÷ÀÎ µµ³«¿øÀ¸·ÎºÎÅÍ º¸Áõ±Ý¹Ýȯä±ÇÀ» °è¾àÀ¸·Î ¾ç¼öÇÔ. º¸Áõ±Ý Àü¾×À» ¹è´ç¹ÞÁö ¸øÇÏ´õ¶óµµ ÀÜÁ¸ ÀÓÂ÷º¸Áõ±Ý¹Ýȯä±ÇÀ» Æ÷±âÇϰí ÁÖÅÃÀÓÂ÷±Çµî±â ¸» ¼Ò¿¡ µ¿ÀÇÇÑ´Ù´Â ÃëÁöÀÇ È®¾à¼­¸¦ Á¦ÃâÇÔ

¿©ÀÇÁÖ°æ¸Å Á¶¾ð ÇÑ ¸¶µð

¸Å°¢¹°°Ç¸í¼¼ ºñ°í³­¿¡ ±âÀçµÈ ³»¿ëÀÔ´Ï´Ù.
- µµ³«¿ø : ÁÖÅÃÀÓÂ÷±Çµî±â±ÇÀڷμ­ ÁÖÅÃÀÓÂ÷±Çµî±âÀÏÀº 2024. 1. 16.ÀÓ - ÁÖÅõµ½Ãº¸Áõ°ø»ç(ÀÓÂ÷ÀÎ µµ³«¿ø) : °æ¸Å½Åûä±ÇÀÚ·Î ¹è´ç¿ä±¸ÀÏÀÚ´Â °æ¸Å½ÅûÀÏÀ̸ç, ÁÖÅÃÀÓ´ëÂ÷º¸È£¹ý Á¦3Á¶ÀÇ 2 Á¦7Ç× Á¦9È£ÀÇ ±â°üÀ¸·Î ÀÓÂ÷ÀÎ µµ³«¿øÀ¸·ÎºÎÅÍ º¸Áõ±Ý¹Ýȯä±ÇÀ» °è¾àÀ¸·Î ¾ç¼öÇÔ. º¸Áõ±Ý Àü¾×À» ¹è´ç¹ÞÁö ¸øÇÏ´õ¶óµµ ÀÜÁ¸ ÀÓÂ÷º¸Áõ±Ý¹Ýȯä±ÇÀ» Æ÷±âÇϰí ÁÖÅÃÀÓÂ÷±Çµî±â ¸» ¼Ò¿¡ µ¿ÀÇÇÑ´Ù´Â ÃëÁöÀÇ È®¾à¼­¸¦ Á¦ÃâÇÔ
³«Âû ÈÄ¿¡ µî±âºÎ»ó ¼Ò¸êµÇÁö ¾Ê´Â ±Ç¸®ÀÔ´Ï´Ù.
À»±¸ ¼øÀ§ 9¹ø ÁÖÅÃÀÓÂ÷±Çµî±â(´Ù¸¸ ÁÖÅõµ½Ãº¸Áõ°ø»çÀÇ ¸»¼Òµ¿ÀÇ È®¾à¼­°¡ Á¦ÃâµÊ)
¼±¼øÀ§ ÀÓÂ÷±Çµî±â°¡ µÇ¾î ÀÖ½À´Ï´Ù.
´Ù¼öÀÇ ÀÓÂ÷ÀÎÀÌ Á¶»ç, ½Å°íµÇ¾î ÀÖ½À´Ï´Ù.
¸Å°¢¹°°Ç¸í¼¼¼­ ¹× ÇöȲÁ¶»ç¼­¿¡ 3¸íÀÇ ÀÓÂ÷ÀÎÀÌ ³ªÅ¸³ª ÀÖ½À´Ï´Ù. ÀÓÂ÷ÀÎÀÌ ¸¹Àº °æ¿ì ¸íµµ¿¡ ¾î·Á¿òÀÌ ÀÖÀ¸´Ï Àü¹®°¡¿Í ÇùÀÇÇÏ¿© ÁøÇàÇÏ½Ã±æ ±ÇÇØ µå¸³´Ï´Ù.
ü³³°ü¸®ºñ¸¦ ºÎ´ãÇÒ ¼ö ÀÖ½À´Ï´Ù.
°¨Á¤ ½ÃÁ¡ÀÌ ¿À·¡µÇ¾î °¡°Ýº¯µ¿ÀÌ ÀÖÀ» ¼ö ÀÖ½À´Ï´Ù.
ÀÌ ¹°°ÇÀº 2024³â 11¿ù 21ÀÏ¿¡ °æ¸Å°¡ °³½ÃµÇ¾ú´Âµ¥ Áö±Ý ½ÃÁ¡À¸·Î ¾à 394ÀÏÀÌ ÀÌ °æ°úµÇ¾ú½À´Ï´Ù. °¨Á¤°¡°ÝÀº 394ÀÏ Àü ½ÃÁ¡¿¡¼­ Æò°¡ÇÑ °¡°ÝÀ̹ǷΠ±× »çÀÌ °¡°Ýº¯µ¿ÀÌ ÀÖÀ» ¼ö ÀÖ½À´Ï´Ù. ƯÈ÷ °¡°Ý º¯µ¿ÀÌ ½ÉÇÑ ¾ÆÆÄÆ®´Â À¯ÀÇÇÏ¼Å¾ß ÇÕ´Ï´Ù. °¨Á¤°¡°ÝÀ» ³Ê¹« ¹ÏÁö ¸¶½Ã°í ÇöÀç ½Ç¸Å¹° °¡°Ý°ú ½Ç°Å·¡°¡¸¦ È®ÀÎÇϽñ⠹ٶø´Ï´Ù.
°£È¤ °¨Á¤°¡°Ýº¸´Ù ³ô°Ô ³«ÂûµÇ´Â °æ¿ì°¡ Àִµ¥ ´ëºÎºÐ ÀÌ·± ÀÌÀ¯ÀÔ´Ï´Ù.
¡Ø ¹°°Ç Ű¿öµå : »ó¾÷Áö¿ª/ÀϹݻó¾÷Áö¿ª/¹ö½ºÁ¤·ùÀå/½Ã³»¹ö½ºÁ¤·ùÀå/ö±ÙÄÜÅ©¸®Æ®Á¶
Àüü ÄÁ¼³ÆÃÀÌ ºÎ´ã½º·¯¿ì½Å°¡¿ä? ±Ç¸®ºÐ¼®¸¸ ÀÇ·ÚÇϼŵµ ±¦Âú½À´Ï´Ù!
½Ç¼Ó ÀÖ°Ô Çٽɸ¸ ´ãÀº ±Ç¸®ºÐ¼® ¼­ºñ½º!! (±Ç¸®ºÐ¼® + ½Ã¼¼Á¶»ç + ³«Âû°¡ »êÁ¤ + ÀÔÂûÇ¥ ÀÛ¼º¹æ¹ý ±îÁö)
ÃÖ´ë Àüü ÄÁ¼³ÆÃ ºñ¿ëÀÇ 10% ¼öÁØ !!

ÁÖÀÇ»çÇ× (ÃÖ¼±¼øÀ§ ¼³Á¤ÀÏ: 2022. 12. 8. ¾Ð·ù ¼³Á¤)

¸Å°¢À¸·Î ¼Ò¸êµÇÁö ¾Ê´Â µî±âºÎ±Ç¸®: À»±¸ ¼øÀ§ 9¹ø ÁÖÅÃÀÓÂ÷±Çµî±â(´Ù¸¸ ÁÖÅõµ½Ãº¸Áõ°ø»çÀÇ ¸»¼Òµ¿ÀÇ È®¾à¼­°¡ Á¦ÃâµÊ)
¸Å°¢À¸·Î ¼³Á¤µÈ °ÍÀ¸·Î º¸´Â Áö»ó±Ç:
¡Ø¹Ì³³°ü¸®ºñ(°ø¿ë) Àμö¿©ºÎ¸¦ ÀÔÂû Àü¿¡ È®ÀÎÇϽñ⠹ٶø´Ï´Ù

 

Áö¿ªºÐ¼®

ÁöÇÏö¸í Á÷¼±°Å¸®

Çб³¸í ÀüÈ­¹øÈ£ ÁÖ¼Ò Á÷¼±°Å¸®

¹ý¿ø

ÀÎõÁö¹æ¹ý¿ø (222-20)ÀÎõ±¤¿ª½Ã ¹ÌÃßȦ±¸ ¼Ò¼º·Î 163¹ø±æ 17(ÇÐÀ͵¿)
´ëÇ¥ : 032)860-1113~4
°üÇÒÁö¿ª : Áß±¸, µ¿±¸, ³²±¸, ¿¬¼ö±¸, ³²µ¿±¸, ºÎÆò±¸, °è¾ç±¸, ¼­±¸, ¿ËÁø±º, °­È­±º

µî±â¼Ò ÀÎõÁö¹æ¹ý¿ø º»¿ø µî±â±¹ (´ëÇ¥:1544-0773, ÆÑ½º:(032)620-9099, ÀÎõ±¤¿ª½Ã ¹ÌÃßȦ±¸ °æ¿ø´ë·Î 881(Á־ȵ¿ 983))
¼¼¹«¼­ ÀÎõ¼¼¹«¼­ (´ëÇ¥:032-770-02, ÆÑ½º:032-777-8104, ÀÎõ±¤¿ª½Ã µ¿±¸ ¿ì°¢·Î 75 (⿵µ¿))

Àαٳ«ÂûÅë°è

±â°£ ¸Å°¢°Ç¼ö Æò±Õ°¨Á¤°¡
Æò±Õ¸Å°¢°¡
¸Å°¢°¡À²
Æò±ÕÀ¯Âû¼ö
3°³¿ù 147°Ç 243,258,503¿ø
153,665,106¿ø
62%
2.3ȸ
6°³¿ù 323°Ç 239,811,146¿ø
147,627,756¿ø
61%
2.3ȸ
12°³¿ù 530°Ç 240,387,642¿ø
151,759,353¿ø
62%
2.2ȸ


º» °æ¸ÅÁ¤º¸´Â ¹ý¿øÀÚ·á¿Í ÀÏÄ¡Çϵµ·Ï ÇÏ¿´À¸³ª ±Ç¸®»çÇ׺¯µ¿, ÀÔ·ÂÂø¿À µîÀÇ ¿øÀÎÀ¸·Î »ç½Ç°ú ´Ù¸¦ ¼ö ÀÖ½À´Ï´Ù. ÀÌ¿ë¾à°ü¿¡ ÀǰЏéÃ¥Á¶°ÇÀ¸·Î Á¦°øµÊÀ» ¾Ë¸®¸ç, °æ¸ÅÀÔÂû½Ã ¹Ýµå½Ã °ü·Ã °øºÎ¸¦ ÀçÈ®ÀÎÇϽñ⠹ٶø´Ï´Ù. º¸´Ù Æí¸®ÇÑ °æ¸ÅÁ¤º¸ Á¦°øÀ» À§ÇØ Áö¼ÓÀûÀ¸·Î °³¼±ÇϰڽÀ´Ï´Ù. ÀÌ¿ëÇØ Áּż­ °¨»çÇÕ´Ï´Ù.
°ü½É¹°°ÇÀ¸·Î µî·ÏÇÕ´Ï´Ù