57
±Ù¸°»ó°¡
¼ö¿øÁö¹æ¹ý¿ø ¾È»êÁö¿ø
 °¨Á¤°¡1,202,000,000 ¿ø
 ÃÖÀú°¡(49%) 588,980,000 ¿ø
 º¸Áõ±Ý(10%) 58,898,000 ¿ø
 Ã»±¸¾×44,465,397 ¿ø
°æ±âµµ ½ÃÈï½Ã ½Ãû·Î 33, 1Ãþ112È£ (ÀåÇöµ¿,½ÃƼÇÁ·ÐÆ®561´õ½Ä½º)
°æ±âµµ ½ÃÈï½Ã ÀåÇöµ¿ 671-4
»ç°Ç¹øÈ£ 2024Ÿ°æ71486
Áߺ¹»ç°ÇÁߺ¹ 2025Ÿ°æ53581,
°æ¸ÅÁ¾·ùºÎµ¿»ê°­Á¦°æ¸Å
¸Å°¢´ë»óÅäÁö ¹× °Ç¹°Àϰý ¸Å°¢
¸Å°¢±âÀÏ    2025.12.11(¸ñ) 10:30 ÀÔÂû 3ÀÏÀü    
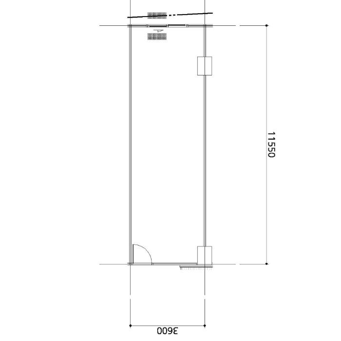
ÅäÁö¸éÀû11.55§³(3.49 Æò)
°Ç¹°¸éÀû41.58§³(12.58 Æò)
乫/¼ÒÀ¯ÀÚÁÖOOOOOOO / ÁÖOOOOOOO
ä±ÇÀÚ±èOO
±è¼ºÈÆ ´ëÇ¥ÀÌ»ç
°øÀÎÁß°³»ç, ºÎµ¿»ê°ø°æ¸Å»ç, ÇѾç´ëÇб³ Á¹¾÷
Àü) ÅÂÀÎÄÁ¼³ÆÃ(ÁÖ) ´ëÇ¥ÀÌ»ç
Àü) ¿©ÀÇÁֺε¿»êÁß°³¹ýÀÎ(ÁÖ) ´ëÇ¥ÀÌ»ç
Çö) ¿©ÀÇÁÖ°æ¸Å¹ýÀÎ ´ëÇ¥ÀÌ»ç
010-2371-3237
ÆäÀ̽ººÏ Æ®À§ÅÍ ±¸±Û+
īī¿À½ºÅ丮
īī¿ÀÅå sms¹®ÀÚº¸³»±â
 

±âÀϳ»¿ª

°æ°ú ³¯Â¥ Àú°¨ ÃÖÀú°¡ °á°ú
Á¢¼öÀÏ 2024-12-03 °æ¸ÅÁ¢¼ö
~0ÀÏ 
2024-12-03 °æ¸Å°³½Ã°áÁ¤
~77ÀÏ 
2025-02-18 ¹è´ç¿ä±¸Á¾±âÀÏ
~296ÀÏ 
2025-09-25 100%
1,202,000,000
À¯Âû
~331ÀÏ 
2025-10-30 70%
841,400,000
À¯Âû
~373ÀÏ 
2025-12-11 49%
588,980,000
ÁøÇà
¹°°Ç¸í¼¼¼­ ÇöȲÁ¶»ç¼­ ¹®°ÇÁ¢¼ö ¼Û´Þ³»¿ª

°¨Á¤Æò°¡ÇöȲ

¸ñ·Ï ÁÖ¼Ò ±¸Á¶/¿ëµµ/´ëÁö±Ç ¸éÀû ºñ°í
´ëÁö±Ç
ÀåÇöµ¿ 671-4 1575.9ºÐÀÇ 11.55 11.55 §³
(3.49Æò)
°Ç¹°
ÀåÇöµ¿ 671-4 1Ãþ112È£ ö±ÙÄÜÅ©¸®Æ®Á¶ 41.58 §³
(12.58Æò)
1) À§Ä¡/µµ½ÃÁö¿ª/ÁØÁÖ°ÅÁö¿ª/Áö±¸´ÜÀ§°èȹ±¸¿ª/ÁÖÂ÷Àå/³ë¼±¹ö½ºÁ¤·ùÀå/ö±ÙÄÜÅ©¸®Æ®±¸Á¶ ´õº¸±â
°¨Á¤Æò°¡ ¿äÇ×Ç¥
1)À§Ä¡ ¹× ÁÖÀ§È¯°æ
º»°ÇÀº °æ±âµµ ½ÃÈï½Ã ÀåÇöµ¿ ¼ÒÀç "½ÃÈï½Ãû" ³²Ãø Àαٿ¡ À§Ä¡Çϸç, ÁÖÀ§´Â °ü°ø¼­, ¾÷¹«Áö±¸, ¾ÆÆÄÆ®´ÜÁö, ´Üµ¶ÁÖÅÃ, ´Ù¼¼´ëÁÖÅÃ, ±Ù¸°»ýȰ½Ã¼³ µîÀÌ È¥ÀçÇÏ´Â Áö¿ªÀÓ.
2)±³Åë»óȲ
º»°Ç±îÁö Á¦¹Ý Â÷·®ÀÇ ÁøÃâÀÔÀÌ ¿ëÀÌÇϰí Àαٿ¡ ³ë¼±¹ö½ºÁ¤·ùÀå ¹× ¼­Çؼ± "½ÃÈï½Ãû¿ª"ÀÌ ¼ÒÀçÇϰí ÀÖ¾î ´ëÁß±³ÅëÀÌ¿ë»çÁ¤Àº ¾çÈ£ÇÔ.
3)°Ç¹°ÀÇ ±¸Á¶
ö±ÙÄÜÅ©¸®Æ®±¸Á¶ (ö±Ù)ÄÜÅ©¸®Æ®ÁöºØ ÁöÇÏ4Ãþ, Áö»ó10Ãþ °Ç³» 1Ãþ 112·Î¼­,
¿Üº®: Ŀư¿ù ¹× ¼®ÀçŸÀÏ µî ¸¶°¨,
³»º®: ¸ôÅ»À§ ÆäÀÎÆÃ ¸¶°¨,
âȣ: °­È­À¯¸® ¸¶°¨ÀÓ.


4)ÀÌ¿ë»óÅÂ
°ÇÃ๰´ëÀå»ó ¿ëµµ´Â Á¦2Á¾±Ù¸°»ýȰ½Ã¼³(ÀϹÝÀ½½ÄÁ¡)À̸ç, ÇöÀåÁ¶»ç½Ã °ø½Ç »óÅÂÀÓ.
5)¼³ºñ³»¿ª
À§»ý ¹× ±Þ¹è¼ö¼³ºñ, ¼ÒÈ­¼³ºñ, ½Â°­±â ¹× ÁÖÂ÷Àå½Ã¼³ÀÌ µÇ¾î ÀÖÀ½.
6)ÅäÁöÀÇ Çü»ó ¹× ÀÌ¿ë»óÅÂ
ÀÎÁ¢Áö¿Í µî°íÆòźÇÏ°Ô Á¶¼ºµÈ »ç´Ù¸®ÇüÀÇ ÅäÁö·Î¼­ »ó¾÷¿ë ¹× ¾÷¹«¿ë °ÇºÎÁö·Î ÀÌ¿ë ÁßÀÓ.
7)ÀÎÁ¢ µµ·Î»óŵî
º»°Ç ºÏÃøÀ¸·Î ¿Õº¹ 6Â÷¼±, ³²ÃøÀ¸·Î ¿Õº¹ 2Â÷¼±, ¼­ÃøÀ¸·Î º¸ÇàÀÚµµ·Î¿Í °¢°¢ Á¢Çϰí ÀÖÀ½.
8)ÅäÁöÀÌ¿ë°èȹ ¹× Á¦ÇÑ»óÅÂ
µµ½ÃÁö¿ª, ÁØÁÖ°ÅÁö¿ª, Áö±¸´ÜÀ§°èȹ±¸¿ª, ¼Ò·Î3·ù(Æø 8m ¹Ì¸¸)(Ư¼öµµ·Î)(Á¢ÇÕ), Áß·Î1·ù(Æø 20m-25m)(Áý»êµµ·Î)(Á¢ÇÕ), Áß·Î3·ù(Æø 12m-15m)(Áý»êµµ·Î)(Á¢ÇÕ) °¡Ãà»çÀ°Á¦Çѱ¸¿ª<°¡ÃàºÐ´¢ÀÇ °ü¸® ¹× À̿뿡 °üÇÑ ¹ý·ü>, °ø°øÁÖÅÃÁö±¸<°ø°øÁÖÅà Ưº°¹ý>, °ú¹Ð¾ïÁ¦±Ç¿ª<¼öµµ±ÇÁ¤ºñ°èȹ¹ý>
9)°øºÎ¿ÍÀÇ Â÷ÀÌ
-
10)±âŸÂü°í»çÇ×(ÀÓ´ë°ü·Ê ¹× ±âŸ)
ÀÓ´ë°ü°è´Â ¹Ì»óÀÓ.
Âü°í
»çÇ×
¨çÇöȲ»ó `°ø½Ç`»óÅÂÀÓ ¨è2025.06.¿ùºÐ±îÁö °ø¿ëºÎºÐ¿¡ ´ëÇÑ °ü¸®ºñ 1,495,450¿øÀÌ ¹Ì³³µÇ¾ú´Ù´Â ½Å°í¼­(÷ºÎÇÑ 2025.07.22.ÀÚ °ü¸®ºñ ¹Ì³³½Å°í¼­ ÂüÁ¶ ¿äÇÔ)°¡ Á¦ÃâµÇ¾î ÀÖÀ½
°ø½ÇÀÓ.

°ÇÃ๰ÇöȲ

¼ÒÀçÁö °æ±âµµ ½ÃÈï½Ã ÀåÇöµ¿ 671-4¹øÁö
´ëÁö¸éÀû 1575.9§³
(477.55Æò)
¿¬¸éÀû 13156.54§³
(3986.83Æò)
°ÇÃà¸éÀû 890.56§³
(269.87Æò)
¿ëÀû·ü»êÁ¤
¿¬¸éÀû
7860.55§³
(2381.98Æò)
°ÇÆóÀ² 56.51% ¿ëÀû·ü 498.8%
Áö»óÃþ¼ö 10Ãþ ÁöÇÏÃþ¼ö 4Ãþ
ÁÖ¿ëµµ ¾÷¹«½Ã¼³ ±¸Á¶ ö±ÙÄÜÅ©¸®Æ®±¸Á¶
Âø°øÀÏÀÚ 2021.09.13 »ç¿ë½ÂÀÎÀÏÀÚ 2023.06.29
°ÇÃ๰Ãþº°ÇöȲ [º¸±â]


µî±âºÎµîº» ¿ä¾à(°Ç¹°)

  Á¢¼öÀÏÀÚ µî±â¸ñÀû/±Ç¸®ÀÚ ±Ç¸®±Ý¾× ±âÁØ
1 2024³â10¿ù22ÀÏ
¼ÒÀ¯±Ç
(OOOO
¼Ò¸ê
2 2024³â10¿ù22ÀÏ
±ÙÀú´ç±Ç
(OOOO
792,000,000 ¼Ò¸ê±âÁØ
3 2024³â12¿ù3ÀÏ
°­Á¦°æ¸Å
±èOO
¼Ò¸ê
4 2025³â1¿ù16ÀÏ
°¡¾Ð·ù
ÁßOOOO
100,522,281 ¼Ò¸ê
5 2025³â5¿ù9ÀÏ
°¡¾Ð·ù
±ÙOOOO
63,900,550 ¼Ò¸ê
6 2025³â8¿ù7ÀÏ
¾Ð·ù
±¹
¼Ò¸ê

ÀÓÂ÷ÀÎÇöȲ (¹è´ç¿ä±¸Á¾±âÀÏ: 2025-02-18)


Á¶»çµÈ ÀÓÂ÷³»¿ªÀÌ ¾ø½À´Ï´Ù


¿©ÀÇÁÖ°æ¸Å Á¶¾ð ÇÑ ¸¶µð

³«Âû ÈÄ¿¡ µî±âºÎ»ó ¼Ò¸êµÇÁö ¾Ê´Â ±Ç¸®´Â ¾ø½À´Ï´Ù.
´ë·«ÀûÀÎ °ËÅäÀǰßÀ̹ǷΠÀÔÂûÀü¿¡ Àü¹®°¡ÀÇ Á¶¾ðÀ» Âü°íÇØ º¸½Ã±æ ±ÇÇØµå¸³´Ï´Ù.
Áߺ¹°æ¸Å »ç°ÇÀÔ´Ï´Ù.
°æ¸Å ½ÅûÀÚÀÇ Ã»±¸±Ý¾×, Áï ±× °æ¸Å½Åû ä±ÇÀÚ°¡ ¹è´ç ¹Þ¾Æ¾ß ÇÒ ±Ý¾×(44,465,397¿ø)ÀÌ °¨Á¤°¡°Ý ´ëºñ ÀûÀº ±Ý¾×ÀÎ °æ¿ì¿¡´Â, ÀϹÝÀûÀ¸·Î °æ¸Å°¡ ÃëÇϵǰųª Ãë¼Ò µÉ °¡´É¼ºÀÌ ÀÖ½À´Ï´Ù. ±×·±µ¥ ÀÌ °æ¸Å´Â ´Ù¸¥ °æ¸Å½Åû(Áߺ¹ 2025Ÿ°æ53581,)ÀÌ µé¾î ¿Í¼­ °æ¸Å°¡ Áߺ¹µÇ¾î ÁøÇàµÇ¹Ç·Î ÃëÇÏ, Ãë¼Ò¾øÀÌ ÁøÇàµÉ ¿©Áö°¡ ¸¹½À´Ï´Ù.
°¨Á¤ ½ÃÁ¡ÀÌ ¿À·¡µÇ¾î °¡°Ýº¯µ¿ÀÌ ÀÖÀ» ¼ö ÀÖ½À´Ï´Ù.
ÀÌ ¹°°ÇÀº 2024³â 12¿ù 3ÀÏ¿¡ °æ¸Å°¡ °³½ÃµÇ¾ú´Âµ¥ Áö±Ý ½ÃÁ¡À¸·Î ¾à 370ÀÏÀÌ ÀÌ °æ°úµÇ¾ú½À´Ï´Ù. °¨Á¤°¡°ÝÀº 370ÀÏ Àü ½ÃÁ¡¿¡¼­ Æò°¡ÇÑ °¡°ÝÀ̹ǷΠ±× »çÀÌ °¡°Ýº¯µ¿ÀÌ ÀÖÀ» ¼ö ÀÖ½À´Ï´Ù. ƯÈ÷ °¡°Ý º¯µ¿ÀÌ ½ÉÇÑ ¾ÆÆÄÆ®´Â À¯ÀÇÇÏ¼Å¾ß ÇÕ´Ï´Ù. °¨Á¤°¡°ÝÀ» ³Ê¹« ¹ÏÁö ¸¶½Ã°í ÇöÀç ½Ç¸Å¹° °¡°Ý°ú ½Ç°Å·¡°¡¸¦ È®ÀÎÇϽñ⠹ٶø´Ï´Ù.
°£È¤ °¨Á¤°¡°Ýº¸´Ù ³ô°Ô ³«ÂûµÇ´Â °æ¿ì°¡ Àִµ¥ ´ëºÎºÐ ÀÌ·± ÀÌÀ¯ÀÔ´Ï´Ù.
¡Ø ¹°°Ç Ű¿öµå : µµ½ÃÁö¿ª/ÁÖ°ÅÁö¿ª/ÁØÁÖ°ÅÁö¿ª/Áö±¸´ÜÀ§°èȹ±¸¿ª/¹ö½ºÁ¤·ùÀå/ÁÖÂ÷Àå/³ë¼±¹ö½ºÁ¤·ùÀå/ö±ÙÄÜÅ©¸®Æ®±¸Á¶
Àüü ÄÁ¼³ÆÃÀÌ ºÎ´ã½º·¯¿ì½Å°¡¿ä? ±Ç¸®ºÐ¼®¸¸ ÀÇ·ÚÇϼŵµ ±¦Âú½À´Ï´Ù!
½Ç¼Ó ÀÖ°Ô Çٽɸ¸ ´ãÀº ±Ç¸®ºÐ¼® ¼­ºñ½º!! (±Ç¸®ºÐ¼® + ½Ã¼¼Á¶»ç + ³«Âû°¡ »êÁ¤ + ÀÔÂûÇ¥ ÀÛ¼º¹æ¹ý ±îÁö)
ÃÖ´ë Àüü ÄÁ¼³ÆÃ ºñ¿ëÀÇ 10% ¼öÁØ !!

ÁÖÀÇ»çÇ× (ÃÖ¼±¼øÀ§ ¼³Á¤ÀÏ: 2024.10.22. (±ÙÀú´ç±Ç) ¼³Á¤)

¸Å°¢À¸·Î ¼Ò¸êµÇÁö ¾Ê´Â µî±âºÎ±Ç¸®:
¸Å°¢À¸·Î ¼³Á¤µÈ °ÍÀ¸·Î º¸´Â Áö»ó±Ç:
¨çÇöȲ»ó `°ø½Ç`»óÅÂÀÓ ¨è2025.06.¿ùºÐ±îÁö °ø¿ëºÎºÐ¿¡ ´ëÇÑ °ü¸®ºñ 1,495,450¿øÀÌ ¹Ì³³µÇ¾ú´Ù´Â ½Å°í¼­(÷ºÎÇÑ 2025.07.22.ÀÚ °ü¸®ºñ ¹Ì³³½Å°í¼­ ÂüÁ¶ ¿äÇÔ)°¡ Á¦ÃâµÇ¾î ÀÖÀ½
¡Ø¹Ì³³°ü¸®ºñ(°ø¿ë) Àμö¿©ºÎ¸¦ ÀÔÂû Àü¿¡ È®ÀÎÇϽñ⠹ٶø´Ï´Ù

 

Áö¿ªºÐ¼®

ÁöÇÏö¸í Á÷¼±°Å¸®

Çб³¸í ÀüÈ­¹øÈ£ ÁÖ¼Ò Á÷¼±°Å¸®

¹ý¿ø

¼ö¿øÁö¹æ¹ý¿ø ¾È»êÁö¿ø (140-54)°æ±âµµ ¾È»ê½Ã ´Ü¿ø±¸ ±¤´ö¼­·Î 75 (°íÀܵ¿)
´ëÇ¥ : 031)481-1114, ¹Î¿ø : 031)481-1238, ¾ß°£ : 031)481-1112
°üÇÒÁö¿ª : ¾È»ê½Ã, ±¤¸í½Ã, ½ÃÈï½Ã

µî±â¼Ò ¼ö¿øÁö¹æ¹ý¿ø ¾È»êÁö¿ø ½ÃÈïµî±â¼Ò (´ëÇ¥:1544-0773, ÆÑ½º:(031)317-8903, 8904, °æ±âµµ ½ÃÈï½Ã ¿¬¼º·Î 31 (ÇÏÁßµ¿ 872-1))
¼¼¹«¼­ ½ÃÈï¼¼¹«¼­ (´ëÇ¥:031-310-72, ÆÑ½º:02-314-3973, °æ±âµµ ½ÃÈï½Ã ¸¶À¯·Î 368 (Á¤¿Õµ¿))

Àαٳ«ÂûÅë°è

±â°£ ¸Å°¢°Ç¼ö Æò±Õ°¨Á¤°¡
Æò±Õ¸Å°¢°¡
¸Å°¢°¡À²
Æò±ÕÀ¯Âû¼ö
3°³¿ù 32°Ç 595,812,500¿ø
158,842,943¿ø
30%
4.3ȸ
6°³¿ù 63°Ç 577,333,333¿ø
169,153,144¿ø
31%
4.3ȸ
12°³¿ù 111°Ç 532,279,279¿ø
172,561,842¿ø
35%
3.9ȸ


º» °æ¸ÅÁ¤º¸´Â ¹ý¿øÀÚ·á¿Í ÀÏÄ¡Çϵµ·Ï ÇÏ¿´À¸³ª ±Ç¸®»çÇ׺¯µ¿, ÀÔ·ÂÂø¿À µîÀÇ ¿øÀÎÀ¸·Î »ç½Ç°ú ´Ù¸¦ ¼ö ÀÖ½À´Ï´Ù. ÀÌ¿ë¾à°ü¿¡ ÀǰЏéÃ¥Á¶°ÇÀ¸·Î Á¦°øµÊÀ» ¾Ë¸®¸ç, °æ¸ÅÀÔÂû½Ã ¹Ýµå½Ã °ü·Ã °øºÎ¸¦ ÀçÈ®ÀÎÇϽñ⠹ٶø´Ï´Ù. º¸´Ù Æí¸®ÇÑ °æ¸ÅÁ¤º¸ Á¦°øÀ» À§ÇØ Áö¼ÓÀûÀ¸·Î °³¼±ÇϰڽÀ´Ï´Ù. ÀÌ¿ëÇØ Áּż­ °¨»çÇÕ´Ï´Ù.
°ü½É¹°°ÇÀ¸·Î µî·ÏÇÕ´Ï´Ù