119
¾ÆÆÄÆ®
¼ö¿øÁö¹æ¹ý¿ø
 °¨Á¤°¡50,000,000 ¿ø
 ÃÖÀú°¡(34%) 17,150,000 ¿ø
 º¸Áõ±Ý(10%) 1,715,000 ¿ø
 Ã»±¸¾×55,000,000 ¿ø
°æ±âµµ È­¼º½Ã µ¿Åº¹®È­¼¾ÅÍ·Î 71-17, 5Ãþ519È£ (¹Ý¼Ûµ¿,¿¬¼¼ÇÁ¶óÀÚ)
°æ±âµµ È­¼º½Ã ¹Ý¼Ûµ¿ 107-4
»ç°Ç¹øÈ£ 2024Ÿ°æ90636
°æ¸ÅÁ¾·ùºÎµ¿»ê°­Á¦°æ¸Å
¸Å°¢´ë»óÅäÁö ¹× °Ç¹°Àϰý ¸Å°¢
¸Å°¢±âÀÏ    2026.01.06(È­) 10:00 ÀÔÂû 24ÀÏÀü    
ÅäÁö¸éÀû3.09§³(0.93 Æò)
°Ç¹°¸éÀû13.22§³(4.00 Æò)
乫/¼ÒÀ¯ÀÚ±ÇOO / ±ÇOO
ä±ÇÀÚÀÌOO
±è¼ºÈÆ ´ëÇ¥ÀÌ»ç
°øÀÎÁß°³»ç, ºÎµ¿»ê°ø°æ¸Å»ç, ÇѾç´ëÇб³ Á¹¾÷
Àü) ÅÂÀÎÄÁ¼³ÆÃ(ÁÖ) ´ëÇ¥ÀÌ»ç
Àü) ¿©ÀÇÁֺε¿»êÁß°³¹ýÀÎ(ÁÖ) ´ëÇ¥ÀÌ»ç
Çö) ¿©ÀÇÁÖ°æ¸Å¹ýÀÎ ´ëÇ¥ÀÌ»ç
010-2371-3237
ÆäÀ̽ººÏ Æ®À§ÅÍ ±¸±Û+
īī¿À½ºÅ丮
īī¿ÀÅå sms¹®ÀÚº¸³»±â
 

±âÀϳ»¿ª

°æ°ú ³¯Â¥ Àú°¨ ÃÖÀú°¡ °á°ú
Á¢¼öÀÏ 2024-09-24 °æ¸ÅÁ¢¼ö
~1ÀÏ 
2024-09-25 °æ¸Å°³½Ã°áÁ¤
~73ÀÏ 
2024-12-06 ¹è´ç¿ä±¸Á¾±âÀÏ
~364ÀÏ 
2025-09-23 100%
50,000,000
À¯Âû
~405ÀÏ 
2025-11-03 70%
35,000,000
À¯Âû
~435ÀÏ 
2025-12-03 49%
24,500,000
À¯Âû
~469ÀÏ 
2026-01-06 34%
17,150,000
ÁøÇà
¹°°Ç¸í¼¼¼­ ÇöȲÁ¶»ç¼­ ¹®°ÇÁ¢¼ö ¼Û´Þ³»¿ª

°¨Á¤Æò°¡ÇöȲ

¸ñ·Ï ÁÖ¼Ò ±¸Á¶/¿ëµµ/´ëÁö±Ç ¸éÀû ºñ°í
´ëÁö±Ç
¹Ý¼Ûµ¿ 107-4 640ºÐÀÇ 3.089 3.089 §³
(0.93Æò)
°Ç¹°
¹Ý¼Ûµ¿ 107-4 5Ãþ519È£ ÀϹÝö°ñ±¸Á¶ 13.22 §³
(4.00Æò)
1) À§Ä¡/Á߽ɻó¾÷Áö¿ª/Áö±¸´ÜÀ§°èȹ±¸¿ª/¹ö½ºÁ¤·ùÀå/Â÷·®ÁøÃâÀÔ °¡´É/Â÷·®ÁøÃâÀÔ °¡´É/ö±ÙÄÜÅ©¸®Æ®±¸Á¶/°³º°³­¹æ ´õº¸±â
°¨Á¤Æò°¡ ¿äÇ×Ç¥
1)À§Ä¡ ¹× ÁÖÀ§È¯°æ
º»°ÇÀº °æ±âµµ È­¼º½Ã ¹Ý¼Ûµ¿ ¼ÒÀç "¼ÖºûÃʵîÇб³" ºÏÃø ¿¡ À§Ä¡ÇÑ ºÎµ¿»êÀ¸·Î¼­ ÁÖÀ§´Â ¾ÆÆÄÆ®´ÜÁö, ±Ù¸°»ýȰ½Ã¼³, Çб³ µîÀÌ È¥ÀçÇÏ´Â Áö´ë·Î¼­ Á¦¹Ý ÁÖÀ§È¯°æÀº º¸Åë½ÃµÊ.
2)±³Åë»óȲ
º»°Ç±îÁö Â÷·®ÁøÃâÀÔ °¡´ÉÇϰí, Àαٿ¡ ¹ö½ºÁ¤·ùÀåÀÌ ¼ÒÀçÇÏ´Â µî Á¦¹Ý ±³Åë¿©°ÇÀº ´ëü·Î º¸Åë½ÃµÊ.
3)°Ç¹°ÀÇ ±¸Á¶
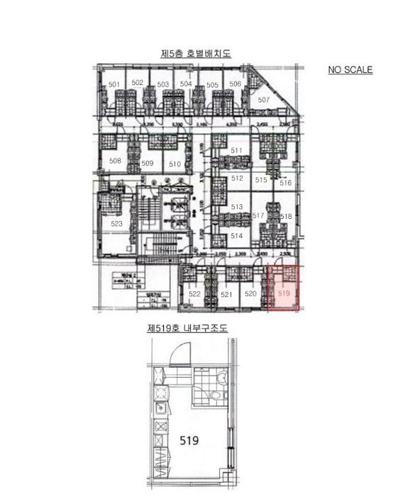
º»°ÇÀº ÀϹÝö°ñ±¸Á¶(ÁöÇÏ-ö±ÙÄÜÅ©¸®Æ®±¸Á¶)(ö±Ù)ÄÜÅ©¸®Æ®ÁöºØ 10Ãþ ³» Á¦5Ãþ 519È£·Î¼­,
¿Üº® : ¼®ÀçºÙÀÓ, Æä¾î±Û¶ó½º âȣ ¸¶°¨ µî
³»º® : º®Áöµµ¹è, ÀϺΠŸÀϸ¶°¨ µî,
âȣ : »õ½Ãâ µîÀÓ.
4)ÀÌ¿ë»óÅÂ
º»°ÇÀº ¾ÆÆÄÆ®·Î ÀÌ¿ëÁßÀÓ.(Èĸ顮³»ºÎ±¸Á¶µµ¡¯ ÂüÁ¶)
5)¼³ºñ³»¿ª
À§»ý, ±Þ¹è¼ö, °³º°³­¹æ¼³ºñ, ½Â°­±â¼³ºñ, ¼ÒÈ­Àü¼³ºñ, È­ÀçŽÁö¼³ºñ µî ±¸ºñµÇ¾î ÀÖÀ½.
6)ÅäÁöÀÇ Çü»ó ¹× ÀÌ¿ë»óÅÂ
´ëü·Î À广Çü ÅäÁö·Î¼­ ¾ÆÆÄÆ® ¹× ±Ù¸°»ýȰ½Ã¼³ °ÇºÎÁö·Î ÀÌ¿ëÁßÀÓ.
7)ÀÎÁ¢ µµ·Î»óŵî
º»°Ç ºÏÃø ¹× µ¿ÃøÀ¸·Î ¾à 15¹ÌÅͳ»¿ÜÀÇ µµ·Î¿¡ °¢°¢ Á¢Çϰí ÀÖÀ½.
8)ÅäÁöÀÌ¿ë°èȹ ¹× Á¦ÇÑ»óÅÂ
Á߽ɻó¾÷Áö¿ª, ƯÁ¤¿ëµµÁ¦ÇÑÁö±¸, Áö±¸´ÜÀ§°èȹ±¸¿ª(µ¿Åº(1)Áö±¸), Áß·Î2·ù(Æø 15m-20m)(Á¢ÇÕ) °¡Ãà»çÀ°Á¦Çѱ¸¿ª(ÀüºÎÁ¦ÇÑ)<°¡ÃàºÐ´¢ÀÇ °ü¸® ¹× À̿뿡 °üÇÑ ¹ý·ü>, ¼ºÀå°ü¸®±Ç¿ª<¼öµµ±ÇÁ¤ºñ°èȹ¹ý>
9)°øºÎ¿ÍÀÇ Â÷ÀÌ
--
10)±âŸÂü°í»çÇ×(ÀÓ´ë°ü·Ê ¹× ±âŸ)
ÀÓ´ë°ü°è ¹Ì»óÀÓ.
Âü°í
»çÇ×

ÇØ´ç ºÎµ¿»êÀÇ ÇöȲÀº ¿Ü°ü»ó °øºÎÀÇ ³»¿ë°ú ÀÏÄ¡ÇÏ´Â °ÍÀ¸·Î º¸ÀÓ.

°ÇÃ๰ÇöȲ

¼ÒÀçÁö °æ±âµµ È­¼º½Ã ¹Ý¼Ûµ¿ 107-4¹øÁö
´ëÁö¸éÀû 640§³
(193.94Æò)
¿¬¸éÀû 6235.76§³
(1889.62Æò)
°ÇÃà¸éÀû 510.7§³
(154.76Æò)
¿ëÀû·ü»êÁ¤
¿¬¸éÀû
4589.46§³
(1390.75Æò)
°ÇÆóÀ² 79.8% ¿ëÀû·ü 717.1%
Áö»óÃþ¼ö 10Ãþ ÁöÇÏÃþ¼ö 4Ãþ
ÁÖ¿ëµµ Á¦2Á¾±Ù¸°»ýȰ½Ã¼³ ±¸Á¶ ÀϹÝö°ñ±¸Á¶
Âø°øÀÏÀÚ 2006.07.01 »ç¿ë½ÂÀÎÀÏÀÚ 2007.07.24
°ÇÃ๰Ãþº°ÇöȲ [º¸±â]


±¹ÅäºÎ½Ç°Å·¡°¡ °æ±âµµ È­¼º½Ã ¹Ý¼Ûµ¿

¡Ü ¸Å¸Å

¸éÀû(§³), ±Ý¾×(¸¸¿ø)

¡Ü Àü¼¼

¸éÀû(§³), ±Ý¾×(¸¸¿ø)

°è¾àÀÏARTÃþÀü¿ë±Ý¾×°ÇÃà
24.01.22µ¿Åº¿¡½º¿ø¼¾Æ®·Îºô412.644,7002007
24.01.19µ¿Åº¿¡½º¿ø¼¾Æ®·Îºô912.693,2002007
24.01.12µ¿Åº¿¡½º¿ø¼¾Æ®·Îºô413.763,7002007

µî±âºÎµîº» ¿ä¾à(°Ç¹°)

  Á¢¼öÀÏÀÚ µî±â¸ñÀû/±Ç¸®ÀÚ ±Ç¸®±Ý¾× ±âÁØ
1 2022³â9¿ù28ÀÏ
¼ÒÀ¯±Ç
±ÇOO
¼Ò¸ê
2 2022³â12¿ù1ÀÏ
¾Ð·ù
±¹
¼Ò¸ê±âÁØ
3 2024³â7¿ù4ÀÏ
ÀÓÂ÷±Ç¼³Á¤
ÀÌOO
55,000,000 ¼Ò¸ê
4 2024³â9¿ù3ÀÏ
°¡¾Ð·ù
ÁÖOOOO
658,000,000 ¼Ò¸ê
5 2024³â9¿ù25ÀÏ
°­Á¦°æ¸Å
ÀÌOO
¼Ò¸ê

ÀÓÂ÷ÀÎÇöȲ (¹è´ç¿ä±¸Á¾±âÀÏ: 2024-12-06)

ÀÓÂ÷ÀÎ ¿ëµµ/Á¡À¯ º¸Áõ±Ý/¿ù¼¼ ´ëÇ×·Â
ÀüÀÔÀÏ/È®Á¤ÀÏ ¹è´ç¿ä±¸ ºñ°í
ÀÌOO 519È£ 55,000,000
O
2022.06.17.
2022.06.17.
2024.9.24. 2022.06.17.~2024.06.17.
ºñ°í
(¸Å°¢¹°°Ç
¸í¼¼¼­)
ÀÌÇöºó:ÁÖÅÃÀÓÂ÷±Çµî±â±ÇÀڷμ­ ½Åûä±ÇÀÚÀ̰í, ¹è´ç¿ä±¸ÀÏÀÚ´Â °æ¸Å½ÅûÀÏÀÓ

¿©ÀÇÁÖ°æ¸Å Á¶¾ð ÇÑ ¸¶µð

¸Å°¢¹°°Ç¸í¼¼ ºñ°í³­¿¡ ±âÀçµÈ ³»¿ëÀÔ´Ï´Ù.
ÀÌÇöºó:ÁÖÅÃÀÓÂ÷±Çµî±â±ÇÀڷμ­ ½Åûä±ÇÀÚÀ̰í, ¹è´ç¿ä±¸ÀÏÀÚ´Â °æ¸Å½ÅûÀÏÀÓ
³«Âû ÈÄ¿¡ µî±âºÎ»ó ¼Ò¸êµÇÁö ¾Ê´Â ±Ç¸®ÀÔ´Ï´Ù.
À»±¸ ¼øÀ§ 5¹ø Á¢¼ö¹øÈ£ Á¦178545È£ ÁÖÅÃÀÓÂ÷±Ç¼³Á¤µî±â(ÀÓÂ÷º¸Áõ±Ý 55,000,000¿ø, ÀüÀÔÀÏ 2022. 6. 17., È®Á¤ÀÏÀÚ 2022. 6. 17.)´Â º¸Áõ±ÝÀÌ Àü¾× ¹è´çµÇÁö ¾ÊÀ¸¸é ¸»¼ÒµÇÁö ¾ÊÀ½
ü³³°ü¸®ºñ¸¦ ºÎ´ãÇÒ ¼ö ÀÖ½À´Ï´Ù.
°¨Á¤ ½ÃÁ¡ÀÌ ¿À·¡µÇ¾î °¡°Ýº¯µ¿ÀÌ ÀÖÀ» ¼ö ÀÖ½À´Ï´Ù.
ÀÌ ¹°°ÇÀº 2024³â 9¿ù 25ÀÏ¿¡ °æ¸Å°¡ °³½ÃµÇ¾ú´Âµ¥ Áö±Ý ½ÃÁ¡À¸·Î ¾à 444ÀÏÀÌ ÀÌ °æ°úµÇ¾ú½À´Ï´Ù. °¨Á¤°¡°ÝÀº 444ÀÏ Àü ½ÃÁ¡¿¡¼­ Æò°¡ÇÑ °¡°ÝÀ̹ǷΠ±× »çÀÌ °¡°Ýº¯µ¿ÀÌ ÀÖÀ» ¼ö ÀÖ½À´Ï´Ù. ƯÈ÷ °¡°Ý º¯µ¿ÀÌ ½ÉÇÑ ¾ÆÆÄÆ®´Â À¯ÀÇÇÏ¼Å¾ß ÇÕ´Ï´Ù. °¨Á¤°¡°ÝÀ» ³Ê¹« ¹ÏÁö ¸¶½Ã°í ÇöÀç ½Ç¸Å¹° °¡°Ý°ú ½Ç°Å·¡°¡¸¦ È®ÀÎÇϽñ⠹ٶø´Ï´Ù.
°£È¤ °¨Á¤°¡°Ýº¸´Ù ³ô°Ô ³«ÂûµÇ´Â °æ¿ì°¡ Àִµ¥ ´ëºÎºÐ ÀÌ·± ÀÌÀ¯ÀÔ´Ï´Ù.
¡Ø ¹°°Ç Ű¿öµå : »ó¾÷Áö¿ª/Á߽ɻó¾÷Áö¿ª/Áö±¸´ÜÀ§°èȹ±¸¿ª/¹ö½ºÁ¤·ùÀå/Â÷·®ÁøÃâÀÔ °¡´É/Â÷·®ÁøÃâÀÔ °¡´É/ö±ÙÄÜÅ©¸®Æ®±¸Á¶/°³º°³­¹æ
Àüü ÄÁ¼³ÆÃÀÌ ºÎ´ã½º·¯¿ì½Å°¡¿ä? ±Ç¸®ºÐ¼®¸¸ ÀÇ·ÚÇϼŵµ ±¦Âú½À´Ï´Ù!
½Ç¼Ó ÀÖ°Ô Çٽɸ¸ ´ãÀº ±Ç¸®ºÐ¼® ¼­ºñ½º!! (±Ç¸®ºÐ¼® + ½Ã¼¼Á¶»ç + ³«Âû°¡ »êÁ¤ + ÀÔÂûÇ¥ ÀÛ¼º¹æ¹ý ±îÁö)
ÃÖ´ë Àüü ÄÁ¼³ÆÃ ºñ¿ëÀÇ 10% ¼öÁØ !!

ÁÖÀÇ»çÇ× (ÃÖ¼±¼øÀ§ ¼³Á¤ÀÏ: 2022. 12. 1. ¾Ð·ù ¼³Á¤)

¸Å°¢À¸·Î ¼Ò¸êµÇÁö ¾Ê´Â µî±âºÎ±Ç¸®: À»±¸ ¼øÀ§ 5¹ø Á¢¼ö¹øÈ£ Á¦178545È£ ÁÖÅÃÀÓÂ÷±Ç¼³Á¤µî±â(ÀÓÂ÷º¸Áõ±Ý 55,000,000¿ø, ÀüÀÔÀÏ 2022. 6. 17., È®Á¤ÀÏÀÚ 2022. 6. 17.)´Â º¸Áõ±ÝÀÌ Àü¾× ¹è´çµÇÁö ¾ÊÀ¸¸é ¸»¼ÒµÇÁö ¾ÊÀ½
¸Å°¢À¸·Î ¼³Á¤µÈ °ÍÀ¸·Î º¸´Â Áö»ó±Ç:
¡Ø¹Ì³³°ü¸®ºñ(°ø¿ë) Àμö¿©ºÎ¸¦ ÀÔÂû Àü¿¡ È®ÀÎÇϽñ⠹ٶø´Ï´Ù

 

Áö¿ªºÐ¼®

ÁöÇÏö¸í Á÷¼±°Å¸®

Çб³¸í ÀüÈ­¹øÈ£ ÁÖ¼Ò Á÷¼±°Å¸®

¹ý¿ø

¼ö¿øÁö¹æ¹ý¿ø (165-12)°æ±âµµ ¼ö¿ø½Ã ¿µÅ뱸 ¹ýÁ¶·Î 105, Çϵ¿, ¼ö¿ø¹ý¿øÁ¾ÇÕû»ç
´ëÇ¥ : 031)210-1114, ¾ß°£ : 031)210-1111
°üÇÒÁö¿ª : ¼ö¿ø½Ã, ¿À»ê½Ã, È­¼º½Ã, ¿ëÀνÃ

µî±â¼Ò ¼ö¿øÁö¹æ¹ý¿ø º»¿ø È­¼ºµî±â¼Ò (´ëÇ¥:1544-0773, ÆÑ½º:(031)375-3964, °æ±âµµ ¿À»ê½Ã ¹ý¿ø·Î 65 (±Èµ¿ 662))
¼¼¹«¼­ µ¿¼ö¿ø¼¼¹«¼­ (´ëÇ¥:031-695-42, ÆÑ½º:031-273-2416, °æ±âµµ ¼ö¿ø½Ã ¿µÅ뱸 û¸í³²·Î 13 (¿µÅ뵿))

Àαٳ«ÂûÅë°è

±â°£ ¸Å°¢°Ç¼ö Æò±Õ°¨Á¤°¡
Æò±Õ¸Å°¢°¡
¸Å°¢°¡À²
Æò±ÕÀ¯Âû¼ö
3°³¿ù 57°Ç 469,789,474¿ø
418,372,776¿ø
88%
1ȸ
6°³¿ù 112°Ç 445,375,000¿ø
398,227,720¿ø
88%
1.1ȸ
12°³¿ù 238°Ç 457,785,714¿ø
411,666,685¿ø
89%
1ȸ


º» °æ¸ÅÁ¤º¸´Â ¹ý¿øÀÚ·á¿Í ÀÏÄ¡Çϵµ·Ï ÇÏ¿´À¸³ª ±Ç¸®»çÇ׺¯µ¿, ÀÔ·ÂÂø¿À µîÀÇ ¿øÀÎÀ¸·Î »ç½Ç°ú ´Ù¸¦ ¼ö ÀÖ½À´Ï´Ù. ÀÌ¿ë¾à°ü¿¡ ÀǰЏéÃ¥Á¶°ÇÀ¸·Î Á¦°øµÊÀ» ¾Ë¸®¸ç, °æ¸ÅÀÔÂû½Ã ¹Ýµå½Ã °ü·Ã °øºÎ¸¦ ÀçÈ®ÀÎÇϽñ⠹ٶø´Ï´Ù. º¸´Ù Æí¸®ÇÑ °æ¸ÅÁ¤º¸ Á¦°øÀ» À§ÇØ Áö¼ÓÀûÀ¸·Î °³¼±ÇϰڽÀ´Ï´Ù. ÀÌ¿ëÇØ Áּż­ °¨»çÇÕ´Ï´Ù.
°ü½É¹°°ÇÀ¸·Î µî·ÏÇÕ´Ï´Ù