2903
¿ÀÇǽºÅÚ
¿ï»êÁö¹æ¹ý¿ø
 °¨Á¤°¡113,000,000 ¿ø
 ÃÖÀú°¡(34%) 38,759,000 ¿ø
 º¸Áõ±Ý(10%) 3,875,900 ¿ø
 Ã»±¸¾×130,156,177 ¿ø
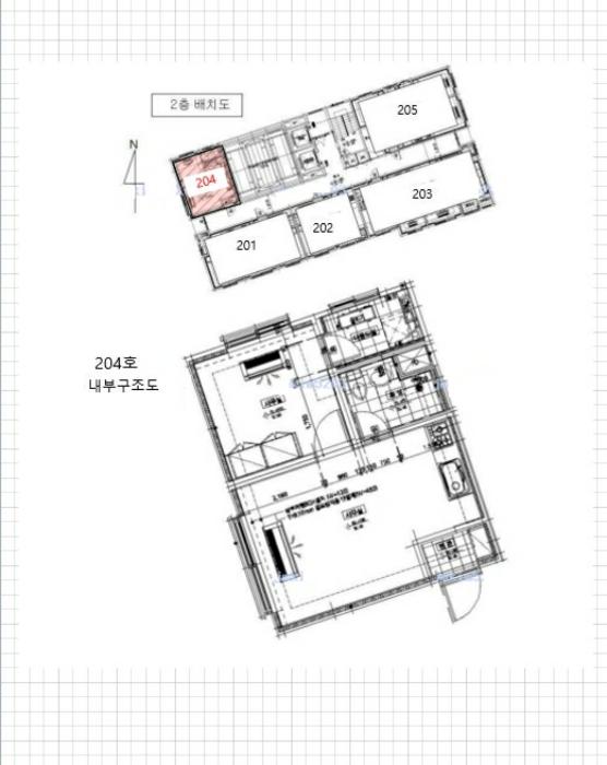
¿ï»ê±¤¿ª½Ã ³²±¸ Áß¾Ó·Î242¹ø±æ 6, 2Ãþ204È£ (½ÅÁ¤µ¿,´ë»óÀ£¸®¿ò)
¿ï»ê±¤¿ª½Ã ³²±¸ ½ÅÁ¤µ¿ 508-11
»ç°Ç¹øÈ£ 2024Ÿ°æ115972
°æ¸ÅÁ¾·ùºÎµ¿»ê°­Á¦°æ¸Å
¸Å°¢´ë»óÅäÁö ¹× °Ç¹°Àϰý ¸Å°¢
¸Å°¢±âÀÏ    2025.11.25(È­) 10:00 ÀÔÂû 17ÀÏÀü    
ÅäÁö¸éÀû5.64§³(1.71 Æò)
°Ç¹°¸éÀû33.89§³(10.25 Æò)
乫/¼ÒÀ¯ÀÚ³ëOO / ³ëOO
ä±ÇÀÚÁÖOOOOOOO
±è¼ºÈÆ ´ëÇ¥ÀÌ»ç
°øÀÎÁß°³»ç, ºÎµ¿»ê°ø°æ¸Å»ç, ÇѾç´ëÇб³ Á¹¾÷
Àü) ÅÂÀÎÄÁ¼³ÆÃ(ÁÖ) ´ëÇ¥ÀÌ»ç
Àü) ¿©ÀÇÁֺε¿»êÁß°³¹ýÀÎ(ÁÖ) ´ëÇ¥ÀÌ»ç
Çö) ¿©ÀÇÁÖ°æ¸Å¹ýÀÎ ´ëÇ¥ÀÌ»ç
010-2371-3237
ÆäÀ̽ººÏ Æ®À§ÅÍ ±¸±Û+
īī¿À½ºÅ丮
īī¿ÀÅå sms¹®ÀÚº¸³»±â
 

±âÀϳ»¿ª

°æ°ú ³¯Â¥ Àú°¨ ÃÖÀú°¡ °á°ú
Á¢¼öÀÏ 2024-09-23 °æ¸ÅÁ¢¼ö
~1ÀÏ 
2024-09-24 °æ¸Å°³½Ã°áÁ¤
~84ÀÏ 
2024-12-16 ¹è´ç¿ä±¸Á¾±âÀÏ
~323ÀÏ 
2025-08-12 100%
113,000,000
À¯Âû
~358ÀÏ 
2025-09-16 70%
79,100,000
À¯Âû
~393ÀÏ 
2025-10-21 49%
55,370,000
À¯Âû
~428ÀÏ 
2025-11-25 34%
38,759,000
ÁøÇà
¹°°Ç¸í¼¼¼­ ÇöȲÁ¶»ç¼­ ¹®°ÇÁ¢¼ö ¼Û´Þ³»¿ª

°¨Á¤Æò°¡ÇöȲ

¸ñ·Ï ÁÖ¼Ò ±¸Á¶/¿ëµµ/´ëÁö±Ç ¸éÀû ºñ°í
´ëÁö±Ç
½ÅÁ¤µ¿ 508-4 759.3ºÐÀÇ 5.64 5.64 §³
(1.71Æò)
°Ç¹°
½ÅÁ¤µ¿ 508-4 2Ãþ204È£ ö±ÙÄÜÅ©¸®Æ®±¸Á¶ 33.89 §³
(10.25Æò)
1) À§Ä¡/µµ½ÃÁö¿ª/ÀϹݻó¾÷Áö¿ª/³ë¼±¹ö½º Á¤·ùÀå/ö±ÙÄÜÅ©¸®Æ®±¸Á¶/°³º°³­¹æ ´õº¸±â
°¨Á¤Æò°¡ ¿äÇ×Ç¥
1)À§Ä¡ ¹× ÁÖÀ§È¯°æ
¿ï»ê±¤¿ª½Ã ³²±¸ ½ÅÁ¤µ¿ ¼ÒÀç "¿ï»ê±¤¿ª½Ãû" ºÏÃø Àαٿ¡ À§Ä¡Çϸç ÁÖÀ§´Â ±Ù¸°»ýȰ½Ã¼³°ú ¿ÀÇǽºÅÚ ¹× ÁÖÇ׺¹ÇÕ¾ÆÆÄÆ® ¹× ºô¶ó¿Í ÀϹÝÁÖÅÃÀÌ È¥ÀçÇØ ÀÖ´Â Áö¿ªÀ¸·Î ȯ°æ º¸Åë½ÃµÇ´Â Áö¿ªÀÔ´Ï´Ù.
2)±³Åë»óȲ
º»°Ç±îÁö ¼ÒÇü Â÷·® ÃâÀÔ ÁöÀ¯·Î¿ì¸ç ´ëÁß±³ÅëÀÎ ³ë¼±¹ö½º Á¤·ùÀåµµ ÀαÙÀ¸·Î Á¦¹Ý ±³Åë»çÁ¤ Æí¸®ÇÕ´Ï´Ù.
3)°Ç¹°ÀÇ ±¸Á¶
ö±ÙÄÜÅ©¸®Æ®±¸Á¶ (ö±Ù)ÄÜÅ©¸®Æ®ÁöºØ 18Ãþ °ÇÁß Á¦2Ãþ Á¦204È£·Î
¿Üº® : Ä¡Àå¼® ¹× ¸ôÅ»À§ ÆäÀÎÆÃ¸¶°¨
³»º® : º®Áö ¹× ŸÀϸ¶°¨
âȣ : »õ½ÃâÀ¸·Î »óÅ º¸ÅëÀÎ °Ç¹°ÀÔ´Ï´Ù.
4)ÀÌ¿ë»óÅÂ
¿ÀÇǽºÅÚ·Î ÀÌ¿ëÁßÀÔ´Ï´Ù.
5)¼³ºñ³»¿ª
À§»ý ¹× ±Þ,¹è¼ö¼³ºñ¿Í °³º°³­¹æ¿¡ ÀÇÇÑ ¿Â¼ö,±ÞÅÁ¼³ºñ°¡ µÇ¾î ÀÖÀ¸¸ç °ø¿ëÀ¸·Î ½Â°­±â¼³ºñ¿Í ¼ÒÈ­Àü¼³ºñ°¡ µÇ¾î ÀÖ½À´Ï´Ù.
6)ÅäÁöÀÇ Çü»ó ¹× ÀÌ¿ë»óÅÂ
3ÇÊÁö ÀÏ´ÜÀÇ ¼¼ÀåÇü ÅäÁö·Î ¿ÀÇǽºÅÚ ºÎÁö·Î ÀÌ¿ëÁßÀÔ´Ï´Ù.
7)ÀÎÁ¢ µµ·Î»óŵî
ºÏÃøÀ¸·Î ·ÎÆø ¾à 4¹ÌÅÍÀÇ Æ÷Àåµµ·Î¿¡ Á¢ÇÕ´Ï´Ù.
8)ÅäÁöÀÌ¿ë°èȹ ¹× Á¦ÇÑ»óÅÂ
µµ½ÃÁö¿ª,ÀϹݻó¾÷Áö¿ª,¼Ò·Î3·ù(Æø 8m ¹Ì¸¸)(Á¢ÇÕ)£ÛÀÌÇϰø¶õ£Ý,°¡Ãà»çÀ°Á¦Çѱ¸¿ª¡´°¡ÃàºÐ´¢ÀÇ °ü¸® ¹× À̿뿡 °üÇÑ ¹ý·ü¡µ,»ó´ëº¸È£±¸¿ª(2017-03-30)(¿ï»êÁßÃʵîÇб³)¡´±³À°È¯°æ º¸È£¿¡ °üÇÑ ¹ý·ü¡µ£ÛÀÌÇϰø¶õ£Ý
9)°øºÎ¿ÍÀÇ Â÷ÀÌ
ÇØ´ç ¾ø½À´Ï´Ù.
10)±âŸÂü°í»çÇ×(ÀÓ´ë°ü·Ê ¹× ±âŸ)
ÀÓ´ë°ü°è : ¹Ì»óÀÔ´Ï´Ù.
±â Ÿ : ¾ø½À´Ï´Ù.
Âü°í
»çÇ×

º» °ÇÀº ¿ï»ê ³²±¸


±¹ÅäºÎ½Ç°Å·¡°¡ ¿ï»ê±¤¿ª½Ã ³²±¸ ½ÅÁ¤µ¿

¡Ü ¸Å¸Å

¸éÀû(§³), ±Ý¾×(¸¸¿ø)

¡Ü Àü¼¼

¸éÀû(§³), ±Ý¾×(¸¸¿ø)

°è¾àÀϰǹ°¸íĪÃþÀü¿ëº¸Áõ±Ý¿ù¼¼°ÇÃà
25.10.02´ë»óÀ£¸®¿ò1064.041,000502019
25.09.19´ë»óÀ£¸®¿ò1233.8913,20002019
25.09.17´ë»óÀ£¸®¿ò1233.8913,20002019
25.09.12´ë»óÀ£¸®¿ò1657.73500702019
25.09.11´ë»óÀ£¸®¿ò833.89500502019
¢Ñ ´õº¸±â

µî±âºÎµîº» ¿ä¾à(°Ç¹°)

  Á¢¼öÀÏÀÚ µî±â¸ñÀû/±Ç¸®ÀÚ ±Ç¸®±Ý¾× ±âÁØ
1 2021³â6¿ù14ÀÏ
¼ÒÀ¯±Ç
³ëOO
¼Ò¸ê
2 2024³â3¿ù11ÀÏ
ÀÓÂ÷±Ç¼³Á¤
±ÇOO
127,000,000 Àμö
3 2024³â9¿ù24ÀÏ
°­Á¦°æ¸Å
ÁÖOOOO
¼Ò¸ê±âÁØ
4 2024³â10¿ù22ÀÏ
¾Ð·ù
±¹OOOO
¼Ò¸ê
5 2024³â12¿ù31ÀÏ
¾Ð·ù
³²O
¼Ò¸ê

ÀÓÂ÷ÀÎÇöȲ (¹è´ç¿ä±¸Á¾±âÀÏ: 2024-12-16)

ÀÓÂ÷ÀÎ ¿ëµµ/Á¡À¯ º¸Áõ±Ý/¿ù¼¼ ´ëÇ×·Â
ÀüÀÔÀÏ/È®Á¤ÀÏ ¹è´ç¿ä±¸ ºñ°í
±ÇOO 204È£33.89§³ÀüºÎ 127,000,000
O
2022.03.29.
2022.03.04.
2022.03.29.~
±èOO

ºñ°í
(¸Å°¢¹°°Ç
¸í¼¼¼­)
±Ç¼ö¿µ:ÁÖÅÃÀÓÂ÷±Çµî±â±ÇÀڷμ­ ÁÖÅÃÀÓÂ÷±Ç µî±âÀÏÀº 2024. 3. 11.À̸ç, ÀӴ뺸Áõ±Ý¿¡ ´ëÇÏ¿© ½Åûä±ÇÀÚ°¡ ÀÓÂ÷ÀÎ ±Ç¼ö¿µÀÌ ÀÛ¼ºÇÑ ´ëÀ§º¯Á¦Áõ¼­¸¦ Á¦ÃâÇÔ. ±è°æ³²:ÁýÇà°ü ÀÛ¼ºÀÇ ºÎµ¿»êÀÇ Á¡À¯°ü°èÁ¶»ç¼­¿¡´Â ±âÀçµÇ¾î ÀÖÀ¸³ª ÀüÀÔ¼¼´ëÈ®Àμ­¿¡´Â µîÀçµÇ¾î ÀÖÁö ¾ÊÀ½

¿©ÀÇÁÖ°æ¸Å Á¶¾ð ÇÑ ¸¶µð

¸Å°¢¹°°Ç¸í¼¼ ºñ°í³­¿¡ ±âÀçµÈ ³»¿ëÀÔ´Ï´Ù.
±Ç¼ö¿µ:ÁÖÅÃÀÓÂ÷±Çµî±â±ÇÀڷμ­ ÁÖÅÃÀÓÂ÷±Ç µî±âÀÏÀº 2024. 3. 11.À̸ç, ÀӴ뺸Áõ±Ý¿¡ ´ëÇÏ¿© ½Åûä±ÇÀÚ°¡ ÀÓÂ÷ÀÎ ±Ç¼ö¿µÀÌ ÀÛ¼ºÇÑ ´ëÀ§º¯Á¦Áõ¼­¸¦ Á¦ÃâÇÔ. ±è°æ³²:ÁýÇà°ü ÀÛ¼ºÀÇ ºÎµ¿»êÀÇ Á¡À¯°ü°èÁ¶»ç¼­¿¡´Â ±âÀçµÇ¾î ÀÖÀ¸³ª ÀüÀÔ¼¼´ëÈ®Àμ­¿¡´Â µîÀçµÇ¾î ÀÖÁö ¾ÊÀ½
³«Âû ÈÄ¿¡ µî±âºÎ»ó ¼Ò¸êµÇÁö ¾Ê´Â ±Ç¸®ÀÔ´Ï´Ù.
¸Å¼öÀο¡°Ô ´ëÇ×ÇÒ ¼ö ÀÖ´Â À»±¸ ¼øÀ§ 1¹ø ÁÖÅÃÀÓÂ÷±Çµî±â(2024. 3. 11.µî±â) ÀÖÀ½(ÀÓ´ëÂ÷º¸Áõ±Ý 127,000,000¿ø, ÀüÀÔÀÏ 2022. 3. 29., È®Á¤ÀÏÀÚ 2022. 3. 4.)¹è´ç¿¡¼­ º¸Áõ±ÝÀÌ Àü¾× º¯Á¦µÇÁö ¾Æ´ÏÇϸé Àܾ×À» ¸Å¼öÀÎÀÌ ÀμöÇÔ.
¼±¼øÀ§ ÀÓÂ÷±Çµî±â°¡ µÇ¾î ÀÖ½À´Ï´Ù.
°¨Á¤ ½ÃÁ¡ÀÌ ¿À·¡µÇ¾î °¡°Ýº¯µ¿ÀÌ ÀÖÀ» ¼ö ÀÖ½À´Ï´Ù.
ÀÌ ¹°°ÇÀº 2024³â 9¿ù 24ÀÏ¿¡ °æ¸Å°¡ °³½ÃµÇ¾ú´Âµ¥ Áö±Ý ½ÃÁ¡À¸·Î ¾à 410ÀÏÀÌ ÀÌ °æ°úµÇ¾ú½À´Ï´Ù. °¨Á¤°¡°ÝÀº 410ÀÏ Àü ½ÃÁ¡¿¡¼­ Æò°¡ÇÑ °¡°ÝÀ̹ǷΠ±× »çÀÌ °¡°Ýº¯µ¿ÀÌ ÀÖÀ» ¼ö ÀÖ½À´Ï´Ù. ƯÈ÷ °¡°Ý º¯µ¿ÀÌ ½ÉÇÑ ¾ÆÆÄÆ®´Â À¯ÀÇÇÏ¼Å¾ß ÇÕ´Ï´Ù. °¨Á¤°¡°ÝÀ» ³Ê¹« ¹ÏÁö ¸¶½Ã°í ÇöÀç ½Ç¸Å¹° °¡°Ý°ú ½Ç°Å·¡°¡¸¦ È®ÀÎÇϽñ⠹ٶø´Ï´Ù.
°£È¤ °¨Á¤°¡°Ýº¸´Ù ³ô°Ô ³«ÂûµÇ´Â °æ¿ì°¡ Àִµ¥ ´ëºÎºÐ ÀÌ·± ÀÌÀ¯ÀÔ´Ï´Ù.
¡Ø ¹°°Ç Ű¿öµå : µµ½ÃÁö¿ª/»ó¾÷Áö¿ª/ÀϹݻó¾÷Áö¿ª/³ë¼±¹ö½º Á¤·ùÀå/ö±ÙÄÜÅ©¸®Æ®±¸Á¶/°³º°³­¹æ
Àüü ÄÁ¼³ÆÃÀÌ ºÎ´ã½º·¯¿ì½Å°¡¿ä? ±Ç¸®ºÐ¼®¸¸ ÀÇ·ÚÇϼŵµ ±¦Âú½À´Ï´Ù!
½Ç¼Ó ÀÖ°Ô Çٽɸ¸ ´ãÀº ±Ç¸®ºÐ¼® ¼­ºñ½º!! (±Ç¸®ºÐ¼® + ½Ã¼¼Á¶»ç + ³«Âû°¡ »êÁ¤ + ÀÔÂûÇ¥ ÀÛ¼º¹æ¹ý ±îÁö)
ÃÖ´ë Àüü ÄÁ¼³ÆÃ ºñ¿ëÀÇ 10% ¼öÁØ !!

ÁÖÀÇ»çÇ× (ÃÖ¼±¼øÀ§ ¼³Á¤ÀÏ: 2024.09.24.°æ¸Å°³½Ã°áÁ¤ ¼³Á¤)

¸Å°¢À¸·Î ¼Ò¸êµÇÁö ¾Ê´Â µî±âºÎ±Ç¸®: ¸Å¼öÀο¡°Ô ´ëÇ×ÇÒ ¼ö ÀÖ´Â À»±¸ ¼øÀ§ 1¹ø ÁÖÅÃÀÓÂ÷±Çµî±â(2024. 3. 11.µî±â) ÀÖÀ½(ÀÓ´ëÂ÷º¸Áõ±Ý 127,000,000¿ø, ÀüÀÔÀÏ 2022. 3. 29., È®Á¤ÀÏÀÚ 2022. 3. 4.)¹è´ç¿¡¼­ º¸Áõ±ÝÀÌ Àü¾× º¯Á¦µÇÁö ¾Æ´ÏÇϸé Àܾ×À» ¸Å¼öÀÎÀÌ ÀμöÇÔ.
¸Å°¢À¸·Î ¼³Á¤µÈ °ÍÀ¸·Î º¸´Â Áö»ó±Ç:
¡Ø¹Ì³³°ü¸®ºñ(°ø¿ë) Àμö¿©ºÎ¸¦ ÀÔÂû Àü¿¡ È®ÀÎÇϽñ⠹ٶø´Ï´Ù

 

Áö¿ªºÐ¼®

ÁöÇÏö¸í Á÷¼±°Å¸®

Çб³¸í ÀüÈ­¹øÈ£ ÁÖ¼Ò Á÷¼±°Å¸®

¹ý¿ø

¿ï»êÁö¹æ¹ý¿ø (446-43)¿ï»ê±¤¿ª½Ã ³²±¸ ¹ý´ë·Î 55(¿Áµ¿ 1415)
´ëÇ¥ : 052)216-8000, ¹Î¿ø : 052)216-8021~3
°üÇÒÁö¿ª : ¿ï»ê±¤¿ª½Ã, ¾ç»ê½Ã

µî±â¼Ò ¿ï»êÁö¹æ¹ý¿ø º»¿ø µî±â°ú (´ëÇ¥:1544-0773, ÆÑ½º:(052)260-6293, ¿ï»ê±¤¿ª½Ã ³²±¸ ¹ý´ë·Î 55 (¿Áµ¿ 1415))
¼¼¹«¼­ ¿ï»ê¼¼¹«¼­ (´ëÇ¥:052-259-02, ÆÑ½º:052-266-2135, ¿ï»ê±¤¿ª½Ã ³²±¸ °¥¹ç·Î 49 (»ï»êµ¿))

Àαٳ«ÂûÅë°è

±â°£ ¸Å°¢°Ç¼ö Æò±Õ°¨Á¤°¡
Æò±Õ¸Å°¢°¡
¸Å°¢°¡À²
Æò±ÕÀ¯Âû¼ö
3°³¿ù 25°Ç 158,360,000¿ø
83,143,280¿ø
55%
2.5ȸ
6°³¿ù 29°Ç 160,000,000¿ø
89,427,655¿ø
57%
2.4ȸ
12°³¿ù 48°Ç 182,083,333¿ø
106,760,725¿ø
60%
2.2ȸ


º» °æ¸ÅÁ¤º¸´Â ¹ý¿øÀÚ·á¿Í ÀÏÄ¡Çϵµ·Ï ÇÏ¿´À¸³ª ±Ç¸®»çÇ׺¯µ¿, ÀÔ·ÂÂø¿À µîÀÇ ¿øÀÎÀ¸·Î »ç½Ç°ú ´Ù¸¦ ¼ö ÀÖ½À´Ï´Ù. ÀÌ¿ë¾à°ü¿¡ ÀǰЏéÃ¥Á¶°ÇÀ¸·Î Á¦°øµÊÀ» ¾Ë¸®¸ç, °æ¸ÅÀÔÂû½Ã ¹Ýµå½Ã °ü·Ã °øºÎ¸¦ ÀçÈ®ÀÎÇϽñ⠹ٶø´Ï´Ù. º¸´Ù Æí¸®ÇÑ °æ¸ÅÁ¤º¸ Á¦°øÀ» À§ÇØ Áö¼ÓÀûÀ¸·Î °³¼±ÇϰڽÀ´Ï´Ù. ÀÌ¿ëÇØ Áּż­ °¨»çÇÕ´Ï´Ù.
°ü½É¹°°ÇÀ¸·Î µî·ÏÇÕ´Ï´Ù