104
¿ÀÇǽºÅÚ
¼­¿ïºÏºÎÁö¹æ¹ý¿ø
 °¨Á¤°¡135,000,000 ¿ø
 ÃÖÀú°¡(41%) 55,296,000 ¿ø
 º¸Áõ±Ý(10%) 5,529,600 ¿ø
 Ã»±¸¾×193,000,000 ¿ø
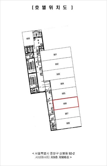
¼­¿ïƯº°½Ã Áß¶û±¸ ¸Á¿ì·Î 328, 9Ãþ906È£ (»óºÀµ¿,½Ã³×¸¶½ÃƼ)
¼­¿ïƯº°½Ã Áß¶û±¸ »óºÀµ¿ 92-2
»ç°Ç¹øÈ£ 2024Ÿ°æ120262
°æ¸ÅÁ¾·ùºÎµ¿»ê°­Á¦°æ¸Å
¸Å°¢´ë»óÅäÁö ¹× °Ç¹°Àϰý ¸Å°¢
¸Å°¢±âÀÏ    2026.01.13(È­) 10:00 ÀÔÂû 24ÀÏÀü    
ÅäÁö¸éÀû6.32§³(1.91 Æò)
°Ç¹°¸éÀû31.68§³(9.58 Æò)
乫/¼ÒÀ¯ÀÚ°­O / °­O
ä±ÇÀÚÁÖOOOOOOO
±è¼ºÈÆ ´ëÇ¥ÀÌ»ç
°øÀÎÁß°³»ç, ºÎµ¿»ê°ø°æ¸Å»ç, ÇѾç´ëÇб³ Á¹¾÷
Àü) ÅÂÀÎÄÁ¼³ÆÃ(ÁÖ) ´ëÇ¥ÀÌ»ç
Àü) ¿©ÀÇÁֺε¿»êÁß°³¹ýÀÎ(ÁÖ) ´ëÇ¥ÀÌ»ç
Çö) ¿©ÀÇÁÖ°æ¸Å¹ýÀÎ ´ëÇ¥ÀÌ»ç
010-2371-3237
ÆäÀ̽ººÏ Æ®À§ÅÍ ±¸±Û+
īī¿À½ºÅ丮
īī¿ÀÅå sms¹®ÀÚº¸³»±â
 

±âÀϳ»¿ª

°æ°ú ³¯Â¥ Àú°¨ ÃÖÀú°¡ °á°ú
Á¢¼öÀÏ 2024-11-01 °æ¸ÅÁ¢¼ö
~3ÀÏ 
2024-11-04 °æ¸Å°³½Ã°áÁ¤
~77ÀÏ 
2025-01-17 ¹è´ç¿ä±¸Á¾±âÀÏ
~284ÀÏ 
2025-08-12 100%
135,000,000
À¯Âû
~319ÀÏ 
2025-09-16 80%
108,000,000
À¯Âû
~356ÀÏ 
2025-10-23 64%
86,400,000
À¯Âû
~396ÀÏ 
2025-12-02 51%
69,120,000
À¯Âû
~438ÀÏ 
2026-01-13 41%
55,296,000
ÁøÇà
¹°°Ç¸í¼¼¼­ ÇöȲÁ¶»ç¼­ ¹®°ÇÁ¢¼ö ¼Û´Þ³»¿ª

°¨Á¤Æò°¡ÇöȲ

¸ñ·Ï ÁÖ¼Ò ±¸Á¶/¿ëµµ/´ëÁö±Ç ¸éÀû ºñ°í
´ëÁö±Ç
»óºÀµ¿ 92-2 919.3ºÐÀÇ 6.32 6.32 §³
(1.91Æò)
°Ç¹°
»óºÀµ¿ 92-2 9Ãþ906È£ ö±ÙÄÜÅ©¸®Æ®Á¶ 31.68 §³
(9.58Æò)
1) À§Ä¡/µµ½ÃÁö¿ª/ÀϹݻó¾÷Áö¿ª/Áö±¸´ÜÀ§°èȹ±¸¿ª/ÀçÁ¤ºñÃËÁøÁö±¸/¹ö½ºÁ¤·ùÀå/ÁÖÂ÷Àå/ÁöÇÏö/Á¦¹Ý Â÷·® ÃâÀÔ/ö±ÙÄÜÅ©¸®Æ®±¸Á¶ ´õº¸±â
°¨Á¤Æò°¡ ¿äÇ×Ç¥
1)À§Ä¡ ¹× ÁÖÀ§È¯°æ
º»°ÇÀº ¼­¿ïƯº°½Ã Áß¶û±¸ »óºÀµ¿¿¡ ¼ÒÀçÇϰí ÀÖ´Â »óºÀ¿ª(ÁöÇÏö7È£¼±¡¤°æÀÇÁß¾Ó¼±) µ¿Ãø Àαٿ¡ À§Ä¡Çϰí ÀÖÀ¸¸ç ÁÖº¯À¸·Î´Â Á¢¸éµµ·Î µî¿¡ µû¶ó »ó¾÷¿ë ȤÀº ¾÷¹«¿ë °Ç¹°, ÁÖ»ó¿ë°Ç¹°, ¿ÀÇǽºÅÚ, ±Ù¸°»ýȰ½Ã¼³ µîÀÌ È¥ÀçÇÏ´Â Áö¿ªÀÓ.
2)±³Åë»óȲ
º»°Ç±îÁö Á¦¹Ý Â÷·® ÃâÀÔ °¡´ÉÇϸç, Àαٿ¡ ¹ö½ºÁ¤·ùÀå ¹× ÁöÇÏö¿ª(»óºÀ¿ª, 7È£¼±, °æÀÇÁß¾Ó¼±)ÀÌ ¼ÒÀçÇÏ´Â ¹Ù Á¦¹Ý ´ëÁß±³Åë»çÁ¤Àº º¸ÅëÀÓ.
3)°Ç¹°ÀÇ ±¸Á¶
2000.06.12ÀÏ »ç¿ë½ÂÀÎµÈ Ã¶±ÙÄÜÅ©¸®Æ®±¸Á¶ ÆòÁöºØ 15Ãþ °Ç¹° ³» Á¦9Ãþ Á¦906È£·Î¼­
¿Üº® : ¼®ÀçºÙÀÓ ¸¶°¨
³»º® : º®Áö ¹× ÀϺΟÀϸ¶°¨
âȣ : »õ½Ã âȣÀÓ.
4)ÀÌ¿ë»óÅÂ
¾÷¹«½Ã¼³(¿ÀÇǽºÅÚ)·Î ÀÌ¿ëÁßÀÓ.
5)¼³ºñ³»¿ª
³­¹æ¼³ºñ, À§»ý ¹× ±Þ¹è¼ö¼³ºñ, È­ÀçŽÁö ¹× ¼ÒÈ­¼³ºñ, ½Â°­±â, ÁÖÂ÷Àå µîÀÌ µÇ¾î ÀÖÀ½.
6)ÅäÁöÀÇ Çü»ó ¹× ÀÌ¿ë»óÅÂ
ÀÎÁ¢ÇÊÁö ¹× µµ·Î¿Í µî°íÆòźÇÑ ´Ù°¢Çü(ºÎÁ¤Çü) ÅäÁöÀÌ¸ç ±Ù¸°»ýȲ½Ã¼³, ¾÷¹«½Ã¼³, ¹®È­ ¹× Áýȸ½Ã¼³ °ÇºÎÁö·Î ÀÌ¿ëÁßÀÓ.
7)ÀÎÁ¢ µµ·Î»óŵî
ºÏ¼­ÃøÀ¸·Î ±¤´ë·Î, ³²¼­Ãø ¹× ³²µ¿ÃøÀ¸·Î ¼¼·Î¿¡ Á¢ÇÔ
8)ÅäÁöÀÌ¿ë°èȹ ¹× Á¦ÇÑ»óÅÂ
µµ½ÃÁö¿ª , ÀϹݻó¾÷Áö¿ª , Áö±¸´ÜÀ§°èȹ±¸¿ª , ´ë·Î3·ù(Æø 25m-30m)(ÀúÃË) , µµ·Î(Á¢ÇÕ), °¡Ãà»çÀ°Á¦Çѱ¸¿ª(¹®ÀÇ:º¸°ÇÇàÁ¤°ú)<°¡ÃàºÐ´¢ÀÇ °ü¸® ¹× À̿뿡 °üÇÑ ¹ý·ü>, ´ë°ø¹æ¾îÇùÁ¶±¸¿ª(À§Å¹°íµµ:ÇØ¹ß132m(Áö¹Ý+°ÇÃà+¿Ážµî),À°±º¼öµµ¹æÀ§»ç·ÉºÎ(02-524-3146)°üÇÒ)<±º»ç±âÁö ¹× ±º»ç½Ã¼³ º¸È£¹ý>, ÀçÁ¤ºñÃËÁøÁö±¸<µµ½ÃÀçÁ¤ºñ ÃËÁøÀ» À§ÇÑ Æ¯º°¹ý>, ÀçÁ¤ºñÃËÁøÁö±¸(»óºÀ7Á¸Ä¡°ü¸®±¸¿ª)<µµ½ÃÀçÁ¤ºñ ÃËÁøÀ» À§ÇÑ Æ¯º°¹ý>, °ú¹Ð¾ïÁ¦±Ç¿ª<¼öµµ±ÇÁ¤ºñ°èȹ¹ý>, °ÇÃ༱(2019-11-21)(°ÇÃà°ú º°µµ¹®ÀÇ)
9)°øºÎ¿ÍÀÇ Â÷ÀÌ
ÇØ´ç»çÇ× ¾øÀ½.
10)±âŸÂü°í»çÇ×(ÀÓ´ë°ü·Ê ¹× ±âŸ)
Á¤È®ÇÑ ÀÓ´ë°ü°è´Â ¹Ì»óÀÓ.
Âü°í
»çÇ×

* Æó¹®ºÎÀç·Î ¼ÒÀ¯ÀÚ ¹× Á¡À¯ÀÚµéÀ» ¸¸³ªÁö ¸øÇÏ¿© ³ë

°ÇÃ๰ÇöȲ

¼ÒÀçÁö ¼­¿ïƯº°½Ã Áß¶û±¸ »óºÀµ¿ 92-2¹øÁö
´ëÁö¸éÀû 919.3§³
(278.58Æò)
¿¬¸éÀû 8730.4§³
(2645.58Æò)
°ÇÃà¸éÀû 551.02§³
(166.98Æò)
¿ëÀû·ü»êÁ¤
¿¬¸éÀû
7009.26§³
(2124.02Æò)
°ÇÆóÀ² 59.94% ¿ëÀû·ü 762.46%
Áö»óÃþ¼ö 15Ãþ ÁöÇÏÃþ¼ö 3Ãþ
ÁÖ¿ëµµ ¾÷¹«½Ã¼³ ±¸Á¶ ö±ÙÄÜÅ©¸®Æ®±¸Á¶
Âø°øÀÏÀÚ 1994.06.30 »ç¿ë½ÂÀÎÀÏÀÚ 2000.06.12
°ÇÃ๰Ãþº°ÇöȲ [º¸±â]


±¹ÅäºÎ½Ç°Å·¡°¡ ¼­¿ïƯº°½Ã Áß¶û±¸ »óºÀµ¿

¡Ü ¸Å¸Å

¸éÀû(§³), ±Ý¾×(¸¸¿ø)

¡Ü Àü¼¼

¸éÀû(§³), ±Ý¾×(¸¸¿ø)

°è¾àÀϰǹ°¸íĪÃþÀü¿ëº¸Áõ±Ý¿ù¼¼°ÇÃà
25.09.27½Ã³×¸¶½ÃƼ938.885,000302000
25.09.19½Ã³×¸¶½ÃƼ1016.86,00002000
25.08.11½Ã³×¸¶½ÃƼ1331.68500502000
25.04.25½Ã³×¸¶½ÃƼ731.681,000522000
24.10.16½Ã³×¸¶½ÃƼ738.889,00002000
¢Ñ ´õº¸±â

µî±âºÎµîº» ¿ä¾à(°Ç¹°)

  Á¢¼öÀÏÀÚ µî±â¸ñÀû/±Ç¸®ÀÚ ±Ç¸®±Ý¾× ±âÁØ
1 2021³â11¿ù24ÀÏ
¼ÒÀ¯±Ç
°­O
¼Ò¸ê
2 2023³â2¿ù7ÀÏ
¾Ð·ù
ÁßOO
¼Ò¸ê±âÁØ
3 2023³â7¿ù14ÀÏ
¾Ð·ù
±¹
¼Ò¸ê
4 2023³â12¿ù8ÀÏ
ÀÓÂ÷±Ç¼³Á¤
ÀÌOO
193,000,000 ¼Ò¸ê
5 2024³â11¿ù5ÀÏ
°­Á¦°æ¸Å
ÁÖOOOO
¼Ò¸ê

ÀÓÂ÷ÀÎÇöȲ (¹è´ç¿ä±¸Á¾±âÀÏ: 2025-01-17)

ÀÓÂ÷ÀÎ ¿ëµµ/Á¡À¯ º¸Áõ±Ý/¿ù¼¼ ´ëÇ×·Â
ÀüÀÔÀÏ/È®Á¤ÀÏ ¹è´ç¿ä±¸ ºñ°í
ÀÌOO Á¦906È£ 193,000,000
O
2021.11.15.
2021.11.30.
2021.11.16.~
ÁÖOOOOOOOOOOOO Á¦906È£ 193,000,000
O
2021.11.15.
2021.11.30.
2025.1.17. 2021.11.16.~
ºñ°í
(¸Å°¢¹°°Ç
¸í¼¼¼­)
À̽ÂÇý:ÁÖÅõµ½Ãº¸Áõ°ø»ç¿¡°Ô º¸Áõ±Ý¹Ýȯä±Ç ¹× ÁÖÅÃÀÓÂ÷±ÇÀڷμ­ ±Ç¸®¸¦ ¾çµµÇÔ ÁÖÅõµ½Ãº¸Áõ°ø»ç(À̽ÂÇý):ÀÓÂ÷±ÇÀÚ À̽ÂÇý·ÎºÎÅÍ º¸Áõ±Ý¹Ýȯä±Ç ¹× ÁÖÅÃÀÓÂ÷±ÇÀڷμ­ ±Ç¸®¸¦ ¾ç¼öÇÔ

¿©ÀÇÁÖ°æ¸Å Á¶¾ð ÇÑ ¸¶µð

¸Å°¢¹°°Ç¸í¼¼ ºñ°í³­¿¡ ±âÀçµÈ ³»¿ëÀÔ´Ï´Ù.
À̽ÂÇý:ÁÖÅõµ½Ãº¸Áõ°ø»ç¿¡°Ô º¸Áõ±Ý¹Ýȯä±Ç ¹× ÁÖÅÃÀÓÂ÷±ÇÀڷμ­ ±Ç¸®¸¦ ¾çµµÇÔ ÁÖÅõµ½Ãº¸Áõ°ø»ç(À̽ÂÇý):ÀÓÂ÷±ÇÀÚ À̽ÂÇý·ÎºÎÅÍ º¸Áõ±Ý¹Ýȯä±Ç ¹× ÁÖÅÃÀÓÂ÷±ÇÀڷμ­ ±Ç¸®¸¦ ¾ç¼öÇÔ
³«Âû ÈÄ¿¡ µî±âºÎ»ó ¼Ò¸êµÇÁö ¾Ê´Â ±Ç¸®ÀÔ´Ï´Ù.
¸Å¼öÀο¡°Ô ´ëÇ×ÇÒ ¼ö ÀÖ´Â À»±¸ ¼øÀ§ 5¹ø ÀÓÂ÷±Çµî±â(2023.12.08. µî±â) ÀÖÀ½. ¹è´ç¿¡¼­ ÀÓÂ÷º¸Áõ±ÝÀÌ Àü¾× ¹è´çµÇÁö ¾ÊÀ¸¸é ¸Å¼öÀÎÀÌ Àܾ×À» ÀμöÇÔ
¼±¼øÀ§ ÀÓÂ÷±Çµî±â°¡ µÇ¾î ÀÖ½À´Ï´Ù.
°¨Á¤ ½ÃÁ¡ÀÌ ¿À·¡µÇ¾î °¡°Ýº¯µ¿ÀÌ ÀÖÀ» ¼ö ÀÖ½À´Ï´Ù.
ÀÌ ¹°°ÇÀº 2024³â 11¿ù 4ÀÏ¿¡ °æ¸Å°¡ °³½ÃµÇ¾ú´Âµ¥ Áö±Ý ½ÃÁ¡À¸·Î ¾à 411ÀÏÀÌ ÀÌ °æ°úµÇ¾ú½À´Ï´Ù. °¨Á¤°¡°ÝÀº 411ÀÏ Àü ½ÃÁ¡¿¡¼­ Æò°¡ÇÑ °¡°ÝÀ̹ǷΠ±× »çÀÌ °¡°Ýº¯µ¿ÀÌ ÀÖÀ» ¼ö ÀÖ½À´Ï´Ù. ƯÈ÷ °¡°Ý º¯µ¿ÀÌ ½ÉÇÑ ¾ÆÆÄÆ®´Â À¯ÀÇÇÏ¼Å¾ß ÇÕ´Ï´Ù. °¨Á¤°¡°ÝÀ» ³Ê¹« ¹ÏÁö ¸¶½Ã°í ÇöÀç ½Ç¸Å¹° °¡°Ý°ú ½Ç°Å·¡°¡¸¦ È®ÀÎÇϽñ⠹ٶø´Ï´Ù.
°£È¤ °¨Á¤°¡°Ýº¸´Ù ³ô°Ô ³«ÂûµÇ´Â °æ¿ì°¡ Àִµ¥ ´ëºÎºÐ ÀÌ·± ÀÌÀ¯ÀÔ´Ï´Ù.
¡Ø ¹°°Ç Ű¿öµå : µµ½ÃÁö¿ª/»ó¾÷Áö¿ª/ÀϹݻó¾÷Áö¿ª/Áö±¸´ÜÀ§°èȹ±¸¿ª/ÀçÁ¤ºñÃËÁøÁö±¸/¹ö½ºÁ¤·ùÀå/ÁÖÂ÷Àå/ÁöÇÏö/Á¦¹Ý Â÷·® ÃâÀÔ/ö±ÙÄÜÅ©¸®Æ®±¸Á¶
Àüü ÄÁ¼³ÆÃÀÌ ºÎ´ã½º·¯¿ì½Å°¡¿ä? ±Ç¸®ºÐ¼®¸¸ ÀÇ·ÚÇϼŵµ ±¦Âú½À´Ï´Ù!
½Ç¼Ó ÀÖ°Ô Çٽɸ¸ ´ãÀº ±Ç¸®ºÐ¼® ¼­ºñ½º!! (±Ç¸®ºÐ¼® + ½Ã¼¼Á¶»ç + ³«Âû°¡ »êÁ¤ + ÀÔÂûÇ¥ ÀÛ¼º¹æ¹ý ±îÁö)
ÃÖ´ë Àüü ÄÁ¼³ÆÃ ºñ¿ëÀÇ 10% ¼öÁØ !!

ÁÖÀÇ»çÇ× (ÃÖ¼±¼øÀ§ ¼³Á¤ÀÏ: 2023.02.07. ¾Ð·ù ¼³Á¤)

¸Å°¢À¸·Î ¼Ò¸êµÇÁö ¾Ê´Â µî±âºÎ±Ç¸®: ¸Å¼öÀο¡°Ô ´ëÇ×ÇÒ ¼ö ÀÖ´Â À»±¸ ¼øÀ§ 5¹ø ÀÓÂ÷±Çµî±â(2023.12.08. µî±â) ÀÖÀ½. ¹è´ç¿¡¼­ ÀÓÂ÷º¸Áõ±ÝÀÌ Àü¾× ¹è´çµÇÁö ¾ÊÀ¸¸é ¸Å¼öÀÎÀÌ Àܾ×À» ÀμöÇÔ
¸Å°¢À¸·Î ¼³Á¤µÈ °ÍÀ¸·Î º¸´Â Áö»ó±Ç:
¡Ø¹Ì³³°ü¸®ºñ(°ø¿ë) Àμö¿©ºÎ¸¦ ÀÔÂû Àü¿¡ È®ÀÎÇϽñ⠹ٶø´Ï´Ù

 

Áö¿ªºÐ¼®

ÁöÇÏö¸í Á÷¼±°Å¸®

Çб³¸í ÀüÈ­¹øÈ£ ÁÖ¼Ò Á÷¼±°Å¸®

¹ý¿ø

¼­¿ïºÏºÎÁö¹æ¹ý¿ø (013-22)¼­¿ïƯº°½Ã µµºÀ±¸ ¸¶µé·Î749 (µµºÀ2µ¿ 626)
´ëÇ¥ : 02)910-3114
°üÇÒÁö¿ª : °­ºÏ±¸, ³ë¿ø±¸, µµºÀ±¸, µ¿´ë¹®±¸, ¼ººÏ±¸, Áß¶û±¸

µî±â¼Ò ¼­¿ïºÏºÎÁö¹æ¹ý¿ø º»¿ø µî±â±¹ (´ëÇ¥:1544-0773, ÆÑ½º:(02)2030-2330, ¼­¿ïƯº°½Ã µµºÀ±¸ ³ëÇØ·Î 325 (⵿ 337¹øÁö))
¼¼¹«¼­ Áß¶û ¼¼¹«¼­ (´ëÇ¥:02-2170-02, ÆÑ½º:02-493-7315, ¼­¿ïƯº°½Ã Áß¶û±¸ ¸Á¿ì·Î 176(»óºÀµ¿ 137-1))

Àαٳ«ÂûÅë°è

±â°£ ¸Å°¢°Ç¼ö Æò±Õ°¨Á¤°¡
Æò±Õ¸Å°¢°¡
¸Å°¢°¡À²
Æò±ÕÀ¯Âû¼ö
3°³¿ù 6°Ç 220,000,000¿ø
89,656,853¿ø
36%
8.8ȸ
6°³¿ù 8°Ç 228,375,000¿ø
95,535,402¿ø
40%
7.8ȸ
12°³¿ù 19°Ç 245,315,789¿ø
144,916,970¿ø
59%
5.5ȸ


º» °æ¸ÅÁ¤º¸´Â ¹ý¿øÀÚ·á¿Í ÀÏÄ¡Çϵµ·Ï ÇÏ¿´À¸³ª ±Ç¸®»çÇ׺¯µ¿, ÀÔ·ÂÂø¿À µîÀÇ ¿øÀÎÀ¸·Î »ç½Ç°ú ´Ù¸¦ ¼ö ÀÖ½À´Ï´Ù. ÀÌ¿ë¾à°ü¿¡ ÀǰЏéÃ¥Á¶°ÇÀ¸·Î Á¦°øµÊÀ» ¾Ë¸®¸ç, °æ¸ÅÀÔÂû½Ã ¹Ýµå½Ã °ü·Ã °øºÎ¸¦ ÀçÈ®ÀÎÇϽñ⠹ٶø´Ï´Ù. º¸´Ù Æí¸®ÇÑ °æ¸ÅÁ¤º¸ Á¦°øÀ» À§ÇØ Áö¼ÓÀûÀ¸·Î °³¼±ÇϰڽÀ´Ï´Ù. ÀÌ¿ëÇØ Áּż­ °¨»çÇÕ´Ï´Ù.
°ü½É¹°°ÇÀ¸·Î µî·ÏÇÕ´Ï´Ù