43
´Ù¼¼´ë(ºô¶ó)
¼­¿ïºÏºÎÁö¹æ¹ý¿ø
 °¨Á¤°¡298,000,000 ¿ø
 ÃÖÀú°¡(51%) 152,576,000 ¿ø
 º¸Áõ±Ý(10%) 15,257,600 ¿ø
 Ã»±¸¾×300,000,000 ¿ø
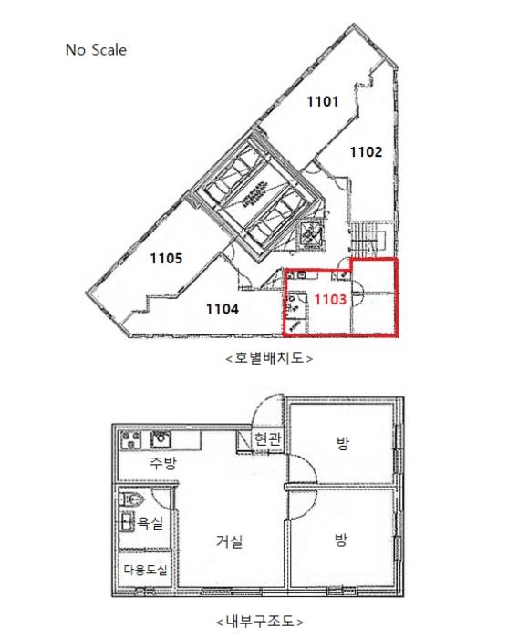
¼­¿ïƯº°½Ã °­ºÏ±¸ µµºÀ·Î71°¡±æ 45, 11Ãþ1103È£ (¼öÀ¯µ¿,¾¾¿¤ºí·ç)
¼­¿ïƯº°½Ã °­ºÏ±¸ ¼öÀ¯µ¿ 50-17
»ç°Ç¹øÈ£ 2024Ÿ°æ119941
°æ¸ÅÁ¾·ùºÎµ¿»ê°­Á¦°æ¸Å
¸Å°¢´ë»óÅäÁö ¹× °Ç¹°Àϰý ¸Å°¢
¸Å°¢±âÀÏ    2025.12.02(È­) 10:00    
ÅäÁö¸éÀû7.74§³(2.34 Æò)
°Ç¹°¸éÀû31.82§³(9.63 Æò)
乫/¼ÒÀ¯ÀÚ°­OO / °­OO
ä±ÇÀÚÁÖOOOOOOO
±è¼ºÈÆ ´ëÇ¥ÀÌ»ç
°øÀÎÁß°³»ç, ºÎµ¿»ê°ø°æ¸Å»ç, ÇѾç´ëÇб³ Á¹¾÷
Àü) ÅÂÀÎÄÁ¼³ÆÃ(ÁÖ) ´ëÇ¥ÀÌ»ç
Àü) ¿©ÀÇÁֺε¿»êÁß°³¹ýÀÎ(ÁÖ) ´ëÇ¥ÀÌ»ç
Çö) ¿©ÀÇÁÖ°æ¸Å¹ýÀÎ ´ëÇ¥ÀÌ»ç
010-2371-3237
ÆäÀ̽ººÏ Æ®À§ÅÍ ±¸±Û+
īī¿À½ºÅ丮
īī¿ÀÅå sms¹®ÀÚº¸³»±â
 

±âÀϳ»¿ª

°æ°ú ³¯Â¥ Àú°¨ ÃÖÀú°¡ °á°ú
Á¢¼öÀÏ 2024-10-29 °æ¸ÅÁ¢¼ö
~2ÀÏ 
2024-10-31 °æ¸Å°³½Ã°áÁ¤
~78ÀÏ 
2025-01-15 ¹è´ç¿ä±¸Á¾±âÀÏ
~287ÀÏ 
2025-08-12 100%
298,000,000
À¯Âû
~322ÀÏ 
2025-09-16 80%
238,400,000
À¯Âû
~359ÀÏ 
2025-10-23 64%
190,720,000
À¯Âû
~399ÀÏ 
2025-12-02 51%
152,576,000
À¯Âû
¹°°Ç¸í¼¼¼­ ÇöȲÁ¶»ç¼­ ¹®°ÇÁ¢¼ö ¼Û´Þ³»¿ª

°¨Á¤Æò°¡ÇöȲ

¸ñ·Ï ÁÖ¼Ò ±¸Á¶/¿ëµµ/´ëÁö±Ç ¸éÀû ºñ°í
´ëÁö±Ç
¼öÀ¯µ¿ 50-17 546.1ºÐÀÇ 7.74 7.74 §³
(2.34Æò)
°Ç¹°
¼öÀ¯µ¿ 50-17 11Ãþ1103È£ ö±ÙÄÜÅ©¸®Æ®±¸Á¶ 31.82 §³
(9.63Æò)
 
1) À§Ä¡/µµ½ÃÁö¿ª/ÀϹݻó¾÷Áö¿ª/Áö±¸´ÜÀ§°èȹ±¸¿ª/ÁöÇÏö/Â÷·® Á¢±ÙÀÌ °¡´É/ö±ÙÄÜÅ©¸®Æ®±¸Á¶ ´õº¸±â
°¨Á¤Æò°¡ ¿äÇ×Ç¥
1)À§Ä¡ ¹× ÁÖÀ§È¯°æ
º»°ÇÀº ¼­¿ïƯº°½Ã °­ºÏ±¸ ¼öÀ¯µ¿ ¼ÒÀç "¼öÀ¯ÃʵîÇб³" ºÏµ¿Ãø Àαٿ¡ À§Ä¡¸ç ÁÖÀ§´Â ´Üµ¶ÁÖ
ÅÃ, ´Ù¼¼´ëÁÖÅÃ, ¾ÆÆÄÆ®, ¿ÀÇǽºÅÚ, Á¡Æ÷ µîÀÌ È¥ÀçÇÏ´Â Áö¿ªÀÓ.
2)±³Åë»óȲ
º»°Ç±îÁö Â÷·® Á¢±ÙÀÌ °¡´ÉÇϰí, ¹ö½º Á¤·ùÀå ¹× ÁöÇÏö ¿ª°úÀÇ Á¢±Ù¼º µîÀ¸·Î º¸¾Æ ´ëÁß±³
Åë ÀÌ¿ëÀÇ ÆíÀǵµ´Â ¹«³­ÇÔ.
3)°Ç¹°ÀÇ ±¸Á¶
ö±ÙÄÜÅ©¸®Æ®±¸Á¶ (ö±Ù)ÄÜÅ©¸®Æ®ÁöºØ ÁöÇÏ2Ãþ Áö»ó11Ãþ °Ç³» 11Ãþ 1103È£·Î¼­,
¿Üº® : ¼®Àç ¹× ¸ôÅ»À§ ÆäÀÎÆ® ¸¶°¨,
âȣ : ¼¦½Ã ÀÌÁß Ã¢ÀÓ.
4)ÀÌ¿ë»óÅÂ
¿¬¸³ÁÖÅÃ(º°Ã· "³»ºÎ±¸Á¶µµ" ÂüÁ¶)À¸·Î ÀÌ¿ëÁßÀÓ.
5)¼³ºñ³»¿ª
À§»ý ¹× ±Þ¡¤¹è¼ö¼³ºñ, ³­¹æ¼³ºñ, ¼ÒÈ­¼³ºñ, ½Â°­±â¼³ºñ µîÀÌ µÇ¾î ÀÖÀ½.
6)ÅäÁöÀÇ Çü»ó ¹× ÀÌ¿ë»óÅÂ
3ÇÊ ÀÏ´ÜÁö ºÎÁ¤ÇüÀÇ ÆòźÇÑ ÅäÁö·Î¼­ ±Ù¸°»ýȰ½Ã¼³, ¿ÀÇǽºÅÚ, ¿¬¸³ÁÖÅà ºÎÁö·Î ÀÌ¿ëÁßÀÓ
7)ÀÎÁ¢ µµ·Î»óŵî
º»°ÇÀº ºÏ¼­ÃøÀ¸·Î ¼Ò·Î3·ù ¹× µ¿ÃøÀ¸·Î ¼Ò·Î2·ù¿Í Á¢ÇÔ.
8)ÅäÁöÀÌ¿ë°èȹ ¹× Á¦ÇÑ»óÅÂ
*±âÈ£1 : µµ½ÃÁö¿ª, ÀϹݻó¾÷Áö¿ª(¼öÀ¯¡¤¹øµ¿ Áö±¸´ÜÀ§°èȹ±¸¿ª), Áö±¸´ÜÀ§°èȹ±¸¿ª, ¼Ò·Î2
·ù(Æø 8m-10m)(Á¢ÇÕ), ¼Ò·Î3·ù(Æø 8m ¹Ì¸¸)(¼­¿ïƯº°½Ã°í½Ã Á¦2022-342È£)(Á¢ÇÕ), °¡Ãà»çÀ°
Á¦Çѱ¸¿ª<°¡ÃàºÐ´¢ÀÇ °ü¸® ¹× À̿뿡 °üÇÑ ¹ý·ü>, ´ë°ø¹æ¾îÇùÁ¶±¸¿ª(77-257m)<±º»ç±âÁö ¹×
±º»ç½Ã¼³ º¸È£¹ý>, °ú¹Ð¾ïÁ¦±Ç¿ª<¼öµµ±ÇÁ¤ºñ°èȹ¹ý>.

*±âÈ£2 : µµ½ÃÁö¿ª, ÀϹݻó¾÷Áö¿ª(¼öÀ¯¡¤¹øµ¿ Áö±¸´ÜÀ§°èȹ±¸¿ª), Áö±¸´ÜÀ§°èȹ±¸¿ª, ¼Ò·Î2
·ù(Æø 8m-10m)(Á¢ÇÕ), °¡Ãà»çÀ°Á¦Çѱ¸¿ª<°¡ÃàºÐ´¢ÀÇ °ü¸® ¹× À̿뿡 °üÇÑ ¹ý·ü>, ´ë°ø¹æ¾î
ÇùÁ¶±¸¿ª(77-257m)<±º»ç±âÁö ¹× ±º»ç½Ã¼³ º¸È£¹ý>, °ú¹Ð¾ïÁ¦±Ç¿ª<¼öµµ±ÇÁ¤ºñ°èȹ¹ý>.

*±âÈ£3 : µµ½ÃÁö¿ª, ÀϹݻó¾÷Áö¿ª(¼öÀ¯¡¤¹øµ¿ Áö±¸´ÜÀ§°èȹ±¸¿ª), Áö±¸´ÜÀ§°èȹ±¸¿ª, ¼Ò·Î3
·ù(Æø 8m ¹Ì¸¸)(¼­¿ïƯº°½Ã°í½Ã Á¦2022-342È£)(Á¢ÇÕ), °¡Ãà»çÀ°Á¦Çѱ¸¿ª<°¡ÃàºÐ´¢ÀÇ °ü¸®
¹× À̿뿡 °üÇÑ ¹ý·ü>, ´ë°ø¹æ¾îÇùÁ¶±¸¿ª(77-257m)<±º»ç±âÁö ¹× ±º»ç½Ã¼³ º¸È£¹ý>, °ú¹Ð¾ï
Á¦±Ç¿ª<¼öµµ±ÇÁ¤ºñ°èȹ¹ý>.
9)°øºÎ¿ÍÀÇ Â÷ÀÌ
-.
10)±âŸÂü°í»çÇ×(ÀÓ´ë°ü·Ê ¹× ±âŸ)
º»°Ç µî±â»çÇ×ÀüºÎÁõ¸í¼­»ó 2023.11.08 ¼­¿ïºÏºÎÁö¹æ¹ý¿øÀÇ ÀÓÂ÷±Çµî±â¸í·É(2023Ä«ÀÓ686)À¸
·Î 2023.11.13ÀÏÀÚ¿¡ ÁÖÅÃÀÓÂ÷±ÇÀÌ µîÀç µÇ¾î ÀÖÀ½.
Âü°í
»çÇ×

* Æó¹®ºÎÀç·Î ¼ÒÀ¯ÀÚ ¹× Á¡À¯ÀÚµéÀ» ¸¸³ªÁö ¸øÇÏ¿© ³ë

°ÇÃ๰ÇöȲ

¼ÒÀçÁö ¼­¿ïƯº°½Ã °­ºÏ±¸ ¼öÀ¯µ¿ 50-17¹øÁö
´ëÁö¸éÀû 546.1§³
(165.48Æò)
¿¬¸éÀû 2999.71§³
(909Æò)
°ÇÃà¸éÀû 325.33§³
(98.58Æò)
¿ëÀû·ü»êÁ¤
¿¬¸éÀû
2519.88§³
(763.6Æò)
°ÇÆóÀ² 59.57% ¿ëÀû·ü 461.43%
Áö»óÃþ¼ö 11Ãþ ÁöÇÏÃþ¼ö 2Ãþ
ÁÖ¿ëµµ ¾÷¹«½Ã¼³ ±¸Á¶ ö±ÙÄÜÅ©¸®Æ®±¸Á¶
Âø°øÀÏÀÚ 2019.01.03 »ç¿ë½ÂÀÎÀÏÀÚ 2020.02.21
°ÇÃ๰Ãþº°ÇöȲ [º¸±â]


±¹ÅäºÎ½Ç°Å·¡°¡ ¼­¿ïƯº°½Ã °­ºÏ±¸ ¼öÀ¯µ¿

¡Ü ¸Å¸Å

¸éÀû(§³), ±Ý¾×(¸¸¿ø)

¡Ü Àü¼¼

¸éÀû(§³), ±Ý¾×(¸¸¿ø)

°è¾àÀϰǹ°¸íĪÃþ¿¬¸éÀû´ëÁö±Ý¾×°ÇÃà
24.03.30µå¸²Å¸¿î¥±443.9522.02116,0002002
24.03.30¼º¿ì½ºÅ¸ÆÓ¸®½º6µ¿252.3528.905429,0002014
24.03.30°ñµçºô229.9920.90317,5002016
24.03.30¿¹¿òÇϿ콺529.9918.921,7002023
24.03.29ÁøÁÖ(C)-126.3125.628,3001990
¢Ñ ´õº¸±â

µî±âºÎµîº» ¿ä¾à(°Ç¹°)

  Á¢¼öÀÏÀÚ µî±â¸ñÀû/±Ç¸®ÀÚ ±Ç¸®±Ý¾× ±âÁØ
1 2022³â5¿ù27ÀÏ
¼ÒÀ¯±Ç
°­OO
¼Ò¸ê
2 2022³â5¿ù27ÀÏ
¾àÁ¤/±ÝÁö»çÇ×/ȯ¸ÅƯ¾à
Àμö
3 2023³â4¿ù6ÀÏ
°¡¾Ð·ù
ÇöOOOO
54,641,527 ¼Ò¸ê±âÁØ
4 2023³â11¿ù13ÀÏ
ÀÓÂ÷±Ç¼³Á¤
ÃÖOO
300,000,000 ¼Ò¸ê
5 2024³â10¿ù31ÀÏ
°­Á¦°æ¸Å
ÁÖOOOO
¼Ò¸ê
6 2025³â2¿ù21ÀÏ
¾Ð·ù
°­OO
¼Ò¸ê

ÀÓÂ÷ÀÎÇöȲ (¹è´ç¿ä±¸Á¾±âÀÏ: 2025-01-15)

ÀÓÂ÷ÀÎ ¿ëµµ/Á¡À¯ º¸Áõ±Ý/¿ù¼¼ ´ëÇ×·Â
ÀüÀÔÀÏ/È®Á¤ÀÏ ¹è´ç¿ä±¸ ºñ°í
ÃÖOO Á¦11ÃþÁ¦1103È£ÀüºÎ 300,000,000
O
2021.11.01.
2021.09.29.
 
ºñ°í
(¸Å°¢¹°°Ç
¸í¼¼¼­)

¿©ÀÇÁÖ°æ¸Å Á¶¾ð ÇÑ ¸¶µð

¸Å°¢¹°°Ç¸í¼¼ ºñ°í³­¿¡ ±âÀçµÈ ³»¿ëÀÔ´Ï´Ù.
ÃÖÀºÁÖ:ÁÖÅõµ½Ãº¸Áõ°ø»ç¿¡°Ô º¸Áõ±Ý¹Ýȯä±Ç ¹× ÁÖÅÃÀÓÂ÷±ÇÀڷμ­ ±Ç¸®¸¦ ¾çµµÇÔ
³«Âû ÈÄ¿¡ µî±âºÎ»ó ¼Ò¸êµÇÁö ¾Ê´Â ±Ç¸®ÀÔ´Ï´Ù.
¸Å¼öÀο¡°Ô ´ëÇ×ÇÒ ¼ö ÀÖ´Â À»±¸ ¼øÀ§ 3¹ø ÀÓÂ÷±Çµî±â(2023.11.13. µî±â) ÀÖÀ½. ¹è´ç¿¡¼­ ÀÓÂ÷º¸Áõ±ÝÀÌ Àü¾× ¹è´çµÇÁö ¾ÊÀ¸¸é ¸Å¼öÀÎÀÌ Àܾ×À» ÀμöÇÔ
¼±¼øÀ§ ÀÓÂ÷±Çµî±â°¡ µÇ¾î ÀÖ½À´Ï´Ù.
°¨Á¤ ½ÃÁ¡ÀÌ ¿À·¡µÇ¾î °¡°Ýº¯µ¿ÀÌ ÀÖÀ» ¼ö ÀÖ½À´Ï´Ù.
ÀÌ ¹°°ÇÀº 2024³â 10¿ù 31ÀÏ¿¡ °æ¸Å°¡ °³½ÃµÇ¾ú´Âµ¥ Áö±Ý ½ÃÁ¡À¸·Î ¾à 403ÀÏÀÌ ÀÌ °æ°úµÇ¾ú½À´Ï´Ù. °¨Á¤°¡°ÝÀº 403ÀÏ Àü ½ÃÁ¡¿¡¼­ Æò°¡ÇÑ °¡°ÝÀ̹ǷΠ±× »çÀÌ °¡°Ýº¯µ¿ÀÌ ÀÖÀ» ¼ö ÀÖ½À´Ï´Ù. ƯÈ÷ °¡°Ý º¯µ¿ÀÌ ½ÉÇÑ ¾ÆÆÄÆ®´Â À¯ÀÇÇÏ¼Å¾ß ÇÕ´Ï´Ù. °¨Á¤°¡°ÝÀ» ³Ê¹« ¹ÏÁö ¸¶½Ã°í ÇöÀç ½Ç¸Å¹° °¡°Ý°ú ½Ç°Å·¡°¡¸¦ È®ÀÎÇϽñ⠹ٶø´Ï´Ù.
°£È¤ °¨Á¤°¡°Ýº¸´Ù ³ô°Ô ³«ÂûµÇ´Â °æ¿ì°¡ Àִµ¥ ´ëºÎºÐ ÀÌ·± ÀÌÀ¯ÀÔ´Ï´Ù.
¡Ø ¹°°Ç Ű¿öµå : µµ½ÃÁö¿ª/»ó¾÷Áö¿ª/ÀϹݻó¾÷Áö¿ª/Áö±¸´ÜÀ§°èȹ±¸¿ª/ÁöÇÏö/Â÷·® Á¢±ÙÀÌ °¡´É/ö±ÙÄÜÅ©¸®Æ®±¸Á¶
Àüü ÄÁ¼³ÆÃÀÌ ºÎ´ã½º·¯¿ì½Å°¡¿ä? ±Ç¸®ºÐ¼®¸¸ ÀÇ·ÚÇϼŵµ ±¦Âú½À´Ï´Ù!
½Ç¼Ó ÀÖ°Ô Çٽɸ¸ ´ãÀº ±Ç¸®ºÐ¼® ¼­ºñ½º!! (±Ç¸®ºÐ¼® + ½Ã¼¼Á¶»ç + ³«Âû°¡ »êÁ¤ + ÀÔÂûÇ¥ ÀÛ¼º¹æ¹ý ±îÁö)
ÃÖ´ë Àüü ÄÁ¼³ÆÃ ºñ¿ëÀÇ 10% ¼öÁØ !!

ÁÖÀÇ»çÇ× (ÃÖ¼±¼øÀ§ ¼³Á¤ÀÏ: 2023.04.06. °¡¾Ð·ù ¼³Á¤)

¸Å°¢À¸·Î ¼Ò¸êµÇÁö ¾Ê´Â µî±âºÎ±Ç¸®: ¸Å¼öÀο¡°Ô ´ëÇ×ÇÒ ¼ö ÀÖ´Â À»±¸ ¼øÀ§ 3¹ø ÀÓÂ÷±Çµî±â(2023.11.13. µî±â) ÀÖÀ½. ¹è´ç¿¡¼­ ÀÓÂ÷º¸Áõ±ÝÀÌ Àü¾× ¹è´çµÇÁö ¾ÊÀ¸¸é ¸Å¼öÀÎÀÌ Àܾ×À» ÀμöÇÔ
¸Å°¢À¸·Î ¼³Á¤µÈ °ÍÀ¸·Î º¸´Â Áö»ó±Ç:
¡Ø¹Ì³³°ü¸®ºñ(°ø¿ë) Àμö¿©ºÎ¸¦ ÀÔÂû Àü¿¡ È®ÀÎÇϽñ⠹ٶø´Ï´Ù

 

Áö¿ªºÐ¼®

ÁöÇÏö¸í Á÷¼±°Å¸®

Çб³¸í ÀüÈ­¹øÈ£ ÁÖ¼Ò Á÷¼±°Å¸®

¹ý¿ø

¼­¿ïºÏºÎÁö¹æ¹ý¿ø (013-22)¼­¿ïƯº°½Ã µµºÀ±¸ ¸¶µé·Î749 (µµºÀ2µ¿ 626)
´ëÇ¥ : 02)910-3114
°üÇÒÁö¿ª : °­ºÏ±¸, ³ë¿ø±¸, µµºÀ±¸, µ¿´ë¹®±¸, ¼ººÏ±¸, Áß¶û±¸

µî±â¼Ò ¼­¿ïºÏºÎÁö¹æ¹ý¿ø º»¿ø µî±â±¹ (´ëÇ¥:1544-0773, ÆÑ½º:(02)2030-2330, ¼­¿ïƯº°½Ã µµºÀ±¸ ³ëÇØ·Î 325 (⵿ 337¹øÁö))
¼¼¹«¼­ µµºÀ¼¼¹«¼­ (´ëÇ¥:02-944-020, ÆÑ½º:02-984-2580, ¼­¿ïƯº°½Ã °­ºÏ±¸ µµºÀ·Î 117 (¹Ì¾Æµ¿))

Àαٳ«ÂûÅë°è

±â°£ ¸Å°¢°Ç¼ö Æò±Õ°¨Á¤°¡
Æò±Õ¸Å°¢°¡
¸Å°¢°¡À²
Æò±ÕÀ¯Âû¼ö
3°³¿ù 2°Ç 247,500,000¿ø
104,594,500¿ø
56%
4.5ȸ
6°³¿ù 3°Ç 224,333,333¿ø
117,196,333¿ø
64%
3.3ȸ
12°³¿ù 5°Ç 237,800,000¿ø
140,364,400¿ø
65%
2.8ȸ


º» °æ¸ÅÁ¤º¸´Â ¹ý¿øÀÚ·á¿Í ÀÏÄ¡Çϵµ·Ï ÇÏ¿´À¸³ª ±Ç¸®»çÇ׺¯µ¿, ÀÔ·ÂÂø¿À µîÀÇ ¿øÀÎÀ¸·Î »ç½Ç°ú ´Ù¸¦ ¼ö ÀÖ½À´Ï´Ù. ÀÌ¿ë¾à°ü¿¡ ÀǰЏéÃ¥Á¶°ÇÀ¸·Î Á¦°øµÊÀ» ¾Ë¸®¸ç, °æ¸ÅÀÔÂû½Ã ¹Ýµå½Ã °ü·Ã °øºÎ¸¦ ÀçÈ®ÀÎÇϽñ⠹ٶø´Ï´Ù. º¸´Ù Æí¸®ÇÑ °æ¸ÅÁ¤º¸ Á¦°øÀ» À§ÇØ Áö¼ÓÀûÀ¸·Î °³¼±ÇϰڽÀ´Ï´Ù. ÀÌ¿ëÇØ Áּż­ °¨»çÇÕ´Ï´Ù.
°ü½É¹°°ÇÀ¸·Î µî·ÏÇÕ´Ï´Ù