199
ÁÖÅÃ
ÀÎõÁö¹æ¹ý¿ø
 °¨Á¤°¡1,037,377,040 ¿ø
 ÃÖÀú°¡(49%) 508,315,000 ¿ø
 º¸Áõ±Ý(10%) 50,831,500 ¿ø
 Ã»±¸¾×2,649,569,820 ¿ø
ÀÎõ±¤¿ª½Ã ¼­±¸ û¶óµ¿ 9-10
»ç°Ç¹øÈ£ 2024Ÿ°æ569043
°æ¸ÅÁ¾·ùºÎµ¿»êÀÓÀǰæ¸Å
¸Å°¢´ë»óÅäÁöÁ¦¿Ü ¹× °Ç¹°¸Å°¢
¸Å°¢±âÀÏ    2026.01.22(¸ñ) 10:00 ÀÔÂû 43ÀÏÀü    
ÅäÁö¸éÀû
°Ç¹°¸éÀû356.18§³(107.74 Æò)
乫/¼ÒÀ¯ÀÚÁÖOOO OOOOO / ÁÖOOO OOOOO
ä±ÇÀÚ»õOOOOOOO (OOO O OOOOOOOO)
±è¼ºÈÆ ´ëÇ¥ÀÌ»ç
°øÀÎÁß°³»ç, ºÎµ¿»ê°ø°æ¸Å»ç, ÇѾç´ëÇб³ Á¹¾÷
Àü) ÅÂÀÎÄÁ¼³ÆÃ(ÁÖ) ´ëÇ¥ÀÌ»ç
Àü) ¿©ÀÇÁֺε¿»êÁß°³¹ýÀÎ(ÁÖ) ´ëÇ¥ÀÌ»ç
Çö) ¿©ÀÇÁÖ°æ¸Å¹ýÀÎ ´ëÇ¥ÀÌ»ç
010-2371-3237
ÆäÀ̽ººÏ Æ®À§ÅÍ ±¸±Û+
īī¿À½ºÅ丮
īī¿ÀÅå sms¹®ÀÚº¸³»±â
 

±âÀϳ»¿ª

°æ°ú ³¯Â¥ Àú°¨ ÃÖÀú°¡ °á°ú
Á¢¼öÀÏ 2024-10-25 °æ¸ÅÁ¢¼ö
~3ÀÏ 
2024-10-28 °æ¸Å°³½Ã°áÁ¤
~84ÀÏ 
2025-01-17 ¹è´ç¿ä±¸Á¾±âÀÏ
~266ÀÏ 
2025-07-18 100%
1,037,377,040
º¯°æ
~378ÀÏ 
2025-11-07 100%
1,037,377,040
À¯Âû
~410ÀÏ 
2025-12-09 70%
726,164,000
À¯Âû
~454ÀÏ 
2026-01-22 49%
508,315,000
ÁøÇà
¹°°Ç¸í¼¼¼­ ÇöȲÁ¶»ç¼­ ¹®°ÇÁ¢¼ö ¼Û´Þ³»¿ª

°¨Á¤Æò°¡ÇöȲ

¸ñ·Ï ÁÖ¼Ò ±¸Á¶/¿ëµµ/´ëÁö±Ç ¸éÀû ºñ°í
°Ç¹°
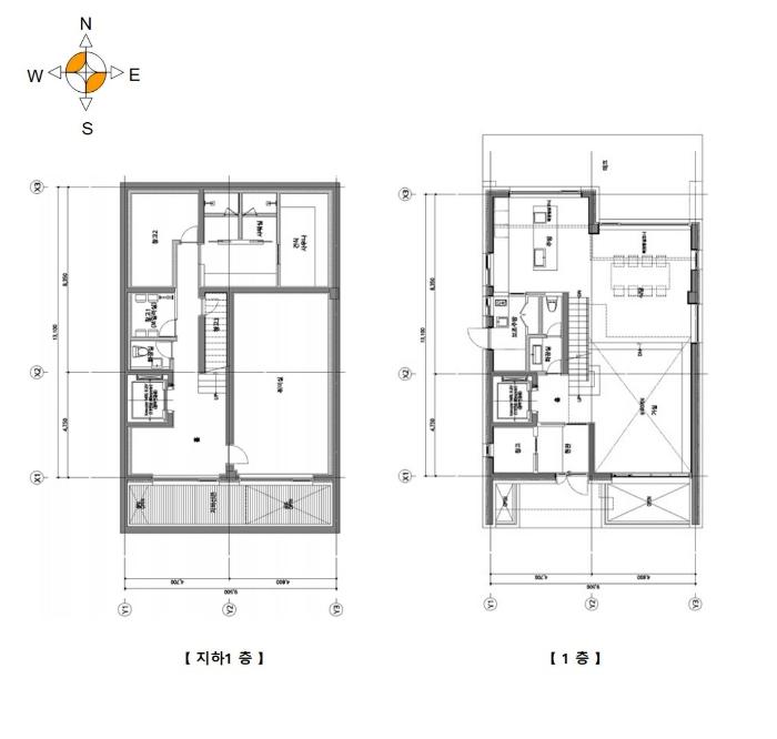
û¶óµ¿ 9-10 Áö1Ãþ ÁÖÅà ö±ÙÄÜÅ©¸®Æ®Á¶ 122.63 §³
(37.10Æò)
û¶óµ¿ 9-10 1Ãþ ÁÖÅà ö±ÙÄÜÅ©¸®Æ®Á¶ 100.10 §³
(30.28Æò)
û¶óµ¿ 9-10 2Ãþ ÁÖÅà ö±ÙÄÜÅ©¸®Æ®Á¶ 62.51 §³
(18.91Æò)
û¶óµ¿ 9-10 3Ãþ ÁÖÅà ö±ÙÄÜÅ©¸®Æ®Á¶ 70.94 §³
(21.46Æò)
1)°Ç¹°ÀÇ ±¸Á¶ À§Ä¡/ö±ÙÄÜÅ©¸®Æ®Á¶ ´õº¸±â
°¨Á¤Æò°¡ ¿äÇ×Ç¥
1)°Ç¹°ÀÇ ±¸Á¶
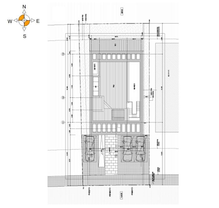
ö±ÙÄÜÅ©¸®Æ®Á¶ ½º¶óºêÆòÁöºØ ÁöÇÏ1Ãþ, Áö»ó3Ãþ °Ç¹°·Î¼­
(»ç¿ë½ÂÀÎÀÏ : 2023.08.10)

¿Ü º® : ÆÄº®µ¹ºÙÀÓ µî ¸¶°¨
³» º® : º®Áöµµ¹è, ŸÀÏ, ¿ø¸ñ µî ¸¶°¨
â È£ : Ä®¶ó¾Ë·ç¹Ì´½»õ½Ã º¹ÃþÀ¯¸® µî ¸¶°¨
2)ÀÌ¿ë»óÅÂ
º£¿¡Á½ºÆ® û¶óCC ³» ´Üµ¶ÁÖÅôÜÁö¿¡ À§Ä¡Çϸç, ÁÖÅÃÀ¸·Î ÀÌ¿ëÁßÀÓ.
3)¼³ºñ³»¿ª
À§»ý ¹× ±Þ¹è¼³ºñ, ³Ã³­¹æ¼³ºñ, ½Â°­±â, ž籤¼³ºñ µî µÇ¾î ÀÖÀ½.
4)ºÎÇÕ¹° ¹× Á¾¹°
¾ø À½.
5)°øºÎ¿ÍÀÇ Â÷ÀÌ
Á¦½Ã¸ñ·Ï ¹× µî±â»çÇ×ÀüºÎÁõ¸í¼­¿Í ÀϹݰÇÃ๰´ëÀå »ó ÁöÇÏ1Ãþ°ú Áö»ó3ÃþÀÇ ¸éÀû »óÀÌÇÔ.



6)±âŸÂü°í»çÇ×(ÀÓ´ë°ü·Ê ¹× ±âŸ)
- ÀÓ´ë°ü°è : ÀÓ´ë ÁßÀ¸·Î Á¶»çµÇ³ª ÀÓÂ÷ÀÎ Á¶»ç°ÅºÎ·Î ÀÓ´ëÂ÷ ¼¼ºÎ»çÇ×Àº ¹Ì»óÀÓ.
- ±â Ÿ : º»°Ç °Ç¹°°ú ÅäÁöÀÇ ¼ÒÀ¯ÀÚ ¼­·Î »óÀÌÇÔ.
Âü°í
»çÇ×
-°Ç¹°¸¸ ¸Å°¢. °Ç¹° ´ëÁö¿¡ ´ëÇÑ ¹ýÁ¤Áö»ó±Ç ¼º¸³¿©ºÎ ºÒºÐ¸í -µî±â»çÇ×Áõ¸í¼­¿Í ÀϹݰÇÃ๰´ëÀå »ó ÁöÇÏ1Ãþ°ú Áö»ó 3ÃþÀÇ ¸éÀûÀÌ »óÀÌÇÏ¿© ÀϹݰÇÃ๰´ëÀåÀ» ±âÁØÀ¸·Î Æò°¡ÇÔ
ö±ÙÄÜÅ©¸®Æ®Á¶ ½º¶ó

°ÇÃ๰ÇöȲ

¼ÒÀçÁö ÀÎõ±¤¿ª½Ã ¼­±¸ û¶óµ¿ 9-10¹øÁö
´ëÁö¸éÀû 406§³
(123.03Æò)
¿¬¸éÀû 357.44§³
(108.32Æò)
°ÇÃà¸éÀû 120.93§³
(36.65Æò)
¿ëÀû·ü»êÁ¤
¿¬¸éÀû
233.65§³
(70.8Æò)
°ÇÆóÀ² 29.79% ¿ëÀû·ü 57.55%
Áö»óÃþ¼ö 3Ãþ ÁöÇÏÃþ¼ö 1Ãþ
ÁÖ¿ëµµ ´Üµ¶ÁÖÅà ±¸Á¶ ö±ÙÄÜÅ©¸®Æ®±¸Á¶
Âø°øÀÏÀÚ 2019.07.29 »ç¿ë½ÂÀÎÀÏÀÚ 2023.08.10
°ÇÃ๰Ãþº°ÇöȲ [º¸±â]


±¹ÅäºÎ½Ç°Å·¡°¡ ÀÎõ±¤¿ª½Ã ¼­±¸ û¶óµ¿

¡Ü ¸Å¸Å

¸éÀû(§³), ±Ý¾×(¸¸¿ø)

¡Ü Àü¼¼

¸éÀû(§³), ±Ý¾×(¸¸¿ø)

°è¾àÀÏÀ¯Çü¿¬¸éÀû´ëÁö±Ý¾×°ÇÃà
24.03.14´Ù°¡±¸473.44315.9144,0002014
24.01.16´Üµ¶146.23183100,0002021
24.01.04´Ù°¡±¸398.18267.3116,0002016
24.01.04´Üµ¶123.97155.382,0002021
24.01.03´Üµ¶497.54346.5176,5002014

µî±âºÎµîº» ¿ä¾à(ÅäÁö)

  Á¢¼öÀÏÀÚ µî±â¸ñÀû/±Ç¸®ÀÚ ±Ç¸®±Ý¾× ±âÁØ
1 2019³â9¿ù11ÀÏ
¼ÒÀ¯±Ç
(OOOO
¼Ò¸ê

µî±âºÎµîº» ¿ä¾à(°Ç¹°)

  Á¢¼öÀÏÀÚ µî±â¸ñÀû/±Ç¸®ÀÚ ±Ç¸®±Ý¾× ±âÁØ
1
¼ÒÀ¯±Ç
(OOOO
¼Ò¸ê
2 2022³â9¿ù1ÀÏ
±ÙÀú´ç±Ç
ºÏOOOO
2,904,000,000 ¼Ò¸ê±âÁØ
3 2024³â10¿ù28ÀÏ
ÀÓÀǰæ¸Å
ºÏOOOO
¼Ò¸ê

ÀÓÂ÷ÀÎÇöȲ (¹è´ç¿ä±¸Á¾±âÀÏ: 2025-01-17)

ÀÓÂ÷ÀÎ ¿ëµµ/Á¡À¯ º¸Áõ±Ý/¿ù¼¼ ´ëÇ×·Â
ÀüÀÔÀÏ/È®Á¤ÀÏ ¹è´ç¿ä±¸ ºñ°í
ÃÖOO
¹ÌÀüÀÔ

¿©ÀÇÁÖ°æ¸Å Á¶¾ð ÇÑ ¸¶µð

³«Âû ÈÄ¿¡ µî±âºÎ»ó ¼Ò¸êµÇÁö ¾Ê´Â ±Ç¸®´Â ¾ø½À´Ï´Ù.
´ë·«ÀûÀÎ °ËÅäÀǰßÀ̹ǷΠÀÔÂûÀü¿¡ Àü¹®°¡ÀÇ Á¶¾ðÀ» Âü°íÇØ º¸½Ã±æ ±ÇÇØµå¸³´Ï´Ù.
¹ýÁ¤Áö»ó±ÇÀÌ ¼º¸³ÇÒ ¿©Áö°¡ ÀÖ´Â ¹°°ÇÀÔ´Ï´Ù

ÀÌ ¹°°Çó·³ ÅäÁö°¡ °æ¸Å¿¡¼­ Á¦¿ÜµÈ ¹°°ÇÀÎ °æ¿ì ƯÈ÷ À¯ÀÇÇÏ¼Å¾ß ÇÕ´Ï´Ù.
°¨Á¤ ½ÃÁ¡ÀÌ ¿À·¡µÇ¾î °¡°Ýº¯µ¿ÀÌ ÀÖÀ» ¼ö ÀÖ½À´Ï´Ù.
ÀÌ ¹°°ÇÀº 2024³â 10¿ù 28ÀÏ¿¡ °æ¸Å°¡ °³½ÃµÇ¾ú´Âµ¥ Áö±Ý ½ÃÁ¡À¸·Î ¾à 408ÀÏÀÌ ÀÌ °æ°úµÇ¾ú½À´Ï´Ù. °¨Á¤°¡°ÝÀº 408ÀÏ Àü ½ÃÁ¡¿¡¼­ Æò°¡ÇÑ °¡°ÝÀ̹ǷΠ±× »çÀÌ °¡°Ýº¯µ¿ÀÌ ÀÖÀ» ¼ö ÀÖ½À´Ï´Ù. ƯÈ÷ °¡°Ý º¯µ¿ÀÌ ½ÉÇÑ ¾ÆÆÄÆ®´Â À¯ÀÇÇÏ¼Å¾ß ÇÕ´Ï´Ù. °¨Á¤°¡°ÝÀ» ³Ê¹« ¹ÏÁö ¸¶½Ã°í ÇöÀç ½Ç¸Å¹° °¡°Ý°ú ½Ç°Å·¡°¡¸¦ È®ÀÎÇϽñ⠹ٶø´Ï´Ù.
°£È¤ °¨Á¤°¡°Ýº¸´Ù ³ô°Ô ³«ÂûµÇ´Â °æ¿ì°¡ Àִµ¥ ´ëºÎºÐ ÀÌ·± ÀÌÀ¯ÀÔ´Ï´Ù.
¡Ø ¹°°Ç Ű¿öµå : ö±ÙÄÜÅ©¸®Æ®Á¶
Àüü ÄÁ¼³ÆÃÀÌ ºÎ´ã½º·¯¿ì½Å°¡¿ä? ±Ç¸®ºÐ¼®¸¸ ÀÇ·ÚÇϼŵµ ±¦Âú½À´Ï´Ù!
½Ç¼Ó ÀÖ°Ô Çٽɸ¸ ´ãÀº ±Ç¸®ºÐ¼® ¼­ºñ½º!! (±Ç¸®ºÐ¼® + ½Ã¼¼Á¶»ç + ³«Âû°¡ »êÁ¤ + ÀÔÂûÇ¥ ÀÛ¼º¹æ¹ý ±îÁö)
ÃÖ´ë Àüü ÄÁ¼³ÆÃ ºñ¿ëÀÇ 10% ¼öÁØ !!

ÁÖÀÇ»çÇ× (ÃÖ¼±¼øÀ§ ¼³Á¤ÀÏ: 2022.09.01.±ÙÀú´ç±Ç ¼³Á¤)

¸Å°¢À¸·Î ¼Ò¸êµÇÁö ¾Ê´Â µî±âºÎ±Ç¸®:
¸Å°¢À¸·Î ¼³Á¤µÈ °ÍÀ¸·Î º¸´Â Áö»ó±Ç:
2025.07.16 ä±ÇÀÚ ºÏOOOOOOO ±âÀϺ¯°æ½Åû¼­ Á¦Ãâ
-°Ç¹°¸¸ ¸Å°¢. °Ç¹° ´ëÁö¿¡ ´ëÇÑ ¹ýÁ¤Áö»ó±Ç ¼º¸³¿©ºÎ ºÒºÐ¸í -µî±â»çÇ×Áõ¸í¼­¿Í ÀϹݰÇÃ๰´ëÀå »ó ÁöÇÏ1Ãþ°ú Áö»ó 3ÃþÀÇ ¸éÀûÀÌ »óÀÌÇÏ¿© ÀϹݰÇÃ๰´ëÀåÀ» ±âÁØÀ¸·Î Æò°¡ÇÔ
¡Ø¹Ì³³°ü¸®ºñ(°ø¿ë) Àμö¿©ºÎ¸¦ ÀÔÂû Àü¿¡ È®ÀÎÇϽñ⠹ٶø´Ï´Ù

 

Áö¿ªºÐ¼®

ÁöÇÏö¸í Á÷¼±°Å¸®

Çб³¸í ÀüÈ­¹øÈ£ ÁÖ¼Ò Á÷¼±°Å¸®

¹ý¿ø

ÀÎõÁö¹æ¹ý¿ø (222-20)ÀÎõ±¤¿ª½Ã ¹ÌÃßȦ±¸ ¼Ò¼º·Î 163¹ø±æ 17(ÇÐÀ͵¿)
´ëÇ¥ : 032)860-1113~4
°üÇÒÁö¿ª : Áß±¸, µ¿±¸, ³²±¸, ¿¬¼ö±¸, ³²µ¿±¸, ºÎÆò±¸, °è¾ç±¸, ¼­±¸, ¿ËÁø±º, °­È­±º

µî±â¼Ò ÀÎõÁö¹æ¹ý¿ø º»¿ø µî±â±¹ (´ëÇ¥:1544-0773, ÆÑ½º:(032)620-9099, ÀÎõ±¤¿ª½Ã ¹ÌÃßȦ±¸ °æ¿ø´ë·Î 881(Á־ȵ¿ 983))
¼¼¹«¼­ ¼­ÀÎõ¼¼¹«¼­ (´ëÇ¥:032-560-52, ÆÑ½º:032-561-5777, ÀÎõ±¤¿ª½Ã ¼­±¸ ¼­°ù·Î369¹ø±æ 17 (¿¬Èñµ¿))

Àαٳ«ÂûÅë°è

±â°£ ¸Å°¢°Ç¼ö Æò±Õ°¨Á¤°¡
Æò±Õ¸Å°¢°¡
¸Å°¢°¡À²
Æò±ÕÀ¯Âû¼ö
3°³¿ù 2°Ç 400,390,080¿ø
236,161,000¿ø
59%
2.5ȸ
6°³¿ù 5°Ç 690,910,868¿ø
451,974,200¿ø
64%
2ȸ
12°³¿ù 10°Ç 539,678,711¿ø
319,202,100¿ø
56%
2.3ȸ


º» °æ¸ÅÁ¤º¸´Â ¹ý¿øÀÚ·á¿Í ÀÏÄ¡Çϵµ·Ï ÇÏ¿´À¸³ª ±Ç¸®»çÇ׺¯µ¿, ÀÔ·ÂÂø¿À µîÀÇ ¿øÀÎÀ¸·Î »ç½Ç°ú ´Ù¸¦ ¼ö ÀÖ½À´Ï´Ù. ÀÌ¿ë¾à°ü¿¡ ÀǰЏéÃ¥Á¶°ÇÀ¸·Î Á¦°øµÊÀ» ¾Ë¸®¸ç, °æ¸ÅÀÔÂû½Ã ¹Ýµå½Ã °ü·Ã °øºÎ¸¦ ÀçÈ®ÀÎÇϽñ⠹ٶø´Ï´Ù. º¸´Ù Æí¸®ÇÑ °æ¸ÅÁ¤º¸ Á¦°øÀ» À§ÇØ Áö¼ÓÀûÀ¸·Î °³¼±ÇϰڽÀ´Ï´Ù. ÀÌ¿ëÇØ Áּż­ °¨»çÇÕ´Ï´Ù.
°ü½É¹°°ÇÀ¸·Î µî·ÏÇÕ´Ï´Ù