36
¿ÀÇǽºÅÚ
¼­¿ïÁß¾ÓÁö¹æ¹ý¿ø
 °¨Á¤°¡234,000,000 ¿ø
 ÃÖÀú°¡(41%) 95,846,000 ¿ø
 º¸Áõ±Ý(10%) 9,584,600 ¿ø
 Ã»±¸¾×251,015,092 ¿ø
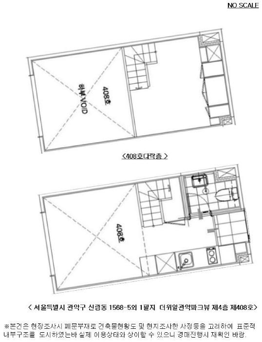
¼­¿ïƯº°½Ã °ü¾Ç±¸ ½Å¸²µ¿ 1568-5 ´õÀ§Àϰü¾ÇÆÄÅ©ºä 4Ãþ408È£
»ç°Ç¹øÈ£ 2025Ÿ°æ102187
°æ¸ÅÁ¾·ùºÎµ¿»ê°­Á¦°æ¸Å
¸Å°¢´ë»óÅäÁö ¹× °Ç¹°Àϰý ¸Å°¢
¸Å°¢±âÀÏ    2025.12.11(¸ñ) 10:00 ÀÔÂû 3ÀÏÀü    
ÅäÁö¸éÀû4.09§³(1.24 Æò)
°Ç¹°¸éÀû17.30§³(5.23 Æò)
乫/¼ÒÀ¯ÀÚ±èOO / ±èOO
ä±ÇÀÚÁÖOOOOOOO
±è¼ºÈÆ ´ëÇ¥ÀÌ»ç
°øÀÎÁß°³»ç, ºÎµ¿»ê°ø°æ¸Å»ç, ÇѾç´ëÇб³ Á¹¾÷
Àü) ÅÂÀÎÄÁ¼³ÆÃ(ÁÖ) ´ëÇ¥ÀÌ»ç
Àü) ¿©ÀÇÁֺε¿»êÁß°³¹ýÀÎ(ÁÖ) ´ëÇ¥ÀÌ»ç
Çö) ¿©ÀÇÁÖ°æ¸Å¹ýÀÎ ´ëÇ¥ÀÌ»ç
010-2371-3237
ÆäÀ̽ººÏ Æ®À§ÅÍ ±¸±Û+
īī¿À½ºÅ丮
īī¿ÀÅå sms¹®ÀÚº¸³»±â
 

±âÀϳ»¿ª

°æ°ú ³¯Â¥ Àú°¨ ÃÖÀú°¡ °á°ú
Á¢¼öÀÏ 2025-02-18 °æ¸ÅÁ¢¼ö
~3ÀÏ 
2025-02-21 °æ¸Å°³½Ã°áÁ¤
~80ÀÏ 
2025-05-09 ¹è´ç¿ä±¸Á¾±âÀÏ
~149ÀÏ 
2025-07-17 100%
234,000,000
À¯Âû
~184ÀÏ 
2025-08-21 80%
187,200,000
À¯Âû
~219ÀÏ 
2025-09-25 64%
149,760,000
À¯Âû
~261ÀÏ 
2025-11-06 51%
119,808,000
À¯Âû
~296ÀÏ 
2025-12-11 41%
95,846,000
ÁøÇà
¹°°Ç¸í¼¼¼­ ÇöȲÁ¶»ç¼­ ¹®°ÇÁ¢¼ö ¼Û´Þ³»¿ª

°¨Á¤Æò°¡ÇöȲ

¸ñ·Ï ÁÖ¼Ò ±¸Á¶/¿ëµµ/´ëÁö±Ç ¸éÀû ºñ°í
´ëÁö±Ç
½Å¸²µ¿ 1568-5 589.6ºÐÀÇ 4.088 4.088 §³
(1.24Æò)
°Ç¹°
½Å¸²µ¿ 1568-5 4Ãþ408È£ ö±ÙÄÜÅ©¸®Æ®±¸Á¶ 17.3 §³
(5.23Æò)

°ÇÃ๰ÇöȲ

¼ÒÀçÁö ¼­¿ïƯº°½Ã °ü¾Ç±¸ ½Å¸²µ¿ 1568-5¹øÁö
´ëÁö¸éÀû 589.6§³
(178.67Æò)
¿¬¸éÀû 3974.81§³
(1204.49Æò)
°ÇÃà¸éÀû 352.96§³
(106.96Æò)
¿ëÀû·ü»êÁ¤
¿¬¸éÀû
3654.84§³
(1107.53Æò)
°ÇÆóÀ² 59.86% ¿ëÀû·ü 619.88%
Áö»óÃþ¼ö 14Ãþ ÁöÇÏÃþ¼ö 1Ãþ
ÁÖ¿ëµµ ¾÷¹«½Ã¼³ ±¸Á¶ ö±ÙÄÜÅ©¸®Æ®±¸Á¶
Âø°øÀÏÀÚ 2020.12.15 »ç¿ë½ÂÀÎÀÏÀÚ 2021.12.13
°ÇÃ๰Ãþº°ÇöȲ [º¸±â]


±¹ÅäºÎ½Ç°Å·¡°¡ ¼­¿ïƯº°½Ã °ü¾Ç±¸ ½Å¸²µ¿

¡Ü ¸Å¸Å

¸éÀû(§³), ±Ý¾×(¸¸¿ø)

¡Ü Àü¼¼

¸éÀû(§³), ±Ý¾×(¸¸¿ø)

°è¾àÀϰǹ°¸íĪÃþÀü¿ëº¸Áõ±Ý¿ù¼¼°ÇÃà
25.08.05´õÀ§Àϰü¾ÇÆÄÅ©ºä1418.86100702021
25.06.27´õÀ§Àϰü¾ÇÆÄÅ©ºä517.3100702021
25.05.29´õÀ§Àϰü¾ÇÆÄÅ©ºä1017.3100752021
25.02.16´õÀ§Àϰü¾ÇÆÄÅ©ºä317.33,000752021
25.01.06´õÀ§Àϰü¾ÇÆÄÅ©ºä618.8670702021
¢Ñ ´õº¸±â

µî±âºÎµîº» ¿ä¾à(°Ç¹°)

  Á¢¼öÀÏÀÚ µî±â¸ñÀû/±Ç¸®ÀÚ ±Ç¸®±Ý¾× ±âÁØ
1 2022³â1¿ù26ÀÏ
¼ÒÀ¯±Ç
±èOO
¼Ò¸ê
2 2022³â1¿ù26ÀÏ
¾àÁ¤/±ÝÁö»çÇ×/ȯ¸ÅƯ¾à
Àμö
3 2023³â3¿ù20ÀÏ
¾Ð·ù
±¹
¼Ò¸ê±âÁØ
4 2024³â2¿ù6ÀÏ
ÀÓÂ÷±Ç¼³Á¤
±èOO
237,000,000 ¼Ò¸ê
5 2024³â5¿ù10ÀÏ
¾Ð·ù
¼­OOOO
¼Ò¸ê
6 2024³â7¿ù25ÀÏ
°¡¾Ð·ù
ÁÖOOOO
2,699,000,000 ¼Ò¸ê
7 2025³â2¿ù24ÀÏ
°­Á¦°æ¸Å
ÁÖOOOO
¼Ò¸ê

ÀÓÂ÷ÀÎÇöȲ (¹è´ç¿ä±¸Á¾±âÀÏ: 2025-05-09)

ÀÓÂ÷ÀÎ ¿ëµµ/Á¡À¯ º¸Áõ±Ý/¿ù¼¼ ´ëÇ×·Â
ÀüÀÔÀÏ/È®Á¤ÀÏ ¹è´ç¿ä±¸ ºñ°í
±èOO ÀüºÎ 237,000,000
O
2022.01.26
2022.01.11
2022.01.26
ºñ°í
(¸Å°¢¹°°Ç
¸í¼¼¼­)
±è½Ã¿ø:ÁÖÅõµ½Ãº¸Áõ°ø»ç´Â ÀÓÂ÷ÀÎ ±è½Ã¿øÀÇ ½Â°èÀÎÀ¸·Î °æ¸Å½Åûä±ÇÀÚÀÓ

¿©ÀÇÁÖ°æ¸Å Á¶¾ð ÇÑ ¸¶µð

¸Å°¢¹°°Ç¸í¼¼ ºñ°í³­¿¡ ±âÀçµÈ ³»¿ëÀÔ´Ï´Ù.
±è½Ã¿ø:ÁÖÅõµ½Ãº¸Áõ°ø»ç´Â ÀÓÂ÷ÀÎ ±è½Ã¿øÀÇ ½Â°èÀÎÀ¸·Î °æ¸Å½Åûä±ÇÀÚÀÓ
³«Âû ÈÄ¿¡ µî±âºÎ»ó ¼Ò¸êµÇÁö ¾Ê´Â ±Ç¸®ÀÔ´Ï´Ù.
¸Å¼öÀο¡°Ô ´ëÇ×ÇÒ ¼ö ÀÖ´Â À»±¸ 3¹ø ÀÓÂ÷±Çµî±â°¡ ÀÖÀ¸¹Ç·Î ¹è´ç¿¡¼­ Àü¾× º¯Á¦µÇÁö ¾Æ´ÏÇϸé Àܾ×À» ¸Å¼öÀÎÀÌ ÀμöÇÔ
¼±¼øÀ§ ÀÓÂ÷±Çµî±â°¡ µÇ¾î ÀÖ½À´Ï´Ù.
Àüü ÄÁ¼³ÆÃÀÌ ºÎ´ã½º·¯¿ì½Å°¡¿ä? ±Ç¸®ºÐ¼®¸¸ ÀÇ·ÚÇϼŵµ ±¦Âú½À´Ï´Ù!
½Ç¼Ó ÀÖ°Ô Çٽɸ¸ ´ãÀº ±Ç¸®ºÐ¼® ¼­ºñ½º!! (±Ç¸®ºÐ¼® + ½Ã¼¼Á¶»ç + ³«Âû°¡ »êÁ¤ + ÀÔÂûÇ¥ ÀÛ¼º¹æ¹ý ±îÁö)
ÃÖ´ë Àüü ÄÁ¼³ÆÃ ºñ¿ëÀÇ 10% ¼öÁØ !!

ÁÖÀÇ»çÇ× (ÃÖ¼±¼øÀ§ ¼³Á¤ÀÏ: 2023.03.20 ¾Ð·ù ¼³Á¤)

¸Å°¢À¸·Î ¼Ò¸êµÇÁö ¾Ê´Â µî±âºÎ±Ç¸®: ¸Å¼öÀο¡°Ô ´ëÇ×ÇÒ ¼ö ÀÖ´Â À»±¸ 3¹ø ÀÓÂ÷±Çµî±â°¡ ÀÖÀ¸¹Ç·Î ¹è´ç¿¡¼­ Àü¾× º¯Á¦µÇÁö ¾Æ´ÏÇϸé Àܾ×À» ¸Å¼öÀÎÀÌ ÀμöÇÔ
¸Å°¢À¸·Î ¼³Á¤µÈ °ÍÀ¸·Î º¸´Â Áö»ó±Ç:
¡Ø¹Ì³³°ü¸®ºñ(°ø¿ë) Àμö¿©ºÎ¸¦ ÀÔÂû Àü¿¡ È®ÀÎÇϽñ⠹ٶø´Ï´Ù

 

Áö¿ªºÐ¼®

ÁöÇÏö¸í Á÷¼±°Å¸®

Çб³¸í ÀüÈ­¹øÈ£ ÁÖ¼Ò Á÷¼±°Å¸®

¹ý¿ø

¼­¿ïÁß¾ÓÁö¹æ¹ý¿ø (065-94)¼­¿ïƯº°½Ã ¼­Ãʱ¸ ¼­ÃÊÁß¾Ó·Î 157 (¼­Ãʵ¿)
´ëÇ¥ : 02)530-1114, ¾ß°£ : 02)530-1280/536-8003
°üÇÒÁö¿ª : Á¾·Î±¸, Áß±¸, °­³²±¸, ¼­Ãʱ¸, °ü¾Ç±¸, µ¿ÀÛ±¸

µî±â¼Ò ¼­¿ïÁß¾ÓÁö¹æ¹ý¿ø º»¿ø µî±â±¹ (´ëÇ¥:1544-0773, ÆÑ½º:(02)590-1881, ¼­¿ïƯº°½Ã ¼­Ãʱ¸ ¹ý¿ø·Î3±æ 14 (¼­Ãʵ¿ 1707-4))
¼¼¹«¼­ °ü¾Ç¼¼¹«¼­ (´ëÇ¥:02-2173-42, ÆÑ½º:02-2173-4269, ¼­¿ïƯº°½Ã °ü¾Ç±¸ ¹®¼º·Î 187(½Å¸²µ¿))

Àαٳ«ÂûÅë°è

±â°£ ¸Å°¢°Ç¼ö Æò±Õ°¨Á¤°¡
Æò±Õ¸Å°¢°¡
¸Å°¢°¡À²
Æò±ÕÀ¯Âû¼ö
3°³¿ù 15°Ç 240,133,333¿ø
198,151,301¿ø
83%
4.9ȸ
6°³¿ù 26°Ç 229,461,538¿ø
189,088,501¿ø
82%
4.5ȸ
12°³¿ù 42°Ç 283,882,817¿ø
237,244,994¿ø
85%
4ȸ


º» °æ¸ÅÁ¤º¸´Â ¹ý¿øÀÚ·á¿Í ÀÏÄ¡Çϵµ·Ï ÇÏ¿´À¸³ª ±Ç¸®»çÇ׺¯µ¿, ÀÔ·ÂÂø¿À µîÀÇ ¿øÀÎÀ¸·Î »ç½Ç°ú ´Ù¸¦ ¼ö ÀÖ½À´Ï´Ù. ÀÌ¿ë¾à°ü¿¡ ÀǰЏéÃ¥Á¶°ÇÀ¸·Î Á¦°øµÊÀ» ¾Ë¸®¸ç, °æ¸ÅÀÔÂû½Ã ¹Ýµå½Ã °ü·Ã °øºÎ¸¦ ÀçÈ®ÀÎÇϽñ⠹ٶø´Ï´Ù. º¸´Ù Æí¸®ÇÑ °æ¸ÅÁ¤º¸ Á¦°øÀ» À§ÇØ Áö¼ÓÀûÀ¸·Î °³¼±ÇϰڽÀ´Ï´Ù. ÀÌ¿ëÇØ Áּż­ °¨»çÇÕ´Ï´Ù.
°ü½É¹°°ÇÀ¸·Î µî·ÏÇÕ´Ï´Ù