1442
±Ù¸°ÁÖÅÃ
¼­¿ïµ¿ºÎÁö¹æ¹ý¿ø
 °¨Á¤°¡1,038,112,940 ¿ø
 ÃÖÀú°¡(51%) 531,514,000 ¿ø
 º¸Áõ±Ý(10%) 53,151,400 ¿ø
 Ã»±¸¾×769,548,590 ¿ø
¼­¿ïƯº°½Ã ±¤Áø±¸ Á߰ 176-45
»ç°Ç¹øÈ£ 2024Ÿ°æ1723
°æ¸ÅÁ¾·ùºÎµ¿»êÀÓÀǰæ¸Å
¸Å°¢´ë»óÅäÁö ¹× °Ç¹°Àϰý¸Å°¢
¸Å°¢±âÀÏ    2026.04.20(¿ù) 10:00 ÀÔÂû 8ÀÏÀü    
ÅäÁö¸éÀû106.00§³(32.07 Æò)
°Ç¹°¸éÀû220.51§³(66.70 Æò)
乫/¼ÒÀ¯ÀÚ±èOO / ±èOO
ä±ÇÀÚ³²OOOOOOO
±è¼ºÈÆ ´ëÇ¥ÀÌ»ç
°øÀÎÁß°³»ç, ºÎµ¿»ê°ø°æ¸Å»ç, ÇѾç´ëÇб³ Á¹¾÷
Àü) ÅÂÀÎÄÁ¼³ÆÃ(ÁÖ) ´ëÇ¥ÀÌ»ç
Àü) ¿©ÀÇÁֺε¿»êÁß°³¹ýÀÎ(ÁÖ) ´ëÇ¥ÀÌ»ç
Çö) ¿©ÀÇÁÖ°æ¸Å¹ýÀÎ ´ëÇ¥ÀÌ»ç
010-2371-3237
ÆäÀ̽ººÏ Æ®À§ÅÍ ±¸±Û+
īī¿À½ºÅ丮
īī¿ÀÅå sms¹®ÀÚº¸³»±â
 

±âÀϳ»¿ª

°æ°ú ³¯Â¥ Àú°¨ ÃÖÀú°¡ °á°ú
Á¢¼öÀÏ 2024-06-05 °æ¸ÅÁ¢¼ö
~2ÀÏ 
2024-06-07 °æ¸Å°³½Ã°áÁ¤
~82ÀÏ 
2024-08-26 ¹è´ç¿ä±¸Á¾±âÀÏ
~306ÀÏ 
2025-04-07 100%
1,038,112,940
º¯°æ
~432ÀÏ 
2025-08-11 100%
1,038,112,940
À¯Âû
~467ÀÏ 
2025-09-15 80%
830,490,000
À¯Âû
~516ÀÏ 
2025-11-03 64%
664,392,000
À¯Âû
~551ÀÏ 
2025-12-08 51%
531,514,000
º¯°æ
~684ÀÏ 
2026-04-20 51%
531,514,000
ÁøÇà
¹°°Ç¸í¼¼¼­ ÇöȲÁ¶»ç¼­ ¹®°ÇÁ¢¼ö ¼Û´Þ³»¿ª

°¨Á¤Æò°¡ÇöȲ

¸ñ·Ï ÁÖ¼Ò ±¸Á¶/¿ëµµ/´ëÁö±Ç ¸éÀû ºñ°í
ÅäÁö
Á߰ 176-45 ´ëÁö 106 §³
(32.07Æò)
°Ç¹°
Á߰ 176-45 Áö1Ãþ ±Ù¸°»ýȰ½Ã¼³ ö±ÙÄÜÅ©¸®Æ®±¸Á¶ 45.27 §³
(13.69Æò)
Á߰ 176-45 1Ãþ ±Ù¸°»ýȰ½Ã¼³ ö±ÙÄÜÅ©¸®Æ®±¸Á¶ 50.58 §³
(15.30Æò)
Á߰ 176-45 2Ãþ ÁÖÅà ö±ÙÄÜÅ©¸®Æ®±¸Á¶ 50.58 §³
(15.30Æò)
Á߰ 176-45 3Ãþ ÁÖÅà ö±ÙÄÜÅ©¸®Æ®±¸Á¶ 50.58 §³
(15.30Æò)
Á¦½Ã¿Ü
°Ç¹°
¿ë¸¶»ê·Î28³ª±æ 12 ´Ù¶ô 23.5 §³
(7.11Æò)
Æ÷ÇÔ
1) À§Ä¡/µµ½ÃÁö¿ª/Á¦1Á¾ÀϹÝÁÖ°ÅÁö¿ª/¹ö½ºÁ¤·ùÀå/ö±ÙÄÜÅ©¸®Æ®±¸Á¶ ´õº¸±â
°¨Á¤Æò°¡ ¿äÇ×Ç¥
1)À§Ä¡ ¹× ÁÖÀ§È¯°æ
º»°ÇÀº ¼­¿ïƯº°½Ã ±¤Áø±¸ Á߰ ¼ÒÀç ¡®¿ë°îÃʵîÇб³¡¯ ºÏÃø Àαٿ¡ À§Ä¡Çϸç, ÁÖÀ§´Â
´Üµ¶ÁÖÅÃ, ´Ù¼¼´ëÁÖÅà ¹× ±Ù¸°»ýȰ½Ã¼³, Çб³, °ø¿ø, ÀÓ¾ß µîÀÌ È¥ÀçÇÏ´Â Áö¿ªÀ¸·Î¼­, Á¦
¹Ý ÁÖÀ§È¯°æÀº º¸ÅëÀÓ.
2)±³Åë»óȲ
º»°Ç±îÁö Á¦¹Ý Â÷·®ÀÇ ÁøÀÔÀº °¡´ÉÇϸç, Àαٿ¡ ³ë¼± ¹ö½ºÁ¤·ùÀåÀÌ ¼ÒÀçÇÏ´Â µî Á¦¹Ý ±³Åë
¿©°ÇÀº º¸Åë½ÃµÊ.
3)ÇüÅ ¹× ÀÌ¿ë»óÅÂ
ºÎÁ¤Çü ¿Ï°æ»çÁö·Î¼­, ÁÖ»ó¿ë °ÇºÎÁö·Î ÀÌ¿ëÁßÀÓ.
4)ÀÎÁ¢ µµ·Î»óÅÂ
º»°Ç ¼­ÃøÀ¸·Î ³ëÆø ¾à 3¹ÌÅÍ ³»¿ÜÀÇ Æ÷Àåµµ·Î¿¡ Á¢ÇÔ.
5)ÅäÁöÀÌ¿ë°èȹ ¹× Á¦ÇÑ»óÅÂ
µµ½ÃÁö¿ª, Á¦1Á¾ÀϹÝÁÖ°ÅÁö¿ª, °¡Ãà»çÀ°Á¦Çѱ¸¿ª<°¡ÃàºÐ´¢ÀÇ °ü¸® ¹× À̿뿡 °üÇÑ ¹ý·ü>,
»ó´ëº¸È£±¸¿ª(200m)<±³À°È¯°æ º¸È£¿¡ °üÇѹý·ü>, ´ë°ø¹æ¾îÇùÁ¶±¸¿ª(À§Å¹°íµµ:77-257m)<±º
»ç±âÁö ¹× ±º»ç½Ã¼³ º¸È£¹ý>, °ú¹Ð¾ïÁ¦±Ç¿ª<¼öµµ±ÇÁ¤ºñ°èȹ¹ý>, <Ãß°¡±âÀç>°ÇÃà¹ý Á¦2Á¶
Á¦1Ç×Á¦11È£³ª¸ñ¿¡ µû¸¥ µµ·Î(µµ·ÎÀÏºÎÆ÷ÇÔ)ÀÓ.



6)Á¦½Ã¸ñ·Ï ¿ÜÀÇ ¹°°Ç
-
7)°øºÎ¿ÍÀÇ Â÷ÀÌ
-
8)±âŸÂü°í»çÇ×(ÀÓ´ë°ü·Ê ¹× ±âŸ)
-
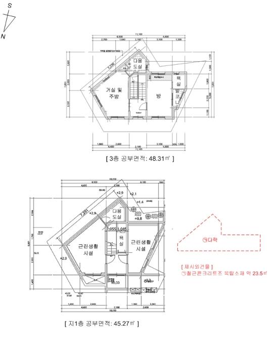
1)°Ç¹°ÀÇ ±¸Á¶
ö±ÙÄÜÅ©¸®Æ®±¸Á¶ Æò½½¶óºêÁöºØ ÁöÇÏ1Ãþ/Áö»ó3Ãþ °Ç¹°·Î¼­
¿Üº® : ¼®ÀçºÙÀÓ ¸¶°¨ µî
³»º® : º®Áöµµ¹è, ŸÀÏ ¸¶°¨ µî
âȣ : ¼¦½Ãâȣ µîÀÓ.
2)ÀÌ¿ë»óÅÂ
Áö1Ãþ : ±Ù¸°»ýȰ½Ã¼³, °è´Ü½Ç.
1Ãþ : ±Ù¸°»ýȰ½Ã¼³.
2Ãþ : ´Üµ¶ÁÖÅÃ.
3Ãþ : ´Üµ¶ÁÖÅÃ.
3)¼³ºñ³»¿ª
±âº» À§»ý¼³ºñ, ±Þ¹è¼ö½Ã¼³, ³­¹æ¼³ºñ, ÁÖÂ÷½Ã¼³ µîÀÌ ±¸ºñµÇ¾î ÀÖÀ½.
4)ºÎÇÕ¹° ¹× Á¾¹°
ÈÄ÷ "ÁöÀû ¹× °Ç¹°°³È²µµ" ÂüÁ¶
5)°øºÎ¿ÍÀÇ Â÷ÀÌ
º»°Ç °Ç¹°Àº ±Í Æò°¡¸í·É¼­ ¹× µî±â»çÇ×ÀüºÎÁõ¸í¼­»ó ¿¬¸éÀû(197.01§³)°ú ÀϹݰÇÃ๰´ëÀå»ó
¿¬¸éÀû(196.91§³)ÀÌ »óÀÌÇÑ ¹Ù, ÀϹݰÇÃ๰´ëÀå»ó ¸éÀûÀ» ±âÁØÇÏ¿´À½.

6)±âŸÂü°í»çÇ×(ÀÓ´ë°ü·Ê ¹× ±âŸ)
ÀÓ´ë¹Ì»ó.
Âü°í
»çÇ×
1. Àϰý¸Å°¢. Á¦½Ã¿Ü °Ç¹° Æ÷ÇÔ. 2. À¯Ä¡±ÇÀÚ ±è¹®Èñ·ÎºÎÅÍ 2025.2.4.ÀÚ·Î À¯Ä¡±Ç ÃëÇÏ½Å°í¼­ Á¦ÃâµÊ. 3. º»°Ç °Ç¹°ÀÇ µî±â»çÇ×Áõ¸í¼­»ó ¿¬¸éÀû(197.01§³)°ú ÀϹݰÇÃ๰´ëÀå»ó ¿¬¸éÀû(196.91§³)ÀÌ »óÀÌÇÑ ¹Ù, ÀϹݰÇÃ๰´ëÀå»ó ¿¬¸éÀû ±âÁØÀ¸·Î Æò°¡ÇÔ(°¨Á¤Æò°¡¼­ ÂüÁ¶). 4. 2025.2.21.ÀÚ·Î À¯Ä¡±ÇÀÚ ÀÌ»óÅ·κÎÅÍ °ø»ç´ë±Ý(51,000,000¿ø)À» ÀÌÀ¯·Î À¯Ä¡±Ç±Ç¸®½Å°í¼­°¡ Á¦ÃâµÇ¾úÀ¸³ª ±× ¼º¸³¿©ºÎ´Â ºÒºÐ¸íÇÔ. 5. 2026.1.8. ½Åûä±ÇÀÚÀÇ ½Â°èÀÎ ¿¥¾¾¾ÆÀÌ´ëºÎ(ÁÖ)°¡ "À¯Ä¡±Ç½Å°í ÈÄ ÃëÇϸ¦ ÇÑ ÁÖ½Äȸ»ç µðÀÚÀÎÆ÷À¯, ±èÁ¾È¯, ±è¹®Èñ´Â µ¿ÀÏÀÎ"À̸ç, "À¯Ä¡±Ç½Å°íÀÚ ÀÌ»óÅ´ ÀÚÇÊ ÀÛ¼º ¹× ³¯ÀÎµÈ ÇÕÀǼ­¸¦ Á¦Ãâ"ÇÏ¿´´Ù´Â ÃëÁöÀÇ À¯Ä¡±Ç ¹èÁ¦ Àǰ߼­¸¦ Á¦ÃâÇÔ. 6. (ÁÖ)±Ýž»ê¾÷¿£Áö´Ï¾î¸µÀÌ 2026.3.19. À¯Ä¡±Ç½Å°í(°ø»ç´ë±Ý 222,518,500¿ø)¸¦ ÇÏ¿´À¸³ª ±× ¼º¸³¿©ºÎ´Â ºÒºÐ¸íÇÔ.
º»°Ç ¸ñ·Ï2 ºÎµ¿»êÀº Áö1Ãþ(¿Ü°ü»ó Áö»ó1Ãþ), Áö»ó3Ãþ(¿Ü°ü»ó Áö»ó2-4Ãþ)À¸·Î ÀÌ·ç¾îÁø ½ÅÃà°Ç¹°·Î, °Ç¹° ÃâÀÔ±¸ ¹®¿¡ `À¯Ä¡±Ç Çà»çÁß`¶ó°í Ç¥½ÃµÇ¾î ÀÖÀ½

°ÇÃ๰ÇöȲ

¼ÒÀçÁö ¼­¿ïƯº°½Ã ±¤Áø±¸ Á߰ 176-45¹øÁö
´ëÁö¸éÀû 101.32§³
(30.7Æò)
¿¬¸éÀû 196.91§³
(59.67Æò)
°ÇÃà¸éÀû 56.39§³
(17.09Æò)
¿ëÀû·ü»êÁ¤
¿¬¸éÀû
151.64§³
(45.95Æò)
°ÇÆóÀ² 55.66% ¿ëÀû·ü 149.66%
Áö»óÃþ¼ö 3Ãþ ÁöÇÏÃþ¼ö 1Ãþ
ÁÖ¿ëµµ Á¦2Á¾±Ù¸°»ýȰ½Ã¼³ ±¸Á¶ ö±ÙÄÜÅ©¸®Æ®±¸Á¶
Âø°øÀÏÀÚ 2022.04.11 »ç¿ë½ÂÀÎÀÏÀÚ 2023.04.06
°ÇÃ๰Ãþº°ÇöȲ [º¸±â]


±¹ÅäºÎ½Ç°Å·¡°¡ ¼­¿ïƯº°½Ã ±¤Áø±¸ Á߰

¡Ü ¸Å¸Å

¸éÀû(§³), ±Ý¾×(¸¸¿ø)

¡Ü Àü¼¼

¸éÀû(§³), ±Ý¾×(¸¸¿ø)

°è¾àÀÏ¿¬¸éÀûº¸Áõ±Ý¿ù¼¼°ÇÃà
26.03.315511,000502013
26.03.314016,80001989
26.03.3129.720,00002017
26.03.31483,000802003
26.03.3178.437,00001985
¢Ñ ´õº¸±â

µî±âºÎµîº» ¿ä¾à(ÅäÁö)

  Á¢¼öÀÏÀÚ µî±â¸ñÀû/±Ç¸®ÀÚ ±Ç¸®±Ý¾× ±âÁØ
1 2018³â8¿ù31ÀÏ
¼ÒÀ¯±Ç
±èOO
¼Ò¸ê
2 2021³â9¿ù9ÀÏ
±ÙÀú´ç±Ç
¿¥OOOO
906,000,000 ¼Ò¸ê±âÁØ
3 2023³â9¿ù15ÀÏ
±ÙÀú´ç±Ç
(OOOO
750,000,000 ¼Ò¸ê
4 2024³â6¿ù7ÀÏ
ÀÓÀǰæ¸Å
³²OOOO
¼Ò¸ê
5 2024³â12¿ù31ÀÏ
¾Ð·ù
±¤OO
¼Ò¸ê

µî±âºÎµîº» ¿ä¾à(°Ç¹°)

  Á¢¼öÀÏÀÚ µî±â¸ñÀû/±Ç¸®ÀÚ ±Ç¸®±Ý¾× ±âÁØ
1 2023³â4¿ù14ÀÏ
¼ÒÀ¯±Ç
±èOO
¼Ò¸ê
2 2023³â4¿ù25ÀÏ
±ÙÀú´ç±Ç
¿¥OOOO
906,000,000 ¼Ò¸ê±âÁØ
3 2023³â9¿ù15ÀÏ
±ÙÀú´ç±Ç
(OOOO
750,000,000 ¼Ò¸ê
4 2024³â6¿ù7ÀÏ
ÀÓÀǰæ¸Å
³²OOOO
¼Ò¸ê

ÀÓÂ÷ÀÎÇöȲ (¹è´ç¿ä±¸Á¾±âÀÏ: 2024-08-26)

ÀÓÂ÷ÀÎ ¿ëµµ/Á¡À¯ º¸Áõ±Ý/¿ù¼¼ ´ëÇ×·Â
ÀüÀÔÀÏ/È®Á¤ÀÏ ¹è´ç¿ä±¸ ºñ°í
±èOO Áö1Ãþ,Áö»ó3Ãþ°Ç¹°ÀüºÎ
¹Ì»ó
¹Ì»ó
ºñ°í
(¸Å°¢¹°°Ç
¸í¼¼¼­)
±èÁ¾È¯:º»°Ç °Ç¹° Áö1Ãþ(¿Ü°ü»ó Áö»ó1Ãþ), Áö»ó3Ãþ(¿Ü°ü»ó Áö»ó2~4Ãþ)ÀÇ ±Ù¸°»ýȰ½Ã¼³ ¹× ÁÖÅÃÀ» ½ÅÃàÇÏ¿´À¸³ª °ø»ç´ë±ÝÀ» ¹Þ Áö ¸øÇÏ¿© º»°Ç °Ç¹°À» Á¡À¯ÇÏ¿© À¯Ä¡±ÇÀ» Çà»çÇϰí ÀÖÀ½(ÇöȲÁ¶»çº¸°í¼­ ÂüÁ¶).

¿©ÀÇÁÖ°æ¸Å Á¶¾ð ÇÑ ¸¶µð

¸Å°¢¹°°Ç¸í¼¼ ºñ°í³­¿¡ ±âÀçµÈ ³»¿ëÀÔ´Ï´Ù.
±èÁ¾È¯:º»°Ç °Ç¹° Áö1Ãþ(¿Ü°ü»ó Áö»ó1Ãþ), Áö»ó3Ãþ(¿Ü°ü»ó Áö»ó2~4Ãþ)ÀÇ ±Ù¸°»ýȰ½Ã¼³ ¹× ÁÖÅÃÀ» ½ÅÃàÇÏ¿´À¸³ª °ø»ç´ë±ÝÀ» ¹Þ Áö ¸øÇÏ¿© º»°Ç °Ç¹°À» Á¡À¯ÇÏ¿© À¯Ä¡±ÇÀ» Çà»çÇϰí ÀÖÀ½(ÇöȲÁ¶»çº¸°í¼­ ÂüÁ¶).
³«Âû ÈÄ¿¡ µî±âºÎ»ó ¼Ò¸êµÇÁö ¾Ê´Â ±Ç¸®´Â ¾ø½À´Ï´Ù.
´ë·«ÀûÀÎ °ËÅäÀǰßÀ̹ǷΠÀÔÂûÀü¿¡ Àü¹®°¡ÀÇ Á¶¾ðÀ» Âü°íÇØ º¸½Ã±æ ±ÇÇØµå¸³´Ï´Ù.
À¯Ä¡±Ç½Å°í°¡ ÀÖ´Â ¹°°ÇÀÔ´Ï´Ù
Á¦½Ã¿Ü ¹°°ÇÀÌ Æ÷ÇԵǾî ÀÖ½À´Ï´Ù.
°¨Á¤ ½ÃÁ¡ÀÌ ¿À·¡µÇ¾î °¡°Ýº¯µ¿ÀÌ ÀÖÀ» ¼ö ÀÖ½À´Ï´Ù.
ÀÌ ¹°°ÇÀº 2024³â 6¿ù 7ÀÏ¿¡ °æ¸Å°¡ °³½ÃµÇ¾ú´Âµ¥ Áö±Ý ½ÃÁ¡À¸·Î ¾à 674ÀÏÀÌ ÀÌ °æ°úµÇ¾ú½À´Ï´Ù. °¨Á¤°¡°ÝÀº 674ÀÏ Àü ½ÃÁ¡¿¡¼­ Æò°¡ÇÑ °¡°ÝÀ̹ǷΠ±× »çÀÌ °¡°Ýº¯µ¿ÀÌ ÀÖÀ» ¼ö ÀÖ½À´Ï´Ù. ƯÈ÷ °¡°Ý º¯µ¿ÀÌ ½ÉÇÑ ¾ÆÆÄÆ®´Â À¯ÀÇÇÏ¼Å¾ß ÇÕ´Ï´Ù. °¨Á¤°¡°ÝÀ» ³Ê¹« ¹ÏÁö ¸¶½Ã°í ÇöÀç ½Ç¸Å¹° °¡°Ý°ú ½Ç°Å·¡°¡¸¦ È®ÀÎÇϽñ⠹ٶø´Ï´Ù.
°£È¤ °¨Á¤°¡°Ýº¸´Ù ³ô°Ô ³«ÂûµÇ´Â °æ¿ì°¡ Àִµ¥ ´ëºÎºÐ ÀÌ·± ÀÌÀ¯ÀÔ´Ï´Ù.
¡Ø ¹°°Ç Ű¿öµå : µµ½ÃÁö¿ª/ÁÖ°ÅÁö¿ª/Á¦1Á¾ÀϹÝÁÖ°ÅÁö¿ª/¹ö½ºÁ¤·ùÀå/ö±ÙÄÜÅ©¸®Æ®±¸Á¶
Àüü ÄÁ¼³ÆÃÀÌ ºÎ´ã½º·¯¿ì½Å°¡¿ä? ±Ç¸®ºÐ¼®¸¸ ÀÇ·ÚÇϼŵµ ±¦Âú½À´Ï´Ù!
½Ç¼Ó ÀÖ°Ô Çٽɸ¸ ´ãÀº ±Ç¸®ºÐ¼® ¼­ºñ½º!! (±Ç¸®ºÐ¼® + ½Ã¼¼Á¶»ç + ³«Âû°¡ »êÁ¤ + ÀÔÂûÇ¥ ÀÛ¼º¹æ¹ý ±îÁö)
ÃÖ´ë Àüü ÄÁ¼³ÆÃ ºñ¿ëÀÇ 10% ¼öÁØ !!

ÁÖÀÇ»çÇ× (ÃÖ¼±¼øÀ§ ¼³Á¤ÀÏ: 2021.9.09. ±ÙÀú´ç(ÅäÁö) ¼³Á¤ 2023.4.25. ±ÙÀú´ç(°Ç¹°))

¸Å°¢À¸·Î ¼Ò¸êµÇÁö ¾Ê´Â µî±âºÎ±Ç¸®:
¸Å°¢À¸·Î ¼³Á¤µÈ °ÍÀ¸·Î º¸´Â Áö»ó±Ç:
2025.03.11 ½Â°èÀÎ ¿¥OOOOO OOOO (OOOOOOOOOOOO) À¯Ä¡±Ç Æ÷±â°¢¼­ Á¦Ãâ ¹× À¯Ä¡±Ç ¹èÁ¦ Àǰ߼­ Á¦Ãâ
2025.02.21 ±âŸ ÀÌOO À¯Ä¡±Ç ±Ç¸®½Å°í¼­ Á¦Ãâ
2025.02.04 À¯Ä¡±ÇÀÚ ÁÖOOO OOOOO ±Ç¸®(À¯Ä¡±ÇÃëÇÏ) ½Å°í¼­ Á¦Ãâ
2024.06.26 À¯Ä¡±ÇÀÚ ÁÖOOO OOOOO À¯Ä¡±Ç½Å°í¼­ Á¦Ãâ
2025.12.24 ½Â°èÀÎ ¿¥OOOOO OOOO (OOOOOOOOOOOO) À¯Ä¡±ÇÀÚÃëÇÏ¿¡µû¸¥ÇöȲÁ¤Á¤¿äû¼­ Á¦Ãâ
2026.01.08 ½Â°èÀÎ ¿¥OOOOO OOOO (OOOOOOOOOOOO) À¯Ä¡±Ç¹èÁ¦ Àǰ߼­ Á¦Ãâ
2026.03.19 À¯Ä¡±ÇÀÚ ÁÖOOO OOOOOOOOO À¯Ä¡±Ç ±Ç¸®½Å°í¼­ Á¦Ãâ
1. Àϰý¸Å°¢. Á¦½Ã¿Ü °Ç¹° Æ÷ÇÔ. 2. À¯Ä¡±ÇÀÚ ±è¹®Èñ·ÎºÎÅÍ 2025.2.4.ÀÚ·Î À¯Ä¡±Ç ÃëÇÏ½Å°í¼­ Á¦ÃâµÊ. 3. º»°Ç °Ç¹°ÀÇ µî±â»çÇ×Áõ¸í¼­»ó ¿¬¸éÀû(197.01§³)°ú ÀϹݰÇÃ๰´ëÀå»ó ¿¬¸éÀû(196.91§³)ÀÌ »óÀÌÇÑ ¹Ù, ÀϹݰÇÃ๰´ëÀå»ó ¿¬¸éÀû ±âÁØÀ¸·Î Æò°¡ÇÔ(°¨Á¤Æò°¡¼­ ÂüÁ¶). 4. 2025.2.21.ÀÚ·Î À¯Ä¡±ÇÀÚ ÀÌ»óÅ·κÎÅÍ °ø»ç´ë±Ý(51,000,000¿ø)À» ÀÌÀ¯·Î À¯Ä¡±Ç±Ç¸®½Å°í¼­°¡ Á¦ÃâµÇ¾úÀ¸³ª ±× ¼º¸³¿©ºÎ´Â ºÒ ºÐ¸íÇÔ. 5. 2026.1.8. ½Åûä±ÇÀÚÀÇ ½Â°èÀÎ ¿¥¾¾¾ÆÀÌ´ëºÎ(ÁÖ)°¡ "À¯Ä¡±Ç½Å°í ÈÄ ÃëÇϸ¦ ÇÑ ÁÖ½Äȸ»ç µðÀÚÀÎÆ÷À¯, ±èÁ¾È¯, ±è¹®Èñ´Â µ¿ÀÏÀÎ" À̸ç, "À¯Ä¡±Ç½Å°íÀÚ ÀÌ»óÅ´ ÀÚÇÊ ÀÛ¼º ¹× ³¯ÀÎµÈ ÇÕÀǼ­¸¦ Á¦Ãâ"ÇÏ¿´´Ù´Â ÃëÁöÀÇ À¯Ä¡±Ç ¹èÁ¦ Àǰ߼­¸¦ Á¦ÃâÇÔ. 6. (ÁÖ)±Ýž»ê¾÷¿£Áö´Ï¾î¸µÀÌ 2026.3.19. À¯Ä¡±Ç½Å°í(°ø»ç´ë±Ý 222,518,500¿ø)¸¦ ÇÏ¿´À¸³ª ±× ¼º¸³¿©ºÎ´Â ºÒºÐ¸íÇÔ.
¡Ø¹Ì³³°ü¸®ºñ(°ø¿ë) Àμö¿©ºÎ¸¦ ÀÔÂû Àü¿¡ È®ÀÎÇϽñ⠹ٶø´Ï´Ù

 

Áö¿ªºÐ¼®

ÁöÇÏö¸í Á÷¼±°Å¸®

Çб³¸í ÀüÈ­¹øÈ£ ÁÖ¼Ò Á÷¼±°Å¸®

¹ý¿ø

¼­¿ïµ¿ºÎÁö¹æ¹ý¿ø (058-56)¼­¿ïƯº°½Ã ¼ÛÆÄ±¸ ¹ý¿ø·Î 101 (¹®Á¤µ¿)
´ëÇ¥ : 02)2204-2114, ¾ß°£ : 02)2204-2701
°üÇÒÁö¿ª : ¼ºµ¿±¸, ±¤Áø±¸, °­µ¿±¸, ¼ÛÆÄ±¸

µî±â¼Ò ¼­¿ïµ¿ºÎÁö¹æ¹ý¿ø º»¿ø µî±â±¹ (´ëÇ¥:1544-0773, ÆÑ½º:(02)2204-2181, ¼­¿ïƯº°½Ã ¼ÛÆÄ±¸ ¹ý¿ø·Î 101 (¹®Á¤µ¿ 650))
¼¼¹«¼­ ¼ºµ¿¼¼¹«¼­ (´ëÇ¥:02-460-420, ÆÑ½º:02-468-8455, ¼­¿ïƯº°½Ã ¼ºµ¿±¸ ±¤³ª·ç·Î 297 (¼ÛÁ¤µ¿))

Àαٳ«ÂûÅë°è

±â°£ ¸Å°¢°Ç¼ö Æò±Õ°¨Á¤°¡
Æò±Õ¸Å°¢°¡
¸Å°¢°¡À²
Æò±ÕÀ¯Âû¼ö
3°³¿ù 2°Ç 1,367,244,600¿ø
1,006,055,000¿ø
73%
1.5ȸ
6°³¿ù 2°Ç 1,367,244,600¿ø
1,006,055,000¿ø
73%
1.5ȸ
12°³¿ù 7°Ç 1,238,035,280¿ø
984,868,570¿ø
77%
1.6ȸ


º» °æ¸ÅÁ¤º¸´Â ¹ý¿øÀÚ·á¿Í ÀÏÄ¡Çϵµ·Ï ÇÏ¿´À¸³ª ±Ç¸®»çÇ׺¯µ¿, ÀÔ·ÂÂø¿À µîÀÇ ¿øÀÎÀ¸·Î »ç½Ç°ú ´Ù¸¦ ¼ö ÀÖ½À´Ï´Ù. ÀÌ¿ë¾à°ü¿¡ ÀǰЏéÃ¥Á¶°ÇÀ¸·Î Á¦°øµÊÀ» ¾Ë¸®¸ç, °æ¸ÅÀÔÂû½Ã ¹Ýµå½Ã °ü·Ã °øºÎ¸¦ ÀçÈ®ÀÎÇϽñ⠹ٶø´Ï´Ù. º¸´Ù Æí¸®ÇÑ °æ¸ÅÁ¤º¸ Á¦°øÀ» À§ÇØ Áö¼ÓÀûÀ¸·Î °³¼±ÇϰڽÀ´Ï´Ù. ÀÌ¿ëÇØ Áּż­ °¨»çÇÕ´Ï´Ù.
°ü½É¹°°ÇÀ¸·Î µî·ÏÇÕ´Ï´Ù