42
´Ù¼¼´ë(ºô¶ó)
ÀÎõÁö¹æ¹ý¿ø
 °¨Á¤°¡162,000,000 ¿ø
 ÃÖÀú°¡(90%) 146,000,000 ¿ø
 º¸Áõ±Ý(10%) 14,600,000 ¿ø
 Ã»±¸¾×161,898,945 ¿ø
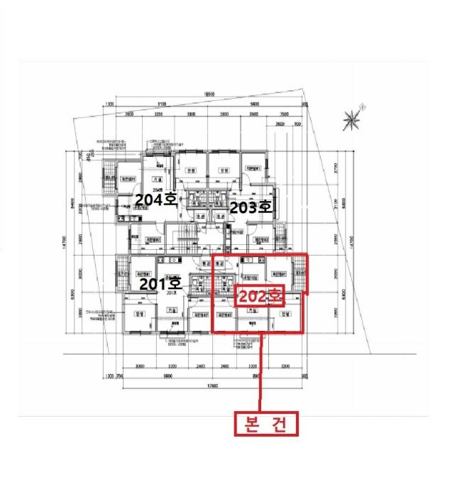
ÀÎõ±¤¿ª½Ã ¼­±¸ µµ¿äÁö·Î224¹ø±æ 12, 2Ãþ202È£ (°Ë¾Ïµ¿,Å¿µÇÏÀÌÃ÷ºô)
ÀÎõ±¤¿ª½Ã ¼­±¸ °Ë¾Ïµ¿ 670-5
»ç°Ç¹øÈ£ 2024Ÿ°æ514470
°æ¸ÅÁ¾·ùºÎµ¿»ê°­Á¦°æ¸Å
¸Å°¢´ë»óÅäÁö ¹× °Ç¹°Àϰý ¸Å°¢
¸Å°¢±âÀÏ    2026.01.12(¿ù) 10:00 ÀÔÂû 22ÀÏÀü    
ÅäÁö¸éÀû42.30§³(12.79 Æò)
°Ç¹°¸éÀû49.53§³(14.98 Æò)
乫/¼ÒÀ¯ÀÚ¹ÚOO / ¹ÚOO
ä±ÇÀÚÁÖOOOOOOO
±è¼ºÈÆ ´ëÇ¥ÀÌ»ç
°øÀÎÁß°³»ç, ºÎµ¿»ê°ø°æ¸Å»ç, ÇѾç´ëÇб³ Á¹¾÷
Àü) ÅÂÀÎÄÁ¼³ÆÃ(ÁÖ) ´ëÇ¥ÀÌ»ç
Àü) ¿©ÀÇÁֺε¿»êÁß°³¹ýÀÎ(ÁÖ) ´ëÇ¥ÀÌ»ç
Çö) ¿©ÀÇÁÖ°æ¸Å¹ýÀÎ ´ëÇ¥ÀÌ»ç
010-2371-3237
ÆäÀ̽ººÏ Æ®À§ÅÍ ±¸±Û+
īī¿À½ºÅ丮
īī¿ÀÅå sms¹®ÀÚº¸³»±â
 

±âÀϳ»¿ª

°æ°ú ³¯Â¥ Àú°¨ ÃÖÀú°¡ °á°ú
Á¢¼öÀÏ 2024-03-11 °æ¸ÅÁ¢¼ö
~1ÀÏ 
2024-03-12 °æ¸Å°³½Ã°áÁ¤
~84ÀÏ 
2024-06-03 ¹è´ç¿ä±¸Á¾±âÀÏ
~385ÀÏ 
2025-03-31 100%
162,000,000
À¯Âû
~415ÀÏ 
2025-04-30 70%
113,400,000
º¯°æ
~451ÀÏ 
2025-06-05 100%
162,000,000
À¯Âû
~485ÀÏ 
2025-07-09 70%
113,400,000
À¯Âû
~515ÀÏ 
2025-08-08 49%
79,380,000
¸Å°¢
³«Âû°¡ 115,333,330 (71%)
~525ÀÏ 
2025-08-18 ¸Å°¢ºÒÇã°¡
~672ÀÏ 
2026-01-12 90%
146,000,000
¹°°Ç¸í¼¼¼­ ÇöȲÁ¶»ç¼­ ¹®°ÇÁ¢¼ö ¼Û´Þ³»¿ª

°¨Á¤Æò°¡ÇöȲ

¸ñ·Ï ÁÖ¼Ò ±¸Á¶/¿ëµµ/´ëÁö±Ç ¸éÀû ºñ°í
´ëÁö±Ç
°Ë¾Ïµ¿ 670-5 501.4ºÐÀÇ 42.296 42.296 §³
(12.79Æò)
°Ç¹°
°Ë¾Ïµ¿ 670-5 2Ãþ202È£ ö±ÙÄÜÅ©¸®Æ®±¸Á¶ 49.53 §³
(14.98Æò)
1) À§Ä¡/Á¦1Á¾ÀϹÝÁÖ°ÅÁö¿ª/Áö±¸´ÜÀ§°èȹ±¸¿ª/³ë¼±¹ö½º Á¤·ùÀå/ö±ÙÄÜÅ©¸®Æ®±¸Á¶/°æ»çÁöºØ ´õº¸±â
°¨Á¤Æò°¡ ¿äÇ×Ç¥
1)À§Ä¡ ¹× ÁÖÀ§È¯°æ
º»°ÇÀº ÀÎõ±¤¿ª½Ã ¼­±¸ °Ë¾Ïµ¿ ¼ÒÀç, "¼­ÀÎõ°íµîÇб³" ³²¼­Ãø Àαٿ¡ À§Ä¡Çϸç, ÁÖÀ§´Â
´Üµ¶ÁÖÅà ¹× ´Ù¼¼´ëÁÖÅÃ, ±Ù¸°»ýȰ½Ã¼³ µîÀÌ ¼ÒÀçÇÏ´Â µî ÁÖÀ§È¯°æÀº º¸ÅëÀÓ.
2)±³Åë»óȲ
º»°Ç±îÁö Â÷·® ÃâÀÔÀÌ °¡´ÉÇϰí, Àαٿ¡ ³ë¼±¹ö½º Á¤·ùÀå°ú Àüö¿ª(ÀÎõ2È£¼±
"°Ë¹ÙÀ§¿ª")ÀÌ ¼ÒÀçÇÏ´Â µî ±³Åë»óȲÀº ¹«³­ÇÔ.
3)°Ç¹°ÀÇ ±¸Á¶
ö±ÙÄÜÅ©¸®Æ®±¸Á¶ (ö±Ù)ÄÜÅ©¸®Æ®(°æ»çÁöºØ) 4Ãþ °Ç¹°³» Á¦2Ãþ Á¦202È£·Î¼­,

¿Üº®: ½ºÅæÄÚÆ® ¸¶°¨ µî.
³»º®: º®Áöµµ¹è ¹× ÀϺΠŸÀϸ¶°¨ µî.
âȣ: ¼¦½Ãâȣ ¸¶°¨ µîÀÓ.
4)ÀÌ¿ë»óÅÂ
´Ù¼¼´ëÁÖÅÃÀ¸·Î ÀÌ¿ëÁßÀÓ.
5)¼³ºñ³»¿ª
±âº»ÀûÀÎ À§»ý¼³ºñ ¹× ±Þ,¹è¼ö¼³ºñ, ³­¹æ¼³ºñ µîÀÌ µÇ¾î ÀÖÀ½.
6)ÅäÁöÀÇ Çü»ó ¹× ÀÌ¿ë»óÅÂ
ÀÎÁ¢Áö ´ëºñ µî°íÆòźÇÑ »ç´Ù¸®Çü ÅäÁö·Î¼­, ´Ù¼¼´ëÁÖÅà °ÇºÎÁö·Î ÀÌ¿ëÁßÀÓ
7)ÀÎÁ¢ µµ·Î»óŵî
º»°Ç ³²µ¿ÃøÀ¸·Î ³ëÆø ¾à 8m ³»¿ÜÀÇ Æ÷Àåµµ·Î°¡ °³¼³µÇ¾î ÀÖÀ½.
8)ÅäÁöÀÌ¿ë°èȹ ¹× Á¦ÇÑ»óÅÂ
Á¦1Á¾ÀϹÝÁÖ°ÅÁö¿ª, Áö±¸´ÜÀ§°èȹ±¸¿ª(°ÇÆóÀ²(60%ÀÌÇÏ),¿ëÀû·ü(200%ÀÌÇÏ),Ãþ¼ö(4ÃþÀÌÇÏ),
°ÇÃ๰¿ëµµ( )ÀÚ¼¼ÇÑ»çÇ×Àº°ÇÃà°ú¿¡È®ÀÎ), Áö±¸´ÜÀ§°èȹ±¸¿ª(°Ë¾Ï1±¸È¹Á¤¸®), µµ·Î(Á¢ÇÕ)
°¡Ãà»çÀ°Á¦Çѱ¸¿ª(ÀÎõ±¤¿ª½Ã ¼­±¸Á¶·Ê Á¦1749È£ )<°¡ÃàºÐ´¢ÀÇ °ü¸® ¹× À̿뿡 °üÇÑ ¹ý·ü>,
°ú¹Ð¾ïÁ¦±Ç¿ª(°ú¹Ð¾ïÁ¦±Ç¿ª)<¼öµµ±ÇÁ¤ºñ°èȹ¹ý>
9)°øºÎ¿ÍÀÇ Â÷ÀÌ
¾øÀ½.
10)±âŸÂü°í»çÇ×(ÀÓ´ë°ü·Ê ¹× ±âŸ)
ÇöÀåÁ¶»ç½Ã¿¡ ÀÌÇØ°ü°èÀÎÀÇ Æó¹®ºÎÀç·Î ÀÎÇÏ¿© ÀÓ´ë°ü°è´Â ¹Ì»óÀ̸ç,
º»°ÇÀÇ ¸éÀû¹× ±¸Á¶ µîÀº ÁýÇÕ°ÇÃ๰´ëÀå ¹× °ÇÃ๰ÇöȲµµ µîÀ» ±âÁØÀ¸·Î ÇÏ¿´À¸¹Ç·Î ±Í
¾÷¹«½Ã Âü°í¹Ù¶÷.

Âü°í
»çÇ×

º»°Ç ºÎµ¿»êÀº ÁÖ¼ÒÁöÀÇ 5Ãþ ÀÌÇÏ °øµ¿ÁÖÅÃÀÓ. ´Ù¼¼´ëÁÖÅÃÀÓ.

°ÇÃ๰ÇöȲ

¼ÒÀçÁö ÀÎõ±¤¿ª½Ã ¼­±¸ °Ë¾Ïµ¿ 670-5¹øÁö
´ëÁö¸éÀû 501.4§³
(151.94Æò)
¿¬¸éÀû 645.27§³
(195.54Æò)
°ÇÃà¸éÀû 248.98§³
(75.45Æò)
¿ëÀû·ü»êÁ¤
¿¬¸éÀû
645.27§³
(195.54Æò)
°ÇÆóÀ² 49.66% ¿ëÀû·ü 128.69%
Áö»óÃþ¼ö 4Ãþ ÁöÇÏÃþ¼ö  
ÁÖ¿ëµµ °øµ¿ÁÖÅà ±¸Á¶ ö±ÙÄÜÅ©¸®Æ®±¸Á¶
Âø°øÀÏÀÚ 2010.10.08 »ç¿ë½ÂÀÎÀÏÀÚ 2011.04.22
°ÇÃ๰Ãþº°ÇöȲ [º¸±â]


±¹ÅäºÎ½Ç°Å·¡°¡ ÀÎõ±¤¿ª½Ã ¼­±¸ °Ë¾Ïµ¿

¡Ü ¸Å¸Å

¸éÀû(§³), ±Ý¾×(¸¸¿ø)

¡Ü Àü¼¼

¸éÀû(§³), ±Ý¾×(¸¸¿ø)

°è¾àÀϰǹ°¸íĪÃþ¿¬¸éÀû´ëÁö±Ý¾×°ÇÃà
24.03.30ÇѸ¶·çŸ¿î101µ¿102µ¿235.9921.0612,5002012
24.03.29½ºÄ«À̺ô(678-5)456.5931.5815,5002014
24.03.27¿¡ÄÚºô¸®ÁöBµ¿251.3937.4914,1002010
24.03.25¿ì´ãºô¸®Áö457.7643.46115,0002008
24.03.25¿¡ÄÚºô1Â÷233.0524.44510,1002011
¢Ñ ´õº¸±â

µî±âºÎµîº» ¿ä¾à(°Ç¹°)

  Á¢¼öÀÏÀÚ µî±â¸ñÀû/±Ç¸®ÀÚ ±Ç¸®±Ý¾× ±âÁØ
1 2021³â1¿ù28ÀÏ
¼ÒÀ¯±Ç
¹ÚOO
¼Ò¸ê
2 2022³â2¿ù8ÀÏ
¾Ð·ù
±¹OOOO
¼Ò¸ê±âÁØ
3 2022³â2¿ù8ÀÏ
¾Ð·ù
±¹OOOO
¼Ò¸ê
4 2023³â2¿ù9ÀÏ
ÀÓÂ÷±Ç¼³Á¤
ÀåOO
154,000,000 ¼Ò¸ê
5 2024³â3¿ù12ÀÏ
°­Á¦°æ¸Å
ÁÖOOOO
¼Ò¸ê
6 2024³â5¿ù17ÀÏ
¾Ð·ù
±¹
¼Ò¸ê
7 2024³â7¿ù10ÀÏ
¾Ð·ù
¼öOO
¼Ò¸ê

ÀÓÂ÷ÀÎÇöȲ (¹è´ç¿ä±¸Á¾±âÀÏ: 2024-06-03)

ÀÓÂ÷ÀÎ ¿ëµµ/Á¡À¯ º¸Áõ±Ý/¿ù¼¼ ´ëÇ×·Â
ÀüÀÔÀÏ/È®Á¤ÀÏ ¹è´ç¿ä±¸ ºñ°í
ÀåOO ÀüºÎ 154,000,000
O
2021.01.07.
2020.12.04.
2021.01.07.
ÁÖOOOOOOOOOOOOOOOO ÀüºÎ 154,000,000
O
2021.01.07.
2020.12.04.
2024.5.30. 2021.01.07.~2023.01.06.
ºñ°í
(¸Å°¢¹°°Ç
¸í¼¼¼­)
ÁÖÅõµ½Ãº¸Áõ°ø»ç(ÀÓÂ÷ÀÎ:Àå´Ù¿¬):ÀÓÂ÷ÀÎ Àå´Ù¿¬ÀÇ ÀÓÂ÷º¸Áõ±Ý¹Ýȯä±Ç ¾ç¼öÀÎÀ¸·Î¼­, º¸Áõ±Ý Àü¾×À» ¹è´ç¹ÞÁö ¸øÇÏ´õ¶óµµ ÀÜÁ¸ ÀÓÂ÷º¸Áõ±Ý ¹Ýȯä±ÇÀ» Æ÷±âÇϰí ÁÖÅÃÀÓÂ÷±Çµî±â ¸»¼Ò¿¡ µ¿ÀÇÇÑ´Ù´Â ÃëÁöÀÇ È®¾à¼­¸¦ Á¦ÃâÇÔ.

¿©ÀÇÁÖ°æ¸Å Á¶¾ð ÇÑ ¸¶µð

¸Å°¢¹°°Ç¸í¼¼ ºñ°í³­¿¡ ±âÀçµÈ ³»¿ëÀÔ´Ï´Ù.
ÁÖÅõµ½Ãº¸Áõ°ø»ç(ÀÓÂ÷ÀÎ:Àå´Ù¿¬):ÀÓÂ÷ÀÎ Àå´Ù¿¬ÀÇ ÀÓÂ÷º¸Áõ±Ý¹Ýȯä±Ç ¾ç¼öÀÎÀ¸·Î¼­, º¸Áõ±Ý Àü¾×À» ¹è´ç¹ÞÁö ¸øÇÏ´õ¶óµµ ÀÜÁ¸ ÀÓÂ÷º¸Áõ±Ý ¹Ýȯä±ÇÀ» Æ÷±âÇϰí ÁÖÅÃÀÓÂ÷±Çµî±â ¸»¼Ò¿¡ µ¿ÀÇÇÑ´Ù´Â ÃëÁöÀÇ È®¾à¼­¸¦ Á¦ÃâÇÔ.
³«Âû ÈÄ¿¡ µî±âºÎ»ó ¼Ò¸êµÇÁö ¾Ê´Â ±Ç¸®ÀÔ´Ï´Ù.
À»±¸ ¼øÀ§¹øÈ£ 5¹ø ÁÖÅÃÀÓÂ÷±Çµî±â(´Ù¸¸ ÁÖÅõµ½Ãº¸Áõ°ø»çÀÇ ¸»¼Òµ¿ÀÇ È®¾à¼­°¡ Á¦ÃâµÊ)
¼±¼øÀ§ ÀÓÂ÷±Çµî±â°¡ µÇ¾î ÀÖ½À´Ï´Ù.
°¨Á¤ ½ÃÁ¡ÀÌ ¿À·¡µÇ¾î °¡°Ýº¯µ¿ÀÌ ÀÖÀ» ¼ö ÀÖ½À´Ï´Ù.
ÀÌ ¹°°ÇÀº 2024³â 3¿ù 12ÀÏ¿¡ °æ¸Å°¡ °³½ÃµÇ¾ú´Âµ¥ Áö±Ý ½ÃÁ¡À¸·Î ¾à 649ÀÏÀÌ ÀÌ °æ°úµÇ¾ú½À´Ï´Ù. °¨Á¤°¡°ÝÀº 649ÀÏ Àü ½ÃÁ¡¿¡¼­ Æò°¡ÇÑ °¡°ÝÀ̹ǷΠ±× »çÀÌ °¡°Ýº¯µ¿ÀÌ ÀÖÀ» ¼ö ÀÖ½À´Ï´Ù. ƯÈ÷ °¡°Ý º¯µ¿ÀÌ ½ÉÇÑ ¾ÆÆÄÆ®´Â À¯ÀÇÇÏ¼Å¾ß ÇÕ´Ï´Ù. °¨Á¤°¡°ÝÀ» ³Ê¹« ¹ÏÁö ¸¶½Ã°í ÇöÀç ½Ç¸Å¹° °¡°Ý°ú ½Ç°Å·¡°¡¸¦ È®ÀÎÇϽñ⠹ٶø´Ï´Ù.
°£È¤ °¨Á¤°¡°Ýº¸´Ù ³ô°Ô ³«ÂûµÇ´Â °æ¿ì°¡ Àִµ¥ ´ëºÎºÐ ÀÌ·± ÀÌÀ¯ÀÔ´Ï´Ù.
¡Ø ¹°°Ç Ű¿öµå : ÁÖ°ÅÁö¿ª/Á¦1Á¾ÀϹÝÁÖ°ÅÁö¿ª/Áö±¸´ÜÀ§°èȹ±¸¿ª/³ë¼±¹ö½º Á¤·ùÀå/ö±ÙÄÜÅ©¸®Æ®±¸Á¶/°æ»çÁöºØ
Àüü ÄÁ¼³ÆÃÀÌ ºÎ´ã½º·¯¿ì½Å°¡¿ä? ±Ç¸®ºÐ¼®¸¸ ÀÇ·ÚÇϼŵµ ±¦Âú½À´Ï´Ù!
½Ç¼Ó ÀÖ°Ô Çٽɸ¸ ´ãÀº ±Ç¸®ºÐ¼® ¼­ºñ½º!! (±Ç¸®ºÐ¼® + ½Ã¼¼Á¶»ç + ³«Âû°¡ »êÁ¤ + ÀÔÂûÇ¥ ÀÛ¼º¹æ¹ý ±îÁö)
ÃÖ´ë Àüü ÄÁ¼³ÆÃ ºñ¿ëÀÇ 10% ¼öÁØ !!

ÁÖÀÇ»çÇ× (ÃÖ¼±¼øÀ§ ¼³Á¤ÀÏ: 2022. 02. 08. ¾Ð·ù ¼³Á¤)

¸Å°¢À¸·Î ¼Ò¸êµÇÁö ¾Ê´Â µî±âºÎ±Ç¸®: À»±¸ ¼øÀ§¹øÈ£ 5¹ø ÁÖÅÃÀÓÂ÷±Çµî±â(´Ù¸¸ ÁÖÅõµ½Ãº¸Áõ°ø»çÀÇ ¸»¼Òµ¿ÀÇ È®¾à¼­°¡ Á¦ÃâµÊ)
¸Å°¢À¸·Î ¼³Á¤µÈ °ÍÀ¸·Î º¸´Â Áö»ó±Ç:
¡Ø¹Ì³³°ü¸®ºñ(°ø¿ë) Àμö¿©ºÎ¸¦ ÀÔÂû Àü¿¡ È®ÀÎÇϽñ⠹ٶø´Ï´Ù

 

Áö¿ªºÐ¼®

ÁöÇÏö¸í Á÷¼±°Å¸®

Çб³¸í ÀüÈ­¹øÈ£ ÁÖ¼Ò Á÷¼±°Å¸®

¹ý¿ø

ÀÎõÁö¹æ¹ý¿ø (222-20)ÀÎõ±¤¿ª½Ã ¹ÌÃßȦ±¸ ¼Ò¼º·Î 163¹ø±æ 17(ÇÐÀ͵¿)
´ëÇ¥ : 032)860-1113~4
°üÇÒÁö¿ª : Áß±¸, µ¿±¸, ³²±¸, ¿¬¼ö±¸, ³²µ¿±¸, ºÎÆò±¸, °è¾ç±¸, ¼­±¸, ¿ËÁø±º, °­È­±º

µî±â¼Ò ÀÎõÁö¹æ¹ý¿ø º»¿ø µî±â±¹ (´ëÇ¥:1544-0773, ÆÑ½º:(032)620-9099, ÀÎõ±¤¿ª½Ã ¹ÌÃßȦ±¸ °æ¿ø´ë·Î 881(Á־ȵ¿ 983))
¼¼¹«¼­ ¼­ÀÎõ¼¼¹«¼­ (´ëÇ¥:032-560-52, ÆÑ½º:032-561-5777, ÀÎõ±¤¿ª½Ã ¼­±¸ ¼­°ù·Î369¹ø±æ 17 (¿¬Èñµ¿))

Àαٳ«ÂûÅë°è

±â°£ ¸Å°¢°Ç¼ö Æò±Õ°¨Á¤°¡
Æò±Õ¸Å°¢°¡
¸Å°¢°¡À²
Æò±ÕÀ¯Âû¼ö
3°³¿ù 100°Ç 154,192,400¿ø
104,104,119¿ø
67%
1.8ȸ
6°³¿ù 191°Ç 157,442,903¿ø
105,418,081¿ø
66%
1.9ȸ
12°³¿ù 337°Ç 157,628,470¿ø
107,435,217¿ø
67%
1.9ȸ


º» °æ¸ÅÁ¤º¸´Â ¹ý¿øÀÚ·á¿Í ÀÏÄ¡Çϵµ·Ï ÇÏ¿´À¸³ª ±Ç¸®»çÇ׺¯µ¿, ÀÔ·ÂÂø¿À µîÀÇ ¿øÀÎÀ¸·Î »ç½Ç°ú ´Ù¸¦ ¼ö ÀÖ½À´Ï´Ù. ÀÌ¿ë¾à°ü¿¡ ÀǰЏéÃ¥Á¶°ÇÀ¸·Î Á¦°øµÊÀ» ¾Ë¸®¸ç, °æ¸ÅÀÔÂû½Ã ¹Ýµå½Ã °ü·Ã °øºÎ¸¦ ÀçÈ®ÀÎÇϽñ⠹ٶø´Ï´Ù. º¸´Ù Æí¸®ÇÑ °æ¸ÅÁ¤º¸ Á¦°øÀ» À§ÇØ Áö¼ÓÀûÀ¸·Î °³¼±ÇϰڽÀ´Ï´Ù. ÀÌ¿ëÇØ Áּż­ °¨»çÇÕ´Ï´Ù.
°ü½É¹°°ÇÀ¸·Î µî·ÏÇÕ´Ï´Ù