43
´ëÁö
±¤ÁÖÁö¹æ¹ý¿ø ÀåÈïÁö¿ø
 °¨Á¤°¡562,113,000 ¿ø
 ÃÖÀú°¡(64%) 359,752,000 ¿ø
 º¸Áõ±Ý(10%) 35,975,200 ¿ø
 Ã»±¸¾×11,106,557 ¿ø
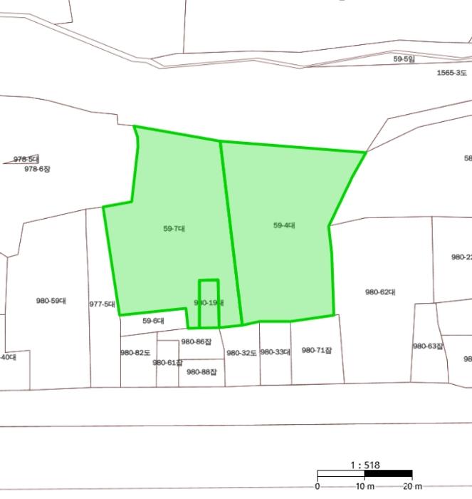
Àü¶ó³²µµ °­Áø±º ¸¶·®¸é ¸¶·®¸® 59-4
»ç°Ç¹øÈ£ 2024Ÿ°æ5886
Áߺ¹»ç°ÇÁߺ¹ 2025Ÿ°æ5224,
°æ¸ÅÁ¾·ùºÎµ¿»ê°­Á¦°æ¸Å
¸Å°¢´ë»óÅäÁö¸Å°¢
¸Å°¢±âÀÏ    2026.01.12(¿ù) 10:00 ÀÔÂû 35ÀÏÀü    
ÅäÁö¸éÀû1,719.00§³(520.00 Æò)
°Ç¹°¸éÀû
乫/¼ÒÀ¯ÀÚÁ¶OO¿Ü 1¸í / ÁÖOOO OOOOOO
ä±ÇÀÚ¸¶OO
±è¼ºÈÆ ´ëÇ¥ÀÌ»ç
°øÀÎÁß°³»ç, ºÎµ¿»ê°ø°æ¸Å»ç, ÇѾç´ëÇб³ Á¹¾÷
Àü) ÅÂÀÎÄÁ¼³ÆÃ(ÁÖ) ´ëÇ¥ÀÌ»ç
Àü) ¿©ÀÇÁֺε¿»êÁß°³¹ýÀÎ(ÁÖ) ´ëÇ¥ÀÌ»ç
Çö) ¿©ÀÇÁÖ°æ¸Å¹ýÀÎ ´ëÇ¥ÀÌ»ç
010-2371-3237
ÆäÀ̽ººÏ Æ®À§ÅÍ ±¸±Û+
īī¿À½ºÅ丮
īī¿ÀÅå sms¹®ÀÚº¸³»±â
 

±âÀϳ»¿ª

°æ°ú ³¯Â¥ Àú°¨ ÃÖÀú°¡ °á°ú
Á¢¼öÀÏ 2024-06-20 °æ¸ÅÁ¢¼ö
~5ÀÏ 
2024-06-25 °æ¸Å°³½Ã°áÁ¤
~91ÀÏ 
2024-09-19 ¹è´ç¿ä±¸Á¾±âÀÏ
~270ÀÏ 
2025-03-17 100%
562,113,000
º¯°æ
~487ÀÏ 
2025-10-20 100%
562,113,000
À¯Âû
~529ÀÏ 
2025-12-01 80%
449,690,000
À¯Âû
~571ÀÏ 
2026-01-12 64%
359,752,000
ÁøÇà
¹°°Ç¸í¼¼¼­ ÇöȲÁ¶»ç¼­ ¹®°ÇÁ¢¼ö ¼Û´Þ³»¿ª

°¨Á¤Æò°¡ÇöȲ

¸ñ·Ï ÁÖ¼Ò ±¸Á¶/¿ëµµ/´ëÁö±Ç ¸éÀû ºñ°í
ÅäÁö
¸¶·®¸® 59-4 ´ëÁö 825 §³
(249.56Æò)
¸¶·®¸® 59-7 ´ëÁö 854 §³
(258.34Æò)
¸¶·®¸® 980-19 ´ëÁö 40 §³
(12.10Æò)
1) À§Ä¡/µµ½ÃÁö¿ª/Áذø¾÷Áö¿ª ´õº¸±â
°¨Á¤Æò°¡ ¿äÇ×Ç¥
1)À§Ä¡ ¹× ÁÖÀ§È¯°æ
º»°ÇÀº Àü¶ó³²µµ °­Áø±º ¸¶·®¸é ¸¶·®¸® ¼ÒÀç "¸¶·®°æÂû¼­" Àαٿ¡ À§Ä¡Çϸç, ÁÖº¯Àº Ç×±¸, »ó°¡ ¹× ÁÖÅà µîÀÌ È¥ÀçÇÏ´Â Ç×±¸ÁÖº¯ ÁÖÅà ¹× »ó°¡È¥¿ëÁö´ë·Î¼­, ÁÖÀ§È¯°æÀº º¸Åë½Ã µË´Ï´Ù.
2)±³Åë»óȲ
º»°Ç±îÁö Â÷·® ÁøÀÔÀÌ °¡´ÉÇϸç, Á¦¹Ý ±³Åë»óȲÀº º¸Åë½Ã µË´Ï´Ù.
3)ÇüÅ ¹× ÀÌ¿ë»óÅÂ
(1)-(3) 3ÇÊ ÀÏ´ÜÁöÀÇ ºÎÁ¤Çü ÆòÁö·Î¼­, ÇöȲ ÁÖ»ó³ªÁöÀÔ´Ï´Ù.
4)ÀÎÁ¢ µµ·Î»óÅÂ
³²ÃøÀ¸·Î Æø 8¹ÌÅÍ ³»¿ÜÀÇ ÁøÀԷΰ¡ °³¼³µÇ¾î ÀÖÀ¸¸ç, ºÏÃøÀ¸·Î ¼Ò·Î¿¡ Á¢ÇÕ´Ï´Ù.
5)ÅäÁöÀÌ¿ë°èȹ ¹× Á¦ÇÑ»óÅÂ
(1)-(3) µµ½ÃÁö¿ª, Áذø¾÷Áö¿ª, °¡Ãà»çÀ°Á¦Çѱ¸¿ª(Àý´ë_°¡Ãà»çÀ°Á¦Çѱ¸¿ª Ãë¼ö½Ã¼³,µµ·Î,ÇÏõ,Àú¼öÁö µîÀÇ Á÷¼±°Å¸®´Â °ü·ÃºÎ¼­ ÇùÀÇ)<°¡ÃàºÐ´¢ÀÇ °ü¸® ¹× À̿뿡 °üÇÑ ¹ý·ü>, ¿¬¾ÈÀ°¿ª(°³¹ßÁ¶Á¤¿¬¾È)<¿¬¾È°ü¸®¹ý>.

6)Á¦½Ã¸ñ·Ï ¿ÜÀÇ ¹°°Ç
--
7)°øºÎ¿ÍÀÇ Â÷ÀÌ
--
8)±âŸÂü°í»çÇ×(ÀÓ´ë°ü·Ê ¹× ±âŸ)
ÀÓ´ë°ü°è´Â ¹Ì»óÀÔ´Ï´Ù.
Âü°í
»çÇ×
- Àϰý¸Å°¢, 3ÇÊ ÀÏ´ÜÁöÀÇ ÁÖ»ó³ªÁö ÀÓ.
-º»°Ç ºÎµ¿


±¹ÅäºÎ½Ç°Å·¡°¡ Àü¶ó³²µµ °­Áø±º ¸¶·®¸é ¸¶·®¸®

°è¾àÀÏÁö¸ñ¿ëµµÁö¿ªµµ·Î°è¾à¸éÀû±Ý¾×±¸ºÐ
25.10.30ÀÓ¾ßÀϹݻó¾÷-21600ÁöºÐ
25.09.09´äÀÚ¿¬È¯°æº¸Àü8m¹Ì¸¸19313,862
25.07.23ÀüÀÚ¿¬³ìÁö-364500
25.06.30ÀüÁ¦2Á¾ÀϹÝÁÖ°Å8m¹Ì¸¸11872,872
25.05.22ÀâÁ¾ÁöÀÚ¿¬È¯°æº¸Àü12m¹Ì¸¸6003,420
¢Ñ ´õº¸±â

µî±âºÎµîº» ¿ä¾à(ÅäÁö)

  Á¢¼öÀÏÀÚ µî±â¸ñÀû/±Ç¸®ÀÚ ±Ç¸®±Ý¾× ±âÁØ
1 2018³â9¿ù4ÀÏ
¼ÒÀ¯±Ç
(OOOO
¼Ò¸ê
2 2018³â8¿ù31ÀÏ
±ÙÀú´ç±Ç
°èOOOO
643,500,000 ¼Ò¸ê±âÁØ
3 2018³â8¿ù31ÀÏ
Áö»ó±Ç
°èOOOO
¼Ò¸ê
4 2024³â6¿ù25ÀÏ
°­Á¦°æ¸Å
¸¶OO
¼Ò¸ê

ÀÓÂ÷ÀÎÇöȲ (¹è´ç¿ä±¸Á¾±âÀÏ: 2024-09-19)


Á¶»çµÈ ÀÓÂ÷³»¿ªÀÌ ¾ø½À´Ï´Ù


¿©ÀÇÁÖ°æ¸Å Á¶¾ð ÇÑ ¸¶µð

³«Âû ÈÄ¿¡ µî±âºÎ»ó ¼Ò¸êµÇÁö ¾Ê´Â ±Ç¸®´Â ¾ø½À´Ï´Ù.
´ë·«ÀûÀÎ °ËÅäÀǰßÀ̹ǷΠÀÔÂûÀü¿¡ Àü¹®°¡ÀÇ Á¶¾ðÀ» Âü°íÇØ º¸½Ã±æ ±ÇÇØµå¸³´Ï´Ù.
Áߺ¹°æ¸Å »ç°ÇÀÔ´Ï´Ù.
°æ¸Å ½ÅûÀÚÀÇ Ã»±¸±Ý¾×, Áï ±× °æ¸Å½Åû ä±ÇÀÚ°¡ ¹è´ç ¹Þ¾Æ¾ß ÇÒ ±Ý¾×(11,106,557¿ø)ÀÌ °¨Á¤°¡°Ý ´ëºñ ÀûÀº ±Ý¾×ÀÎ °æ¿ì¿¡´Â, ÀϹÝÀûÀ¸·Î °æ¸Å°¡ ÃëÇϵǰųª Ãë¼Ò µÉ °¡´É¼ºÀÌ ÀÖ½À´Ï´Ù. ±×·±µ¥ ÀÌ °æ¸Å´Â ´Ù¸¥ °æ¸Å½Åû(Áߺ¹ 2025Ÿ°æ5224,)ÀÌ µé¾î ¿Í¼­ °æ¸Å°¡ Áߺ¹µÇ¾î ÁøÇàµÇ¹Ç·Î ÃëÇÏ, Ãë¼Ò¾øÀÌ ÁøÇàµÉ ¿©Áö°¡ ¸¹½À´Ï´Ù.
°¨Á¤ ½ÃÁ¡ÀÌ ¿À·¡µÇ¾î °¡°Ýº¯µ¿ÀÌ ÀÖÀ» ¼ö ÀÖ½À´Ï´Ù.
ÀÌ ¹°°ÇÀº 2024³â 6¿ù 25ÀÏ¿¡ °æ¸Å°¡ °³½ÃµÇ¾ú´Âµ¥ Áö±Ý ½ÃÁ¡À¸·Î ¾à 531ÀÏÀÌ ÀÌ °æ°úµÇ¾ú½À´Ï´Ù. °¨Á¤°¡°ÝÀº 531ÀÏ Àü ½ÃÁ¡¿¡¼­ Æò°¡ÇÑ °¡°ÝÀ̹ǷΠ±× »çÀÌ °¡°Ýº¯µ¿ÀÌ ÀÖÀ» ¼ö ÀÖ½À´Ï´Ù. ƯÈ÷ °¡°Ý º¯µ¿ÀÌ ½ÉÇÑ ¾ÆÆÄÆ®´Â À¯ÀÇÇÏ¼Å¾ß ÇÕ´Ï´Ù. °¨Á¤°¡°ÝÀ» ³Ê¹« ¹ÏÁö ¸¶½Ã°í ÇöÀç ½Ç¸Å¹° °¡°Ý°ú ½Ç°Å·¡°¡¸¦ È®ÀÎÇϽñ⠹ٶø´Ï´Ù.
°£È¤ °¨Á¤°¡°Ýº¸´Ù ³ô°Ô ³«ÂûµÇ´Â °æ¿ì°¡ Àִµ¥ ´ëºÎºÐ ÀÌ·± ÀÌÀ¯ÀÔ´Ï´Ù.
¡Ø ¹°°Ç Ű¿öµå : µµ½ÃÁö¿ª/°ø¾÷Áö¿ª/Áذø¾÷Áö¿ª
Àüü ÄÁ¼³ÆÃÀÌ ºÎ´ã½º·¯¿ì½Å°¡¿ä? ±Ç¸®ºÐ¼®¸¸ ÀÇ·ÚÇϼŵµ ±¦Âú½À´Ï´Ù!
½Ç¼Ó ÀÖ°Ô Çٽɸ¸ ´ãÀº ±Ç¸®ºÐ¼® ¼­ºñ½º!! (±Ç¸®ºÐ¼® + ½Ã¼¼Á¶»ç + ³«Âû°¡ »êÁ¤ + ÀÔÂûÇ¥ ÀÛ¼º¹æ¹ý ±îÁö)
ÃÖ´ë Àüü ÄÁ¼³ÆÃ ºñ¿ëÀÇ 10% ¼öÁØ !!

ÁÖÀÇ»çÇ× (ÃÖ¼±¼øÀ§ ¼³Á¤ÀÏ: ¸ñ·Ï1,2 : 2018.08.31. ±ÙÀú´ç±Ç ¼³Á¤ ¸ñ·Ï3 : 2020.09.11. ±ÙÀú´ç±Ç)

¸Å°¢À¸·Î ¼Ò¸êµÇÁö ¾Ê´Â µî±âºÎ±Ç¸®:
¸Å°¢À¸·Î ¼³Á¤µÈ °ÍÀ¸·Î º¸´Â Áö»ó±Ç:
2025.03.05 ä±ÇÀÚ ¸¶OO ±âÀϺ¯°æ½Åû¼­ Á¦Ãâ
- Àϰý¸Å°¢, 3ÇÊ ÀÏ´ÜÁöÀÇ ÁÖ»ó³ªÁöÀÓ.
¡Ø¹Ì³³°ü¸®ºñ(°ø¿ë) Àμö¿©ºÎ¸¦ ÀÔÂû Àü¿¡ È®ÀÎÇϽñ⠹ٶø´Ï´Ù

 

Áö¿ªºÐ¼®

ÁöÇÏö¸í Á÷¼±°Å¸®

Çб³¸í ÀüÈ­¹øÈ£ ÁÖ¼Ò Á÷¼±°Å¸®

¹ý¿ø

±¤ÁÖÁö¹æ¹ý¿ø ÀåÈïÁö¿ø (593-30)Àü¶ó³²µµ ÀåÈﱺ ÀåÈïÀ¾ À¾¼º·Î 121-1 (³²µ¿¸®)
´ëÇ¥ : 061)860-1500
°üÇÒÁö¿ª : ÀåÈﱺ, °­Áø±º

µî±â¼Ò ±¤ÁÖÁö¹æ¹ý¿ø º»¿ø °­Áøµî±â¼Ò (´ëÇ¥:1544-0773, ÆÑ½º:(061)432-2564, Àü³² °­Áø±º °­ÁøÀ¾ Áß¾Ó·Î 212 (µ¿¼º¸® 19-4))
¼¼¹«¼­ ÇØ³²¼¼¹«¼­ (´ëÇ¥:061-530-62, ÆÑ½º:061-536-6074, Àü¶ó³²µµ ÇØ³²±º ÇØ³²À¾ Áß¾Ó1·Î 18)

Àαٳ«ÂûÅë°è

±â°£ ¸Å°¢°Ç¼ö Æò±Õ°¨Á¤°¡
Æò±Õ¸Å°¢°¡
¸Å°¢°¡À²
Æò±ÕÀ¯Âû¼ö
3°³¿ù 0°Ç 0¿ø
0¿ø
0%
0ȸ
6°³¿ù 0°Ç 0¿ø
0¿ø
0%
0ȸ
12°³¿ù 1°Ç 1,012,000¿ø
2,570,000¿ø
254%
0ȸ


º» °æ¸ÅÁ¤º¸´Â ¹ý¿øÀÚ·á¿Í ÀÏÄ¡Çϵµ·Ï ÇÏ¿´À¸³ª ±Ç¸®»çÇ׺¯µ¿, ÀÔ·ÂÂø¿À µîÀÇ ¿øÀÎÀ¸·Î »ç½Ç°ú ´Ù¸¦ ¼ö ÀÖ½À´Ï´Ù. ÀÌ¿ë¾à°ü¿¡ ÀǰЏéÃ¥Á¶°ÇÀ¸·Î Á¦°øµÊÀ» ¾Ë¸®¸ç, °æ¸ÅÀÔÂû½Ã ¹Ýµå½Ã °ü·Ã °øºÎ¸¦ ÀçÈ®ÀÎÇϽñ⠹ٶø´Ï´Ù. º¸´Ù Æí¸®ÇÑ °æ¸ÅÁ¤º¸ Á¦°øÀ» À§ÇØ Áö¼ÓÀûÀ¸·Î °³¼±ÇϰڽÀ´Ï´Ù. ÀÌ¿ëÇØ Áּż­ °¨»çÇÕ´Ï´Ù.
°ü½É¹°°ÇÀ¸·Î µî·ÏÇÕ´Ï´Ù