84
´Ù¼¼´ë(ºô¶ó)
¼­¿ïÁß¾ÓÁö¹æ¹ý¿ø
 °¨Á¤°¡611,000,000 ¿ø
 ÃÖÀú°¡(41%) 250,266,000 ¿ø
 º¸Áõ±Ý(20%) 50,053,200 ¿ø
 Ã»±¸¾×430,000,000 ¿ø
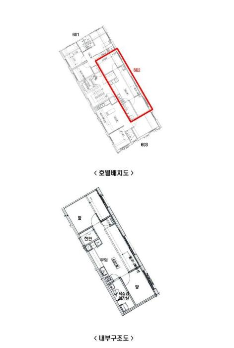
¼­¿ïƯº°½Ã ¼­Ãʱ¸ ¹ÝÆ÷´ë·Î26±æ 35, 1µ¿ 6Ãþ602È£ (¼­Ãʵ¿,ÁÖ°ÇÃ๰)
¼­¿ïƯº°½Ã ¼­Ãʱ¸ ¼­Ãʵ¿ 1557-8
»ç°Ç¹øÈ£ 2024Ÿ°æ1775
°æ¸ÅÁ¾·ùºÎµ¿»ê°­Á¦°æ¸Å
¸Å°¢´ë»óÅäÁö ¹× °Ç¹°Àϰý¸Å°¢
¸Å°¢±âÀÏ    2026.01.14(¼ö) 10:00 ÀÔÂû 34ÀÏÀü    
ÅäÁö¸éÀû18.37§³(5.56 Æò)
°Ç¹°¸éÀû39.52§³(11.95 Æò)
乫/¼ÒÀ¯ÀÚÁÖOOO OO / ÁÖOOO OO
ä±ÇÀÚÁÖOO
±è¼ºÈÆ ´ëÇ¥ÀÌ»ç
°øÀÎÁß°³»ç, ºÎµ¿»ê°ø°æ¸Å»ç, ÇѾç´ëÇб³ Á¹¾÷
Àü) ÅÂÀÎÄÁ¼³ÆÃ(ÁÖ) ´ëÇ¥ÀÌ»ç
Àü) ¿©ÀÇÁֺε¿»êÁß°³¹ýÀÎ(ÁÖ) ´ëÇ¥ÀÌ»ç
Çö) ¿©ÀÇÁÖ°æ¸Å¹ýÀÎ ´ëÇ¥ÀÌ»ç
010-2371-3237
ÆäÀ̽ººÏ Æ®À§ÅÍ ±¸±Û+
īī¿À½ºÅ丮
īī¿ÀÅå sms¹®ÀÚº¸³»±â
 

±âÀϳ»¿ª

°æ°ú ³¯Â¥ Àú°¨ ÃÖÀú°¡ °á°ú
Á¢¼öÀÏ 2024-03-21 °æ¸ÅÁ¢¼ö
~1ÀÏ 
2024-03-22 °æ¸Å°³½Ã°áÁ¤
~91ÀÏ 
2024-06-20 ¹è´ç¿ä±¸Á¾±âÀÏ
~300ÀÏ 
2025-01-15 100%
611,000,000
À¯Âû
~335ÀÏ 
2025-02-19 80%
488,800,000
À¯Âû
~370ÀÏ 
2025-03-26 64%
391,040,000
¸Å°¢
³«Âû°¡ 440,000,000 (72%)
~482ÀÏ 
2025-07-16 º¯°æ
~559ÀÏ 
2025-10-01 ¹Ì³³
~587ÀÏ 
2025-10-29 64%
391,040,000
À¯Âû
~622ÀÏ 
2025-12-03 51%
312,832,000
À¯Âû
~664ÀÏ 
2026-01-14 41%
250,266,000
¹°°Ç¸í¼¼¼­ ÇöȲÁ¶»ç¼­ ¹®°ÇÁ¢¼ö ¼Û´Þ³»¿ª

°¨Á¤Æò°¡ÇöȲ

¸ñ·Ï ÁÖ¼Ò ±¸Á¶/¿ëµµ/´ëÁö±Ç ¸éÀû ºñ°í
´ëÁö±Ç
¹ÝÆ÷´ë·Î26±æ 35 431.3 ºÐÀÇ 18.37 18.37 §³
(5.56Æò)
°Ç¹°
¹ÝÆ÷´ë·Î26±æ 35 6Ãþ602È£ (¼­Ãʵ¿,ÁÖ°ÇÃ๰) ö±ÙÄÜÅ©¸®Æ®±¸Á¶ 39.52 §³
(11.95Æò)
¼­¿ïƯº°½Ã ¼­Ãʱ¸ ¼­Ãʵ¿ ¼ÒÀç ÁöÇÏö2,3È£¼± "±³´ë¿ª" ³²¼­Ãø Àαٿ¡ À§Ä¡/µµ½ÃÁö¿ª/Á¦2Á¾ÀϹÝÁÖ°ÅÁö¿ª/¹ö½ºÁ¤·ùÀå/Â÷·®Á¢±ÙÀÌ °¡´É/ÁÖÂ÷Àå/ÁöÇÏö/ö±ÙÄÜÅ©¸®Æ®±¸Á¶ ´õº¸±â
°¨Á¤Æò°¡ ¿äÇ×Ç¥
1) À§Ä¡ ¹× ÁÖÀ§È¯°æ=º»°ÇÀº ¼­¿ïƯº°½Ã ¼­Ãʱ¸ ¼­Ãʵ¿ ¼ÒÀç ÁöÇÏö2,3È£¼± "±³´ë¿ª" ³²¼­Ãø Àαٿ¡ À§Ä¡Çϸç ÁÖÀ§´Â ´Ù¼¼´ëÁÖÅÃ, ±Ù¸°»ýȰ½Ã¼³ µîÀÌ È¥ÀçÇϸç ÁÖÀ§È¯°æÀº º¸Åë½ÃµÊ.

2) ±³Åë»óȲ=º»°Ç±îÁö Â÷·®Á¢±ÙÀÌ °¡´ÉÇϰí Àαٿ¡ ¹ö½ºÁ¤·ùÀå ¹× ÁöÇÏö2,3È£¼± ±³´ë¿ªÀÌ ¼ÒÀçÇÏ´Â µî Àü¹ÝÀû ±³Åë»óȲÀº ¾çÈ£ÇÔ.

3) °Ç¹°ÀÇ ±¸Á¶=º»°ÇÀº ö±ÙÄÜÅ©¸®Æ®±¸Á¶ ö±ÙÄÜÅ©¸®Æ®ÁöºØ 6Ãþ °ÇÁß 6Ãþ 602È£·Î¼­
¿Üº®:¼®ÀçºÙÀÓ µî ¸¶°¨,
³»º®:º®Áö ¹× ÀϺΠŸÀÏ ¸¶°¨,
âȣ:»þ½Ãâȣ µîÀÓ.

4) ÀÌ¿ë»óÅÂ=º»°ÇÀº ´Ù¼¼´ëÁÖÅà 1°³È£·Î ÀÌ¿ëÁßÀÓ.

5) ¼³ºñ³»¿ª=À§»ý¼³ºñ ¹× ±Þ¹è¼ö¼³ºñ, ¿¤¸®º£ÀÌÅͼ³ºñ, ³­¹æ¼³ºñ, ÁÖÂ÷Àå¼³ºñ µîÀÌ µÇ¾îÀÖÀ½.




6) ÅäÁöÀÇ Çü»ó ¹× ÀÌ¿ë»óÅÂ=º»°ÇÀº ÀÎÁ¢Áö ´ëºñ µî°íÆòźÇÑ ¼¼ÀåÇüÀÇ ÅäÁö·Î °øµ¿ÁÖÅà µîÀÇ °ÇºÎÁö·Î ÀÌ¿ëÁßÀÓ.

7) ÀÎÁ¢ µµ·Î»óŵî=º»°Ç ³²µ¿ÃøÀ¸·Î ³ëÆø ¾à6¹ÌÅÍ µµ·Î¿¡ Á¢ÇÔ.

8) ÅäÁöÀÌ¿ë°èȹ ¹× Á¦ÇÑ»óÅÂ=µµ½ÃÁö¿ª, Á¦2Á¾ÀϹÝÁÖ°ÅÁö¿ª, ´ë°ø¹æ¾îÇùÁ¶±¸¿ª(À§Å¹°íµµ:77-257m), °ú¹Ð¾ïÁ¦±Ç¿ªÀÓ.



9) °øºÎ¿ÍÀÇ Â÷ÀÌ=--.

10) ±âŸÂü°í»çÇ×(ÀÓ´ë°ü·Ê ¹× ±âŸ)=1.ÀÓ´ë°ü°è¹Ì»óÀÓ.



Âü°í
»çÇ×
Ưº°¸Å°¢Á¶°Ç ¸Å¼ö½Åûº¸Áõ±Ý ÃÖÀú¸Å°¢°¡°ÝÀÇ 20%

°ÇÃ๰ÇöȲ

¼ÒÀçÁö ¼­¿ïƯº°½Ã ¼­Ãʱ¸ ¼­Ãʵ¿ 1557-8¹øÁö
´ëÁö¸éÀû 431.3§³
(130.7Æò)
¿¬¸éÀû 1314.47§³
(398.32Æò)
°ÇÃà¸éÀû 257.78§³
(78.12Æò)
¿ëÀû·ü»êÁ¤
¿¬¸éÀû
861.44§³
(261.04Æò)
°ÇÆóÀ² 59.77% ¿ëÀû·ü 199.73%
Áö»óÃþ¼ö 6Ãþ ÁöÇÏÃþ¼ö 2Ãþ
ÁÖ¿ëµµ °øµ¿ÁÖÅà ±¸Á¶ ö±ÙÄÜÅ©¸®Æ®±¸Á¶
Âø°øÀÏÀÚ 2018.01.13 »ç¿ë½ÂÀÎÀÏÀÚ 2019.04.08


±¹ÅäºÎ½Ç°Å·¡°¡ ¼­¿ïƯº°½Ã ¼­Ãʱ¸ ¼­Ãʵ¿

¡Ü ¸Å¸Å

¸éÀû(§³), ±Ý¾×(¸¸¿ø)

¡Ü Àü¼¼

¸éÀû(§³), ±Ý¾×(¸¸¿ø)

°è¾àÀϰǹ°¸íĪÃþ¿¬¸éÀû´ëÁö±Ý¾×°ÇÃà
24.03.23¼­ÃÊÈú½º329.6119.52944,2002018
24.03.22(1603-27)159.2550.0553,0002017
24.03.22û±¤¾ÆÆ®ºô¶ó(Aµ¿)2115.189.18109,0001985
24.03.20¼­±¤ÁÖÅÃ357.2431.8943,0001994
24.03.16»ï¿ø¸Ç¼Ç173.5552.7171,7501991
¢Ñ ´õº¸±â

µî±âºÎµîº» ¿ä¾à(°Ç¹°)

  Á¢¼öÀÏÀÚ µî±â¸ñÀû/±Ç¸®ÀÚ ±Ç¸®±Ý¾× ±âÁØ
1
¼ÒÀ¯±Ç
(OOOO
¼Ò¸ê
2 2021³â6¿ù30ÀÏ
±ÙÀú´ç±Ç
±èOO
500,000,000 ¼Ò¸ê±âÁØ
3 2021³â8¿ù26ÀÏ
°¡¾Ð·ù
ȫOO
250,000,000 ¼Ò¸ê
4 2022³â2¿ù14ÀÏ
±ÙÀú´ç±Ç
¼­OO
500,000,000 ¼Ò¸ê
5 2022³â2¿ù15ÀÏ
±ÙÀú´ç±Ç
Á¤OO
400,000,000 ¼Ò¸ê
6 2024³â1¿ù11ÀÏ
°¡¾Ð·ù
½ÅOOOO
120,000,000 ¼Ò¸ê
7 2024³â2¿ù2ÀÏ
°¡¾Ð·ù
¼ÕOO
450,000,000 ¼Ò¸ê
8 2024³â3¿ù4ÀÏ
¾Ð·ù
¼­OO
¼Ò¸ê
9 2024³â3¿ù22ÀÏ
°­Á¦°æ¸Å
ÁÖOO
¼Ò¸ê

ÀÓÂ÷ÀÎÇöȲ (¹è´ç¿ä±¸Á¾±âÀÏ: 2024-06-20)

ÀÓÂ÷ÀÎ ¿ëµµ/Á¡À¯ º¸Áõ±Ý/¿ù¼¼ ´ëÇ×·Â
ÀüÀÔÀÏ/È®Á¤ÀÏ ¹è´ç¿ä±¸ ºñ°í
ÁÖOO 602È£ 430,000,000
O
2020.08.14.
2020.7.21.
2024.4.26. 2020.8.14.~ÇöÀç±îÁö

¿©ÀÇÁÖ°æ¸Å Á¶¾ð ÇÑ ¸¶µð

³«Âû ÈÄ¿¡ µî±âºÎ»ó ¼Ò¸êµÇÁö ¾Ê´Â ±Ç¸®´Â ¾ø½À´Ï´Ù.
´ë·«ÀûÀÎ °ËÅäÀǰßÀ̹ǷΠÀÔÂûÀü¿¡ Àü¹®°¡ÀÇ Á¶¾ðÀ» Âü°íÇØ º¸½Ã±æ ±ÇÇØµå¸³´Ï´Ù.
À¯Ä¡±Ç½Å°í°¡ ÀÖ´Â ¹°°ÇÀÔ´Ï´Ù
°¨Á¤ ½ÃÁ¡ÀÌ ¿À·¡µÇ¾î °¡°Ýº¯µ¿ÀÌ ÀÖÀ» ¼ö ÀÖ½À´Ï´Ù.
ÀÌ ¹°°ÇÀº 2024³â 3¿ù 22ÀÏ¿¡ °æ¸Å°¡ °³½ÃµÇ¾ú´Âµ¥ Áö±Ý ½ÃÁ¡À¸·Î ¾à 629ÀÏÀÌ ÀÌ °æ°úµÇ¾ú½À´Ï´Ù. °¨Á¤°¡°ÝÀº 629ÀÏ Àü ½ÃÁ¡¿¡¼­ Æò°¡ÇÑ °¡°ÝÀ̹ǷΠ±× »çÀÌ °¡°Ýº¯µ¿ÀÌ ÀÖÀ» ¼ö ÀÖ½À´Ï´Ù. ƯÈ÷ °¡°Ý º¯µ¿ÀÌ ½ÉÇÑ ¾ÆÆÄÆ®´Â À¯ÀÇÇÏ¼Å¾ß ÇÕ´Ï´Ù. °¨Á¤°¡°ÝÀ» ³Ê¹« ¹ÏÁö ¸¶½Ã°í ÇöÀç ½Ç¸Å¹° °¡°Ý°ú ½Ç°Å·¡°¡¸¦ È®ÀÎÇϽñ⠹ٶø´Ï´Ù.
°£È¤ °¨Á¤°¡°Ýº¸´Ù ³ô°Ô ³«ÂûµÇ´Â °æ¿ì°¡ Àִµ¥ ´ëºÎºÐ ÀÌ·± ÀÌÀ¯ÀÔ´Ï´Ù.
¡Ø ¹°°Ç Ű¿öµå : µµ½ÃÁö¿ª/ÁÖ°ÅÁö¿ª/Á¦2Á¾ÀϹÝÁÖ°ÅÁö¿ª/¹ö½ºÁ¤·ùÀå/Â÷·®Á¢±ÙÀÌ °¡´É/ÁÖÂ÷Àå/ÁöÇÏö/ö±ÙÄÜÅ©¸®Æ®±¸Á¶
Àüü ÄÁ¼³ÆÃÀÌ ºÎ´ã½º·¯¿ì½Å°¡¿ä? ±Ç¸®ºÐ¼®¸¸ ÀÇ·ÚÇϼŵµ ±¦Âú½À´Ï´Ù!
½Ç¼Ó ÀÖ°Ô Çٽɸ¸ ´ãÀº ±Ç¸®ºÐ¼® ¼­ºñ½º!! (±Ç¸®ºÐ¼® + ½Ã¼¼Á¶»ç + ³«Âû°¡ »êÁ¤ + ÀÔÂûÇ¥ ÀÛ¼º¹æ¹ý ±îÁö)
ÃÖ´ë Àüü ÄÁ¼³ÆÃ ºñ¿ëÀÇ 10% ¼öÁØ !!

ÁÖÀÇ»çÇ× (ÃÖ¼±¼øÀ§ ¼³Á¤ÀÏ: )

¸Å°¢À¸·Î ¼Ò¸êµÇÁö ¾Ê´Â µî±âºÎ±Ç¸®:
¸Å°¢À¸·Î ¼³Á¤µÈ °ÍÀ¸·Î º¸´Â Áö»ó±Ç:
2025.06.24 À¯Ä¡±ÇÀÚ À±OO À¯Ä¡±Ç½Å°í Á¦Ãâ
- Ưº°¸Å°¢Á¶°Ç ¸Å¼ö½Åûº¸Áõ±Ý ÃÖÀú¸Å°¢°¡°ÝÀÇ 20% - À¯Ä¡±Ç½Å°íÀÎ À±¿ë¼··ÎºÎÅÍ °ø»ç´ë±Ýä±Ç ±Ý 229,900,000¿øÀ» À§ÇÏ¿© º» °Ç ¸ñÀû¹°¿¡ °üÇÏ¿© À¯Ä¡±ÇÀÌ ÀÖ´Ù´Â ½Å°í°¡ ÀÖÀ¸ ³ª ±× ¼º¸³ ¿©ºÎ´Â ºÒºÐ¸íÇÔ
¡Ø¹Ì³³°ü¸®ºñ(°ø¿ë) Àμö¿©ºÎ¸¦ ÀÔÂû Àü¿¡ È®ÀÎÇϽñ⠹ٶø´Ï´Ù

 

Áö¿ªºÐ¼®

ÁöÇÏö¸í Á÷¼±°Å¸®

Çб³¸í ÀüÈ­¹øÈ£ ÁÖ¼Ò Á÷¼±°Å¸®

¹ý¿ø

¼­¿ïÁß¾ÓÁö¹æ¹ý¿ø (065-94)¼­¿ïƯº°½Ã ¼­Ãʱ¸ ¼­ÃÊÁß¾Ó·Î 157 (¼­Ãʵ¿)
´ëÇ¥ : 02)530-1114, ¾ß°£ : 02)530-1280/536-8003
°üÇÒÁö¿ª : Á¾·Î±¸, Áß±¸, °­³²±¸, ¼­Ãʱ¸, °ü¾Ç±¸, µ¿ÀÛ±¸

µî±â¼Ò ¼­¿ïÁß¾ÓÁö¹æ¹ý¿ø º»¿ø µî±â±¹ (´ëÇ¥:1544-0773, ÆÑ½º:(02)590-1881, ¼­¿ïƯº°½Ã ¼­Ãʱ¸ ¹ý¿ø·Î3±æ 14 (¼­Ãʵ¿ 1707-4))
¼¼¹«¼­ ¼­Ãʼ¼¹«¼­ (´ëÇ¥:02-3011-62, ÆÑ½º:02-563-8030, ¼­¿ïƯº°½Ã °­³²±¸ Å×Çì¶õ·Î 114 (¿ª»ïµ¿) ¿ª»ïºôµù 3,4Ãþ)

Àαٳ«ÂûÅë°è

±â°£ ¸Å°¢°Ç¼ö Æò±Õ°¨Á¤°¡
Æò±Õ¸Å°¢°¡
¸Å°¢°¡À²
Æò±ÕÀ¯Âû¼ö
3°³¿ù 3°Ç 2,426,666,667¿ø
2,600,116,667¿ø
109%
0.3ȸ
6°³¿ù 9°Ç 2,366,555,556¿ø
2,497,200,544¿ø
106%
0.4ȸ
12°³¿ù 34°Ç 2,463,374,118¿ø
2,381,289,869¿ø
95%
1ȸ


º» °æ¸ÅÁ¤º¸´Â ¹ý¿øÀÚ·á¿Í ÀÏÄ¡Çϵµ·Ï ÇÏ¿´À¸³ª ±Ç¸®»çÇ׺¯µ¿, ÀÔ·ÂÂø¿À µîÀÇ ¿øÀÎÀ¸·Î »ç½Ç°ú ´Ù¸¦ ¼ö ÀÖ½À´Ï´Ù. ÀÌ¿ë¾à°ü¿¡ ÀǰЏéÃ¥Á¶°ÇÀ¸·Î Á¦°øµÊÀ» ¾Ë¸®¸ç, °æ¸ÅÀÔÂû½Ã ¹Ýµå½Ã °ü·Ã °øºÎ¸¦ ÀçÈ®ÀÎÇϽñ⠹ٶø´Ï´Ù. º¸´Ù Æí¸®ÇÑ °æ¸ÅÁ¤º¸ Á¦°øÀ» À§ÇØ Áö¼ÓÀûÀ¸·Î °³¼±ÇϰڽÀ´Ï´Ù. ÀÌ¿ëÇØ Áּż­ °¨»çÇÕ´Ï´Ù.
°ü½É¹°°ÇÀ¸·Î µî·ÏÇÕ´Ï´Ù