97
±Ù¸°»ó°¡
¼­¿ï³²ºÎÁö¹æ¹ý¿ø
 °¨Á¤°¡1,306,000,000 ¿ø
 ÃÖÀú°¡(64%) 835,840,000 ¿ø
 º¸Áõ±Ý(10%) 83,584,000 ¿ø
 Ã»±¸¾×1,057,102,665 ¿ø
¼­¿ïƯº°½Ã °­¼­±¸ ¾çõ·Î 19, Á¦1Ãþ Á¦103È£ (¹æÈ­µ¿, ¶óÅ×¶ó½º)
¼­¿ïƯº°½Ã °­¼­±¸ ¹æÈ­µ¿ 498-4
»ç°Ç¹øÈ£ 2024Ÿ°æ120900
°æ¸ÅÁ¾·ùºÎµ¿»êÀÓÀǰæ¸Å
¸Å°¢´ë»óÅäÁö ¹× °Ç¹°Àϰý¸Å°¢
¸Å°¢±âÀÏ    2026.01.22(¸ñ) 10:00 ÀÔÂû 13ÀÏÀü    
ÅäÁö¸éÀû33.61§³(10.17 Æò)
°Ç¹°¸éÀû88.78§³(26.86 Æò)
乫/¼ÒÀ¯ÀÚÀÌOO / ÀåOO¿Ü 1¸í
ä±ÇÀÚ°íOOOOOOO
±è¼ºÈÆ ´ëÇ¥ÀÌ»ç
°øÀÎÁß°³»ç, ºÎµ¿»ê°ø°æ¸Å»ç, ÇѾç´ëÇб³ Á¹¾÷
Àü) ÅÂÀÎÄÁ¼³ÆÃ(ÁÖ) ´ëÇ¥ÀÌ»ç
Àü) ¿©ÀÇÁֺε¿»êÁß°³¹ýÀÎ(ÁÖ) ´ëÇ¥ÀÌ»ç
Çö) ¿©ÀÇÁÖ°æ¸Å¹ýÀÎ ´ëÇ¥ÀÌ»ç
010-2371-3237
ÆäÀ̽ººÏ Æ®À§ÅÍ ±¸±Û+
īī¿À½ºÅ丮
īī¿ÀÅå sms¹®ÀÚº¸³»±â
 

±âÀϳ»¿ª

°æ°ú ³¯Â¥ Àú°¨ ÃÖÀú°¡ °á°ú
Á¢¼öÀÏ 2024-05-30 °æ¸ÅÁ¢¼ö
~12ÀÏ 
2024-06-11 °æ¸Å°³½Ã°áÁ¤
~104ÀÏ 
2024-09-11 ¹è´ç¿ä±¸Á¾±âÀÏ
~167ÀÏ 
2024-11-13 100%
1,306,000,000
º¯°æ
~516ÀÏ 
2025-10-28 100%
1,306,000,000
À¯Âû
~546ÀÏ 
2025-11-27 80%
1,044,800,000
À¯Âû
~602ÀÏ 
2026-01-22 64%
835,840,000
ÁøÇà
¹°°Ç¸í¼¼¼­ ÇöȲÁ¶»ç¼­ ¹®°ÇÁ¢¼ö ¼Û´Þ³»¿ª

°¨Á¤Æò°¡ÇöȲ

¸ñ·Ï ÁÖ¼Ò ±¸Á¶/¿ëµµ/´ëÁö±Ç ¸éÀû ºñ°í
´ëÁö±Ç
¾çõ·Î 19 892.0 ºÐÀÇ 10.9069 10.906 §³
(3.30Æò)
¾çõ·Î 19 892.0 ºÐÀÇ 22.7035 22.703 §³
(6.87Æò)
°Ç¹°
¾çõ·Î 19 Á¦1Ãþ Á¦103È£ (¹æÈ­µ¿, ¶óÅ×¶ó½º) ö±ÙÄÜÅ©¸®Æ®±¸Á¶ 28.81 §³
(8.72Æò)
¾çõ·Î 19 Á¦1Ãþ Á¦104È£ (¹æÈ­µ¿, ¶óÅ×¶ó½º) ö±ÙÄÜÅ©¸®Æ®±¸Á¶ 59.97 §³
(18.14Æò)
¼­¿ïƯº°½Ã °­¼­±¸ ¹æÈ­µ¿ ¼ÒÀç "°³È­»ê¿ª" ºÏÃø Àαٿ¡ À§Ä¡/Á¦3Á¾ÀϹÝÁÖ°ÅÁö¿ª/Â÷·®ÀÇ Á¢±ÙÀÌ °¡´É/ÁöÇÏö/³ë¼±¹ö½ºÁ¤·ùÀå/ö±ÙÄÜÅ©¸®Æ®±¸Á¶/Æò½º¶óºêÁöºØ ´õº¸±â
°¨Á¤Æò°¡ ¿äÇ×Ç¥
1) À§Ä¡ ¹× ÁÖÀ§È¯°æ=º»°ÇÀº ¼­¿ïƯº°½Ã °­¼­±¸ ¹æÈ­µ¿ ¼ÒÀç "°³È­»ê¿ª" ºÏÃø Àαٿ¡ À§Ä¡Çϸç, ÀαÙÀº ¾ÆÆÄÆ®´ÜÁö ¹× ´Üµ¶ÁÖÅÃ, ´Ù¼¼´ëÁÖÅÃ, ±Ù¸°»ýȰ½Ã¼³, ¾÷¹«½Ã¼³ µîÀÌ È¥ÀçÇÑ Áö¿ªÀÓ.

2) ±³Åë»óȲ=º»°Ç±îÁö Á¦¹Ý Â÷·®ÀÇ Á¢±ÙÀÌ °¡´ÉÇϸç, Àαٿ¡ ³ë¼±¹ö½ºÁ¤·ùÀå ¹× "(ÁöÇÏö5È£¼±)°³È­»ê¿ª"
ÀÌ ¼ÒÀçÇÏ´Â µî Á¦¹Ý ´ëÁß±³Åë ÀÌ¿ëÆíÀÇ Á¤µµ´Â ¹«³­ÇÔ.

3) °Ç¹°ÀÇ ±¸Á¶=ö±ÙÄÜÅ©¸®Æ®±¸Á¶ Æò½º¶óºêÁöºØ ÁöÇÏ2Ãþ/Áö»ó13Ãþ °Ç³» 1Ãþ 103,104È£·Î¼­

¿Üº®: ¼®ÀçºÙÀÓ ¹× ŸÀϺÙÀÓ ¸¶°¨ µî
³»º®: ÀÎÅ׸®¾î ¸¶°¨ µî
Â÷¿À: ¼¦½Ã âȣÀÓ.

4) ÀÌ¿ë»óÅÂ=¼Ò¸ÅÁ¡("¾¾À¯"ÆíÀÇÁ¡)À¸·Î ÀÌ¿ëÁßÀ̸ç 103,104È£ »çÀÌÀÇ °æ°èº®À» ö°ÅÇÏ¿© ÀÏ´ÜÀ¸·Î ÀÌ¿ëÁßÀÓ.

5) ¼³ºñ³»¿ª=À§»ý¼³ºñ, ¼Ò¹æ/¼ÒÈ­¼³ºñ ¹× ½Â°­±â¼³ºñ µîÀÌ ÀÖÀ½.




6) ÅäÁöÀÇ Çü»ó ¹× ÀÌ¿ë»óÅÂ=»ç´Ù¸®Çü ÅäÁö·Î¼­ ¿ÀÇǽºÅÚ ¹× ±Ù¸°»ýȰ½Ã¼³ °ÇºÎÁö·Î ÀÌ¿ëÁßÀÓ.

7) ÀÎÁ¢ µµ·Î»óŵî=º»°ÇÀÌ ¼ÒÀçÇÑ ÅäÁöÀÇ ³²ÃøÀ¸·Î ±¤´ë·Îº¯¿¡ Á¢ÇÔ.

8) ÅäÁöÀÌ¿ë°èȹ ¹× Á¦ÇÑ»óÅÂ=Á¦3Á¾ÀϹÝÁÖ°ÅÁö¿ª, Áß¿ä½Ã¼³¹°º¸È£Áö±¸(°øÇ×) °¡Ãà»çÀ°Á¦Çѱ¸¿ª(Áö¿ª°æÁ¦°ú È®ÀÎ ¿ä¸Á)<°¡ÃàºÐ´¢ÀÇ °ü¸® ¹× À̿뿡 °üÇÑ ¹ý·ü>, ¼öÆòÇ¥¸é±¸¿ª(¼öÆòÇ¥¸é)<°øÇ׽ü³¹ý>, »ó´ëº¸È£±¸¿ª(°­¼­±³À°Áö¿øÃ»¿¡ ¹Ýµå½Ã È®ÀÎ ¿ä¸Á)<±³À°È¯°æ º¸È£¿¡ °üÇÑ ¹ý·ü>, »ó´ëº¸È£±¸¿ª(°­¼­±³À°Ã»¿¡ ¹Ýµå½Ã È®ÀÎ ¿ä¸Á)<±³À°È¯°æ º¸È£¿¡ °üÇÑ ¹ý·ü>, ´ë°ø¹æ¾îÇùÁ¶±¸¿ª(À§Å¹°íµµ:77-257m)<±º»ç±âÁö ¹× ±º»ç½Ã¼³ º¸È£¹ý>, °ú¹Ð¾ïÁ¦±Ç¿ª<¼öµµ±ÇÁ¤ºñ°èȹ¹ý> ÀÓ.

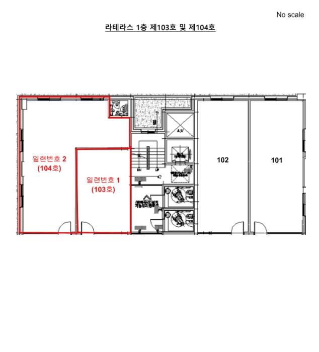
9) °øºÎ¿ÍÀÇ Â÷ÀÌ=ÀϷùøÈ£1(103È£)¿Í ÀϷùøÈ£2(104È£) »çÀÌÀÇ °æ°èº®À» ö°ÅÇÏ¿© 2°³È£¸¦ ÀÏ´ÜÀ¸·Î ÀÌ¿ëÁß
(»óÈ£¸í "CUÆíÀÇÁ¡")ÀÓ.






10) ±âŸÂü°í»çÇ×(ÀÓ´ë°ü·Ê ¹× ±âŸ)=- ÀÓ´ë°ü°è´Â ¹Ì»óÀÓ.

- º»°ÇÀº ÇöÀåÁ¶»ç ´ç½Ã 103È£(ÀϷùøÈ£ 1)°ú 104È£(ÀϷùøÈ£ 2) »çÀÌÀÇ °æ°èº®ÀÌ Á¦°ÅµÇ¾î
2°³È£°¡ ÀÏ´ÜÀ¸·Î »ç¿ëÁßÀÎ °ÍÀ¸·Î Á¶»çµÇ¾úÀ¸¸ç, ÁýÇÕ°ÇÃ๰´ëÀå °ÇÃ๰ ÇöȲµµ À§Ä¡¸¦
±âÁØÀ¸·Î °¢ È£ÀÇ À§Ä¡¸¦ È®ÀÎÇÏ¿´À¸¹Ç·Î Á¤È®ÇÑ È£º° À§Ä¡ ¹× °æ°èº®ÀÇ º¹±¸ °¡´É¼º µîÀº
Àü¹®ÀûÀÎ Ãø·®À» ÅëÇØ ÀçÈ®ÀÎÇϽŠÈÄ ÀÔÂûÇϽñ⠹ٶ÷.



Âü°í
»çÇ×
Àϰý¸Å°¢
ÀÌ°Ç ºÎµ¿»êÀº ¸ñ·Ï 1¹ø 103È£, ¸ñ·Ï 2¹ø 104È£·Î ±¸ºÐµÇ¾î ÀÖÀ¸³ª ½ÇÁ¦(ÇöȲ)Àº ÅëÇÕÇÏ¿© 1°³ÀÇ Á¡Æ÷·Î CU ÆíÀÇÁ¡À¸·Î ÀÌ¿ë ÁßÀÓ.

°ÇÃ๰ÇöȲ

¼ÒÀçÁö ¼­¿ïƯº°½Ã °­¼­±¸ ¹æÈ­µ¿ 498-4¹øÁö
´ëÁö¸éÀû 892§³
(270.3Æò)
¿¬¸éÀû 4082.06§³
(1236.99Æò)
°ÇÃà¸éÀû 277.15§³
(83.98Æò)
¿ëÀû·ü»êÁ¤
¿¬¸éÀû
2673.44§³
(810.13Æò)
°ÇÆóÀ² 31.07% ¿ëÀû·ü 299.71%
Áö»óÃþ¼ö 13Ãþ ÁöÇÏÃþ¼ö 2Ãþ
ÁÖ¿ëµµ ¾÷¹«½Ã¼³ ±¸Á¶ ö±ÙÄÜÅ©¸®Æ®±¸Á¶
Âø°øÀÏÀÚ 2019.10.21 »ç¿ë½ÂÀÎÀÏÀÚ 2020.11.26
°ÇÃ๰Ãþº°ÇöȲ [º¸±â]


µî±âºÎµîº» ¿ä¾à(°Ç¹°)

  Á¢¼öÀÏÀÚ µî±â¸ñÀû/±Ç¸®ÀÚ ±Ç¸®±Ý¾× ±âÁØ
1
¼ÒÀ¯±Ç
ÀÌOO
¼Ò¸ê
2 2023³â3¿ù24ÀÏ
±ÙÀú´ç±Ç
°íOOOO
338,000,000 ¼Ò¸ê±âÁØ
3 2023³â10¿ù13ÀÏ
°¡¾Ð·ù
¼­OOOO
58,333,336 ¼Ò¸ê
4 2024³â4¿ù30ÀÏ
°¡¾Ð·ù
°íOOOO
56,235,015 ¼Ò¸ê
5 2024³â6¿ù12ÀÏ
ÀÓÀǰæ¸Å
°íOOOO
¼Ò¸ê

ÀÓÂ÷ÀÎÇöȲ (¹è´ç¿ä±¸Á¾±âÀÏ: 2024-09-11)

ÀÓÂ÷ÀÎ ¿ëµµ/Á¡À¯ º¸Áõ±Ý/¿ù¼¼ ´ëÇ×·Â
ÀüÀÔÀÏ/È®Á¤ÀÏ ¹è´ç¿ä±¸ ºñ°í
ÀÌOO 1Ãþ104È£ 8,000,000
[¿ù]400,000
O
2001.04.22
¹Ì»ó
¹Ì»ó
ºñ°í
(¸Å°¢¹°°Ç
¸í¼¼¼­)
ÀÌÁ¾º¹ : ÀÌ »ç°Ç 乫ÀÚ °â ¼ÒÀ¯ÀÚÀÓ.

¿©ÀÇÁÖ°æ¸Å Á¶¾ð ÇÑ ¸¶µð

¸Å°¢¹°°Ç¸í¼¼ ºñ°í³­¿¡ ±âÀçµÈ ³»¿ëÀÔ´Ï´Ù.
ÀÌÁ¾º¹ : ÀÌ »ç°Ç 乫ÀÚ °â ¼ÒÀ¯ÀÚÀÓ.
³«Âû ÈÄ¿¡ µî±âºÎ»ó ¼Ò¸êµÇÁö ¾Ê´Â ±Ç¸®´Â ¾ø½À´Ï´Ù.
´ë·«ÀûÀÎ °ËÅäÀǰßÀ̹ǷΠÀÔÂûÀü¿¡ Àü¹®°¡ÀÇ Á¶¾ðÀ» Âü°íÇØ º¸½Ã±æ ±ÇÇØµå¸³´Ï´Ù.
°¨Á¤ ½ÃÁ¡ÀÌ ¿À·¡µÇ¾î °¡°Ýº¯µ¿ÀÌ ÀÖÀ» ¼ö ÀÖ½À´Ï´Ù.
ÀÌ ¹°°ÇÀº 2024³â 6¿ù 11ÀÏ¿¡ °æ¸Å°¡ °³½ÃµÇ¾ú´Âµ¥ Áö±Ý ½ÃÁ¡À¸·Î ¾à 577ÀÏÀÌ ÀÌ °æ°úµÇ¾ú½À´Ï´Ù. °¨Á¤°¡°ÝÀº 577ÀÏ Àü ½ÃÁ¡¿¡¼­ Æò°¡ÇÑ °¡°ÝÀ̹ǷΠ±× »çÀÌ °¡°Ýº¯µ¿ÀÌ ÀÖÀ» ¼ö ÀÖ½À´Ï´Ù. ƯÈ÷ °¡°Ý º¯µ¿ÀÌ ½ÉÇÑ ¾ÆÆÄÆ®´Â À¯ÀÇÇÏ¼Å¾ß ÇÕ´Ï´Ù. °¨Á¤°¡°ÝÀ» ³Ê¹« ¹ÏÁö ¸¶½Ã°í ÇöÀç ½Ç¸Å¹° °¡°Ý°ú ½Ç°Å·¡°¡¸¦ È®ÀÎÇϽñ⠹ٶø´Ï´Ù.
°£È¤ °¨Á¤°¡°Ýº¸´Ù ³ô°Ô ³«ÂûµÇ´Â °æ¿ì°¡ Àִµ¥ ´ëºÎºÐ ÀÌ·± ÀÌÀ¯ÀÔ´Ï´Ù.
¡Ø ¹°°Ç Ű¿öµå : ÁÖ°ÅÁö¿ª/Á¦3Á¾ÀϹÝÁÖ°ÅÁö¿ª/¹ö½ºÁ¤·ùÀå/Â÷·®ÀÇ Á¢±ÙÀÌ °¡´É/ÁöÇÏö/³ë¼±¹ö½ºÁ¤·ùÀå/ö±ÙÄÜÅ©¸®Æ®±¸Á¶/Æò½º¶óºêÁöºØ/½º¶óºêÁöºØ
Àüü ÄÁ¼³ÆÃÀÌ ºÎ´ã½º·¯¿ì½Å°¡¿ä? ±Ç¸®ºÐ¼®¸¸ ÀÇ·ÚÇϼŵµ ±¦Âú½À´Ï´Ù!
½Ç¼Ó ÀÖ°Ô Çٽɸ¸ ´ãÀº ±Ç¸®ºÐ¼® ¼­ºñ½º!! (±Ç¸®ºÐ¼® + ½Ã¼¼Á¶»ç + ³«Âû°¡ »êÁ¤ + ÀÔÂûÇ¥ ÀÛ¼º¹æ¹ý ±îÁö)
ÃÖ´ë Àüü ÄÁ¼³ÆÃ ºñ¿ëÀÇ 10% ¼öÁØ !!

ÁÖÀÇ»çÇ× (ÃÖ¼±¼øÀ§ ¼³Á¤ÀÏ: 1. 2023.03.24 ±ÙÀú´ç±Ç ¼³Á¤ 2. 2020.12.14 ±ÙÀú´ç±Ç)

¸Å°¢À¸·Î ¼Ò¸êµÇÁö ¾Ê´Â µî±âºÎ±Ç¸®:
¸Å°¢À¸·Î ¼³Á¤µÈ °ÍÀ¸·Î º¸´Â Áö»ó±Ç:
-Àϰý¸Å°¢. -¼Ò¸ÅÁ¡('¾¾À¯' ÆíÀÇÁ¡)À¸·Î ÀÌ¿ëÁßÀ̸ç, 103,104È£ »çÀÌÀÇ °æ°èº®À» ö°ÅÇÏ¿© ÀÏ´ÜÀ¸·Î ÀÌ¿ëÁßÀÓ. -Á¤È®ÇÑ È£º° À§Ä¡ ¹× °æ°èº®ÀÇ º¹±¸ °¡´É¼º µîÀº Àü¹®ÀûÀÎ Ãø·®À» ÅëÇÏ¿© È®ÀÎÀ» ¿äÇÔ(°¨Á¤Æò°¡¼­ ÂüÁ¶).
¡Ø¹Ì³³°ü¸®ºñ(°ø¿ë) Àμö¿©ºÎ¸¦ ÀÔÂû Àü¿¡ È®ÀÎÇϽñ⠹ٶø´Ï´Ù

 

Áö¿ªºÐ¼®

ÁöÇÏö¸í Á÷¼±°Å¸®

Çб³¸í ÀüÈ­¹øÈ£ ÁÖ¼Ò Á÷¼±°Å¸®

¹ý¿ø

¼­¿ï³²ºÎÁö¹æ¹ý¿ø (080-88)¼­¿ïƯº°½Ã ¾çõ±¸ ½Å¿ù·Î 386(½ÅÁ¤µ¿)
´ëÇ¥ : 02)2192-1114
°üÇÒÁö¿ª : ¿µµîÆ÷±¸, °­¼­±¸, ¾çõ±¸, ±¸·Î±¸, ±Ýõ±¸

µî±â¼Ò ¼­¿ï³²ºÎÁö¹æ¹ý¿ø º»¿ø µî±â±¹ (´ëÇ¥:1544-0773, ÆÑ½º:(02)2629-7307, ¼­¿ïƯº°½Ã ¿µµîÆ÷±¸ °æÀηΠ772 (¹®·¡µ¿ 1°¡))
¼¼¹«¼­ °­¼­¼¼¹«¼­ (´ëÇ¥:02-2630-42, ÆÑ½º:02-2679-8777, ¼­¿ïƯº°½Ã °­¼­±¸ ¸¶°î¼­1·Î 60 (¸¶°îµ¿))

Àαٳ«ÂûÅë°è

±â°£ ¸Å°¢°Ç¼ö Æò±Õ°¨Á¤°¡
Æò±Õ¸Å°¢°¡
¸Å°¢°¡À²
Æò±ÕÀ¯Âû¼ö
3°³¿ù 9°Ç 912,862,589¿ø
620,881,778¿ø
65%
3ȸ
6°³¿ù 21°Ç 700,327,014¿ø
481,591,238¿ø
70%
3.9ȸ
12°³¿ù 57°Ç 726,882,409¿ø
420,471,858¿ø
60%
4.2ȸ


º» °æ¸ÅÁ¤º¸´Â ¹ý¿øÀÚ·á¿Í ÀÏÄ¡Çϵµ·Ï ÇÏ¿´À¸³ª ±Ç¸®»çÇ׺¯µ¿, ÀÔ·ÂÂø¿À µîÀÇ ¿øÀÎÀ¸·Î »ç½Ç°ú ´Ù¸¦ ¼ö ÀÖ½À´Ï´Ù. ÀÌ¿ë¾à°ü¿¡ ÀǰЏéÃ¥Á¶°ÇÀ¸·Î Á¦°øµÊÀ» ¾Ë¸®¸ç, °æ¸ÅÀÔÂû½Ã ¹Ýµå½Ã °ü·Ã °øºÎ¸¦ ÀçÈ®ÀÎÇϽñ⠹ٶø´Ï´Ù. º¸´Ù Æí¸®ÇÑ °æ¸ÅÁ¤º¸ Á¦°øÀ» À§ÇØ Áö¼ÓÀûÀ¸·Î °³¼±ÇϰڽÀ´Ï´Ù. ÀÌ¿ëÇØ Áּż­ °¨»çÇÕ´Ï´Ù.
°ü½É¹°°ÇÀ¸·Î µî·ÏÇÕ´Ï´Ù